Venus vei 5
4 900 000 kr
215 m²
3 soverom
Solgt

Mosserød
BUD INNKOMMET - Innholdsrik familiebolig på stor tomt med solrik og fri beliggenhet - barnevennlig i populært område - dobbelgarasje
Prisantydning
4 900 000 krOmkostninger
143 490 krTotalpris
5 043 490 kr
Pris
Bruksareal
335 m²BRA-I (internt bruksareal)
215 m²BRA-E (eksternt bruksareal)
120 m²TBA (terrasse-balkongareal)
26 m²
Areal
Etasje
2Byggeår
1966Soverom
3 soveromBad
1 badTomteareal
1 429 m² (eiet)Type
Enebolig - FrittliggendeEierform
EietFasiliteter
Garasje/P-plassEnergimerke
Oransje F
Nøkkelinfo
Unngå doble boligrenter
Vi tilbyr gunstig forsikring.
Vurderer du utleie?
Få et tilbud fra Utleie KrogsveenHva koster lånet?
Sjekk estimert lånekostnadBeskrivelse
Kort om eiendommen
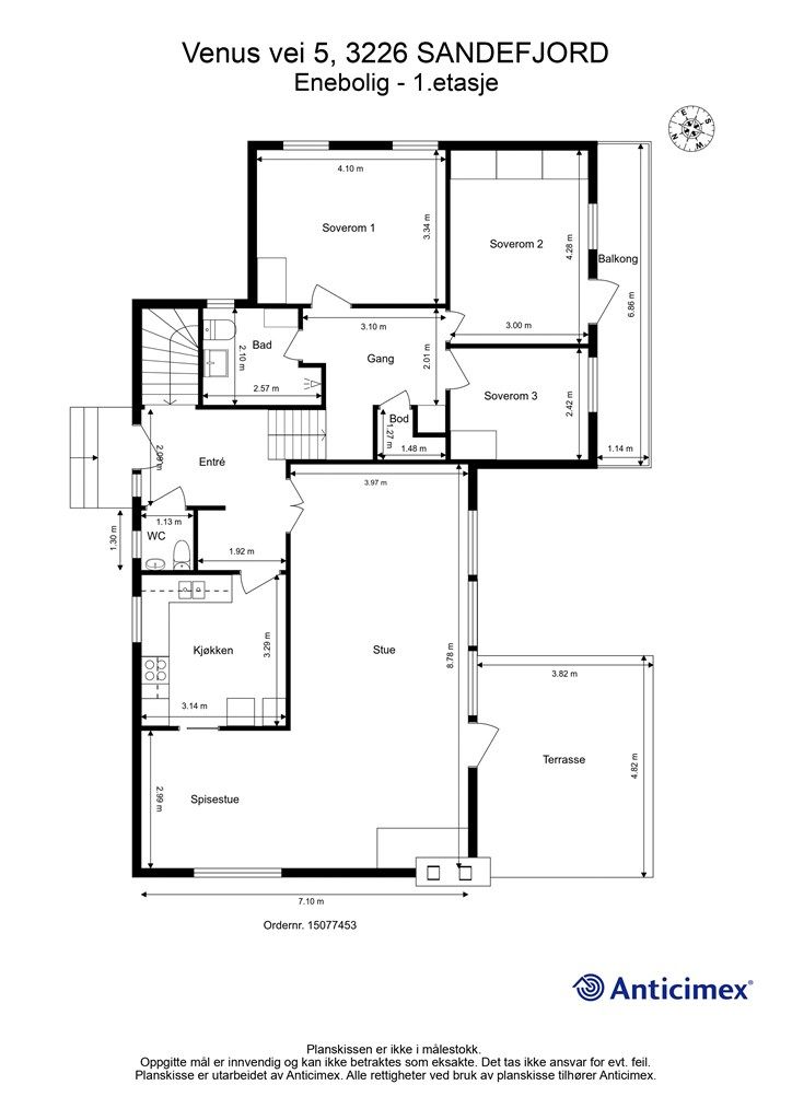
Velkommen til Venus vei 5 og en innholdsrik familiebolig med mange muligheter og rikelig med plass til storfamilien. Planløsningen er praktisk med stor stue og kjøkken avgrenset i eget rom. Stuen har store vindusflater og utgang til solrik uteplass mot sør/vest. Boligens soverom er plassert i egen halv etasje og underetasjen er praktisk innredet med både romslig hall, kjellerstue, vaskekjeller og rikelig med bodplass (kjellerstuen er ikke godkjent for varig opphold). Tomten er solrik og pent opparbeidet med nydelig hage og uteområder. Perfekt til lek og moro for de små. Parkering i stor dobbelgarasje.
Eiendommen ligger sentralt og barnevennlig til med lite trafikk. Kort vei til både skoler, butikker, flotte turområder, sentrum og fritidsaktiviteter. Godt utvalg av lekeplasser i området.
Område
Legg til steder som er viktige for deg
På flyttefot? Tenk kjøp og salg samtidig.
Få din egen rådgiver gjennom hele kjøps- og salgsprosessen. Det starter med en verdivurdering.
Unngå doble boligrenter
Vi tilbyr gunstig forsikring.
Vurderer du utleie?
Få et tilbud fra Utleie KrogsveenHva koster lånet?
Sjekk estimert lånekostnadVil du varsles om lignende boliger?
Ved å lagre ditt boligsøk hos oss får du beskjed når vi har en bolig som ligner denne, før den legges ut på markedet!

