Løvetanntoppen 45
3 990 000 kr
121 m²
3 soverom
Komplett salgsoppgave

Nedenes
Kjedet enebolig m/garasje | Nytt kjøkken fra 2022 | Sørvendt uteplass på 43 m² | Barnevennlig
Prisantydning
3 990 000 krOmkostninger
120 740 krTotalpris
4 110 740 kr
Pris
Bruksareal
150 m²BRA-I (internt bruksareal)
121 m²BRA-E (eksternt bruksareal)
29 m²TBA (terrasse-balkongareal)
49 m²
Areal
Etasje
2Byggeår
2010Soverom
3 soveromBad
2 badTomteareal
183 m² (eiet)Type
Enebolig i kjedeEierform
EietFasiliteter
Garasje/P-plass og Balkong/TerrasseÅrlig velavgift
250 kr
Nøkkelinfo
Unngå doble boligrenter
Vi tilbyr gunstig forsikring.
Vurderer du utleie?
Få et tilbud fra Utleie KrogsveenHva koster lånet?
Sjekk estimert lånekostnadBeskrivelse
Kort om eiendommen
Løvetanntoppen 45 er en flott enebolig i kjede som inneholder bla. flere soverom, stue og bad i begge etasjer, integrert garasje og stor terrasse. Boligen fremstår som fresh og har blitt oppgradert med blant annet nytt kjøkken i 2022. Boligens oppholdsrom er lyse og luftige med åpen løsning mellom stue og kjøkken, store vinduer og utgang til terrasse på 43 kvm direkte fra stuen.
Boligen ligger i et etablert nabolag på Nedenes, med lett tilgang til felles lekeplass og kort vei til sjøen. Det er gangavstand til barnehage, Nedenes skole med 1.-10 klasse og dagligvare. Busstopp ca. 300 meter fra eiendommen.
Velkommen til en hyggelig visning!
Innhold og byggemåte
Innhold og byggemåte
Eiendommen
Løvetanntoppen 45, 4823 NEDENES
Kommunenummer 4203, gårdsnummer 428, bruksnummer 890
Innhold
Totalt bruksareal BRA: 150 kvm
BRA-i:
Enebolig (i kjede):
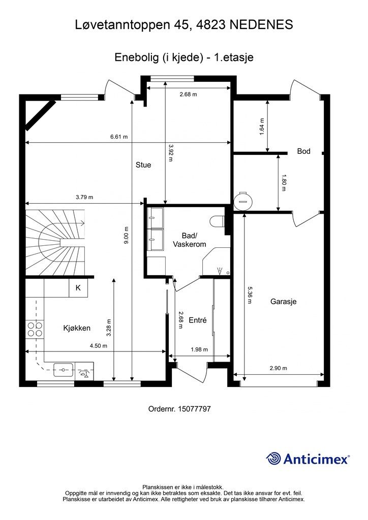
1. etasje 60 kvm: Entré, bad/vaskerom, kjøkken og stue.
2. etasje 61 kvm: Gang, bad, stue og soverom.
BRA-e:
1. etasje 29 kvm: Garasje og bod.
Åpent areal:
1. etasje 43 kvm: Platting.
2. etasje 6 kvm: Balkong.
Vedlagte plantegninger er ikke målbare. De oppgitte arealer er hentet fra rapport med befaringsdato 17.12.2025 utført av Anticimex AS v/Halvard Grina. Arealene er beregnet og rom er definert etter dagens faktiske bruk, uavhengig av hva som er godkjent av bygningsmyndighetene.
Byggemåte
Selger har innhentet en tilstandsrapport av boligen/eiendommen. Dersom det er registrert avvik, er disse klassifisert med tilstandsgrader (TGIU, TG2 og/eller TG3). Kjøper overtar ansvaret for de opplysninger som fremkommer av salgsdokumentasjonen, og kan ikke gjøre gjeldende som mangel noe som burde vært kjent eller som ikke kan anses å ha betydning for avtalen.
Bygningen er iht. tilstandsrapport oppført som en kjedet enebolig over to etasjer fra 2010. Boligen er oppført med støpt plate på mark. Yttervegger er av trekonstruksjoner kledd med liggende trekledning, og etasjeskillere er av trekonstruksjoner. Taket er en pulttakkonstruksjon i tre, tekket med asfaltpapp. Boligen har vinduer og terrassedører med karmer av tre og to-lags glass fra byggeår, hvorav ett glass i 2. etasje ble skiftet i 2025. Ytterdør til entré er i tre med to-lags glass. Det er en gasspeis i stuen i 1. etasje. Fra stuen i 2. etasje er det utgang til en balkong på 6 m², og fra stuen i 1. etasje er det utgang til en platting på 43 m².
Garasjen har belegningsstein mot grunn, vegger med liggende trekledning og en åpen takkonstruksjon.
Det elektriske anlegget har sikringsskap plassert i entré med automatsikringer, overspenningsvern og AMS-måler. Anlegget er fra byggeåret.
Boligen har godkjent slukkeutstyr og tilstrekkelig med røykvarslere.
Det gjøres spesielt oppmerksom på:
TG 1: 80%
TG 2: 15%
TG 3: 0%
TG IU: 5%
Følgende bygningsdeler er gitt Tilstandsgrad 2 (TG2) — Avvik som kan kreve tiltak:
Våtrom - Bad/vaskerom 1.etasje
- Overflater gulv: Det er registrert slitasje på flisfuger i dusjsonen som følge av normal fuktbelastning over tid.
- Fallforhold (gulv): Nivåforskjell fra døråpning på topp overflate gulv og til hovedsluk er på tilfeldig sted målt til ca. 10mm. Dette er vurdert til å ikke være tilfredsstillende mht lekkasjesikkerhet. Lokalfall i dusjsonen er mindre enn hva som ideelt anbefales. Det ble målt på tilfeldig sted og målingen viste et fallforhold på 5mm. Fallet er mindre enn 1:50 i en avstand på 80 cm. Ved utført vanntest ble det observert mindre vannansamlinger/sen avrenning mot sluk. Mangelfullt fall kan føre til økt fuktbelastning og økt risiko for fuktskader over tid, særlig sett i sammenheng med tettesjiktets alder.
- Membran, tettesjikt og overgang til sluk: Tettesjiktet har en alder som tilsier at restlevetiden er usikker. Rommets lekkasjesikkerhet kan derfor ikke verifiseres, eventuelt bør nytt tettesjikt etableres.
- Sanitærutstyr / innredning: Drenering fra innebygget sisterne er ikke registrert. Eventuell fukt i konstruksjonen vil derfor kunne medføre skader over tid før det oppdages.
Våtrom - Bad 2.etasje
- Overflater gulv: Det registreres bomlyd (tegn til hulrom) under enkelte gulvfliser.
- Fallforhold (gulv): Nivåforskjell fra døråpning på topp overflate gulv og til hovedsluk er på tilfeldig sted målt til ca. 10mm. Dette er vurdert til å ikke være tilfredsstillende mht lekkasjesikkerhet. Lokalfall ved sluk er målt til å være mindre enn anbefalt. Ved forsiktig bruk håndterer badekaret forbruksvann på en tilfredsstillende måte.
- Membran, tettesjikt og overgang til sluk: Tettesjiktet har en alder som tilsier at restlevetiden er usikker. Rommets lekkasjesikkerhet kan derfor ikke verifiseres, eventuelt bør nytt tettesjikt etableres.
Øvrige rom 1.etasje
- Overflater gulv: Det registreres bomlyd (tegn til hulrom) under enkelte gulvfliser, samt sprekk i en flis ved ytterdør.
Yttervegger
- Fasader ink. kledning: Det er ikke montert musesperre bak hjørnebord/i ytterhjørner.
Balkong 2. etasje
- Rekkverk: Rekkverkshøyden er under 1,0 meter. Avvik fra dagens byggteknisk forskrift.
Følgende bygningsdeler er ikke undersøkt (TGIU):
Radon
- Radon: Det er ikke foretatt radonmåling i boligen og verdiene er derfor ukjent.
Yttertak
- Konstruksjon: Taket er en lukket konstruksjon fra innsiden og utsiden, inspeksjon ikke mulig.
Grunnmur og fundamenter
- Byggegrunn: Byggegrunnens beskaffenhet er ukjent.
- Fundamenter: Fundamenter er naturlig skjult, og det er for øvrig ingen sikre og dokumenterte opplysninger om type fundamenter som huset har.
Tilstandsrapporten er inntatt i salgsoppgaven. Rapporten inneholder informasjon om eventuelle avvik og konsekvensen av disse. Dersom det er registrert avvik med TG3, har den bygningssakkyndige i tillegg gitt et anslag på hva det vil koste å utbedre disse. Ettersom kjøper regnes å være kjent med forhold som tydelig fremgår av tilstandsrapporten, oppfordres du til å sette deg grundig inn i rapporten i sin helhet.
Selger beskriver også i egenerklæringsskjema:
Det ble byttet innredning på badet nede i 2024 av faglært rørlegger. I den forbindelse oppstod en sprekk i en flis ved siden av innredningen, som er limt og tettet. I 2025 ble et punktert vindu i stuen byttet av faglært. Det ble utført elektrisk arbeid av en faglært elektriker i 2023 i forbindelse med fjerning av en vegg. Ventilasjonsanlegget ble renset og en reim ble byttet av fagfolk i 2021.
Det er påvist forekomst av skjeggkre i boligen. Skjeggkre kan ifølge skadedyrfirmaene bekjempes ved sanering av skadedyrfirmaer, bruk av limfeller samt regelmessig støvsuging/rengjøring. Kjøper overtar risikoen for dette forholdet.
Moderniseringer og påkostninger
Følgende moderniseringer er foretatt de senere år:
2025:
- Byttet vindu i stue i 1. etasje, utført av Ekra Glass.
2024:
- Oppgradert med ny servantinnredning på bad/vaskerom i 1. etasje, utført av Sørlandet VVS (dokumentasjon foreligger).
2022:
- Kjøkken i 1. etasje oppgradert med ny innredning, hvitevarer og gulvoverflate.
2021:
- Installert luft-til-luft varmepumpe i stue i 2. etasje.
2018:
- Installert AMS-måler.
Ifølge selgers egenerklæring er følgende arbeid utført:
2023:
- Elektrisk arbeid i forbindelse med fjerning av vegg mellom stue og soverom, inkludert nye kontakter og taklampe i stua. Utført av elektriker Thomas Johansen.
Ukjent årstall:
- Utført tetting mot skadedyr (vegger, tak, gulv, dører, vinduer, gjennomføringer). Sanering utført av Anticimex i 2020. Ikke observert skjeggkre siste året.
Standard
Dette er en innbydende og romslig kjedet enebolig fra 2010, oppført over to etasjer. Boligen er betydelig oppgradert de siste årene, med blant annet et nytt kjøkken fra 2022. God planløsning med stue i begge etasjer, to bad og tre soverom. Boligen har gjennomgående fin standard, lyse farger og flotte kvaliteter, som bla. slette vegger og himling for et moderne uttrykk.
1 etasje består av entre, bad/vaskerom, kjøkken og stue. Lekkert kjøkken fra Sørlandskjøkken med profilerte, lyse fronter, integrerte hvitevarer og alt man skulle trenge. Kjøkkenet har hvite veggfliser og takhøye skap med innebygd lys, og en åpen forbindelse mot stuen. I stuen er det montert gasspeis for effektiv varme og hygge. Stuen har flere muligheter for møblering i flere soner. Fra stuen er det direkte utgang til terrassen på hele 43 kvm. Bad/ vaskerom i 1 etg. består av dusjhjørne, dobbel servantinnredning, vegghengt toalett og opplegg for vaskemaskin.
Boligens soverom er samlet i 2 etasje. Rommene har god størrelse og er enkle å møblere for ulike behov, som hovedsoverom, barnerom, gjesterom eller kontor. Det er i tillegg en romslig loftsstue og bad i 2 etg. Stuen fungerer som et fleksibelt rom som egner seg godt som TV-stue eller lekerom for barna. Rommet er utstyrt med en luft-til-luft-varmepumpe fra 2021, og har utgang til en balkong.
Boligen har en innebygd garasje med god plass til oppbevaring eller p-plass. Det er i tillegg bod tilknyttet garasjen. Her er varmtvannsbereder, fordelerskap for rør-i-rør og ventilasjonsaggregat plassert.
Løsøre og tilbehør
Når ikke annet er avtalt, overdras eiendommen med innredninger og utstyr som etter lov, forskrift eller annet offentlig vedtak skal følge med, jf. avhendingsloven. Det samme gjelder varig innredning og utstyr som enten er fastmontert eller er særskilt tilpasset bygningen. Loven inneholder ingen detaljert oversikt over hva som omfattes av «innredning og utstyr», og over hva som skal regnes som «fastmontert eller særskilt tilpasset». Partene kan fritt avtale hva som skal følge eiendommen ved salg. Bransjens liste over løsøre og tilbehør som skal følge med eiendommen, er en del av avtalen mellom kjøper og selger dersom ikke annet er opplyst i salgsoppgaven, kjøper har tatt forbehold i bud eller annen måte er inngått. Er ikke annet avtalt, vil løsøre og tilbehør medfølge slik dette fremkommer av avhendingsloven og bransjens tilbehørsliste inntatt i salgsoppgaven.
Oppvarming
Oppvarming i boligen skjer med gulvvarme, gasspeis og luft til luft varmepumpe. Gulvvarme er installert på bad/vaskerom i 1. etasje, bad i 2. etasje og i entré. En gasspeis er plassert i stue 1. etasje med utvendig gassbeholder, og det er utført jevnlig service av fagkyndige på gassinstallasjonen. En luft til luft varmepumpe fra 2021 er plassert i stue 2. etasje.
Ferdigattest/brukstillatelse
Det foreligger ferdigattest på eiendommen, datert 11.01.2010, samt vedtak til tillatelse til bruksendring fra tilleggsdel til hoveddel dater 27.04.2026 . Disse kan fås ved henvendelse til megler.
Ferdigattesten fra 2010 omfatter ikke soverom, stue og bad i 2. etasje, men dette er søkt og godkjent som hoveddel i april 2026.
2. etasje er opprinnelig byggemeldt som uinnredet loft. Block Watne As har søkt om bruksendring fra tilleggsdel til hoveddel og dette er godkjent hos kommunen.
På de opprinnelig tegningene er det stue og soverom i 1. etasje, nåværende eier har fjernet vegg mellom stue og soverom.
I 2. etasje er veggen mellom bod og stue flyttet slik at stuen er litt mindre.
Tinglyste heftelser og rettigheter
Eiendommen overdras fri for pengeheftelser
Kommunen har legalpant i eiendommen for forfalte krav på eiendomsskatt og kommunale avgifter/gebyrer.
18.03.2010- Dokumentnr. 203850- Bestemmelse iflg. skjøte
Rettighetshaver: OBOS BLOCK WATNE AS
ORG.NR: 968 757 954
Bestemmelse om spillvann/drensvann/overvann/stikkrenner m.m.
Bestemmelse om elektriske ledninger/kabler
Pliktig medlemskap i velforening/huseierforening
Med flere bestemmelser
Bestemmelse om telefonledning/telesentral
I henhold til særskilte avtaler i skjøtet har Block Watne AS (org.nr. 968 757 954), eller den de bemyndiger, rett til vederlagsfritt å legge og vedlikeholde vann-, spillvann-, overvanns- og gassledninger, samt siktsoner, veigrøfter, veiskjæringer, veiskråninger, tele-, bredbånd-, sluk, elektriske kabler og/eller TV-kabler, kabelskap, gatelysmaster og kabler for fellesanlegg på eller over eiendommen. Videre er det klausulert at et område på 2,5 meter fra asfaltkant hovedveg skal benyttes til snøopplag. Kjøper aksepterer at det er krav om medlemskap i Velforening, som vil ivareta drift- og vedlikehold av fellesanlegg.
Servituttene vil følge eiendommen. Kjøpers bank vil få prioritet etter ovennevnte heftelser og servitutter.
Eventuell adgang til utleie
Eiendommen har ikke separat utleieenhet. Det vil normalt være anledning til utleie av hele eiendommen eller enkeltrom, såfremt utleiearealet er bygningsmessig godkjent for varig opphold og har forsvarlige radonnivåer.
Diverse
Tilbud av produkter og tjenester fra våre samarbeidspartnere
Vi er opptatt av verdiskapning, og har knyttet til oss samarbeidspartnere som skal sikre våre kunder de beste produkter og tjenester;
• Gjensidige leverer boligselgerforsikring og tilbyr bygningsforsikring
• Boligkjøperforsikring leveres av Hiscox og med Sedgwick som skadebehandler, og er formidlet gjennom Gjensidige.
• BN bank tilbyr finansieringsløsninger
• Vår avdeling Krogsveen Pluss tilbyr flyttetjenester som utvask, visningsvask, lager, tømming og transport av flyttelass, i tillegg til å formidle kontakt med Flip for overflateoppussing.
• I forbindelse med overtagelse av eiendommen tilbyr Overo avtale om strøm, alarm og bredbånd.
• Krogsveen er, sammen med øvrige bransjeaktører, medeier i den digitale annonseringsplattformen Hjem.
Energimerking
Denne boligen er energimerket. På en skala fra A til G, der A er best, har denne boligen oppnådd C (en normalbolig vil gjerne ligge i området C-F). Kopi av energiattest ligger vedlagt i salgsoppgaven eller kan fås ved henvendelse til megler.
Beliggenhet og tomteforhold
Beliggenhet og tomteforhold
Beliggenhet
Med en attraktiv beliggenhet på Engene på Nedenes bor du midt mellom Arendal og Grimstad, med omtrent ti kilometer til hver av byene. Dette gir en enkel tilgang til to av Sørlandets sjarmerende bysentrum og en rekke fasiliteter. Området er preget av nærhet til sjø og strender, og har en fredelig atmosfære. Etablert og rolig boligområde.
Eiendommen har direkte tilgang til grønne omgivelser og fellesareal med stor plen. Området byr også på flotte turmuligheter og sykkelavstand til fine badeplasser på Fevik og Hisøy. Det er kort avstand til barnehage, skole og busstopp med gode forbindelser. Dagligvare på Nedenes i gangavstand. Det er kun fire minutter med bil til Rema og Kiwi på Nedenes, og Fevik toppen med med apotek og andre servicetilbud er fem minutter i bil unna eiendommen.
Adkomst
Se kart eller kontakt megler for veibeskrivelse.
Barnehager, skoler og fritid
Barnehage:
Engene barnehage (1-5 år): 0.3 km
Solsikken barnehage (1-5år) ca 1 km
Hasla Solkollen barnehage (1-5 år): 3 km
Haugenes barnehage (1-5 år): 2.9 km
Skole:
Nedenes skole (1-10 kl.): 2.8 km
Asdal skole (1-10 kl.): 5.1 km
Drottningborg videregående skole: 10.4 km
Sam Eydes videregående skole: 11 km
Informasjon om tilhørende skolekretser er hentet fra Prognosesenteret som dataleverandør, og tilhørigheten kan årlig endres av kommunen. Dersom skole- og barnehagetilbud er av betydning for kjøpet, ber vi om at det rettes en særskilt henvendelse til kommunen/bydelsadministrasjonen for oppdatert informasjon.
Beskrivelse av tomt
Eiertomt på 183,3 kvm. Tomten er opparbeidet med belegningsstein ved inngangspartiet og på uteplassen. Uteplassen har platting med trekonstruksjoner, pergola og levegger. Oppgitt tomteareal er hentet fra digitalt eiendomskart fra Arendal kommune. Oppgitt/anslått areal kan derfor avvike fra nøyaktig areal.
Parkering
Parkering i garasje og på egen tomt, samt gjesteparkering i umiddelbar nærhet.
Vei, vann og avløp
Eiendommen har adkomst via offentlig vei. Eiendommen er tilknyttet kommunalt ledningsnett via private stikkledninger. Eier er selv ansvarlig for private stikkledninger til boligen.
Regulerings-og arealplaner
Eiendommen er regulert til konsentrert småhusbebyggelse i reguleringsplan Engene I (ID: 1502r2e4), vedtatt 30.08.2007, med tilhørende reguleringsbestemmelser.
Eiendommen omfattes av Kommuneplan Arendal (2023 - 2033) (ID: 42032022-8), vedtatt 27.04.2023. Arealbruken er i planen avsatt til boligbebyggelse, nåværende.
Eiendommen omfattes også av en kommunedelplan hvor arealbruken er avsatt til boligområde.
Utsnitt av plan med tilhørende bestemmelser kan fås ved henvendelse til megler.
Økonomi
Økonomi
Kommunale utgifter
Kommunale avgifter for 2025 var kr 26 130,-. Herav er:
Kommunale gebyrer (V/A, evt. feiegebyrer): kr 12 827,-
Eiendomsskatt: kr 6 076,-
Renovasjon: kr 7 226,-
Selger har avtalt Norgespris på strøm på eiendommen frem til ut 2026, og denne er pt på kr 50 øre inkl mva. Nettleie, avgifter og påslag fra kraftleverandøren kommer i tillegg. Denne avtalen vil følge eiendommen i den avtalte perioden. Les mer om Norgespris her: https://www.regjeringen.no/no/aktuelt/legg-fram-lov-om-norgespris-pa-straum-og-fjernvarme/id3102642/
Boligen har en årlig forsikringspremie på kr 7 667,- i JBF.
Velavgift til Løvetanntoppen vel er kr 250,- pr. år.
Boligen er tilknyttet Telenor og Altibox som leverandør av fiber.
Utgiftene er basert på nåværende eiers forbruk og avtaler.
Formuesverdi
Formuesverdi for 2024 var kr 797 864,- ifølge Skatteetaten. Beløpet forutsetter at eier bor fast i boligen (primærbolig).
Ved eventuell øvrig bruk av eiendommen (f.eks. fritidsbolig, pendlerbolig, utleieobjekt) var formuesverdien for 2024 kr 3 191 456,-.
Fra 2026 har Stortinget vedtatt en oppdatert modell for beregning av formuesverdi for primærbolig, så avvik kan forekomme.
For mer informasjon se skatteetaten.no
Eiendomsskatt
Eiendomsskatten utgjør kr. 6 076 pr år.
Omkostninger
3 990 000,00 Prisantydning
Omkostninger
99 750,00 Dokumentavgift til staten (2,5% av kjøpesum)
19 900,00 Gjensidige Boligkjøperpakke (valgfri)
545,00 Tinglysing panterettsdokument
545,00 Tinglysing skjøte
--------------------------------------------------------
120 740,00 Omkostninger totalt
--------------------------------------------------------
4 110 740,00 Totalpris inkl. omkostninger
--------------------------------------------------------
Totalpris inkl. omkostninger forutsetter kjøp til prisantydning.
Det tas forbehold om endringer i avgifter og gebyrer.
Betalingsbetingelser
Kjøpesum inkludert omkostninger, samt pantedokument tilknyttet eventuelt lån, skal være disponibelt hos megler 2 virkedager før overtagelsen.
Annen viktig informasjon
Annen viktig informasjon
Eier
Cathrin Hansen og Magnus Buland Hansen
Overtakelse
Etter nærmere avtale.
Velforening
Løvetanntoppen Vel
Boligselgerforsikring
Selger har i forbindelse med salget tegnet boligselgerforsikring levert av Gjensidige.
Boligselgerforsikringen dekker selgers ansvar etter avhendingsloven begrenset oppad til kr 14 millioner. Dersom kjøper oppdager forhold ved eiendommen som hen mener utgjør en mangel ved eiendommen, vil Gjensidige behandle reklamasjonen på vegne av selger. Forsikringsvilkår kan fås ved henvendelse til megler.
Vedlagt salgsoppgaven følger selgers egenerklæringsskjema og tilstandsrapport. Interessenter må sette seg inn i dokumentene før bud inngis.
Boligkjøperforsikring
Innen kontraktsmøtet må kjøper ta stilling til om det ønskes å bestille Boligkjøperpakken gjennom Gjensidige. I denne gunstige pakken er boligen ferdig forsikret og inkluderer rettshjelpsforsikring, også kalt Boligkjøperforsikring. Rettshjelpsforsikring gir trygghet og tilgang på profesjonell juridisk hjelp dersom det oppdages uventede feil eller mangler det første året etter overtagelse. Forsikringsselskapet behandler i så fall ethvert mangelskrav kjøper måtte ha overfor selger.
Boligkjøperpakken inkluderer bygningsforsikring for hus og hytte, innboforsikring, flytteforsikring og dobbel rentedekning - i situasjoner hvor kjøper ikke får solgt nåværende primærbolig.
Kjøper mottar ingen særskilt faktura for Boligkjøperpakken da kostnaden det første året legges til kjøpesummen for boligen. Det gjøres oppmerksom på Krogsveen mottar et honorar for denne formidlingen.
Produktark for Boligkjøperpakken ligger vedlagt i salgsoppgaven.
Dersom ikke boligkjøperpakke ønskes kan kun rettshjelpsforsikring, også kalt boligkjøperforsikring, tegnes særskilt via megler. Rettshjelpsforsikringen varer i 5 år fra overtagelse og leveres gjennom Gjensidige. Ta kontakt med megler for ytterligere informasjon.
Selskap og privatpersoner som driver med kjøp/salg/utvikling som ledd i egen næringsvirksomhet kan ikke tegne boligkjøperpakke eller rettshjelpsforsikring.
Budgivning
Forbrukerinformasjon om budgivning er vedlagt denne salgsoppgaven og er også på vår hjemmeside Krogsveen.no. Alle bud og budforhøyelser må inngis skriftlig. I tillegg må legitimasjon være fremlagt sammen med signatur fra budgiver.
Vi oppfordrer til å gi bud elektronisk via GI BUD-knappen på eiendommens hjemmeside på Krogsveen.no. Da vil samtlige vilkår bli oppfylt.
Eventuelle forhøyelser eller endringer av budet kan bekreftes pr SMS eller på e-post. Vi oppfordrer alltid til å kontakte megler pr. telefon i tillegg da forsinkelser i SMS og e-post kan forekomme.
For at budene skal kunne bli behandlet og videreformidlet skriftlig til alle involverte parter, må alle bud ha en tilstrekkelig lang akseptfrist, jf. eiendomsmeglingsforskriften § 6-3.
Selger må også skriftlig akseptere budet før aksept kan formidles til budgiver. Akseptfrist bør derfor være på minimum 30 minutter, og budforhøyelser må derfor skje i god tid før fristens utløp.
Bud i forbrukerforhold kan uansett ikke settes med kortere frist enn kl. 12.00 første virkedag etter siste annonserte visning. I tillegg kan ikke budet ha forbehold om at det skal holdes hemmelig ovenfor øvrige interessenter. Megler har iht lov om eiendomsmegling ikke anledning til å videreformidle disse budene, og de vil dermed heller ikke bli journalført.
Etter at eiendommen er solgt vil kjøper og selger få tilsendt budjournal. Øvrige budgivere kan få utlevert kopi av budjournalen i anonymisert form.
Hvitvaskingsreglene
I henhold til lov om hvitvasking og terrorfinansiering har megler plikt til å gjennomføre kontrolltiltak overfor kunder, herunder fullmektiger. Dette innebærer bl.a. å bekrefte kunders og reelle rettighetshaveres identitet på bakgrunn av fremvist gyldig legitimasjon eller på annen godkjent måte, samt å innhente opplysninger om kundeforholdets formål og tilsiktede art.
Dersom slike kundetiltak ikke kan gjennomføres, kan megler ikke etablere kundeforholdet eller utføre transaksjonen.
Hvis kjøper ikke bidrar til gjennomføring av kundekontrollen og dette fører til at transaksjonen blir forsinket eller ikke kan gjennomføres, vil dette ansees som mislighold av avtalen og gi selger rettigheter etter avhendingslova kapittel 5. I tilfeller der selger ikke bidrar til gjennomføring av løpende kundekontroll underveis i oppdraget, er det selger som misligholder sine forpliktelser etter avtalen og gi kjøper rettigheter etter avhendingslovens kapittel 4. Partene er selv ansvarlige for eventuelle kostnader og ansvar dette kan medføre. Eiendomsmegleren eller eiendomsmeglingsforetaket kan ikke holdes ansvarlig for de konsekvenser dette vil kunne få for partene eller andre som har interesser i eiendomshandelen.
Kjøper oppfordres til å innbetale kjøpesummen som ikke kommer fra låneinstitusjon i én samlet innbetaling fra egen konto i norsk bank. Megler har plikt til å melde fra til Økokrim om eiendomshandler som fremstår som mistenkelige. Melding sendes Økokrim uten at partene varsles.
Personopplysningsloven
I henhold til personopplysningsloven gjør vi oppmerksom på at interessenter kan bli registrert for videre oppfølging.
Lovanvendelse
Generelle bestemmelser
Salgsoppgaven er basert på de opplysningene selger har gitt til megler, den bygningssakyndiges tilstandsrapport, samt opplysninger innhentet fra kommunen, Kartverket og andre tilgjengelige kilder. Det er viktig at kjøper setter seg grundig inn i alle salgsdokumentene, herunder salgsoppgave, tilstandsrapport og selgers egenerklæring. Kjøper anses kjent med forhold som er tydelig beskrevet i salgsdokumentene, og slike forhold kan ikke påberopes som mangler. Dette gjelder uavhengig av om kjøper har lest dokumentene. Alle interessenter oppfordres til å undersøke eiendommen nøye, gjerne sammen med fagkyndig før bud inngis. Kjøper som velger å kjøpe usett kan ikke gjøre gjeldende som mangel noe han burde blitt kjent med ved undersøkelsen.
Dersom det er behov for avklaringer, anbefaler vi at interessenter rådfører seg med eiendomsmegler eller egne rådgivere før det legges inn bud.
En bolig som har blitt brukt i en viss tid, har vanligvis blitt utsatt for slitasje og skader kan ha oppstått. Slik bruksslitasje må kjøper regne med, og det kan avdekkes enkelte forhold etter overtakelse som nødvendiggjør utbedringer. Normal slitasje og skader som nødvendiggjør utbedring, er innenfor hva kjøper må forvente og vil ikke utgjøre en mangel.
Kjøper og selgers rettigheter og plikter reguleres av avtalen mellom partene, samt informasjonen som har vært tilgjengelig for kjøperen i forbindelse med handelen. Avtalen utfylles av avhendingsloven, og det gjelder ulike avtalevilkår avhengig av om kjøper er forbrukerkjøper eller ikke. Dette er nærmere beskrevet nedenfor.
På grunn av ulike avtalevilkår kan selger vurdere bud fra en som ikke er forbruker, ulikt fra en forbrukers bud. Dersom kjøper ikke er forbruker, er selger sitt mulige mangelsansvar begrenset fordi eiendommen selges "som den er". Selger kan ikke ta «som den er»- forbehold overfor en forbrukerkjøper. Selv et lavere bud fra en som ikke er forbruker kan foretrekkes fordi begrensningen i mulig mangelsansvar kan ha egenverdi for selger. Selger står fritt til å forkaste eller akseptere ethvert bud, og er for eksempel ikke forpliktet til å akseptere høyeste bud.
Budgiver skal i budskjema avgi egenerklæring om budgiver er forbruker eller næringsdrivende/ person som hovedsakelig handler som ledd i næringsvirksomhet. Budgivere får informasjon dersom andre bud er inngitt av en som ikke er forbruker.
Forbrukerkjøp - definisjon
Med forbrukerkjøp menes kjøp av eiendom når kjøperen er en fysisk person som ikke hovedsakelig handler som ledd i næringsvirksomhet.
Forbruker – avtalevilkår
Eiendommen har en mangel dersom den ikke er i samsvar med kravene som følger av avtalen, eller det foreligger brudd på bestemmelsene i avhendingsloven §§ 3-2 til 3-8. Hvis eiendommen ikke er i samsvar med det kjøperen må kunne forvente ut ifra alder, type og synlig tilstand, kan det være grunnlag for mangelskrav. Det samme gjelder hvis det er holdt tilbake eller gitt uriktige opplysninger om eiendommen. Dette gjelder likevel bare dersom man kan gå ut ifra at det virket inn på avtalen at opplysningen ikke ble gitt eller at mangelskravet ikke blir rettet i tide på en tydelig måte.
Boligen kan ha en mangel etter avhendingsloven § 3-3 andre ledd, dersom det er avvik mellom opplyst og faktisk innvendig areal, forutsatt at avviket er på 2% eller mer og minimum 1 kvm.
Ved beregning av et eventuelt prisavslag eller erstatning må kjøper selv dekke tap/kostnader opptil et beløp på kr 10 000 (egenandel).
Ikke-forbruker (næringsdrivende) – definisjon
Hvis kjøper er en juridisk person, eller en fysisk person som hovedsakelig handler som ledd i næringsvirksomhet, vil kjøpet ikke anses som et forbrukerkjøp.
Ikke-forbruker – avtalevilkår
Eiendommen har en mangel dersom den ikke er i samsvar med kravene som følger av avtalen.
Eiendommen selges «som den er», og selgers ansvar utover det konkret avtalte er da begrenset etter avhendingsloven § 3-9, første ledd andre setning.
Avhendingsloven § 3-3 andre ledd fravikes, og hvorvidt boligens arealsvikt utgjør en mangel vurderes etter avhendingsloven § 3-8.
Informasjon om kjøpers undersøkelsesplikt, herunder oppfordringen om å undersøke eiendommen nøye, gjelder også for kjøpere som ikke anses som forbrukere.
Det forutsettes at hjemmel overføres til kjøper. Hvis kjøper ikke ønsker hjemmelsoverføring av eiendommen, må det tas forbehold om dette i budet.
Meglers vederlag
Meglers vederlag betales av selger og er avtalt til:
Vederlag: 1,30 % av salgssummen inkl. eventuell fellesgjeld. Minimumsprovisjon er kr 50 000,00
Vederlag
Kontroll av hjemmel og heftelser kr 2 900,00
Markedsføringspakke kr 23 900,00
Oppgjør kr 7 500,00
Tilrettelegging kr 5 000,00
Visninger pr stk / Overtagelse kr 900,00
Utlegg
Innhenting av offentlig opplysninger Arendal kommune kr 2 500,00
Tinglysing sikring kr 545,00
Andre utgifter
Foto kr 4 000,00
Opplysninger om oppdraget
Oppdragsnummer 47-0166/25
Eiendomsmegler Krogsveen AS, avd. Arendal
Kystveien 14, 4841, ARENDAL
950 007 613
Oppdragets KR-kode KR47.25166
Dato
Sist oppdatert: 28. april 2026 kl. 15:46
Dokumenter
Dokumenter
PDF – 1012 KB
PDF – 398 KB
PDF – 166 KB
PDF – 1 MB
PDF – 1 MB
PDF – 122 KB
PDF – 312 KB
PDF – 29 KB
PDF – 127 KB
PDF – 392 KB
Område
Legg til steder som er viktige for deg
Visning
For å delta på visning, ber vi om at du melder deg på. Da sikrer vi at du får nødvendig informasjon og at det er satt av tilstrekkelig med tid. Kontakt megler dersom annet tidspunkt ønskes. Husk å lese salgsoppgaven før visningen, så du stiller forberedt.
Ønsker du kun å bli holdt orientert, kan du fra eiendommens hjemmeside få varsel om solgtpris, eller kontakte megler.
Lurer du på noe?
Unngå doble boligrenter
Vi tilbyr gunstig forsikring.
Vurderer du utleie?
Få et tilbud fra Utleie KrogsveenHva koster lånet?
Sjekk estimert lånekostnadVil du varsles om lignende boliger?
Ved å lagre ditt boligsøk hos oss får du beskjed når vi har en bolig som ligner denne, før den legges ut på markedet!








































