Reveskogen 12B
4 490 000 kr
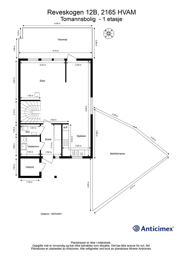
118 m²
3 soverom
Solgt

Tomteråsen - Tiltalende og romslig tomannsbolig fra 2020 med flott hage og skjermet beliggenhet i skogkanten!
Prisantydning
4 490 000 krOmkostninger
133 240 krTotalpris
4 623 240 kr
Pris
Bruksareal
135 m²BRA-I (internt bruksareal)
118 m²BRA-E (eksternt bruksareal)
17 m²TBA (terrasse-balkongareal)
27 m²
Areal
Etasje
2Byggeår
2020Soverom
3 soveromBad
1 badTomteareal
444 m² (eiet)Type
Halvpart vertikaldelt boligEierform
EietFasiliteter
Garasje/P-plass og Balkong/TerrasseEnergimerke
Oransje B
Nøkkelinfo
Unngå doble boligrenter
Vi tilbyr gunstig forsikring.
Vurderer du utleie?
Få et tilbud fra Utleie KrogsveenHva koster lånet?
Sjekk estimert lånekostnadBeskrivelse
Kort om eiendommen
Velkommen til Reveskogen 12B - Lekker og gjennomført bolig over 2 plan med pent opparbeidet uteområde og skjermet beliggenhet ved skogkanten!
Her bor du i et rolig og barnevennlig område med naturen rett utenfor døren - skog, mark og turstier innbyr til et aktivt friluftsliv året rundt. Området har et godt utvalg av servicetilbud, med to dagligvarebutikker, barneskoler, barnehager og en internasjonal skole i nærheten. Det er også svært gode kollektivforbindelser med hyppige bussavganger. Jessheim, Kløfta og Årnes nås på ca. 15 minutter med bil, mens Gardermoen kun ligger 25 minutter unna.
HØYDEPUNKTER:
- Pent opparbeidet hage
- Skjermet beliggenhet mot skogen
- 3 soverom
- Bad, WC og vaskerom
- Garasjeparkering
- Svært barnevennlig
- Sigdal kjøkken
- Gode solforhold
- Blindvei
Område
Legg til steder som er viktige for deg
På flyttefot? Tenk kjøp og salg samtidig.
Få din egen rådgiver gjennom hele kjøps- og salgsprosessen. Det starter med en verdivurdering.
Unngå doble boligrenter
Vi tilbyr gunstig forsikring.
Vurderer du utleie?
Få et tilbud fra Utleie KrogsveenHva koster lånet?
Sjekk estimert lånekostnadVil du varsles om lignende boliger?
Ved å lagre ditt boligsøk hos oss får du beskjed når vi har en bolig som ligner denne, før den legges ut på markedet!

