Skanseveien 2L
8 480 000 kr
135 m²
3 soverom
Solgt

Presenteres av
Robin LauritzenHøybråten
Strøken og gjennomgående tomannsbolig fra 2022 | Garasje m/ EL | Kun TG0/1 |Høy standard | Barnevennlig |To varmepumper
Prisantydning
8 480 000 krOmkostninger
19 252 krTotalpris
8 499 252 kr
Pris
Bruksareal
152 m²BRA-I (internt bruksareal)
135 m²BRA-E (eksternt bruksareal)
17 m²TBA (terrasse-balkongareal)
30,3 m²
Areal
Etasje
3Byggeår
2022Soverom
3 soveromBad
3 badType
Halvpart vertikaldelt boligEierform
AndelFasiliteter
Garasje/P-plass og Balkong/TerrasseFellesutgifter
2 700 krEnergimerke
Oransje B
Nøkkelinfo
Unngå doble boligrenter
Vi tilbyr gunstig forsikring.
Vurderer du utleie?
Få et tilbud fra Utleie KrogsveenHva koster lånet?
Sjekk estimert lånekostnadBeskrivelse
Kort om eiendommen
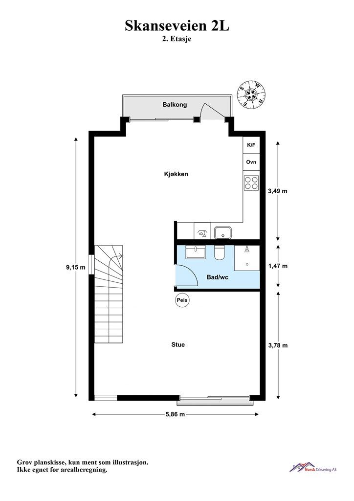
Robin Rastad Lauritzen v/ Krogsveen har gleden av å presentere Skanseveien 2L! En gjennomgående og feilfri halvpart av vertikaldelt tomannsbolig med stor hage, terrasse på 24 kvm, to balkonger, praktisk planløsning med bad i hver etasje og barnevennlig beliggenhet med alt du har behov for i hverdagen.
Kvaliteter verdt å nevne:
Installert 2 varmepumper i 2023
3 soverom, 3 bad og 2 stuer
Barnevennlig beliggenhet
Solrik hage med sydvestvendt terrasse
Egen garasje m/ EL + utvendig biloppstillingsplass
Entré med gulvvarme
Kvik-kjøkken fra 2022
Peis
Sokner til Høybråten skole
Ingen tilstandsgrader under 0/1
Hvitpigmentert, enstavs eikeparkett i alle etasjer
Installert innvendig solskjerming i 2022
Fasade beiset i 2024
Velkommen til visning!
Område
Legg til steder som er viktige for deg
På flyttefot? Tenk kjøp og salg samtidig.
Få din egen rådgiver gjennom hele kjøps- og salgsprosessen. Det starter med en verdivurdering.
Unngå doble boligrenter
Vi tilbyr gunstig forsikring.
Vurderer du utleie?
Få et tilbud fra Utleie KrogsveenHva koster lånet?
Sjekk estimert lånekostnadVil du varsles om lignende boliger?
Ved å lagre ditt boligsøk hos oss får du beskjed når vi har en bolig som ligner denne, før den legges ut på markedet!
På flyttefot? Slik gjør vi det enklere for deg
Skreddersydd flyttepakke
Vi fikser håndverkere, vask, pakking, lagring og transport, og legger ut for utgiftene underveis.
Hjelp med både kjøp og salg
Hos oss har du din egen rådgiver gjennom hele kjøps- og salgsprosessen.
Hjelp til finansiering
Vårt samarbeid med BN Bank sikrer deg rask og løsningsorientert hjelp, til konkurransedyktige betingelser.

