Maurveien 77D
3 325 000 kr
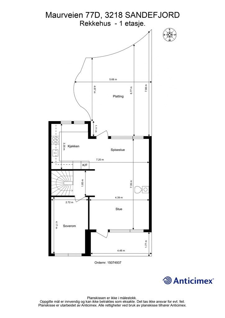
117 m²
3 soverom
Solgt

Østerøya/Gjekstad
BUD INNKOMMET - Nyoppusset enderekkehus (nytt bad-kjøkken-samtlige oppholdsrom) med gjennomgående høy standard - Flott beliggenhet
Prisantydning
3 325 000 krAndel fellesgjeld
503 405 krOmkostninger
11 040 krTotalpris
3 839 445 kr
Pris
Bruksareal
139 m²BRA-I (internt bruksareal)
117 m²BRA-E (eksternt bruksareal)
22 m²TBA (terrasse-balkongareal)
39 m²
Areal
Byggeår
1981Soverom
3 soveromBad
1 badType
RekkehusEierform
AndelFasiliteter
Garasje/P-plass og Balkong/TerrasseFellesutgifter
7 360 krEnergimerke
Rød F
Nøkkelinfo
Unngå doble boligrenter
Vi tilbyr gunstig forsikring.
Vurderer du utleie?
Få et tilbud fra Utleie KrogsveenHva koster lånet?
Sjekk estimert lånekostnadBeskrivelse
Kort om eiendommen
Barnevennlig beliggende ende-rekkehus med flotte sol og utsiktsforhold.
Her kan du flytte rett inn i et nyoppusset bolig der alle oppholdsrom (kjøkken-stue-ganger-soverom-bad) er nyoppusset i 2024 med en solid fin standard. Samtlige arbeider er utført av fagkyndige.
Meget delikat innredet kjøkken med helintegrerte hvitevarer, samt rikelig med både benkeplass og skapplass. Megler er imponert over det romslige badet, samt den stilfulle innredningen.
Nåværende eier ha bodd i boligen siden byggeår (1981) og har satt pris på den fantastiske beliggenheten, samt det gode naboforholdet. Dette rekkehuset har en særdeles romlig og usjenert terrasse.
Boligen fremstår som meget godt vedlikeholdt og både tak, kledning (+etterisolering) og vinduer er skiftet i senere tid.
Område
Legg til steder som er viktige for deg
På flyttefot? Tenk kjøp og salg samtidig.
Få din egen rådgiver gjennom hele kjøps- og salgsprosessen. Det starter med en verdivurdering.
Unngå doble boligrenter
Vi tilbyr gunstig forsikring.
Vurderer du utleie?
Få et tilbud fra Utleie KrogsveenHva koster lånet?
Sjekk estimert lånekostnadVil du varsles om lignende boliger?
Ved å lagre ditt boligsøk hos oss får du beskjed når vi har en bolig som ligner denne, før den legges ut på markedet!

