Langenga 20
2 350 000 kr
38 m²
1 soverom
Solgt

Presenteres av
Elias KarlsenKrillås
Moderne 2-roms fra 2023 m/ vannbåren gulvvarme og heis | Felles takterrasse | Mulighet for p-plass | IN-ordning
Prisantydning
2 350 000 krAndel fellesgjeld
1 395 000 krOmkostninger
19 295 krTotalpris
3 764 295 kr
Pris
Bruksareal
41 m²BRA-I (internt bruksareal)
38 m²BRA-E (eksternt bruksareal)
3 m²TBA (terrasse-balkongareal)
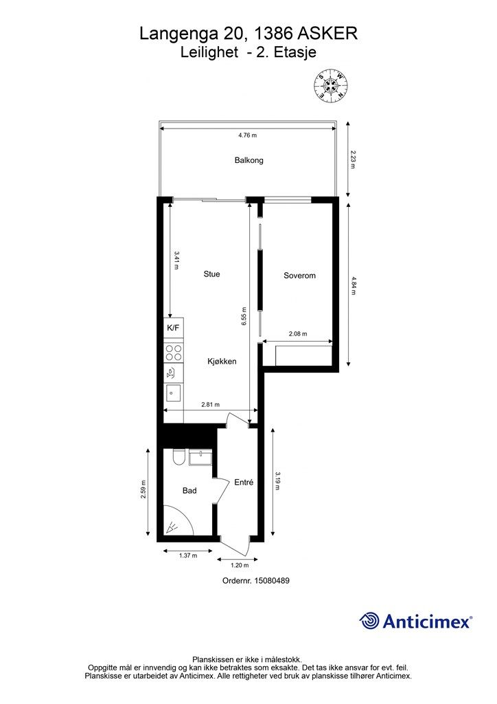
11 m²
Areal
Etasje
2Byggeår
2023Soverom
1 soveromBad
1 badType
AndelsleilighetEierform
AndelFasiliteter
Heis og Balkong/TerrasseFellesutgifter
7 978,5 krEnergimerke
Gul A
Nøkkelinfo
Unngå doble boligrenter
Vi tilbyr gunstig forsikring.
Vurderer du utleie?
Få et tilbud fra Utleie KrogsveenHva koster lånet?
Sjekk estimert lånekostnadBeskrivelse
Kort om eiendommen
Velkommen til Langenga 20! En arealeffektiv og moderne andelsleilighet fra 2023 med heisadkomst og balkong.
I et veletablert nabolag i Asker bor du med nærhet til både rolige omgivelser og servicetilbud. Leiligheten fra 2023 har god standard med parkett og et moderne kjøkken med integrerte hvitevarer. Vannbåren gulvvarme i alle oppholdsrom gir god komfort, og fra stuen er det utgang til en balkong på 11 m². Boligen er et ypperlig førstegangskjøp med mulighet for individuell nedbetaling av fellesgjeld (IN-ordning).
Kort fortalt:
Bygg fra 2023 med heis
Effektiv planløsning og balansert ventilasjon
Felles takterrasse og sykkelbod
Praktisk bod på 3 m² i underetasjen
Kort vei til buss, butikk og Asker sentrum
Velkommen til visning!
Område
Legg til steder som er viktige for deg
På flyttefot? Tenk kjøp og salg samtidig.
Få din egen rådgiver gjennom hele kjøps- og salgsprosessen. Det starter med en verdivurdering.
Unngå doble boligrenter
Vi tilbyr gunstig forsikring.
Vurderer du utleie?
Få et tilbud fra Utleie KrogsveenHva koster lånet?
Sjekk estimert lånekostnadVil du varsles om lignende boliger?
Ved å lagre ditt boligsøk hos oss får du beskjed når vi har en bolig som ligner denne, før den legges ut på markedet!
På flyttefot? Slik gjør vi det enklere for deg
Skreddersydd flyttepakke
Vi fikser håndverkere, vask, pakking, lagring og transport, og legger ut for utgiftene underveis.
Hjelp med både kjøp og salg
Hos oss har du din egen rådgiver gjennom hele kjøps- og salgsprosessen.
Hjelp til finansiering
Vårt samarbeid med BN Bank sikrer deg rask og løsningsorientert hjelp, til konkurransedyktige betingelser.



































