Saturnveien 44
11 500 000 kr
188 m²
3 soverom
Solgt

Presenteres av
Jan Egil RøttingsnesInnholdsrik familiebolig med svært barnevennlig beliggenhet | 3 sov | 2 bad | Stor terrasse + idyllisk hage | Garasje
Prisantydning
11 500 000 krOmkostninger
308 490 krTotalpris
11 808 490 kr
Pris
Bruksareal
205 m²BRA-I (internt bruksareal)
188 m²BRA-E (eksternt bruksareal)
17 m²TBA (terrasse-balkongareal)
51 m²
Areal
Etasje
1Byggeår
1948Soverom
3 soveromBad
2 badType
Halvpart horisontaldelt boligEierform
EierseksjonFasiliteter
Garasje/P-plass og Balkong/TerrasseFellesutgifter
2 751 krEnergimerke
Oransje F
Nøkkelinfo
Unngå doble boligrenter
Vi tilbyr gunstig forsikring.
Vurderer du utleie?
Få et tilbud fra Utleie KrogsveenHva koster lånet?
Sjekk estimert lånekostnadBeskrivelse
Kort om eiendommen
Velkommen til Saturnveien 44!
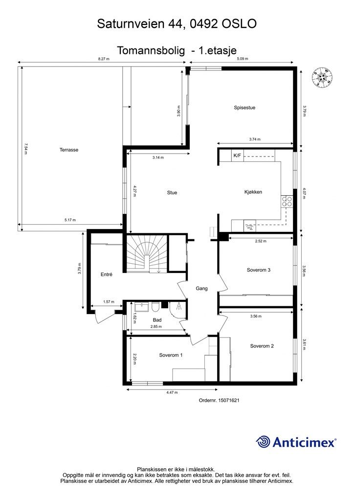
Romslig og innholdsrik halvpart av tomannsbolig over 1. etasje og kjelleretasje, med barnevennlig beliggenhet i et attraktivt og rolig boligområde. Boligen har en meget god planløsning med tre romslige soverom på samme plan, to bad, flere oppholdsrom og et pent og lyst kjøkken fra 2011. Vinduer og terrassedør i 1. etasje ble også byttet i 2011. Fra spisestuen har du utgang til en stor og solrik terrasse på hele 51 kvm, samt en pent opparbeidet og idyllisk hage som kan by på lek og morro for de minste. Hagen vender mot grøntområde. Boligen har en integrert garasje og mye lagringsplass i kjelleren.
Her bor du i rolige og landlige omgivelser med nærhet til offentlig kommunikasjon, badeplasser, skiløyper, skoler, dagligvarebutikker, marka etc.
Velkomm
Område
Legg til steder som er viktige for deg
På flyttefot? Tenk kjøp og salg samtidig.
Få din egen rådgiver gjennom hele kjøps- og salgsprosessen. Det starter med en verdivurdering.
Unngå doble boligrenter
Vi tilbyr gunstig forsikring.
Vurderer du utleie?
Få et tilbud fra Utleie KrogsveenHva koster lånet?
Sjekk estimert lånekostnadVil du varsles om lignende boliger?
Ved å lagre ditt boligsøk hos oss får du beskjed når vi har en bolig som ligner denne, før den legges ut på markedet!
På flyttefot? Slik gjør vi det enklere for deg
Skreddersydd flyttepakke
Vi fikser håndverkere, vask, pakking, lagring og transport, og legger ut for utgiftene underveis.
Hjelp med både kjøp og salg
Hos oss har du din egen rådgiver gjennom hele kjøps- og salgsprosessen.
Hjelp til finansiering
Vårt samarbeid med BN Bank sikrer deg rask og løsningsorientert hjelp, til konkurransedyktige betingelser.

