Damstubben 12
6 850 000 kr
153 m²
6 soverom
Komplett salgsoppgave

Gullaug
Innbydende familiebolig i et barnevennlig område. 2 bad. Solrikt med suveren fjordutsikt. Romslig hage. Endebeliggenhet.
Prisantydning
6 850 000 krOmkostninger
192 240 krTotalpris
7 042 240 kr
Pris
Bruksareal
153 m²BRA-I (internt bruksareal)
153 m²TBA (terrasse-balkongareal)
42 m²
Areal
Etasje
3Byggeår
1996Soverom
6 soveromBad
2 badTomteareal
575 m² (eiet)Type
Enebolig - FrittliggendeEierform
EietFasiliteter
Garasje/P-plass og Balkong/TerrasseÅrlig velavgift
500 krEnergimerke
Gul D
Nøkkelinfo
Unngå doble boligrenter
Vi tilbyr gunstig forsikring.
Vurderer du utleie?
Få et tilbud fra Utleie KrogsveenHva koster lånet?
Sjekk estimert lånekostnadBeskrivelse
Kort om eiendommen
Innhold og byggemåte
Innhold og byggemåte
Eiendommen
Damstubben 12, 3427 GULLAUG
Kommunenummer 3312, gårdsnummer 114, bruksnummer 34, ideell andel 1/1
Innhold
BRA-i (internt bruksareal)
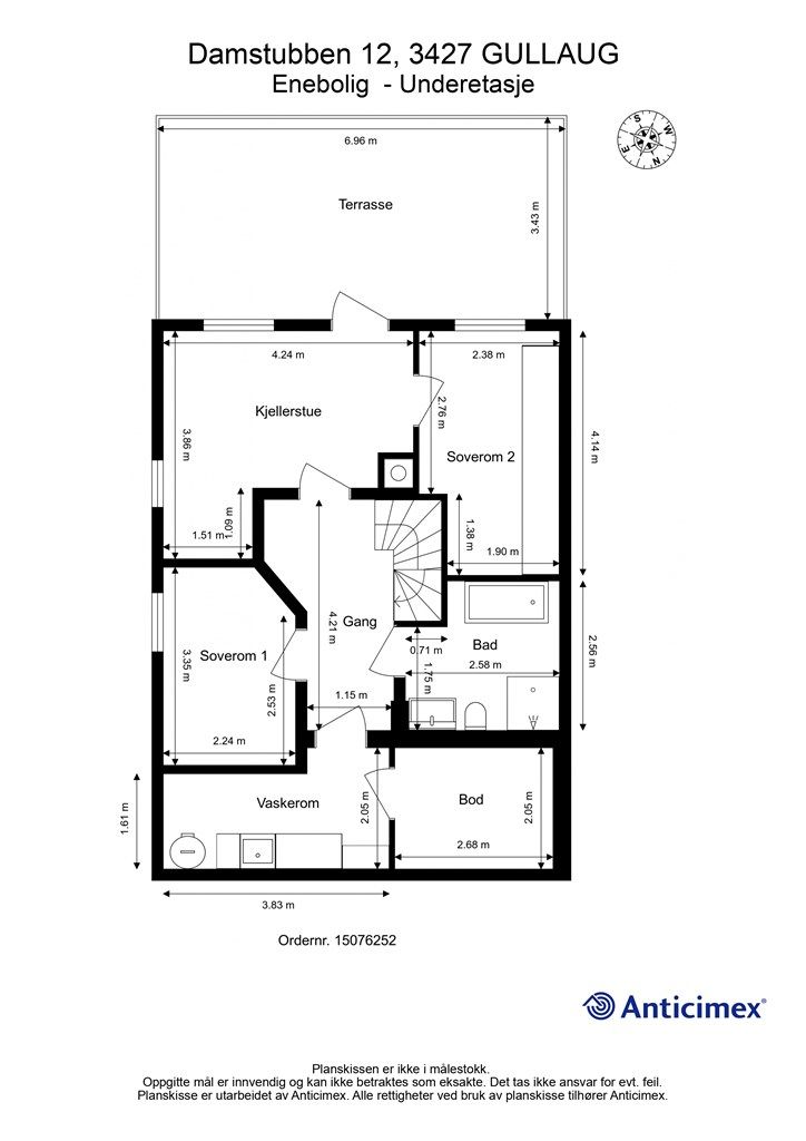
Underetasje:
61 kvm: Gang, bad, vaskerom, bod, kjellerstue/soverom og 2 soverom.
1. etasje:
65 kvm: Stue, spisestue, kjøkken, bad, soverom og entré.
2. etasje:
27 kvm: Gang og 2 soverom.
TBA (terrasse- og balkongareal)
Underetasje:
24 kvm: Terrasse.
1. etasje:
18 kvm: Veranda og overbygget inngangsparti.
I tillegg til de oppmålte arealene disponerer boligen halvparten av en dobbelgarasje på ca. 38 kvm, som deles med naboen i Damstubben 10. Boligens andel utgjør ca. 19 kvm. Dette arealet er ikke tatt med i den totale arealberegningen, ettersom garasjen ikke er fysisk oppdelt.
De oppgitte arealer er hentet fra rapport utført av Sverre Alexander Enersen. Arealene er beregnet og rom er definert etter dagens faktiske bruk, uavhengig av hva som er godkjent av bygningsmyndighetene.
Byggemåte
Bygningen er iht. tilstandsrapport, oppført med støpt gulv mot grunn og grunnmur i betong. Bærende konstruksjoner over grunnmur og etasjeskiller i trekonstruksjoner. Yttervegger forblendet med liggende trekledning. Tak med saltaksform tekket med takstein. Nytt komplett takrennesystem, komplett vindskier og side- samt toppbord med beslag i 2024. Boligen har profilert ytterdør i tre med 2-lags glassfelt fra byggeår. Terrassedører i tre med 2-lags glassfelt fra byggeår. Vinduer med karmer av tre og 2-lags glass fra byggeår. Les forøvrig mer om byggemåte og den tekniske tilstanden i rapporten.
Tilstandsrapporten og selgers egenerklæring er vedlagt salgsoppgaven. Interessenter må sette seg inn i dokumentene før bud inngis.
Standard
Fra gårdsplassen er det trappeadkomst til boligens overbygde inngangsparti på ca. 2 kvm i 1. etasje.
1. etasje
Stue/spisestue: Stue med sofaområde og spiseplass. Åpen løsning mellom spisestuen og kjøkkenet. Godt med vindusflater som gir mye naturlig lysinnslipp og fjordutsikt. Luft-til-luft varmepumpe. Frittstående peisovn fra 2014 med fliser på gulv foran. Trappegang til 2. etasje og underetasje. 3-stavs parkett på gulv, malte vegger og malt himling. Utgang til sydvestvendt altan (se punkt om ferdigattest vedr. altan) på ca. 16 kvm med markise, utvendig belysning og strømuttak. Sol fra morgen til ca. kl. 21.30 (midtsommerstid) iflg. selger. Suveren utsikt over fjorden fra høyden. Videre er det trappeadkomst ned til hageområde og garasje.
Kjøkken: Moderne og stilrent Rotpunkt-kjøkken fra 2022 med helintegrerte hvitevarer. Underskap og høyskap. Benkeplater av stein med svært god benkeplass. Videre er kjøkkenet utstyrt med planlimt platetopp med integrert ventilator, underlimt
oppvaskkum av kompositt, oppvaskmaskin, vinskap, stekeovn i høyskap med opplegg for å sette inn ytterligere en stekeovn over, og integrert kjøleskap. Opplegg for vinskap. 3-stavs parkett på gulv, malte vegger og malt himling.
Bad: Badet ble ombygget i 2014. Servant over servantskap i hvit og glatt utførelse. Speil med integrert lysarmatur over servant. Videre er badet utstyrt med vegghengt toalett og dusjhjørne med foldedører av glass. Gulvvarme. Fliser på gulv, fliser på vegger og malt himling.
Soverom: Rommet er benyttet som tv-stue. Dobbelt garderobeskap malt i veggfargen. 3-stavs parkett på gulv, malte vegger og malt himling.
Entré: Vegghengte knagger og hyller. Gulvvarme. Fliser på gulv, malte vegger og malt himling.
2. etasje
Gang: Trappegang til 1. etasje. Furugulv (slipt i 2021), panel på vegger og panel i himling. Tilgang til kneloft.
Soverom: Rommet er av god størrelse. Furugulv (slipt i 2021), panel på vegger og panel i himling.
Soverom: Flott fjordutsikt fra vinduet. Furugulv (slipt i 2021), panel på vegger og panel i himling.
Underetasje
Gang: Trappegang til 1. etasje, spilevegger i trapp. Gulvvarme. 3-stavs parkett på gulv, malt panel samt malte vegger og malt himling.
Bad: Badet ble oppgradert i 2014 med nye overflater og innredning. Servant over servantskap i hvit og glatt utførelse. Speil med integrert lysarmatur over servant. Videre er badet utstyrt med gulvstående toalett, frittstående badekar med hånddusj og dusjhjørne med foldedører av glass. Downlights i tak og gulvvarme. Fliser på gulv, fliser på vegger og malt himling.
Vaskerom: Vaskerommet ble oppgradert med nye overflater og innredning i 2014 samt 2019. Skapinnredning med underskap i hvit og glatt utførelse. Nedfelt utslagsvask i laminert benkeplate. Vegghengte tørkesnorer- og stativ. Opplegg for vaskemaskin og tørketrommel. Gulvvarme. Fliser på gulv, malte vegger og malt himling. Rommet er opprinnelig byggemeldt som bod. Tilgang til bod.
Kjellerstue/soverom: Rommet er benyttet som soverom. Gulvvarme. 3-stavs parkett på gulv, malte vegger og malt himling. Tilgang til soverom, som er benyttet som omkledningsrom. Utgang til delvis overbygget sydvestvendt terrasse på ca. 24 kvm med utvendig belysning og strømuttak. Det er etablert et praktisk utekjøkken med nedfelt oppvaskkum i benkeplate av granitt på terrassen. Videre er det direkte adkomst til romslig hageområde med god boltreplass.
Soverom: Rommet er benyttet som omkledningsrom. Romslig og åpen garderobeløsning med hyller, klesskinner samt skuffer i hvit og glatt utførelse. Gulvvarme. 3-stavs parkett på gulv, malte vegger og malt himling.
Soverom: Gulvvarme. 3-stavs parkett på gulv, malte vegger og malt himling.
Generelt om boligen: 287 liters varmtvannsbereder fra 2014, plassert på vaskerom. Villavent avtrekksvifte for bad og vaskerom er fra 2022, plassert på kneloft i 2. etasje. Sikringsskap med automatsikringer og overspenningsvern, plassert i entré. Selger opplyser om at det er lagt opp røropplegg for bad i 2. etasje.
Selger har fått utarbeidet en tilstandsrapport for eiendommen, dvs. en teknisk gjennomgang av boligen hvor eventuelle avvik, risiko for kjøper og prisoverslag for hva som bør gjøres av oppgradering, er skissert. Se særskilt TGIU (tilstandsgrad ikke undersøkt), samt TG2 og TG3 som viser hva som er avvik fra boligens normale slitasje, alder og type, eller som bør/må utbedres. Rapporten og selgers egenerklæring er en del av salgsoppgaven og må leses nøye før bud inngis. Kjøper overtar ansvaret for de opplysninger som fremkommer av salgsdokumentasjonen, og kan ikke gjøre gjeldende som mangel noe som burde vært kjent eller som ikke kan anses å ha betydning for avtalen.
I rapporten fremkommer det som takstmannen mener kjøper må være særskilt oppmerksom på, dette gjelder blant annet (se utfyllende tekst i rapporten):
Følgende kontrollpunkter/forhold har blitt tildelt TG2:
- Bad (1. etasje): Manglende drenering fra sisterne og badet er i hovedsak bygget med egeninnsats samt ikke fremlagt dokumentasjon på faglig god utførelse.
- Bad (underetasje): Usikker restlevetid på vannrør, usikker restlevetid på tettesjikt, uoversiktlig bruk av slukmansjett samt tettesjikt (kan ikke verifisere om løsningen er fullgod og sikker mot lekkasjer), for lite nivåforskjell på gulv til sluk, gulv utenfor dusjsone er tilnærmet flatt, oppkant ved terskel (kan ikke verifisere om membran har tilsvarende oppkant bak terskellist), vurdert til at lekkasjevann fra servant vil kunne nå døråpning før sluk, lekkasjesikkerheten kan ikke verifiseres og usikker restlevetid på avløpsrør.
- Vaskerom: Usikker restlevetid på vannrør, betydelig bomlyd under enkelte gulvfliser, kan ikke verifisere om det benyttet tilstrekkelig tettesjikt på rommet gulv-/veggflater og usikker restlevetid på avløpsrør.
- Kjøkken: Kun kullfilter (ikke separat avtrekk fra rommet), usikker restlevetid på vannrør, usikker restlevetid på avløpsrør og manglende komfyrvakt.
- Rom under terreng (underetasje): Konstruksjonen har en oppbygging som etter erfaring medfører en forhøyet risiko for kondens-/fuktproblematikk og dørblad til innerdør ved bod, vaskerom samt soverom har kontakt med terskel/karm.
- Loft (innredet/2. etasje): Lukket konstruksjon (ukjent konstruksjonsoppbygging) og dørblad til innerdør ved soverom har kontakt med terskel/karm.
- Innvendige trapper: Manglende håndløper/rekkverk på begge sider og normal bruksslitasje.
- Etasjeskiller (2. etasje): Skjevhetsmåling - forskjell på ca. 20 mm på soverom 2.
- Tekniske anlegg, VVS anlegg: Usikker restlevetid på vannrør av kobber og usikker restlevetid på avløpsrør.
- Yttervegger inkl. fasader og konstruksjon: Manglende beslag på vannbord til vinduer samt dører og belistning samt kledning er montert med liten eller ingen glippe ned mot vannbordet.
- Dører og vinduer: Vinduer bærer preg av alder samt slitasje, ytterdør samt terrassedører har aldringsslitasje/værslitasje og terrassedør har kontakt med terskel/karm.
- Yttertak: Symptomer på alder samt slitasje på yttertaktekking og kun montert snøfangerutstyr på deler av taket.
- Altan (1. etasje): For lav rekkverkshøyde og normal bruksslitasje.
- Utvendige trapper: Manglende rekkverk.
- Drenering: Stedvis lite terrengfall vekk fra grunnmur, deler av terrengfall kan ikke undersøkes på tilstrekkelig måte (pga. terrasse), grunnmuren utvendige fuktsperre er ikke avsluttet med beslag/topplist og drenering pga. alder.
- Stikkledninger og tanker: Vann- og avløpsledninger pga. alder.
- Frittstående byggverk (garasje): Tildelt tilstandsgraden ut i fra en helhetsvurdering pga. det kun er foretatt en forenklet og overordnet vurdering av tilstanden med relativt høy slitasjegrad, råteskader i garasjeport, vesentlige ujevnheter samt sprekker i asfalt, og betydelige skader i drensrenne foran garasjen, se rapport for nærmere detaljer.
Følgende kontrollpunkter/forhold har blitt tildelt TG3:
- Forstøtningsmurer: Store sprekker og skjevsetninger på forstøtningsmur i betong ved sydøstsiden av boligen.
Følgende kontrollpunkter/forhold har blitt tildelt TGIU (tilstandsgrad ikke undersøkt):
- Bad (underetasje): Ikke utført demontering av downlights eller inspisert bakenforliggende konstruksjon.
- Vaskerom: Ikke praktisk mulig å gjennomføre hulltaking samt fuktmåling pga. rommets utforming, utført overflatesøk med fuktindikator og fuktmåling i utlektet kjellervegg - ikke påvist indikasjoner som tyder på fuktskader.
- Radon: Selger opplyser om at det er foretatt måling av radon med verdier innenfor statens anbefalte grenseverdi, det er ikke fremlagt dokumentasjon på dette.
- Terrasser/platting på terreng (underetasje): Fundamentene var ikke tilgjengelig for undersøkelser.
Det anbefales ytterligere undersøkelser av disse punktene.
Se vedlagt tilstandsrapport for supplerende informasjon vedrørende boligens tilstand.
Løsøre og tilbehør
Integrerte hvitevarer på kjøkkenet medfølger i handelen, dette gjelder platetopp med nedfelt ventilator, oppvaskmaskin, stekeovn og kjøleskap.
Hjemmelaget smarthusløsning medfølger ikke, det opplyses om at alt av "smart"-pærer og gulvvarme etc. kan styres med vanlige brytere.
Videre vises det til liste fra Norges Eiendomsmeglerforbund angående løsøre og tilbehør. Produkter og installasjoner som medfølger overdras uten noen form for garantier, utover eventuell gjenværende leverandørgaranti.
Oppvarming
Peisovn og luft-til-luft varmepumpe i stue. Gulvvarme på begge bad, entré og alle oppholdsrom i underetasjen. Videre er boligen basert på elektrisk oppvarming ved evt. panelovner.
Det har blitt foretatt en kontroll av pipe og ildsted i 2020, utført av Drammensregionens brannvesen IKS. Følgende bemerkninger ble konstatert under tilsynet: Avdekket at pakning mellom røykrør og røykrørsinnføringen er dårlig og håndslukkingsapparat er defekt (gammelt). Selger anfører at håndslukkingsapparatet senere er skiftet. Kjøper overtar alt ansvar og risiko for dette videre.
Dersom det ikke er vegg- eller fastmonterte varmekilder i rom ved visning, følger dette heller ikke med.
Ferdigattest/brukstillatelse
Det foreligger godkjente byggetegninger for oppføring av boligen datert 19.05.1992. Tiltaket ble ikke avsluttet med ferdigattest, men det ble gitt midlertidig brukstillatelse 11.12.1996.
Det utstedes ikke lenger ferdigattest for tiltak omsøkt før 1998, jf. plan- og bygningsloven § 21-10, og kommunen krever heller ikke ferdigattest for slike tiltak. Bestemmelsen innebærer ikke at tiltak med manglende søknad blir lovlige, men at man ikke trenger å avslutte gamle byggesaker.
Det foreligger godkjent søknad med tilhørende tegninger for innredning av loftsetasjen, endring av takvinkel og endring av fasade, datert
11.12.25. Saken omhandler opprydding og ettergodkjennelse av tiltak utført allerede ved husets oppføring. Ingen nyere byggearbeider er utført i denne anledning. Ferdigattest er datert 21.01.2026.
Det er godkjente byggetegninger for oppføring av garasje datert 22.08.1997, tiltaket ble avsluttet med ferdigattest datert 17.02.1999.
Vaskerom i underetasjen er opprinnelig byggemeldt som sportsbod jf. godkjente byggetegninger. Innredning av rommet er ikke bruksendret/omsøkt og er heller ikke godkjent av kommunen. Konsekvensen ved søknad kan være at rommet ikke godkjennes og at rommet da må brukes/tilbakeføres til opprinnelig godkjent formål. Kjøper overtar alt ansvar og risiko for dette videre.
Kjøper overtar eiendommen slik den framstår på visning.
Tinglyste heftelser og rettigheter
Eiendommen overdras fri for pengeheftelser.
Dagboknummer: 1485
Tinglysningsdato: 29.01.1997
Servitutten omhandler: Fellesareal og anlegg som ikke blir overtatt for kommunalt vedlikehold, vil bli bekostet av brukerne i fellesskap. Det aksepteres at det legges og vedlikeholdes vann, kloakk, overvannsledninger, sluk, el. kabler, kabelskap, gatelysmaster etc. inn på tomten - i den utstrekningen dette finnes.
Dagboknummer: 7394
Tinglysningsdato: 30.04.2002
Servitutten omhandler: Det er inngått en avtale om dobbelgarasje mellom gnr. 114/bnr. 34 (Damstubben 12) og gnr. 114/bnr. 31 (Damstubben 10). Garasjen eies med en halvpart på hver, men 2/3 av arealet er plassert på Damstubben 12 og resterende 1/3 er plassert på Damstubben 10. Halvparten av garasjens areal skal benyttes av hver av partene, med formål at hver part disponerer en hel biloppstillingsplass og disponibelt areal for annen lagring.
Eiendommen har andel i et realsameie
Dagboknummer: 913191
Andel i: Gnr. 114 og bnr. 21
Ideell andel: 1/16
Tomten til realsameiet består av felles veier, grøntarealer og lekeplass.
Andelen vil følge eiendommen.
Det er tinglyst 1 servitutt på realsameiets eiendom, som medfølger eiendommen. Servitutten omhandler bestemmelser om at fellesareal og anlegg som ikke måtte bli overtatt for kommunalt vedlikehold, må bekostes brukerne i fellesskap. I tillegg aksepterer eierne at det blir lagt vann, kloakk, kabler etc. over eiendommen jf. grunnboksutskriften.
Servituttene vil følge eiendommen. Kjøpers bank vil få pant etter ovennevnte heftelser og servitutter som ikke skal slettes ved overdragelse.
Eventuell adgang til utleie
Eiendommen har ikke separat utleieenhet. Det vil normalt være anledning til utleie av hele eiendommen eller enkeltrom, såfremt utleiearealet er bygningsmessig godkjent for varig opphold og har forsvarlige radonnivåer.
Selger opplyser om at det er foretatt måling av radon med verdier innenfor statens anbefalte grenseverdi, det er ikke fremlagt dokumentasjon på dette jf. tilstandsrapporten.
Radonnivået i et bygg kan endre seg over tid. DSA (Direktoratet for strålevern og atomsikkerhet) anbefaler at det utføres jevnlig radonmåling ved større ombygginger samt bruksendringer, tidligere utført tiltak mot radon (ca. hvert 5. år), bygninger under tiltaksgrense ved tidligere utført måling (ca. hvert 10 år) og boliger som ligger i et kjent radonutsatt område.
Diverse
Tilbud av produkter og tjenester fra våre samarbeidspartnere
Vi er opptatt av verdiskapning, og har knyttet til oss samarbeidspartnere som skal sikre våre kunder de beste produkter og tjenester;
• Gjensidige leverer boligselgerforsikring og tilbyr bygningsforsikring
• Boligkjøperforsikring leveres av Hiscox og med Sedgwick som skadebehandler, og er formidlet gjennom Gjensidige.
• BN bank tilbyr finansieringsløsninger
• Vår avdeling Krogsveen Pluss tilbyr flyttetjenester som utvask, visningsvask, lager, tømming og transport av flyttelass, i tillegg til å formidle kontakt med Flip for overflateoppussing.
• I forbindelse med overtagelse av eiendommen tilbyr Overo avtale om strøm, alarm og bredbånd.
• Krogsveen er, sammen med øvrige bransjeaktører, medeier i den digitale annonseringsplattformen Hjem som eies av Bomega AS.
Energimerking
Komplett energiattest inkludert oppvarmingskarakter fås ved henvendelse til megler eller lastes ned fra www.krogsveen.no.
Beliggenhet og tomteforhold
Beliggenhet og tomteforhold
Beliggenhet
Eiendommen har en sjeldent attraktiv beliggenhet i et tilbaketrukket og rolig boligfelt – perfekt for familier som ønsker trygghet, oversikt og gode oppvekstvilkår. Her bor du på Liers solside med vakker utsikt over Drammen, Lier og Drammensfjorden, og kan nyte sen kveldssol gjennom sommerhalvåret.
Boligen ligger helt i enden av en blindvei, noe som gir minimal trafikk og en behagelig følelse av fred og privatliv. Rett utenfor døren finner du en hyggelig, opparbeidet lekeplass, og bare en kort kjøretur unna ligger både Kiwi og Uno X/7-Eleven for raske hverdagsærend. Det er trygg og kort vei til Gullaug barneskole og flere barnehager i nærområdet, mens ungdomsskole på Høvik nås enkelt via skolebuss. Drammen sentrum nås på ca. 10 minutter og byr på et rikt utvalg av servicetilbud, kultur og shopping.
Kjekstadmarka ligger rett bak boligområdet og byr på flotte naturopplevelser året rundt, med turstier,
klatrefelt, skiløyper og fine sykkelmuligheter. Innen gangavstand ligger også Skapertjern, et populært
badevann som er perfekt for varme sommerdager. I kort avstand finner du idylliske Engersand Havn med strand, båthavn, friluftsområde og den hyggelige restauranten Ankeret. Fjorden med Gilhusodden og Linnesstranda tilbyr ytterligere muligheter for bading, fiske og rekreasjon, og sykkelstien langs gamle Lierbanen gjør det enkelt å utforske området på to hjul.
Lier er kjent for sitt brede utvalg av fritids- og idrettstilbud. Her finner du alt fra idrettshaller, svømmehall og rideskole til golfbane, crossbane og skytterlag. Lier stadion og Reistad Arena (oppgradert i 2013) tilbyr moderne treningsfasiliteter som håndballbaner, klatrevegg m.m., mens Lierhallen rommer både svømmehall, idrettshall og trimrom. Lier IL har et mangfoldig aktivitetstilbud med blant annet fotball, håndball, ski (langrenn og skiskyting), e-sport, crossminton og allidrett.
Det er kort vei til bussholdeplass langs Røykenveien, med gode forbindelser både mot Drammen og Sætre. Lier stasjon ligger kun ca. 4 minutter unna med bil og tilbyr hyppige togavganger til Asker og Oslo, med rundt 30 minutters reisetid til Oslo S. I tillegg ligger Spikkestad stasjon bare ca. 10 minutter unna og gir et bredt supplement av togforbindelser. For buss- og togavganger se brakar.no, ruter.no og vy.no. Med bil tar det ca. 15 minutter til Asker og ca. 40 minutter til Oslo.
Alt i alt en beliggenhet som kombinerer ro, trygghet og naturnær livsstil med enkel tilgang til både byliv, hverdagsfasiliteter, fritidsaktiviteter og gode pendlermuligheter.
Adkomst
Det vil bli skiltet med Krogsveen visningsskilt ved fellesvisninger. Se kart i nettannonse eller Google Maps for nærmere veibeskrivelse. Velkommen til visning!
Barnehager, skoler og fritid
Barnehager: Linnesbakken sprelloppbarnehage (2 km), Linnesstranda barnehage (2,2 km), Paletten Kanvas-barnehage (3,4 km).
Skoler: Gullaug barneskole (1,8 km) og Høvik ungdomsskole (5 km).
Det ligger flere videregående skoler i Drammen og Lier, samt Universitetet i Sørøst-Norge som har campus på Papirbredden i Drammen, for mer informasjon se www.usn.no.
Dersom skole- og barnehagetilbud er av betydning for kjøpet, ber vi om at det rettes en særskilt henvendelse til kommunen for oppdatert informasjon.
Beskrivelse av tomt
Eiertomt på ca. 575 kvm. Skrånende tomt som er pent opparbeidet med gressplen, hekk, barkebed og diverse beplantninger. Forstøtningsmurer av betong og stein. Gruset gårdsplass ved boligen og asfaltert område foran garasjen. Eiendommen er opparbeidet over flere plan, med hyggelige uteplasser på veranda og terrasse. Terrassen i hagen er dels overbygget og anlagt med utekjøkken.
Det opplyses om at felles garasje er plassert med 2/3 på Damstubben 12 og resterende 1/3 er plassert på Damstubben 10, det foreligger en tinglyst avtale som omfavner forholdet.
Ytterste del av støttemur og hekk på gårdsplassen samt del av hageområde er opparbeidet på gnr. 114/bnr. 21 (realsameiet), se vedlagt kartutsnitt for tomtegrenser.
Tomten er ikke oppmålt i nyere tid og har usikre grenser. Kommunens grunnkart viser eiendommens grenser med et beregnet normalavvik på 201 cm, se vedlagt kartutsnitt for tomtegrenser. Ved nøyaktig oppmåling kan avvik forekomme, og kjøper aksepterer dette.
Eiendommen eier en ideell andel på 1/16 av realsameiets eiendom gnr. 114 og bnr. 21, som består av felles veier, grøntarealer og lekeplass.. Andelen medfølger eiendommen.
Parkering
Parkering i halvpart av frittstående felles dobbelgarasje, biloppstillingsplass på ca. 19 kvm. Garasjen har støpt dekke, innlagt strøm, elektrisk leddport av tre og lader for el-bil (2022).
Det er tinglyst en avtale ifbm. fordeling av garasjens areal (biloppstillingsplass og lagring), hvorav Damstubben 10 og 12 eier en halvpart hver.
Forøvrig er det parkering på egen gruset gårdsplass.
Vei, vann og avløp
Eiendommen har adkomst via privat vei med felles vedlikeholdsansvar.
Det gjøres oppmerksom på at Lier kommune jobber med å rydde opp i uklare veiforhold – såkalte «gråsoneveier». Veien til denne eiendommen er privateid (realsameie) med kommunaldrift, men det må påregnes at driften overføres fra kommunen til velforeningen og at dette vil medføre driftskostnader for eiendommene. Se liste og mer informasjon om gråsoneveier på kommunen sin hjemmeside.
Eiendommen er tilknyttet kommunalt ledningsnett via private stikkledninger. Eier er selv ansvarlig for private stikkledninger til boligen.
Regulerings-og arealplaner
Eiendommen er regulert til boligformål, i henhold til reguleringsplan for Gullauglia B8 datert 14.12.1991. Videre er eiendommen avsatt til boligbebyggelse ved kommuneplan for Lier Arealdelen 2019-2028 datert 18.06.2019, det opplyses om at kommuneplanen gjelder foran reguleringsplanen. Utsnitt av planer med tilhørende bestemmelser kan fås ved henvendelse til megler.
Eiendommen er innenfor et aktsomhetsområde mtp. flom, da det er en bekk som er lagt i rør under eiendommen (se vedlagt grunnkart). Dette kan legge begrensninger for evt. utbygging, påbygg/tilbygg og andre terrenginngrep som på et generelt grunnlag er tillatt ifølge kommuneplanen. Konferer med megler dersom dette er aktuelt.
I forbindelse med oppføring ny RV 23, har eiendommen blitt innenfor en sone som er båndlagt i påvente av vedtak etter plan- og bygningsloven. Når et område er båndlagt vil det være en del begrensninger når det gjelder oppføring av nybygg, tilbygg eller påbygg innenfor dette området. Konferer med megler dersom dette er aktuelt.
Naboeiendommen gnr. 114/bnr. 21 (privateid, realsameie) mot Gullaugkleiva, er per dags dato ubebygd og består av grøntarealer. Iht. kommuneplanen datert 18.06.2019 er området avsatt til boligbebyggelse. Selger har ikke mottatt nabovarsel eller kjenner til eventuelle utbyggingsplaner for eiendommen.
Det er regulert vei og annen veigrunn - tekniske anlegg under bakkenivå, ved denne eiendommen, iht. reguleringsplan RV 23 Linnes - Dagslet datert 17.06.2014. Formålet med reguleringsplanen er å fastlegge beliggenhet og utforming av ny rv. 23 med tilliggende vegnett, tekniske anlegg og terreng med mer. Se vedlagt reguleringsplan i salgsoppgaven. Tidshorisont og endelig utforming av prosjektet er pt. ikke klart.
I nærområdet av eiendommen er det en detaljreguleringsplan som er under arbeid, dette gjelder Detaljregulering for E134 Dagslett - E18. Planområdet strekker seg fra Hekleberg/Dagslett i Asker til E18 og Viker i Lier kommune, og planområdet tar utgangspunkt i båndleggingssonen fra vedtatte kommunedelplan for E134 Dagslett – E18, med nødvendige tilpasninger. Det ble varslet om utvidelse av planområdet den 02.06.2025. Foreløpig status for planen er "planlegging igangsatt" og det ble kunngjort oppstart av planarbeidet den 08.04.2024, se kommunens hjemmeside for mer info. Tidshorisont og endelig utforming av prosjektet er pt. ikke klart. Planen er ikke endelig vedtatt.
Økonomi
Økonomi
Kommunale utgifter
Kommunale avgifter (vann og avløp): kr 13.691,- pr. år (3 terminer), fakturert på eiendommen i 2024. Avgiftene vil variere etter forbruket i boligen.
Renovasjonskostnader: kr 6.410,- pr. år (2 terminer). Type renovasjonsordning: Storfamilie, 2025.
Det opplyses om at Lier kommune har varslet om økning av kommunale avgifter.
I tillegg påløper det en kostnad på kr 578,- pr. år for boliger med minst ett aktivt røykrør (kostnad pr. 2025). Det påløper også kostnader for feiing av ildsted, kontroll av fyringsanlegg m.m. Frekvens på feiing samt tilsyn er avhengig av behov og vurderes av feieren.
Eiendommen har privat snøbrøyting, dette har historisk kostet ca. kr 500,- pr. år i følge selger.
Det må påregnes kostnader til strøm og nettleie, dette vil variere avhengig av strøm-/nettselskap. Nåværende eier har et strømforbruk på ca. 26.000 kWh pr. år.
Boligen har en årlig forsikringspremie via Gjensidige på kr 7.600,- pr. år.
Boligen er tilknyttet Viken Fiber Altibox som leverandør av tv/internett og har kostet ca. kr 1.200,- pr. mnd avhengig av kanalvalg og hastighet på nettet.
Det må påregnes kostnader til innboforsikring.
Ovenstående er basert på nåværende eier/husstands senere års forbruk/utgifter. Dette vil variere avhengig av antall beboere, ønsket innetemperatur, egne fordelsavtaler, kanalvalg, hastighet på bredbånd m.m.
Formuesverdi
Formuesverdi for 2023 var kr 1 514 198,- ifølge skatteetaten. Beløpet forutsetter at eier bor fast i boligen (primærbolig). Eier opplyser om 1.611.000,- pr. 2024.
Ved eventuell øvrig bruk av eiendommen (f.eks. fritidsbolig, pendlerbolig, utleieobjekt) var formuesverdien for 2023 kr 6 056 792,-.
Formuesverdien justeres normalt årlig. Se skatteetaten.no for mer informasjon om fastsettelse av formuesverdien.
Omkostninger
6 850 000,00 Prisantydning
Omkostninger
171 250,00 Dokumentavgift til staten (2,5% av kjøpesum)
19 900,00 Gjensidige Boligkjøperpakke (valgfri)
545,00 Tinglysing panterettsdokument
545,00 Tinglysing skjøte
--------------------------------------------------------
192 240,00 Omkostninger totalt
--------------------------------------------------------
7 042 240,00 Totalpris inkl. omkostninger
--------------------------------------------------------
Totalpris inkl. omkostninger forutsetter kjøp til prisantydning.
Det tas forbehold om endringer i avgifter og gebyrer.
Tilbud om lånefinansiering
Megler formidler gjerne kontakt med rådgiver hos vår samarbeidspartner BN Bank. De har konkurransedyktige betingelser samt rask og løsningsorientert behandling av din lånesøknad. Krogsveen mottar et honorar for denne formidlingen.
Betalingsbetingelser
Kjøpesum inkludert omkostninger, samt pantedokument tilknyttet eventuelt lån, skal være disponibelt hos megler 2 virkedager før overtagelsen.
Annen viktig informasjon
Annen viktig informasjon
Eier
Kjetil Mehl og Christina Bø
Overtakelse
Etter nærmere avtale.
Velforening
Boligen er tilknyttet Damstubben Vel.
Dette koster ca. kr 500,- pr. år.
Boligselgerforsikring
Selger har i forbindelse med salget tegnet boligselgerforsikring levert av Gjensidige.
Boligselgerforsikringen dekker selgers ansvar etter avhendingsloven begrenset oppad til kr 14 millioner. Dersom kjøper oppdager forhold ved eiendommen som hen mener utgjør en mangel ved eiendommen, vil Gjensidige behandle reklamasjonen på vegne av selger. Forsikringsvilkår kan fås ved henvendelse til megler.
Vedlagt salgsoppgaven følger selgers egenerklæringsskjema og tilstandsrapport. Interessenter må sette seg inn i dokumentene før bud inngis.
Boligkjøperforsikring
Innen kontraktsmøtet må kjøper ta stilling til om det ønskes å bestille Boligkjøperpakken gjennom Gjensidige. I denne gunstige pakken er boligen ferdig forsikret og inkluderer rettshjelpsforsikring, også kalt Boligkjøperforsikring. Rettshjelpsforsikring gir trygghet og tilgang på profesjonell juridisk hjelp dersom det oppdages uventede feil eller mangler det første året etter overtagelse. Forsikringsselskapet behandler i så fall ethvert mangelskrav kjøper måtte ha overfor selger.
Boligkjøperpakken inkluderer bygningsforsikring for hus og hytte, innboforsikring, flytteforsikring og dobbel rentedekning - i situasjoner hvor kjøper ikke får solgt nåværende primærbolig.
Kjøper mottar ingen særskilt faktura for Boligkjøperpakken da kostnaden det første året legges til kjøpesummen for boligen. Det gjøres oppmerksom på Krogsveen mottar et honorar for denne formidlingen.
Produktark for Boligkjøperpakken ligger vedlagt i salgsoppgaven.
Dersom ikke boligkjøperpakke ønskes kan kun rettshjelpsforsikring, også kalt boligkjøperforsikring, tegnes særskilt via megler. Rettshjelpsforsikringen varer i 5 år fra overtagelse og leveres gjennom Gjensidige. Ta kontakt med megler for ytterligere informasjon.
Selskap og privatpersoner som driver med kjøp/salg/utvikling som ledd i egen næringsvirksomhet kan ikke tegne boligkjøperpakke eller rettshjelpsforsikring.
Budgivning
Forbrukerinformasjon om budgivning er vedlagt denne salgsoppgaven og er også på vår hjemmeside Krogsveen.no. Alle bud og budforhøyelser må inngis skriftlig. I tillegg må legitimasjon være fremlagt sammen med signatur fra budgiver.
Vi oppfordrer til å gi bud elektronisk via GI BUD-knappen på eiendommens hjemmeside på Krogsveen.no. Da vil samtlige vilkår bli oppfylt.
Eventuelle forhøyelser eller endringer av budet kan bekreftes pr SMS eller på e-post. Vi oppfordrer alltid til å kontakte megler pr. telefon i tillegg da forsinkelser i SMS og e-post kan forekomme.
For at budene skal kunne bli behandlet og videreformidlet skriftlig til alle involverte parter, må alle bud ha en tilstrekkelig lang akseptfrist, jf. eiendomsmeglingsforskriften § 6-3.
Selger må også skriftlig akseptere budet før aksept kan formidles til budgiver. Akseptfrist bør derfor være på minimum 30 minutter, og budforhøyelser må derfor skje i god tid før fristens utløp.
Bud i forbrukerforhold kan uansett ikke settes med kortere frist enn kl. 12.00 første virkedag etter siste annonserte visning. I tillegg kan ikke budet ha forbehold om at det skal holdes hemmelig ovenfor øvrige interessenter. Megler har iht lov om eiendomsmegling ikke anledning til å videreformidle disse budene, og de vil dermed heller ikke bli journalført.
Etter at eiendommen er solgt vil kjøper og selger få tilsendt budjournal. Øvrige budgivere kan få utlevert kopi av budjournalen i anonymisert form.
Hvitvaskingsreglene
I henhold til lov om hvitvasking og terrorfinansiering har megler plikt til å gjennomføre kontrolltiltak overfor kunder, herunder fullmektiger. Dette innebærer bl.a. å bekrefte kunders og reelle rettighetshaveres identitet på bakgrunn av fremvist gyldig legitimasjon eller på annen godkjent måte, samt å innhente opplysninger om kundeforholdets formål og tilsiktede art.
Dersom slike kundetiltak ikke kan gjennomføres, kan megler ikke etablere kundeforholdet eller utføre transaksjonen.
Hvis kjøper ikke bidrar til gjennomføring av kundekontrollen og dette fører til at transaksjonen blir forsinket eller ikke kan gjennomføres, vil dette ansees som mislighold av avtalen og gi selger rettigheter etter avhendingslova kapittel 5. I tilfeller der selger ikke bidrar til gjennomføring av løpende kundekontroll underveis i oppdraget, er det selger som misligholder sine forpliktelser etter avtalen og gi kjøper rettigheter etter avhendingslovens kapittel 4. Partene er selv ansvarlige for eventuelle kostnader og ansvar dette kan medføre. Eiendomsmegleren eller eiendomsmeglingsforetaket kan ikke holdes ansvarlig for de konsekvenser dette vil kunne få for partene eller andre som har interesser i eiendomshandelen.
Kjøper oppfordres til å innbetale kjøpesummen som ikke kommer fra låneinstitusjon i én samlet innbetaling fra egen konto i norsk bank. Megler har plikt til å melde fra til Økokrim om eiendomshandler som fremstår som mistenkelige. Melding sendes Økokrim uten at partene varsles.
Personopplysningsloven
I henhold til personopplysningsloven gjør vi oppmerksom på at interessenter kan bli registrert for videre oppfølging.
Lovanvendelse
Generelle bestemmelser
Salgsoppgaven er basert på de opplysningene selger har gitt til megler, den bygningssakyndiges tilstandsrapport, samt opplysninger innhentet fra kommunen, Kartverket og andre tilgjengelige kilder. Det er viktig at kjøper setter seg grundig inn i alle salgsdokumentene, herunder salgsoppgave, tilstandsrapport og selgers egenerklæring. Kjøper anses kjent med forhold som er tydelig beskrevet i salgsdokumentene, og slike forhold kan ikke påberopes som mangler. Dette gjelder uavhengig av om kjøper har lest dokumentene. Alle interessenter oppfordres til å undersøke eiendommen nøye, gjerne sammen med fagkyndig før bud inngis. Kjøper som velger å kjøpe usett kan ikke gjøre gjeldende som mangel noe han burde blitt kjent med ved undersøkelsen.
Dersom det er behov for avklaringer, anbefaler vi at interessenter rådfører seg med eiendomsmegler eller egne rådgivere før det legges inn bud.
En bolig som har blitt brukt i en viss tid, har vanligvis blitt utsatt for slitasje og skader kan ha oppstått. Slik bruksslitasje må kjøper regne med, og det kan avdekkes enkelte forhold etter overtakelse som nødvendiggjør utbedringer. Normal slitasje og skader som nødvendiggjør utbedring, er innenfor hva kjøper må forvente og vil ikke utgjøre en mangel.
Kjøper og selgers rettigheter og plikter reguleres av avtalen mellom partene, samt informasjonen som har vært tilgjengelig for kjøperen i forbindelse med handelen. Avtalen utfylles av avhendingsloven, og det gjelder ulike avtalevilkår avhengig av om kjøper er forbrukerkjøper eller ikke. Dette er nærmere beskrevet nedenfor.
På grunn av ulike avtalevilkår kan selger vurdere bud fra en som ikke er forbruker, ulikt fra en forbrukers bud. Dersom kjøper ikke er forbruker, er selger sitt mulige mangelsansvar begrenset fordi eiendommen selges "som den er". Selger kan ikke ta «som den er»- forbehold overfor en forbrukerkjøper. Selv et lavere bud fra en som ikke er forbruker kan foretrekkes fordi begrensningen i mulig mangelsansvar kan ha egenverdi for selger. Selger står fritt til å forkaste eller akseptere ethvert bud, og er for eksempel ikke forpliktet til å akseptere høyeste bud.
Budgiver skal i budskjema avgi egenerklæring om budgiver er forbruker eller næringsdrivende/ person som hovedsakelig handler som ledd i næringsvirksomhet. Budgivere får informasjon dersom andre bud er inngitt av en som ikke er forbruker.
Forbrukerkjøp - definisjon
Med forbrukerkjøp menes kjøp av eiendom når kjøperen er en fysisk person som ikke hovedsakelig handler som ledd i næringsvirksomhet.
Forbruker – avtalevilkår
Eiendommen har en mangel dersom den ikke er i samsvar med kravene som følger av avtalen, eller det foreligger brudd på bestemmelsene i avhendingsloven §§ 3-2 til 3-8. Hvis eiendommen ikke er i samsvar med det kjøperen må kunne forvente ut ifra alder, type og synlig tilstand, kan det være grunnlag for mangelskrav. Det samme gjelder hvis det er holdt tilbake eller gitt uriktige opplysninger om eiendommen. Dette gjelder likevel bare dersom man kan gå ut ifra at det virket inn på avtalen at opplysningen ikke ble gitt eller at mangelskravet ikke blir rettet i tide på en tydelig måte.
Boligen kan ha en mangel etter avhendingsloven § 3-3 andre ledd, dersom det er avvik mellom opplyst og faktisk innvendig areal, forutsatt at avviket er på 2% eller mer og minimum 1 kvm.
Ved beregning av et eventuelt prisavslag eller erstatning må kjøper selv dekke tap/kostnader opptil et beløp på kr 10 000 (egenandel).
Ikke-forbruker (næringsdrivende) – definisjon
Hvis kjøper er en juridisk person, eller en fysisk person som hovedsakelig handler som ledd i næringsvirksomhet, vil kjøpet ikke anses som et forbrukerkjøp.
Ikke-forbruker – avtalevilkår
Eiendommen har en mangel dersom den ikke er i samsvar med kravene som følger av avtalen.
Eiendommen selges «som den er», og selgers ansvar utover det konkret avtalte er da begrenset etter avhendingsloven § 3-9, første ledd andre setning.
Avhendingsloven § 3-3 andre ledd fravikes, og hvorvidt boligens arealsvikt utgjør en mangel vurderes etter avhendingsloven § 3-8.
Informasjon om kjøpers undersøkelsesplikt, herunder oppfordringen om å undersøke eiendommen nøye, gjelder også for kjøpere som ikke anses som forbrukere.
Det forutsettes at hjemmel overføres til kjøper. Hvis kjøper ikke ønsker hjemmelsoverføring av eiendommen, må det tas forbehold om dette i budet.
Meglers vederlag
Meglers vederlag betales av selger og er avtalt til:
Vederlag: 0,80 % av salgssummen
Minimumsprovisjon er kr 50 000,00
Vederlag
Kontroll av hjemmel og heftelser kr 2 900,00
Markedsføringspakke kr 27 400,00
Oppgjør kr 7 500,00
Tilrettelegging kr 17 000,00
Visninger 3000,- pr. stk. etter første visning kr 0,00
Utlegg
Innhenting av off. oppl. Lier kommune inkl. tegninger og RFD kr 3 665,00
Tinglysing sikring kr 545,00
Andre utgifter
AX tilstandsrapport enebolig kr 20 625,00
Boligfotografering, inkl. kveld og drone kr 9 850,00
Boligselgerforsikring Gjensidige Eiet - 5,71‰ av prisantydning kr 39 970,00
Opplysninger om oppdraget
Oppdragsnummer 20-0346/25
Eiendomsmegler Krogsveen AS, avd. Drammen
Nedre Storgate 16, 3015, DRAMMEN
950 007 613
Oppdragets KR-kode KR20.25346
Dato
Sist oppdatert: 13. februar 2026 kl. 15:36
Dokumenter
Dokumenter
PDF – 1007 KB
PDF – 654 KB
PDF – 311 KB
PDF – 743 KB
PDF – 1 MB
PDF – 312 KB
PDF – 29 KB
PDF – 127 KB
PDF – 392 KB
Område
Legg til steder som er viktige for deg
Visning
Det er ingen planlagte visninger. Meld deg på for å avtale en tid som passer.
Lurer du på noe?
Unngå doble boligrenter
Vi tilbyr gunstig forsikring.
Vurderer du utleie?
Få et tilbud fra Utleie KrogsveenHva koster lånet?
Sjekk estimert lånekostnadVil du varsles om lignende boliger?
Ved å lagre ditt boligsøk hos oss får du beskjed når vi har en bolig som ligner denne, før den legges ut på markedet!

