Kongsgård alle 4A
3 690 000 kr
71 m²
2 soverom
Komplett salgsoppgave

Lund
Sjarmerende 3(4)-roms toppleilighet med solrik beliggenhet og stor innglasset balkong - Kjøkken fra 2017 og bad fra 2015
Prisantydning
3 690 000 krAndel fellesgjeld
361 046 krOmkostninger
9 302 krTotalpris
4 060 348 kr
Pris
Bruksareal
99 m²BRA-I (internt bruksareal)
71 m²BRA-E (eksternt bruksareal)
17 m²
Areal
Etasje
4Byggeår
1959Soverom
2 soveromBad
1 badType
AndelsleilighetEierform
AndelFellesutgifter
5 751 krEnergimerke
Rød G
Nøkkelinfo
Unngå doble boligrenter
Vi tilbyr gunstig forsikring.
Vurderer du utleie?
Få et tilbud fra Utleie KrogsveenHva koster lånet?
Sjekk estimert lånekostnadBeskrivelse
Kort om eiendommen
Krogsveen presenterer Kongsgård Alle 4A.
Dette er en svært innbydende toppleilighet med stor og solrik innglasset balkong med sol fra ca. kl. 10 til 20 om sommeren.
Videre får man de nydelige originale gulvene slipt og behandlet slik at de får det rette utseende og uttrykk. Denne kombinasjonen sammen med et lyst og deilig kjøkken fra 2017 med lyse fronter samt laminert eik gir en lys og god følelse. Vegger er lyse og malt i en behagelig farge som passer bra med gjennomgående dagslys fra dobbel dør til balkong og til kjøkken og kontor/spisestue. Romslig gang med plass til ytterklær og bad som er oppusset i 2015 med tromlet marmorfliser på gulv og hvite nøytrale fliser på vegger.
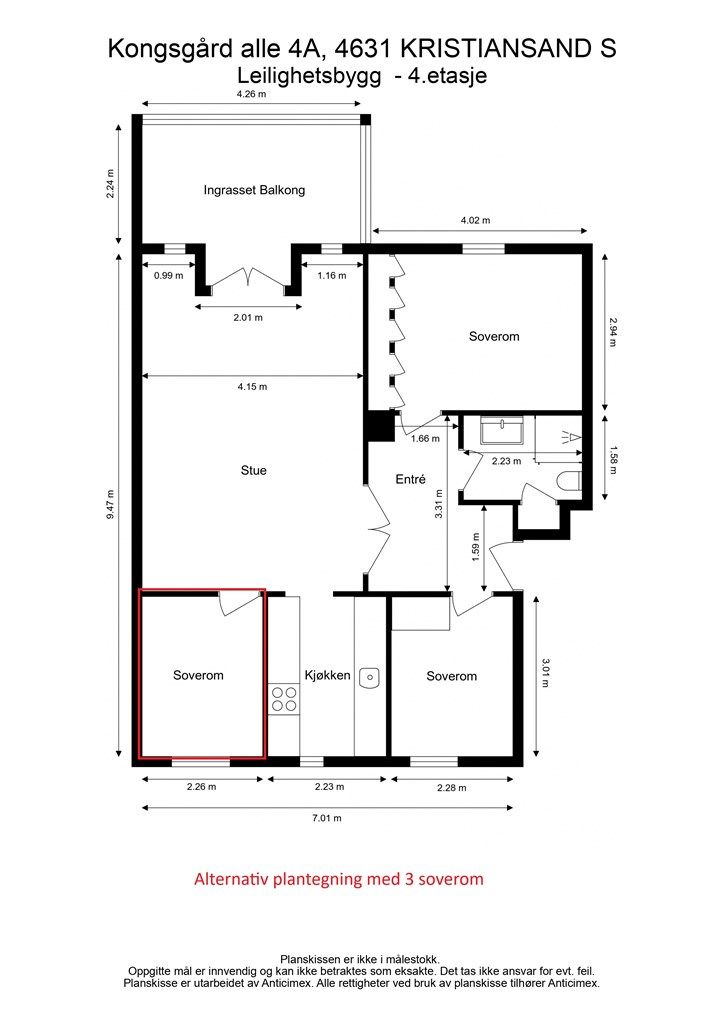
Her får man en innholdsrik leilighet med god planløsning, sjarm og god standard med mulighet for 3 soverom.
Innhold og byggemåte
Innhold og byggemåte
Eiendommen
Kongsgård alle 4A, 4631 KRISTIANSAND S
Kommunenummer 4204, gårdsnummer 152, bruksnummer 600
Andelsnummer 33, Solborg Borettslag Ba, organisasjonsnummer 953265443
Innhold
Totalt bruksareal BRA: 99 kvm
BRA-i:
4. etasje 71 kvm: Entre, bad, to soverom, kjøkken og stue.
BRA-e:
1. etasje 17 kvm: Bod på loft utgjør 7 kvm og 2 boder i underetasjen utgjør 10 kvm, til sammen 17 kvm.
BRA-b:
4. etasje 11 kvm: Innglasset balkong.
Kommentar til arealmålingen:
Kun deler av arealet i bod på loftet er måleverdig som bruksareal. Arealet har et totalt gulvareal (GUA) på 8 m2, men grunnet lav takhøyde er kun 7 m2 av arealet måleverdig som bruksareal. De delene av arealene som har lav himlingshøyde (ALH) utgjør 1 m2.
Vedlagte plantegninger er ikke målbare. De oppgitte arealer er hentet fra rapport med befaringsdato 23.03.2026 utført av Anticimex v/ Svein Ove Gjeruldsen.
Byggemåte
Selger har innhentet en tilstandsrapport av boligen/eiendommen. Av rapporten fremgår det at flere bygningsdeler har fått tilstandsgrad ikke undersøkt/ikke tilgjengelig for undersøkelse (TG IU), 2 (TG2) og/eller 3 (TG3). Rapporten beskriver også avvik på undersøkte bygningsdeler uten tilstandsgrad. Kjøper overtar ansvaret for de opplysninger som fremkommer av salgsdokumentasjonen, og kan ikke gjøre gjeldende som mangel noe som burde vært kjent eller som ikke kan anses å ha betydning for avtalen.
Bygningen er iht. tilstandsrapporten oppført med følgende byggemåte:
Grunnmur og bærende konstruksjoner i hovedsak av betong. Bygget er oppført med støpt gulv mot grunn. Yttervegger i hovedsak av tegl-/murverk. Utvendige fasader er kledd med fasadeplater. Etasjeskillere av betong. Saltak i trekonstruksjoner. Yttertak er belagt med takstein. Vinduer med karmer av plast. Balkongdør med karmer av plast. Boligen ventileres med en kombinasjon av naturlig ventilasjon (gjennom vinduer og ventiler).
Det gjøres spesielt oppmerksom på punkter med avvik, rapporten har følgende fordeling av tilstandsgrader (TG)
TG1: 60%
TG2: 21%
TG3: 0%
TG IU: 18%
Se supplerende tekst i tilstandsrapporten og selgers egenerklæringsskjema om punkter som spesielt er vurdert til TG2 og ikke undersøkt.
Tilstandsrapporten er inntatt i salgsoppgaven. Rapporten inneholder informasjon om avvikene og konsekvensen av disse. For avvik som er gitt TG3 har den bygningssakkyndige i tillegg gitt et anslag på hva det vil koste å utbedre disse avvikene. Ettersom kjøper regnes å være kjent med forhold som tydelig fremgår av tilstandsrapporten, oppfordres du til å sette deg grundig inn i rapporten i sin helhet.
Standard
Bygget er betydelig påkostet i senere år. Innvendig har tidligere eier pusset opp de fleste overflater med sammenhengende flott originalt slipt og behandlet gulv, stilrent bad oppusset i 2015 og delikat kjøkken fra 2017 hvor det samtidig ble byttet varmtvannsbereder, samt fornyet rør i regi av borettslaget i 2021 og utført el-sjekk i 2025 m.m.
Leiligheten oppleves som lys og luftig med gode vindusflater og dobbel dør til en stor innglasset balkong. Planløsningen gir fleksible møbleringsmuligheter i oppholdsrommene. Det kan blant annet nevnes at tilsvarende leiligheter i borettslaget har etablert et ekstra soverom i det ene hjørnet i stuen. Det at leiligheten ligger i øverste etasje gjør denne boligen ekstra luftig og med gode utsikts- og solforhold. I tillegg har leiligheten svært gode lagringsforhold med tre boder: én praktisk loftsbod og to boder i kjeller med plass til sesongutstyr, ved og diverse lagring.
Løsøre og tilbehør
Vi viser til liste fra Norges Eiendomsmeglerforbund som gjelder fra 01.01.2020 angående løsøre og tilbehør. Hvitevarer på kjøkken medfølger, forøvirg kan møbler og vaskemaskin medfølge etter nærmere avtale.
Oppvarming
Leiligheten varmes opp med elektronisk oppvarming og varmekabler på badet.
Det er opplegg til peis. Det har vært peis tidligere, som nå er fjernet med noe merke i gulv hvor gulvplate har vært.
Selger har avtalt Norgespris på strøm for eiendommen for perioden frem til 31.12.2026. Denne er per dags dato 50 øre per kWh inkl. mva. Nettleie, avgifter og påslag fra kraftleverandøren kommer i tillegg. Denne avtalen vil følge eiendommen i den avtalte perioden.
Ferdigattest/brukstillatelse
Det foreligger ferdigattest på eiendommen datert 09.05.1959.
Videre foreligger det ferdigattest for innglassing av balkonger for Frydenlundveien 20A/Kongsgård alle 4 datert 05.10.2015.
Tinglyste heftelser og rettigheter
På eiendommen er det tinglyst følgende heftelser og rettigheter som følger eiendommens matrikkel ved overskjøting til ny hjemmelshaver:
4204/152/600:
25.02.1955 - Dokumentnr: 391 - Best. om vann/kloakkledn.
Kan ikke slettes uten samtykke fra kommunen
06.06.2006 - Dokumentnr: 11871 - Bestemmelse iflg. skjøte
Kommunale rettigheter/påbud i henhold til
skjøte/festekontrakt
08.12.1954 - Dokumentnr: 902238 - Opprettelse av matrikkelenheten
OPPRETTELSE - FRADELT FRA EN ADRESSE
01.01.2020 - Dokumentnr: 239195 - Omnummerering ved kommuneendring
Tidligere: Knr:1001 Gnr:152 Bnr:600
Eventuell adgang til utleie
Andelseier kan ikke uten samtykke fra styret i borettslaget overlate bruken av boligen til andre. Med samtykke kan andelseier overlate boligen til andre i inntil tre år hvis andelseier har bodd i boligen i minst ett av de to siste år. Utleie i andre tilfeller kan godtas ved særlige grunner, jf. burettslagslova § 5-6. Utleie forutsetter at leiligheten har forsvarlige radonverdier. Se også borettslagets vedtekter og konferer megler ved spørsmål.
Energimerking
Energikarakter G og oppvarmingskarakter 5.
Beliggenhet og tomteforhold
Beliggenhet og tomteforhold
Beliggenhet
Kongsgård allé 4A har en sentral og attraktiv beliggenhet på Lund, i en bydel med kort avstand til både Kristiansand sentrum og Universitetet i Agder (UiA) på Gimle. Området ligger i et etablert boligstrøk med
nærhet til både skoler, idrettsanlegg og grøntområder, og byr på en god kombinasjon av byliv og rolige omgivelser.
Fra eiendommen er det kun en kort spasertur til busstoppet "Østerveien", som har hyppige avganger til sentrum og øvrige bydeler. Området ligger både rolig og sentralt, med alt man trenger innenfor gåavstand – fra dagligvarebutikker og treningssentre til badeplasser ved Bertes og Kvadraturen i sentrum.
Lund er kjent for sin nærhet til sentrum, gode gang- og sykkelveier over til Kvadraturen og utmerkede forbindelser til resten av byen. I tillegg er det kort vei til rekreasjonsmuligheter og nærliggende friområder, noe som gjør området attraktivt for alle aldersgrupper – enten man er student, førstegangsetablerer eller voksen.
Adkomst
Det vil bli skiltet med Krogsveen visningsskilt ved fellesvisninger.
Barnehager, skoler og fritid
Barnehage:
Lund barnehage (1-5 år) - 0.3 km
Blåmann Steinerbarnehage (0-5 år) - 0.7 km
Bispegra barnehage (1-5 år) - 0.9 km
Skole:
Kristiansand Internasjonale skole (1-10 kl.) - 0.4 km
Lovisenlund skole (1-7 kl.) - 0.4 km
Steinerskolen i Kristiansand (1-10 kl.) - 0.7 km
Wilds Minne skole (1-7 kl.) - 1.2 km
Oddemarka skole (8-10 kl.) - 0.5 km
Kristiansand Katedralskole Gimle - 700 m
Akademiet vgs Kristiansand - 2 km
Tangen videregående skole - 1.7 km
Kvadraturen videregående skole - 1.4 km
Fritid:
Spicheren Treningssenter - 1.1 km
SATS Aquarama - 1.5 km
Dagligvare:
Coop Prix St. Olavsvei - 300 m
Spar Lund Torv - 550 m
Coop Mega, Kiwi, REMA1000 og Extra innenfor ca. 1 km.
Beskrivelse av tomt
Eiertomt på 3 577 kvm som tilhører borettslaget og er pent opparbeidet med asfalterte adkomstveier, kantstein, stor gressplen, sittegrupper og sykkelparkering.
Parkering
Det er rikelig med gratis gateparkering og parkeringsplasser etter områdets bestemmelser.
Vei, vann og avløp
Eiendommen har adkomst via kommunal vei og er tilknyttet kommunalt ledningsnett via private stikkledninger. Borettslaget er ansvarlig for private stikkledninger til bygningen. Det ble i 2021 fornyet avløpsrør i regi av borettslaget.
Regulerings-og arealplaner
Eiendommen ligger i et område regulert til Bolig med bevaring. Plan nr. 1258.
Økonomi
Økonomi
Boligens kostnader
Felleskostnadene utgjør til sammen kr 5 751,- pr. mnd. fra 01.04.2026 og fordeles slik:
Renteutgifter kr 1 483,-
Avdrag kr 1 236,-
Telia TV / Internett kr 512,-
Dugnad kr 20,-
Driftsutgifter kr 2 500,- som bl.a inneholder: Kommunale avgifter inkl. eiendomsskatt, kabel-tv, felles byggforsikring, renhold i fellesareal, vaktmestertjenester, vedlikehold/serviceavtaler, strøm i fellesareal, drift av sameiet med forretningsførsel, revisor og styrehonorar.
Felleskostnadene justeres i forhold til borettslagets faktiske utgifter. Borettslaget kan endre felleskostnadene med en måneds skriftlig varsel.
Nåværende eier har et strømforbruk som tilsvarte ca. kr 8 400,- for 2025 og ca 6000 kwh. (Det er tegnet Norgespris frem til 31.12.2026).
Utgiftene er basert på nåværende eiers forbruk. Kjøper må selv tegne innboforsikring.
Kommunale utgifter
Inkludert i fellesutgifter.
Eiendomsskatt
Eiendomsskatten og øvrige kommunale avgifter til vann, avløp og renovasjon er inkludert i fellesutgiftene.
Opplysninger om fellesgjeld
Andel fellesgjeld er kr 361 046,- pr. 23.03.2026
Total fellesgjeld for boligselskapet er kr 15 886 028,- pr. 23.03.2026 og lånevilkårene er:
Rentebetingelser: 5,05% pa via Nordea flytende rente.
Lånets løpetid: 25.03.2021 til 25.12.2041.
Omkostninger
3 690 000,00 Prisantydning
361 046,00 Andel av fellesgjeld
--------------------------------------------------------
4 051 046,00 Pris inkl. fellesgjeld
Omkostninger
8 212,00 Forkjøpsrett - forhåndsutlyst (kjøper)
545,00 Tinglysing hjemmel
545,00 Tinglysing panterettsdokument
--------------------------------------------------------
9 302,00 Omkostninger totalt
--------------------------------------------------------
--------------------------------------------------------
Betalingsbetingelser
Kjøpesum inkludert omkostninger, samt pantedokument tilknyttet eventuelt lån, skal være disponibelt hos megler 2 virkedager før overtagelsen.
Annen viktig informasjon
Annen viktig informasjon
Eier
Bergljot Matre Gåsland
Informasjon om forkjøpsrett
Leiligheten er tilknyttet Solborg Borettslag BA. Borettslaget består av 44 leiligheter. Forretningsfører er Søbo, tlf. 38 07 90 70.
Dugnad må påregnes. Det betales inn 240 kr per år over felleskostnadene til et dugnadsfond. Beløpet utbetales i sin helhet til andelseiere som møter opp og deltar på dugnad.
Dyrehold er tillatt så lenge det ikke er til sjenanse for andre beboere. Husdyr som hund og katt kan ikke anskaffes uten at styret har vært forespurt, og det er innhentet tillatelse fra nærliggende naboer som kan bli berørt av dyreholdet.
Utførte oppgraderinger av borettslaget de senere år:
Rørfornying og utbygging av balkonger med innglassing.
Planlagte tiltak:
Borettslaget skal gjennomføre generalforsamling 12.05.2026. I innkallingen er følgende forslag fremmet for behandling: Installere kameraovervåkning i borettslaget for å redusere risiko for hærverk og tyveri. Ved positivt vedtak vil investeringskostnad for tiltaket dekkes med oppsparte midler. Årlige driftskostnader vil være på om lag 10.000,- og håndteres over husleia fordelt på 44 leiligheter. I tillegg ble det vedtatt bygging av søppelbod ved generalforsamlingen 2025, men arbeidet har vist seg krevende fordi arealet er omfattet av vernebestemmelser i reguleringsplanen. Styret vil likevel jobbe videre med å få tillatelse, men kan ikke gi noen garanti for at det lar seg gjennomføre.
Styregodkjenning og forkjøpsrett:
I henhold til borettslagets vedtekter må kjøper godkjennes av styret som ny andelseier. Det er kjøpers ansvar at styregodkjenning blir gitt, men styret kan ikke nekte godkjenning uten saklig grunn. Iht. borettslagsloven kan man bare eie én andel i borettslaget. Kun fysiske personer kan være andelseiere.
Leiligheten er forhåndsutlyst hos boligbyggelaget. Øvrige andelseiere i borettslaget og eventuelt medlemmer av boligbyggelaget har forkjøpsrett. Det er ingen medlemmer som har meldt forhåndsinteresse på forkjøpsretten ved dette salget.
Borettslaget er forsikret i Klare Finans AS mot tap av felleskostnader fra øvrige andelseiere.
Dokumenter for borettslaget kan fås ved henvendelse til megler.
Overtakelse
Etter nærmere avtale, gjerne skriv ønsket overtagelse i budskjema. Overtakelse kan tidligst skje etter at forkjøpsretten for øvrige andelseiere i borettslaget og eventuelt medlemmer av boligbyggelaget er avklart, samt at styrets godkjennelse er avklart.
Boligselgerforsikring
Selger har i forbindelse med salget tegnet boligselgerforsikring hos Gjensidige.
Boligselgerforsikringen dekker selgers ansvar etter avhendingsloven, begrenset oppad til 14 millioner kroner. Dersom kjøper oppdager forhold ved eiendommen som vedkommende mener utgjør en mangel,
vil Gjensidige behandle reklamasjonen på vegne av selger. Forsikringsvilkår kan fås ved henvendelse til megler.
Vedlagt salgsoppgaven følger selgers egenerklæringsskjema og tilstandsrapport. Interessenter må sette seg inn i disse dokumentene før bud inngis.
Boligkjøperforsikring
Innen kontraktsmøtet må kjøper ta stilling til om det ønskes å bestille Boligkjøperpakken gjennom Gjensidige. I denne gunstige pakken er boligen ferdig forsikret og inkluderer rettshjelpsforsikring, også kalt Boligkjøperforsikring. Rettshjelpsforsikring gir trygghet og tilgang på profesjonell juridisk hjelp dersom det oppdages uventede feil eller mangler det første året etter overtagelse. Forsikringsselskapet behandler i så fall ethvert mangelskrav kjøper måtte ha overfor selger.
Boligkjøperpakken inkluderer bygningsforsikring for hus og hytte, innboforsikring, flytteforsikring og dobbel rentedekning - i situasjoner hvor kjøper ikke får solgt nåværende primærbolig.
Kjøper mottar ingen særskilt faktura for Boligkjøperpakken da kostnaden det første året legges til kjøpesummen for boligen. Det gjøres oppmerksom på Krogsveen mottar et honorar for denne formidlingen.
Produktark for Boligkjøperpakken ligger vedlagt i salgsoppgaven.
Dersom ikke boligkjøperpakke ønskes kan kun rettshjelpsforsikring, også kalt boligkjøperforsikring, tegnes særskilt via megler. Rettshjelpsforsikringen varer i 5 år fra overtagelse og leveres gjennom Gjensidige. Ta kontakt med megler for ytterligere informasjon.
Selskap og privatpersoner som driver med kjøp/salg/utvikling som ledd i egen næringsvirksomhet kan ikke tegne boligkjøperpakke eller rettshjelpsforsikring.
Budgivning
Forbrukerinformasjon om budgivning er vedlagt denne salgsoppgaven og er også på vår hjemmeside Krogsveen.no. Alle bud og budforhøyelser må inngis skriftlig. I tillegg må legitimasjon være fremlagt sammen med signatur fra budgiver.
Vi oppfordrer til å gi bud elektronisk via GI BUD-knappen på eiendommens hjemmeside på Krogsveen.no. Da vil samtlige vilkår bli oppfylt.
Eventuelle forhøyelser eller endringer av budet kan bekreftes pr SMS eller på e-post. Vi oppfordrer alltid til å kontakte megler pr. telefon i tillegg da forsinkelser i SMS og e-post kan forekomme.
For at budene skal kunne bli behandlet og videreformidlet skriftlig til alle involverte parter, må alle bud ha en tilstrekkelig lang akseptfrist, jf. eiendomsmeglingsforskriften § 6-3.
Selger må også skriftlig akseptere budet før aksept kan formidles til budgiver. Akseptfrist bør derfor være på minimum 30 minutter, og budforhøyelser må derfor skje i god tid før fristens utløp.
Bud i forbrukerforhold kan uansett ikke settes med kortere frist enn kl. 12.00 første virkedag etter siste annonserte visning. I tillegg kan ikke budet ha forbehold om at det skal holdes hemmelig ovenfor øvrige interessenter. Megler har iht lov om eiendomsmegling ikke anledning til å videreformidle disse budene, og de vil dermed heller ikke bli journalført.
Etter at eiendommen er solgt vil kjøper og selger få tilsendt budjournal. Øvrige budgivere kan få utlevert kopi av budjournalen i anonymisert form.
Hvitvaskingsreglene
I henhold til lov om hvitvasking og terrorfinansiering har megler plikt til å gjennomføre kontrolltiltak overfor kunder, herunder fullmektiger. Dette innebærer bl.a. å bekrefte kunders og reelle rettighetshaveres identitet på bakgrunn av fremvist gyldig legitimasjon eller på annen godkjent måte, samt å innhente opplysninger om kundeforholdets formål og tilsiktede art.
Dersom slike kundetiltak ikke kan gjennomføres, kan megler ikke etablere kundeforholdet eller utføre transaksjonen.
Hvis kjøper ikke bidrar til gjennomføring av kundekontrollen og dette fører til at transaksjonen blir forsinket eller ikke kan gjennomføres, vil dette ansees som mislighold av avtalen og gi selger rettigheter etter avhendingslova kapittel 5. I tilfeller der selger ikke bidrar til gjennomføring av løpende kundekontroll underveis i oppdraget, er det selger som misligholder sine forpliktelser etter avtalen og gi kjøper rettigheter etter avhendingslovens kapittel 4. Partene er selv ansvarlige for eventuelle kostnader og ansvar dette kan medføre. Eiendomsmegleren eller eiendomsmeglingsforetaket kan ikke holdes ansvarlig for de konsekvenser dette vil kunne få for partene eller andre som har interesser i eiendomshandelen.
Kjøper oppfordres til å innbetale kjøpesummen som ikke kommer fra låneinstitusjon i én samlet innbetaling fra egen konto i norsk bank. Megler har plikt til å melde fra til Økokrim om eiendomshandler som fremstår som mistenkelige. Melding sendes Økokrim uten at partene varsles.
Personopplysningsloven
I henhold til personopplysningsloven gjør vi oppmerksom på at interessenter kan bli registrert for videre oppfølging.
Lovanvendelse
Generelle bestemmelser
Salgsoppgaven er basert på de opplysningene selger har gitt til megler, den bygningssakyndiges tilstandsrapport, samt opplysninger innhentet fra kommunen, Kartverket og andre tilgjengelige kilder. Det er viktig at kjøper setter seg grundig inn i alle salgsdokumentene, herunder salgsoppgave, tilstandsrapport og selgers egenerklæring. Kjøper anses kjent med forhold som er tydelig beskrevet i salgsdokumentene, og slike forhold kan ikke påberopes som mangler. Dette gjelder uavhengig av om kjøper har lest dokumentene. Alle interessenter oppfordres til å undersøke eiendommen nøye, gjerne sammen med fagkyndig før bud inngis. Kjøper som velger å kjøpe usett kan ikke gjøre gjeldende som mangel noe han burde blitt kjent med ved undersøkelsen.
Dersom det er behov for avklaringer, anbefaler vi at interessenter rådfører seg med eiendomsmegler eller egne rådgivere før det legges inn bud.
En bolig som har blitt brukt i en viss tid, har vanligvis blitt utsatt for slitasje og skader kan ha oppstått. Slik bruksslitasje må kjøper regne med, og det kan avdekkes enkelte forhold etter overtakelse som nødvendiggjør utbedringer. Normal slitasje og skader som nødvendiggjør utbedring, er innenfor hva kjøper må forvente og vil ikke utgjøre en mangel.
Kjøper og selgers rettigheter og plikter reguleres av avtalen mellom partene, samt informasjonen som har vært tilgjengelig for kjøperen i forbindelse med handelen. Avtalen utfylles av avhendingsloven, og det gjelder ulike avtalevilkår avhengig av om kjøper er forbrukerkjøper eller ikke. Dette er nærmere beskrevet nedenfor.
På grunn av ulike avtalevilkår kan selger vurdere bud fra en som ikke er forbruker, ulikt fra en forbrukers bud. Dersom kjøper ikke er forbruker, er selger sitt mulige mangelsansvar begrenset fordi eiendommen selges "som den er". Selger kan ikke ta «som den er»- forbehold overfor en forbrukerkjøper. Selv et lavere bud fra en som ikke er forbruker kan foretrekkes fordi begrensningen i mulig mangelsansvar kan ha egenverdi for selger. Selger står fritt til å forkaste eller akseptere ethvert bud, og er for eksempel ikke forpliktet til å akseptere høyeste bud.
Budgiver skal i budskjema avgi egenerklæring om budgiver er forbruker eller næringsdrivende/ person som hovedsakelig handler som ledd i næringsvirksomhet. Budgivere får informasjon dersom andre bud er inngitt av en som ikke er forbruker.
Forbrukerkjøp - definisjon
Med forbrukerkjøp menes kjøp av eiendom når kjøperen er en fysisk person som ikke hovedsakelig handler som ledd i næringsvirksomhet.
Forbruker – avtalevilkår
Eiendommen har en mangel dersom den ikke er i samsvar med kravene som følger av avtalen, eller det foreligger brudd på bestemmelsene i avhendingsloven §§ 3-2 til 3-8. Hvis eiendommen ikke er i samsvar med det kjøperen må kunne forvente ut ifra alder, type og synlig tilstand, kan det være grunnlag for mangelskrav. Det samme gjelder hvis det er holdt tilbake eller gitt uriktige opplysninger om eiendommen. Dette gjelder likevel bare dersom man kan gå ut ifra at det virket inn på avtalen at opplysningen ikke ble gitt eller at mangelskravet ikke blir rettet i tide på en tydelig måte.
Boligen kan ha en mangel etter avhendingsloven § 3-3 andre ledd, dersom det er avvik mellom opplyst og faktisk innvendig areal, forutsatt at avviket er på 2% eller mer og minimum 1 kvm.
Ved beregning av et eventuelt prisavslag eller erstatning må kjøper selv dekke tap/kostnader opptil et beløp på kr 10 000 (egenandel).
Ikke-forbruker (næringsdrivende) – definisjon
Hvis kjøper er en juridisk person, eller en fysisk person som hovedsakelig handler som ledd i næringsvirksomhet, vil kjøpet ikke anses som et forbrukerkjøp.
Ikke-forbruker – avtalevilkår
Eiendommen har en mangel dersom den ikke er i samsvar med kravene som følger av avtalen.
Eiendommen selges «som den er», og selgers ansvar utover det konkret avtalte er da begrenset etter avhendingsloven § 3-9, første ledd andre setning.
Avhendingsloven § 3-3 andre ledd fravikes, og hvorvidt boligens arealsvikt utgjør en mangel vurderes etter avhendingsloven § 3-8.
Informasjon om kjøpers undersøkelsesplikt, herunder oppfordringen om å undersøke eiendommen nøye, gjelder også for kjøpere som ikke anses som forbrukere.
Det forutsettes at hjemmel overføres til kjøper. Hvis kjøper ikke ønsker hjemmelsoverføring av eiendommen, må det tas forbehold om dette i budet.
Meglers vederlag
Meglers vederlag betales av selger og er avtalt til:
Vederlag: 1,00 % av salgssummen.
Vederlag:
Inkludert eller nødvendige visninger ved lansering 4.000,-. Kontroll av hjemmel og heftelser kr 3 900,-. Markedsføringspakke kr. 28.900,- ved full markedspakke inkl. Smartannonsering. Oppgjør kr 8 900,-. Tilrettelegging kr 9 900,-.
Utlegg:
Eierskiftegebyr forretningsfører (selger) kr 6 725,-. Innhenting av informasjon forretningsfører oppdatering kr 2 629,-. Tinglysing sikring kr 545,-.
Andre utgifter:
AX Tilstandsrapport kr 8.500,-. Boligselgerforsikring Gjensidige Andel utgjør 2,69‰ av salgssum. Foto kr 3.500,- ved lansering.
Vi er opptatt av verdiskapning, og har knyttet til oss samarbeidspartnere som skal sikre våre kunder de beste produkter og tjenester;
• I forbindelse med forberedelse av salget, innhenter vi informasjon om eiendommen hovedsakelig fra vår samarbeidspartner Ambita.
• Gjensidige leverer boligselgerforsikring og tilbyr bygningsforsikring
• Boligkjøperforsikring leveres av Hiscox og med Sedgwick som skadebehandler, og er formidlet gjennom Gjensidige.
• BN bank tilbyr finansieringsløsninger
• Vår avdeling Krogsveen Pluss tilbyr flyttetjenester som utvask, visningsvask, lager, tømming og transport av flyttelass, i tillegg til å formidle kontakt med Flip for overflateoppussing.
• I forbindelse med overtagelse av eiendommen tilbyr Overo avtale om strøm, alarm og bredbånd.
• Krogsveen er, sammen med øvrige bransjeaktører, medeier i Bomega AS som tilbyr den digitale annonseringsplattformen Hjem.
Opplysninger om oppdraget
Oppdragsnummer 31-0035/26
Eiendomsmegler Krogsveen AS, avd. Kristiansand
Østre Strandgate 12, 4610, KRISTIANSAND S
950 007 613
Oppdragets KR-kode KR31.2635
Dato
Sist oppdatert: 29. april 2026 kl. 15:38
Dokumenter
Dokumenter
PDF – 918 KB
PDF – 3 MB
PDF – 680 KB
PDF – 312 KB
PDF – 29 KB
PDF – 127 KB
PDF – 392 KB
Område
Legg til steder som er viktige for deg
Visning
For å delta på visning, ber vi om at du melder deg på. Da sikrer vi at du får nødvendig informasjon og at det er satt av tilstrekkelig med tid. Kontakt megler dersom annet tidspunkt ønskes. Husk å lese salgsoppgaven før visningen, så du stiller forberedt. NB. Visning utgår dersom det ikke er noen påmeldte innen kl. 12:00 samme dag. Ønsker du kun å bli holdt orientert, kan du fra eiendommens hjemmeside få varsel om solgtpris, eller kontakte megler.
Lurer du på noe?
Unngå doble boligrenter
Vi tilbyr gunstig forsikring.
Vurderer du utleie?
Få et tilbud fra Utleie KrogsveenHva koster lånet?
Sjekk estimert lånekostnadVil du varsles om lignende boliger?
Ved å lagre ditt boligsøk hos oss får du beskjed når vi har en bolig som ligner denne, før den legges ut på markedet!
































