Øyjordsveien 27
3 450 000 kr
62 m²
2 soverom
Solgt

Presenteres av
Thomas GamnesLys og lekker 3-roms med solrik balkong | Hyggelig bomiljø nær buss, butikk, turområder og NHH | Ingen dokumentavgift
Prisantydning
3 450 000 krAndel fellesgjeld
228 457 krOmkostninger
11 040 krTotalpris
3 689 497 kr
Pris
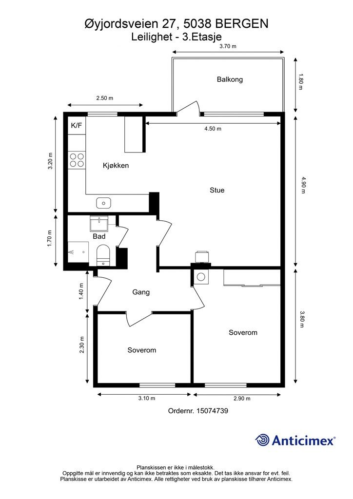
Bruksareal
67 m²BRA-I (internt bruksareal)
62 m²BRA-E (eksternt bruksareal)
5 m²TBA (terrasse-balkongareal)
7 m²
Areal
Etasje
3Byggeår
1966Soverom
2 soveromType
AndelsleilighetEierform
AndelFasiliteter
Balkong/TerrasseFellesutgifter
5 934 krEnergimerke
Oransje E
Nøkkelinfo
Unngå doble boligrenter
Vi tilbyr gunstig forsikring.
Vurderer du utleie?
Få et tilbud fra Utleie KrogsveenHva koster lånet?
Sjekk estimert lånekostnadBeskrivelse
Kort om eiendommen
Velkommen til Øyjordsveien 27! Leiligheten har en attraktiv beliggenhet i et veldrevet borettslag. Her er det landlige og idylliske omgivelser, men likevel sentrumsnært, da man kommer seg til Bergen sentrum på omtrent 14 minutter med mange busslinjer.
Kort fortalt:
Kjøkken pusset opp i 2019
Nytt gulv i hele leiligheten i 2020
Vedovn
Grunnpakke tv/internett inkl. i felleskostnadene
Romslig stue med flott lysinnslipp
Sørvest vendt balkong på 7 m² med gode solforhold
Pent helfliset bad fra 2019
To eksterne boder
Området:
Kollektivtransport like ved
Gangavstand til NHH
Gangavstand til Rema 1000 og Spar
Flotte turmuligheter i området med bl.a. Munkebotn, Eidsvåg og byfjellene
Område
Legg til steder som er viktige for deg
Megler

Thomas Gamnes
Eiendomsmegler
På flyttefot? Tenk kjøp og salg samtidig.
Få din egen rådgiver gjennom hele kjøps- og salgsprosessen. Det starter med en verdivurdering.
Unngå doble boligrenter
Vi tilbyr gunstig forsikring.
Vurderer du utleie?
Få et tilbud fra Utleie KrogsveenHva koster lånet?
Sjekk estimert lånekostnadVil du varsles om lignende boliger?
Ved å lagre ditt boligsøk hos oss får du beskjed når vi har en bolig som ligner denne, før den legges ut på markedet!
På flyttefot? Slik gjør vi det enklere for deg
Skreddersydd flyttepakke
Vi fikser håndverkere, vask, pakking, lagring og transport, og legger ut for utgiftene underveis.
Hjelp med både kjøp og salg
Hos oss har du din egen rådgiver gjennom hele kjøps- og salgsprosessen.
Hjelp til finansiering
Vårt samarbeid med BN Bank sikrer deg rask og løsningsorientert hjelp, til konkurransedyktige betingelser.
