Richard Eidsvigs veg 18
5 300 000 kr
197 m²
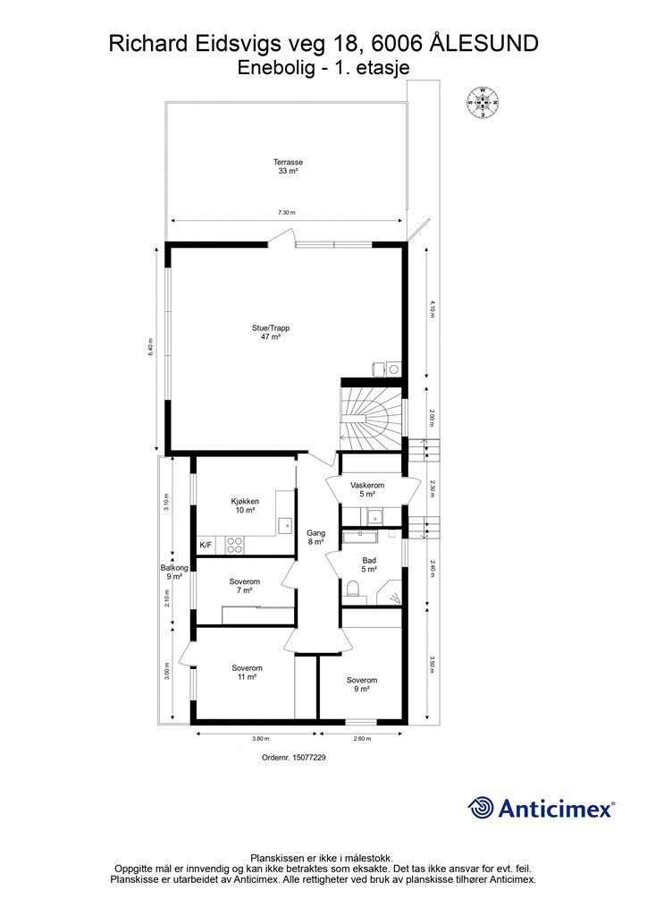
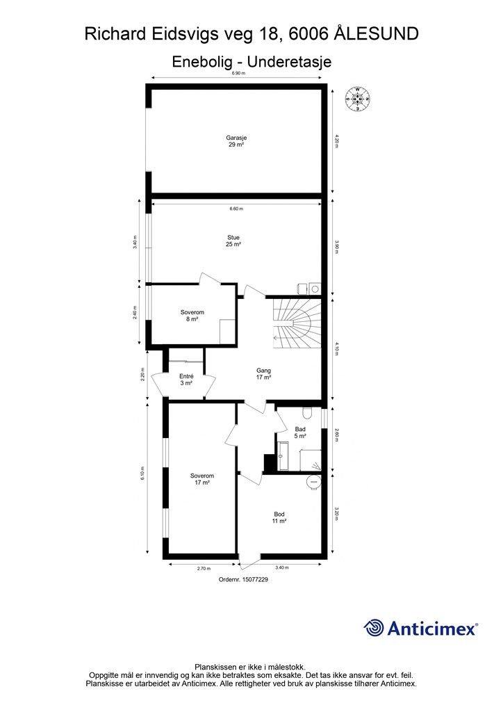
3 soverom
Solgt

Hessa syd
Visning onsdag 03.12.25 - Frittliggende enebolig | Sydvendt utsiktstomt | Svært attraktiv beliggenhet | Garasje
Prisantydning
5 300 000 krOmkostninger
153 490 krTotalpris
5 453 490 kr
Pris
Bruksareal
226 m²BRA-I (internt bruksareal)
197 m²BRA-E (eksternt bruksareal)
29 m²TBA (terrasse-balkongareal)
48 m²
Areal
Etasje
2Byggeår
1984Soverom
3 soveromBad
2 badTomteareal
822 m² (eiet)Type
Enebolig - FrittliggendeEierform
EietFasiliteter
Garasje/P-plass og Balkong/TerrasseEnergimerke
Gul E
Nøkkelinfo
Unngå doble boligrenter
Vi tilbyr gunstig forsikring.
Vurderer du utleie?
Få et tilbud fra Utleie KrogsveenHva koster lånet?
Sjekk estimert lånekostnadBeskrivelse
Kort om eiendommen
Velholdt og koselig enebolig med svært attraktiv beliggenhet på Hessa. Boligen går over to plan og har en gjennomtenkt og god planløsning.
Dette er en lun og fin bolig man kan flytte rett inn i og trives godt. Boligen inneholder blant annet:
* 3 soverom
* 2 bad
* Terrasse på 33 kvm og balkong på 9 kvm
* Garasje med el-bil lader
* Eiendomstomt på 822 kvm
* Nydelig utsikt mot Hessafjorden, Sula og Breisundet
* Gode solforhold
* Kort vei til barneskole
* Barnehage like ved
Velkommen til påmeldingsvisning! Husk å meld deg på!
Område
Legg til steder som er viktige for deg
På flyttefot? Tenk kjøp og salg samtidig.
Få din egen rådgiver gjennom hele kjøps- og salgsprosessen. Det starter med en verdivurdering.
Unngå doble boligrenter
Vi tilbyr gunstig forsikring.
Vurderer du utleie?
Få et tilbud fra Utleie KrogsveenHva koster lånet?
Sjekk estimert lånekostnadVil du varsles om lignende boliger?
Ved å lagre ditt boligsøk hos oss får du beskjed når vi har en bolig som ligner denne, før den legges ut på markedet!

