Tjuvholmen allé 21
7 900 000 kr
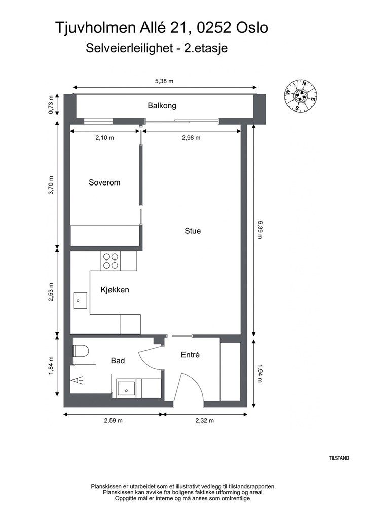
44 m²
1 soverom
Komplett salgsoppgave

Tjuvholmen
Stilren 2-roms med balkong med sjøutsikt - Heis - Garasjeplass – Felles takterrasse - Fjernvarme
Prisantydning
7 900 000 krOmkostninger
208 540 krTotalpris
8 108 540 kr
Pris
Bruksareal
49 m²BRA-I (internt bruksareal)
44 m²BRA-E (eksternt bruksareal)
5 m²TBA (terrasse-balkongareal)
4 m²
Areal
Etasje
2Byggeår
2012Soverom
1 soveromBad
1 badType
EierleilighetEierform
EierseksjonFasiliteter
Garasje/P-plass, Heis og Balkong/TerrasseFellesutgifter
4 534 krEnergimerke
Grønn D
Nøkkelinfo
Unngå doble boligrenter
Vi tilbyr gunstig forsikring.
Vurderer du utleie?
Få et tilbud fra Utleie KrogsveenHva koster lånet?
Sjekk estimert lånekostnadBeskrivelse
Kort om eiendommen
Velkommen til Tjuvholmen allé 21!
En lys og stilren selveierleilighet med ettertraktet beliggenhet på Tjuvholmen. Leiligheten har en moderne og sosial planløsning med store vindusflater og foldedører mot balkong som gir mye naturlig lys og en luftig atmosfære. Her bor du eksklusivt ved sjøkanten, med byliv, kulturtilbud, restauranter og rekreasjonsmuligheter i umiddelbar nærhet.
Høydepunkter:
- Attraktiv beliggenhet på eksklusive Tjuvholmen
- 4 kvm balkong med sjøutsikt
- Moderne bygg fra 2012 med gjennomgående god standard
- Lys og luftig leilighet med store vindusflater og foldedører mot balkong
- Åpen og sosial planløsning mellom stue og kjøkken
- Felles takterrasse
- Medfølgende garasje
Innhold og byggemåte
Innhold og byggemåte
Eiendommen
Tjuvholmen allé 21, 0252 OSLO
Kommunenummer 301, gårdsnummer 210, bruksnummer 44, seksjonsnummer 15, ideell andel 1/1
Kommunenummer 301, gårdsnummer 510, bruksnummer 8, seksjonsnummer 185, ideell andel 1/1
Innhold
Totalt bruksareal BRA: 49 kvm
BRA-i:
2. etasje 44 kvm: Entré, stue, kjøkken soverom, bad
BRA-e:
-1. etasje 5 kvm: Kjellerbod
Åpent areal:
2. etasje 4 kvm: Balkong
Boligen disponerer 1 kjellerbod i etasje -1. Boden er plassert bak garasjeplassen.
Vedlagte plantegninger er ikke målbare. De oppgitte arealer er hentet fra rapport med befaringsdato 19.01.2026 utført av Tilstand AS.
Byggemåte
Selger har fått utarbeidet en tilstandsrapport, dvs. en teknisk gjennomgang av boligen hvor eventuelle avvik, risiko for kjøper og prisoverslag for hva som bør gjøres av oppgradering, er skissert. Se særskilt TGIU (tilstandsgrad ikke undersøkt), samt TG2 som viser hva som er boligens normale slitasje, alder og type, hva som er avvik fra dette og hva som bør/må utbedres. Rapporten og selgers egenerklæring er en del av salgsoppgaven og må leses nøye før bud inngis. Kjøper overtar ansvaret for de opplysninger som fremkommer av salgsdokumentasjonen, og kan ikke gjøre gjeldende som mangel noe som burde vært kjent eller som ikke kan anses å ha betydning for avtalen.
Boligbygg fra 2012 over 9 etasjer samt kjeller. Bygningen har støpt gulv av betong. Etasjeskiller og bærende konstruksjoner av betong og stål. Yttervegger utvendig forblendet med teglstein og fasadeplater. Bygget har tilnærmet flatt yttertak, utvendig tekket med membran/papp (taket er ikke besiktiget). Les for øvrig mer om byggemåte og den tekniske tilstanden i rapporten
Sammendrag av boligens tilstandsgrader:
TG1: 24
TG2: 5
TGIU: 3
Det gjøres spesielt oppmerksom på:
Tilstandsgrad 2 (TG2):
- Våtrom (bad): Membran/tettesjikt, Sanitærutstyr, armaturer og innredning
- Kjøkken: Annet
- Øvrige rom: Overflate gulv, Innerdører
Tilstandsgrad ikke undersøkt (TGIU):
- Våtrom (bad): Kontroll i tilliggende konstruksjoner
- Tekniske anlegg: Balansert ventilasjon, Stakeluke
Kjøper overtar ansvar og risiko for dette. For mer utdypende informasjon om overnevnte punkter, henvises det til boligens tilstandsrapport.
Sammendrag av selgerens egenerklæring:
- Har du kjennskap til eiendommen? - "Eiendommen selges med fullmakt. Fullmaktshaver har ikke bebodd eiendommen og har derfor ikke spesifikk kunnskap om den. Det kan derfor være feil og mangler ved eiendommen som det ikke er spesifikt opplyst om. Kjøper oppfordres derfor til å foreta en særlig grundig undersøkelse av eiendommen, gjerne med bistand av teknisk sakkyndig"
Standard
E n t r é :
Lys og innbydende entré med plass til garderobeløsning. Praktisk skyvedør mot stue/kjøkken gir god flyt og effektiv arealutnyttelse. Leiligheten ligger i byggets 2. etasje med adkomst via delikat felles trappegang med callinganlegg og heis. Velkommen inn!
S t u e :
Romslig og luftig stue med store vindusflater og foldedører i glass som slipper inn rikelig med dagslys. Her er det god plass til både sofagruppe og spisebord. Den åpne løsningen mot kjøkkenet gir en sosial og moderne romfølelse, perfekt for både hverdag og hyggelige sammenkomster. Takhøyden på ca. 2,63 meter gir en ekstra luftig og behagelig romfølelse, og utgang til balkong gjør stuen ekstra innbydende på varme dager.
B a l k o n g :
Overbygget, nordvendt balkong på ca. 4 kvm. Plass til sittegruppe og småmøbler, et hyggelig uterom som blir en naturlig forlengelse av stuen. Stabilt stålrekkverk og god avrenning gir et trygt og funksjonelt uteareal.
K j ø k k e n :
Åpent og moderne kjøkken fra HTH med slette fronter fra byggeår og laminat benkeplate. Kjøkkenet er utstyrt med stekeovn, platetopp, oppvaskmaskin og kjøleskap med frysedel. Nedfelt oppvaskkum i stål, ventilator med avtrekk ut av bygget samt belysning og stikkontakter under overskap. En praktisk og sosial løsning mot stuen med god skap- og benkeplass.
S o v e r o m :
Rolig og behagelig soverom med god plass til dobbeltseng, nattbord og garderobeløsning. Rommet har et stort vindu med 3-lags glass som gir godt lysinnslipp på dagtid, samtidig som det sikrer gode lyd- og isolasjonsegenskaper, perfekt for en god natts søvn. Den romslige takhøyden på ca. 2,63 meter gir en luftig og behagelig romfølelse. Praktisk skyvedør sparer plass og bidrar til et stilrent uttrykk. Et innbydende og harmonisk rom.
B a d :
Delikat, flislagt baderom fra byggeår med gulvvarme. Nedsenket himling med integrerte downlights gir et moderne uttrykk. Badet er innredet med gulvstående servantinnredning, speilskap med belysning, vegghengt toalett med innebygget sisterne og dusjhjørne med glassvegger, regndusj og hånddusj. Opplegg for vaskemaskin under servantinnredningen.
Øvrig:
Gulv: Parkett i oppholdsrom og soverom, fliser på bad.
Vegger og himling: Vegg- og himlingsflater i malte flater.
Takhøyde: Entré/gang: 2,36 meter, Bad: 2,34 meter, Soverom: 2,63 meter, Stue/kjøkken: 2,63 meter
Løsøre og tilbehør
Hvitevarer vil medfølge salget.
Vi viser til liste fra Norges Eiendomsmeglerforbund som gjelder fra 01.01.2020 angående løsøre og tilbehør.
Oppvarming
Leiligheten er tilknyttet felles varmtvann/oppvarming med vannbåren varme til radiator i stue og på soverom. Gulvvarme på bad.
Dersom beboelsesrom ikke har vegg- eller fastmonterte varmekilder ved visning, følger dette heller ikke med.
Ferdigattest/brukstillatelse
Det foreligger ferdigattest på Oppføring av kontorbygg og boligblokker, datert 04.04.2017 og ferdigattest på Installasjon av brannanlegg, datert 29.09.2025 Denne kan fås ved henvendelse til megler.
Sammenlignet med originale byggetegninger, fremstår leiligheten lik i dag.
Tinglyste heftelser og rettigheter
Leiligheten overdras fri for pengeheftelser.
Sameiet har legalpant for krav mot sameieren som følger av sameieforholdet iht. eierseksjonsloven § 31. Pantet er begrenset oppad til 2G, (G = folketrygdens grunnbeløp).
Det er tinglyst 8 servitutter på sameiets eiendom og følgende antas å ha betydning for kjøpers bruk: Dagboknr 164185, tinglyst 23.02.2015, type heftelse: Bestemmelse om atkomstvei, Bestemmelse om fellesareal (anleggseiedom - parkering/boder), bestemmelse om bod, og erklæring om reparasjoner og vedlikehold.
De øvrige servituttene omhandler: blant annet erklæring/avtale om rett til å ha liggende ventilasjonsaggregater på eiendommen, bestemmelse om parkering, bestemmelse om bruksrett til boder.
Servituttene vil følge eiendommen. Kjøpers bank vil få pant etter ovennevnte heftelser og servitutter.
Eventuell adgang til utleie
Leiligheten kan leies ut såfremt leiligheten har forsvarlige radonverdier. Leietaker må følge sameiets vedtekter og ordensregler på lik linje som eier.
Beliggenhet og tomteforhold
Beliggenhet og tomteforhold
Beliggenhet
Tjuvholmen allé 21 har en meget attraktiv og sentral beliggenhet på eksklusive Tjuvholmen, et av Oslos mest ettertraktede og unike boligområder. Området kjennetegnes av moderne og prisvinnende arkitektur, flotte uteområder, maritime omgivelser og en helt særegen atmosfære. Her bor du bokstavelig talt ved sjøkanten, samtidig som du har sentrum og byens puls rett utenfor døren.
Tjuvholmen byr på en sjelden kombinasjon av natur, kultur og byliv. Med umiddelbar nærhet til sjøen, badestrand, strandpromenade, grønne lunger og den ikoniske skulpturparken, ligger alt til rette for en aktiv og avslappet livsstil. Astrup Fearnley Museet gir området et internasjonalt kulturpreg og er et naturlig samlingspunkt for både beboere og besøkende.
Området har et bredt og variert servicetilbud med dagligvareforretninger, spesialbutikker og et rikt utvalg av populære restauranter og kaféer. Blant favorittene finner man blant annet Amazonia, Hanami, Olivia, Døgnvill, New Delhi, Vin Tjuvholmen og Tjuvholmen Sjømagasin, perfekt enten du ønsker en rask kaffe, en uformell middag eller en eksklusiv restaurantopplevelse. Aker Brygge ligger kun få minutters gange unna og utvider tilbudet ytterligere med shopping, serveringssteder og underholdning.
Kommunikasjonsmulighetene er svært gode. Det er kort gange til trikkelinje 12 fra Aker Brygge (Vestbanen), med direkte forbindelse til Oslo Sentralbanestasjon den ene veien og Majorstuen den andre. Busslinje 32 går fra Munkedamsveien mot Sjølyst og Kværnerbyen (med stopp i Bjørvika), mens buss 54 går til Kjelsås og buss 21 til Helsfyr fra Tjuvholmen.
I tillegg går det egen ferge fra Aker Brygge til Bygdøy, øyene i Oslofjorden, og Nesodden et unikt og stemningsfullt alternativ til daglig transport og helgeturer. Nasjonalteateret stasjon, med tog, flytog, buss og T-bane, nås på ca. 10 minutters gange, noe som gir enkel tilgang til hele Oslo og resten av landet.
Kort oppsummert er Tjuvholmen et område som har «alt»: sjø, strand, kultur, grønne omgivelser, handel, serveringssteder og kollektivtilbud, og er et ideelt sted for deg som ønsker å bo ved vannkanten, midt i byen.
Adkomst
Det vil bli skiltet med Krogsveen visningsskilt ved fellesvisninger.
Barnehager, skoler og fritid
Informasjon om tilhørende skolekretser er hentet fra Prognosesenteret som dataleverandør, og tilhørigheten kan årlig endres av kommunen. Dersom skole- og barnehagetilbud er av betydning for kjøpet, ber vi om at det rettes en særskilt henvendelse til bydelsadministrasjonen for oppdatert informasjon.
Parkering
Garasjeplass 2714 på plan 4 i garasjeanlegget medfølger leiligheten.
Plassen er pr. i dag leid ut. Leietager er sagt opp og garasjen vil være tilgjengelig fra og 01.05.2026.
Månedlige fellesutgifter for garasje er kr. 710,-
Ellers gateparkering etter områdets bestemmelser.
Det er innført beboerparkering i dette området (indre by). Dette betyr at du kan parkere fritt døgnet rundt på parkeringsplassene regulert til beboerparkering i området rundt din bolig for kun kr. 3.850- pr. år for fossile biler, dieselbil, hybridbil, ladbar hybrid.
Har du el-bil så betaler du kr. 1.300,- pr år, hydrogenbil og el-varebil er gratis.
Motorsykkel og moped kr 1.925,- pr år.
El-motorsykkel og el-moped kr 650,- pr år.
Se Oslo kommune sine nettsider for mer informasjon og priser for ytre by.
Vei, vann og avløp
Eiendommen har adkomst via kommunal vei.
Eiendommen er tilknyttet kommunalt ledningsnett via private stikkledninger.
Sameiet er ansvarlig for private stikkledninger til bygningen.
Regulerings-og arealplaner
Eiendommen er regulert til bolig, forretning, kontor, bevertning, allmennyttig formål i henhold til reguleringsplan S-4097 datert 22.6.2004 med tilhørende reguleringsbestemmelser datert 22.6.2004.
Det foreligger planer for utbygging av Filipstad.
Planen er helt eller delvis opphevet som følge av bystyrets vedtak 23.09.2015 sak 262 gjennom ny "Kommuneplan 2015 - Oslo mot 2030 - Smart, trygg og grønn." Området blir berørt av endringer i reguleringsplan for Oslo Sentrum og indre sone i Oslo kommune som følge av dette. Denne nye planen får betydning for en rekke vedtatte reguleringsplaner i Oslo. Henviser til kommunens nettsider for ytterligere informasjon: https://www.oslo.kommune.no/politikk-og-administrasjon/politikk/kommuneplan/.
Utsnitt av plan med tilhørende bestemmelser kan fås ved henvendelse til megler.
Økonomi
Økonomi
Boligens kostnader
Fellesutgiftene er kr 4 534,- pr. mnd. og inkluderer:
Fyring, varmtvann, kabel-tv og internett(grunnpakke), kommunale avgifter, rep og vedlikehold, m.m.
Fellesutgiftene justeres normalt en til to ganger årlig i forhold til sameiets faktiske utgifter og ble sist justert 01.01.2026
I tillegg kommer ,månedlige fellesutgifter for garasje på kr. 710,- som faktureres kvartalsvis.
Nåværende eier har et strømforbruk som tilsvarer ca. 3589 kwh. pr. år.
Boligen er tilknyttet Telia som leverandør av kabel-tv. Grunnpakke er inkludert i felleskostnadene. Tv-tuner/dekoder medfølger ikke.
Utgiftene er basert på nåværende eiers forbruk. Kjøper må selv tegne innboforsikring.
Formuesverdi
Formuesverdi for 2024 var kr 1 558 130,- ifølge Skatteetaten. Beløpet forutsetter at eier bor fast i boligen (primærbolig).
Ved eventuell øvrig bruk av eiendommen (f.eks. fritidsbolig, pendlerbolig, utleieobjekt) var formuesverdien for 2024 kr 6 232 520,-.
Formuesverdien justeres normalt årlig.
Fra 2026 har Stortinget vedtatt en oppdatert modell for beregning av formuesverdi for primærbolig, så avvik kan forekomme.
For mer informasjon se skatteetaten.no
Omkostninger
7 900 000,00 Prisantydning
Omkostninger
197 500,00 Dokumentavgift til staten (2,5% av kjøpesum)
9 950,00 Gjensidige Boligkjøperpakke (valgfri)
545,00 Tinglysing panterettsdokument
545,00 Tinglysing skjøte
--------------------------------------------------------
208 540,00 Omkostninger totalt
--------------------------------------------------------
8 108 540,00 Totalpris inkl. omkostninger
--------------------------------------------------------
Tilbud om lånefinansiering
Megler formidler gjerne kontakt med rådgiver hos vår samarbeidspartner BN Bank. De har konkurransedyktige betingelser samt rask og løsningsorientert behandling av din lånesøknad. Krogsveen mottar et honorar dersom lån opprettes.
Betalingsbetingelser
Kjøpesum inkludert omkostninger, samt pantedokument tilknyttet eventuelt lån, skal være disponibelt hos megler 2 virkedager før overtagelsen.
Annen viktig informasjon
Annen viktig informasjon
Eier
Karin Bomann-Larsen
Informasjon om sameiet
Eiendommen er seksjonert, og leiligheten er tilknyttet Sameiet Tjuvholmen Allé 21,23 og 25 med sameiebrøk 54/5439
Sameiet består av 69 leiligheter og 6 næringsseksjoner.
Forretningsfører er Sebra Forvaltning AS.
Dyrehold er tillatt.
Foretatt påkostninger de senere år:
- Bytte ødelagte balkongglass.
- Reparasjon av lekkasje i fasadene
- Oppgradering av heisen.
- Investert i brannvarslingsanlegg.
Planlagte påkostninger:
- Fuger på terrassene må utbedres. Estimert til ca. 300 000,-. Det forventes at det vil bli finansiert delvis med oppsparte midler og ved kapitalinnkreving. Iht. eierbrøk vil det utgjøre kr. ca. 3.000,- for denne seksjonen. Videre planlegger sameiet for å utarbeide vedlikeholdsplan for å skaffe en oversikt over fremtidig vedlikehold. Ellers løpende vedlikehold.
Om 10-12 år vil man måtte bytte anoder (konstruksjoner under vann) Kostnad for dette sameiet vil være ca. 1,1 mill. Sameiet vurderer å etablere vedlikeholdsfond for å imøtekomme denne kostnaden når prosjektet vil bli igangsatt.
Iht. sameiets vedtekter må kjøper godkjennes av styret som ny sameier. Det er kjøpers ansvar at styregodkjenning blir gitt, men styret kan ikke nekte godkjenning uten saklig grunn.
Vi gjør videre oppmerksom på at det iht. eierseksjonsloven ikke er anledning å erverve mer enn 2 seksjoner i sameiet, her teller også eierskap via. firma, nærstående og familie. Kjøper har risikoen for at overskjøting på denne bakgrunn kan nektes av Statens Kartverk. I så fall vil kjøper uansett være forpliktet til å gjennomføre handelen, og oppgjør til selger vil finne sted tross manglende overskjøting. Konferer med megler for mer informasjon.
Dokumenter for sameiet og kopi av seksjonsbegjæringen kan fås ved henvendelse til megler.
Overtakelse
Etter nærmere avtale.
Boligselgerforsikring
Selger har i forbindelse med salget tegnet boligselgerforsikring levert av Gjensidige.
Boligselgerforsikringen dekker selgers ansvar etter avhendingsloven begrenset oppad til kr 14 millioner. Dersom kjøper oppdager forhold ved eiendommen som hen mener utgjør en mangel ved eiendommen, vil Gjensidige behandle reklamasjonen på vegne av selger. Forsikringsvilkår kan fås ved henvendelse til megler.
Vedlagt salgsoppgaven følger selgers egenerklæringsskjema og tilstandsrapport. Interessenter må sette seg inn i dokumentene før bud inngis.
Boligkjøperforsikring
Innen kontraktsmøtet må kjøper ta stilling til om det ønskes å bestille Boligkjøperpakken gjennom Gjensidige. I denne gunstige pakken er boligen ferdig forsikret og inkluderer rettshjelpsforsikring, også kalt Boligkjøperforsikring. Rettshjelpsforsikring gir trygghet og tilgang på profesjonell juridisk hjelp dersom det oppdages uventede feil eller mangler det første året etter overtagelse. Forsikringsselskapet behandler i så fall ethvert mangelskrav kjøper måtte ha overfor selger.
Boligkjøperpakken inkluderer bygningsforsikring for hus og hytte, innboforsikring, flytteforsikring og dobbel rentedekning - i situasjoner hvor kjøper ikke får solgt nåværende primærbolig.
Kjøper mottar ingen særskilt faktura for Boligkjøperpakken da kostnaden det første året legges til kjøpesummen for boligen. Det gjøres oppmerksom på Krogsveen mottar et honorar for denne formidlingen.
Produktark for Boligkjøperpakken ligger vedlagt i salgsoppgaven.
Dersom ikke boligkjøperpakke ønskes kan kun rettshjelpsforsikring, også kalt boligkjøperforsikring, tegnes særskilt via megler. Rettshjelpsforsikringen varer i 5 år fra overtagelse og leveres gjennom Gjensidige. Ta kontakt med megler for ytterligere informasjon.
Selskap og privatpersoner som driver med kjøp/salg/utvikling som ledd i egen næringsvirksomhet kan ikke tegne boligkjøperpakke eller rettshjelpsforsikring.
Budgivning
Forbrukerinformasjon om budgivning er vedlagt denne salgsoppgaven og er også på vår hjemmeside Krogsveen.no. Alle bud og budforhøyelser må inngis skriftlig. I tillegg må legitimasjon være fremlagt sammen med signatur fra budgiver.
Vi oppfordrer til å gi bud elektronisk via GI BUD-knappen på eiendommens hjemmeside på Krogsveen.no. Da vil samtlige vilkår bli oppfylt.
Eventuelle forhøyelser eller endringer av budet kan bekreftes pr SMS eller på e-post. Vi oppfordrer alltid til å kontakte megler pr. telefon i tillegg da forsinkelser i SMS og e-post kan forekomme.
For at budene skal kunne bli behandlet og videreformidlet skriftlig til alle involverte parter, må alle bud ha en tilstrekkelig lang akseptfrist, jf. eiendomsmeglingsforskriften § 6-3.
Selger må også skriftlig akseptere budet før aksept kan formidles til budgiver. Akseptfrist bør derfor være på minimum 30 minutter, og budforhøyelser må derfor skje i god tid før fristens utløp.
Bud i forbrukerforhold kan uansett ikke settes med kortere frist enn kl. 12.00 første virkedag etter siste annonserte visning. I tillegg kan ikke budet ha forbehold om at det skal holdes hemmelig ovenfor øvrige interessenter. Megler har iht lov om eiendomsmegling ikke anledning til å videreformidle disse budene, og de vil dermed heller ikke bli journalført.
Etter at eiendommen er solgt vil kjøper og selger få tilsendt budjournal. Øvrige budgivere kan få utlevert kopi av budjournalen i anonymisert form.
Hvitvaskingsreglene
I henhold til lov om hvitvasking og terrorfinansiering har megler plikt til å gjennomføre kontrolltiltak overfor kunder, herunder fullmektiger. Dette innebærer bl.a. å bekrefte kunders og reelle rettighetshaveres identitet på bakgrunn av fremvist gyldig legitimasjon eller på annen godkjent måte, samt å innhente opplysninger om kundeforholdets formål og tilsiktede art.
Dersom slike kundetiltak ikke kan gjennomføres, kan megler ikke etablere kundeforholdet eller utføre transaksjonen.
Hvis kjøper ikke bidrar til gjennomføring av kundekontrollen og dette fører til at transaksjonen blir forsinket eller ikke kan gjennomføres, vil dette ansees som mislighold av avtalen og gi selger rettigheter etter avhendingslova kapittel 5. I tilfeller der selger ikke bidrar til gjennomføring av løpende kundekontroll underveis i oppdraget, er det selger som misligholder sine forpliktelser etter avtalen og gi kjøper rettigheter etter avhendingslovens kapittel 4. Partene er selv ansvarlige for eventuelle kostnader og ansvar dette kan medføre. Eiendomsmegleren eller eiendomsmeglingsforetaket kan ikke holdes ansvarlig for de konsekvenser dette vil kunne få for partene eller andre som har interesser i eiendomshandelen.
Kjøper oppfordres til å innbetale kjøpesummen som ikke kommer fra låneinstitusjon i én samlet innbetaling fra egen konto i norsk bank. Megler har plikt til å melde fra til Økokrim om eiendomshandler som fremstår som mistenkelige. Melding sendes Økokrim uten at partene varsles.
Personopplysningsloven
I henhold til personopplysningsloven gjør vi oppmerksom på at interessenter kan bli registrert for videre oppfølging.
Lovanvendelse
Generelle bestemmelser
Salgsoppgaven er basert på de opplysningene selger har gitt til megler, den bygningssakyndiges tilstandsrapport, samt opplysninger innhentet fra kommunen, Kartverket og andre tilgjengelige kilder. Det er viktig at kjøper setter seg grundig inn i alle salgsdokumentene, herunder salgsoppgave, tilstandsrapport og selgers egenerklæring. Kjøper anses kjent med forhold som er tydelig beskrevet i salgsdokumentene, og slike forhold kan ikke påberopes som mangler. Dette gjelder uavhengig av om kjøper har lest dokumentene. Alle interessenter oppfordres til å undersøke eiendommen nøye, gjerne sammen med fagkyndig før bud inngis. Kjøper som velger å kjøpe usett kan ikke gjøre gjeldende som mangel noe han burde blitt kjent med ved undersøkelsen.
Dersom det er behov for avklaringer, anbefaler vi at interessenter rådfører seg med eiendomsmegler eller egne rådgivere før det legges inn bud.
En bolig som har blitt brukt i en viss tid, har vanligvis blitt utsatt for slitasje og skader kan ha oppstått. Slik bruksslitasje må kjøper regne med, og det kan avdekkes enkelte forhold etter overtakelse som nødvendiggjør utbedringer. Normal slitasje og skader som nødvendiggjør utbedring, er innenfor hva kjøper må forvente og vil ikke utgjøre en mangel.
Kjøper og selgers rettigheter og plikter reguleres av avtalen mellom partene, samt informasjonen som har vært tilgjengelig for kjøperen i forbindelse med handelen. Avtalen utfylles av avhendingsloven, og det gjelder ulike avtalevilkår avhengig av om kjøper er forbrukerkjøper eller ikke. Dette er nærmere beskrevet nedenfor.
På grunn av ulike avtalevilkår kan selger vurdere bud fra en som ikke er forbruker, ulikt fra en forbrukers bud. Dersom kjøper ikke er forbruker, er selger sitt mulige mangelsansvar begrenset fordi eiendommen selges "som den er". Selger kan ikke ta «som den er»- forbehold overfor en forbrukerkjøper. Selv et lavere bud fra en som ikke er forbruker kan foretrekkes fordi begrensningen i mulig mangelsansvar kan ha egenverdi for selger. Selger står fritt til å forkaste eller akseptere ethvert bud, og er for eksempel ikke forpliktet til å akseptere høyeste bud.
Budgiver skal i budskjema avgi egenerklæring om budgiver er forbruker eller næringsdrivende/ person som hovedsakelig handler som ledd i næringsvirksomhet. Budgivere får informasjon dersom andre bud er inngitt av en som ikke er forbruker.
Forbrukerkjøp - definisjon
Med forbrukerkjøp menes kjøp av eiendom når kjøperen er en fysisk person som ikke hovedsakelig handler som ledd i næringsvirksomhet.
Forbruker – avtalevilkår
Eiendommen har en mangel dersom den ikke er i samsvar med kravene som følger av avtalen, eller det foreligger brudd på bestemmelsene i avhendingsloven §§ 3-2 til 3-8. Hvis eiendommen ikke er i samsvar med det kjøperen må kunne forvente ut ifra alder, type og synlig tilstand, kan det være grunnlag for mangelskrav. Det samme gjelder hvis det er holdt tilbake eller gitt uriktige opplysninger om eiendommen. Dette gjelder likevel bare dersom man kan gå ut ifra at det virket inn på avtalen at opplysningen ikke ble gitt eller at mangelskravet ikke blir rettet i tide på en tydelig måte.
Boligen kan ha en mangel etter avhendingsloven § 3-3 andre ledd, dersom det er avvik mellom opplyst og faktisk innvendig areal, forutsatt at avviket er på 2% eller mer og minimum 1 kvm.
Ved beregning av et eventuelt prisavslag eller erstatning må kjøper selv dekke tap/kostnader opptil et beløp på kr 10 000 (egenandel).
Ikke-forbruker (næringsdrivende) – definisjon
Hvis kjøper er en juridisk person, eller en fysisk person som hovedsakelig handler som ledd i næringsvirksomhet, vil kjøpet ikke anses som et forbrukerkjøp.
Ikke-forbruker – avtalevilkår
Eiendommen har en mangel dersom den ikke er i samsvar med kravene som følger av avtalen.
Eiendommen selges «som den er», og selgers ansvar utover det konkret avtalte er da begrenset etter avhendingsloven § 3-9, første ledd andre setning.
Avhendingsloven § 3-3 andre ledd fravikes, og hvorvidt boligens arealsvikt utgjør en mangel vurderes etter avhendingsloven § 3-8.
Informasjon om kjøpers undersøkelsesplikt, herunder oppfordringen om å undersøke eiendommen nøye, gjelder også for kjøpere som ikke anses som forbrukere.
Det forutsettes at hjemmel overføres til kjøper. Hvis kjøper ikke ønsker hjemmelsoverføring av eiendommen, må det tas forbehold om dette i budet.
Meglers vederlag
Vi er opptatt av verdiskapning, og har knyttet til oss samarbeidspartnere som skal sikre våre kunder de beste produkter og tjenester;
• I forbindelse med forberedelse av salget, innhenter vi informasjon om eiendommen hovedsakelig fra vår samarbeidspartner Amibita.
• Gjensidige leverer boligselgerforsikring og tilbyr bygningsforsikring
• Boligkjøperforsikring leveres av Hiscox og med Sedgwick som skadebehandler, og er formidlet gjennom Gjensidige.
• BN bank tilbyr finansieringsløsninger
• Vår avdeling Krogsveen Pluss tilbyr flyttetjenester som utvask, visningsvask, lager, tømming og transport av flyttelass, i tillegg til å formidle kontakt med Flip for overflateoppussing.
• I forbindelse med overtagelse av eiendommen tilbyr Overo avtale om strøm, alarm og bredbånd.
• Krogsveen er, sammen med øvrige bransjeaktører, medeier i Bomega AS som tilbyr den digitale annonseringsplattformen Hjem.
Opplysninger om oppdraget
Oppdragsnummer 40-0253/25
Eiendomsmegler Krogsveen AS, avd. Majorstuen og Oslo Vest
Hegdehaugsveien 31, 0352, OSLO
950 007 613
Oppdragets KR-kode KR40.25253
Dato
Sist oppdatert: 26. mars 2026 kl. 15:24
Dokumenter
Dokumenter
PDF – 930 KB
PDF – 414 KB
PDF – 680 KB
PDF – 312 KB
PDF – 29 KB
PDF – 127 KB
PDF – 392 KB
Område
Legg til steder som er viktige for deg
Visning
Det er ingen planlagte visninger. Meld deg på for å avtale en tid som passer.
Lurer du på noe?
Unngå doble boligrenter
Vi tilbyr gunstig forsikring.
Vurderer du utleie?
Få et tilbud fra Utleie KrogsveenHva koster lånet?
Sjekk estimert lånekostnadVil du varsles om lignende boliger?
Ved å lagre ditt boligsøk hos oss får du beskjed når vi har en bolig som ligner denne, før den legges ut på markedet!

