Vigernesgata 5A
6 600 000 kr
158 m²
2 soverom
Komplett salgsoppgave

Lillestrøm/Vigernes
Påkostet halvpart tomannsbolig over 2 plan | Koselig hage | El-bil lader | Gangavstand til sentrum
Prisantydning
6 600 000 krOmkostninger
185 990 krTotalpris
6 785 990 kr
Pris
Bruksareal
167 m²BRA-I (internt bruksareal)
158 m²BRA-E (eksternt bruksareal)
9 m²TBA (terrasse-balkongareal)
8 m²
Areal
Etasje
1Byggeår
1956Soverom
2 soveromBad
1 badType
Halvpart horisontaldelt boligEierform
EierseksjonFasiliteter
Balkong/TerrasseEnergimerke
Oransje E
Nøkkelinfo
Unngå doble boligrenter
Vi tilbyr gunstig forsikring.
Vurderer du utleie?
Få et tilbud fra Utleie KrogsveenHva koster lånet?
Sjekk estimert lånekostnadBeskrivelse
Kort om eiendommen
Velkommen til trivelige Vigernes! - Innbydende tomannsbolig, beliggende i godt etablert boligområde. Boligen ligger i gangavstand fra Lillestrøm sentrum med nærhet til buss, skoler og barnehage.
Boligen har en romslig planløsning med store soverom, og godt med plass for oppbevaring og lagring.
• God og praktisk romløsning over 2 plan. Opprinnelig 3 soverom.
• Parkeringsplass med EL-bil lader
• Innredet kjeller med soverom, bad, stue, hobbyrom, vaskerom og 3 boder. Rom i kjeller er ikke godkjent til rom for varig opphold
• Nye overflater og gulv 1.etg.
• Varmepumpe
• Overbygget terrasse og hyggelig del av hage
• Barnevennlig og attraktivt boligområde
• Turområder med gang- og sykkelveier rett i nærheten
• Nær butikk, buss, barnehage og skoler
Velkommen til visning!
Innhold og byggemåte
Innhold og byggemåte
Eiendommen
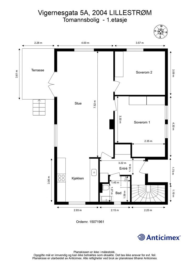
Vigernesgata 5A, 2004 LILLESTRØM
Kommunenummer 3205, gårdsnummer 82, bruksnummer 63, seksjonsnummer 1, ideell andel 1/1
Innhold
Totalt bruksareal BRA: 167 kvm
BRA-i:
-1. etasje 78 kvm: Vaskerom, toalettrom, rom benyttet som soverom, kjellerstue og tre innvendige boder
1. etasje 80 kvm: Entré, bad, to soverom og stue med åpenkjøkkenløsning
Åpent areal:
1. etasje 8 kvm: Terrasse
Boligen disponerer 1 utebod på 9 kvm i felles bodbygg.
Vedlagte plantegninger er ikke målbare.
De oppgitte arealer er hentet fra rapport med befaringsdato 07.08.2025 utført av Anticimex AS. Arealene er beregnet og rom er definert etter dagens faktiske bruk, uavhengig av hva som er godkjent av bygningsmyndighetene.
Det gjøres oppmerksom på at kjelleren ikke er godkjent for varig opphold.
Byggemåte
Selger har fått utarbeidet en tilstandsrapport, dvs. en teknisk gjennomgang av boligen hvor eventuelle avvik, risiko for kjøper og prisoverslag for hva som bør gjøres av oppgradering, er skissert. Se særskilt TGIU (tilstandsgrad ikke undersøkt), samt TG2 og TG3 som viser hva som er boligens normale slitasje, alder og type, hva som er avvik fra dette og hva som bør/må utbedres. Rapporten og selgers egenerklæring er en del av salgsoppgaven og må leses nøye før bud inngis. Kjøper overtar ansvaret for de opplysninger som fremkommer av salgsdokumentasjonen, og kan ikke gjøre gjeldende som mangel noe som burde vært kjent eller som ikke kan anses å ha betydning for avtalen.
Bygningen er iht. tilstandsrapporten oppført i tre/mur. Les for øvrig mer om byggemåte og den tekniske tilstanden i rapporten.
Det gjøres oppmerksom på at følgende er gitt TG3:
- Det mangler rekkverk på trappen til hagen. Rekkverk må etableres.
Estimert prisanslag: kr 10 000 - 20 000,-
For øvrig er det gitt TG2 for følgende:
Baderom 1.etasje:
- Ventilasjon
- Overflater vegger, himling og gulv
Vaskerom kjelleretasje:
- Vannrør
- Overflater vegger
- Membran, tettesjikt og overgang til sluk
- Fallforhold (gulv)
- Avløpsrør (ink. sluk)
Kjøkken 1.etasje - Vannrør
Toalettrom kjelleretasje - Ventilasjon
Øvrige rom - 1.etasje:
- Overflater vegger
- Innerdører
Rom under terreng - Kjelleretasje
- Overflater vegger
- Konstruksjoner (tilfarergulv, himling og vegger)
- Innerdører
Trapp mellom 1.etasje og kjelleretasje
Etasjeskiller - 1.etasje - Skjevhetsmåling
Tekniske anlegg, VVS anlegg:
- Varmtvannsbereder
- Vannrør
- Hovedstoppekran
- Avløpsrør
Fasader ink. kledning
Dører
Terrasser på terreng (understøttet av bjelker / pilarer)
Grunnmur
Drenering:
- Fuktsikring av grunnmur
- Alder
Se utfyllende tekst i rapporten.
Kjøper overtar ansvar og risiko for dette.
Standard
Velkommen til Vigernesgata 5A - En lekker og romslig halvpart tomannsbolig med god og funksjonell planløsning.
Overflatene er pusset opp i den senere tiden og har nye overflater i 1.etg. på gulv og vegger, samt nye gulv.
E n t r è
Boligen har innbydende entré med skyvedørsgarderobe for oppbevaring.
På døren inn til boligen er det montert kodelås for en praktisk og nøkkelfri hverdag.
S t u e /
k j ø k k e n
Stuen har store vindusflater og godt med naturlig lysinnfall, noe som gir god romfølelse og en hyggelig atmosfære.
I stuen er det både peisovn som varmer godt på de kalde vinterdagene, og varmepumpe som ble satt inn ny i 2023.
Denne kombinasjonen sørger for en god og lun innetemperatur året rundt.
Fra stuen er det utgang til en koselig og overbygget veranda som er vendt mot sør. Det ble lagt nye terrassebord våren 2025.
Fra verandaen er det trapp ned til hageareal.
Kjøkken med åpen løsning mot stue. Kjøkkenet ble pusset opp i 2019 og har en innholdsrik innredning med profilerte fronter, dører med glassfelt og benkeplater i slitesterk laminat.
Fliser og belysning mellom overskap og benk.
Integrerte hvitevarer som stekeovn og mikro i høyskap, nedfelt koketopp, oppvaskmaskin og kjøleskap.
De integrerte hvitevarene medfølger. Kjøper må forvente slitasje som følge alder og normal bruk.
B a d
Baderom fra 2014 med flislagte overflater på gulv og vegger.
Nedsenket himling med malt flate og downlights.
Baderomsinnredning med vegghengt servantskap, høyskap og speilskap.
Dusjhjørne med mosaikkfliser på gulv, innfellbare glassdører og dusjarmatur tilkoblet hånddusj og regndusj.
Vegghengt toalett med innebygget sisterne.
W C
Toalettrommet i kjelleren ble også pusset opp i 2014 og har flislagte overflater på gulv og vegger.
Nedsenket himling med malt flate og downlights og varmekabler i gulv.
Baderomsinnredning med servant og speilskap over.
Vegghengt toalett og innebygget sisterne.
V a s k e r o m
Separat vaskerom med flislagt gulv, og malte vegger.
Det er montert innredning med arbeidsflater og skap.
Opplegg for vaskemaskin og tørketrommel.
Varmekabler i gulv.
OSO varmtvannsbereder på 198 liter fra 2004 er plassert i bod i kjeller.
Hele boligen er holdt i lyse og innbydende farger. Kjelleren er ikke godkjent til varig opphold, men tilfører likevel familien verdifull tilleggsplass.
Det er kun integrerte hvitevarene i kjøkkenet som følger med.
Kjøper må forvente slitasje som følge alder og normal bruk.
Løsøre og tilbehør
Vi viser til liste fra Norges Eiendomsmeglerforbund som gjelder fra 01.01.2020 angående løsøre og tilbehør.
Lampe på hovedsoverom i 1.etg. og 2 lamper over spisebordet , følger ikke
Oppvarming
Boligen blir varmet opp med elektrisitet og vedfyring.
Det er peisovn i stuen, og varmepumpe montert 2023. Det foreligger rapport fra brannvesenet pr 03.09.2025, hvor det er påpekt at peisovnen står for nærme brannmuren. Det er dog ikke kommet pålegg om endring.
Varmekabler i gulv på bad 1.etg., Varmekabler på toalettrom, vaskerom, stue og 2 innredede rom i kjeller. Det er egne termostater i alle rom.
Dersom beboelsesrom ikke har vegg- eller fastmonterte varmekilder ved visning, følger dette heller ikke med.
Ferdigattest/brukstillatelse
Det foreligger ikke ferdigattest på eiendommen, men midlertidig brukstillatelse ble gitt 25.10.1956.
Det gjøres oppmerksom på at kjelleren er innredet/oppført etter at midlertidig brukstillatelse er gitt.
Kjelleren er opprinnelig byggemeldt som boder jf. byggetegninger datert 01.06.1954 og er ikke godkjent til varig opphold.
Innredning av rommene til bruk for varig opphold er ikke bruksendret/omsøkt og er heller ikke godkjent av kommunen. Kommunen vil ikke godkjenne søknad om bruksendring av kjeller til rom for varig opphold bl.a pga av flomfare. Forbudet gjelder for hele Lillestrøm sentrum.
Iht. originale bygningstegninger var det opprinnelig tre soverom i 1.etg. To av soverommene er i dag slått sammen og gjort om til ett større rom.
Kjøper overtar alt ansvar, kostnad og risiko for disse forhold videre.
Det gjøres oppmerksom på at det ikke lenger utstedes ferdigattest på tiltak det er søkt om før 1998 jf. plan- og bygningsloven § 21-10. Kommunen vil ikke kreve ferdigattest for disse tiltakene og vil avvise eventuelle søknader. Bestemmelsen innebærer ikke at tiltak med manglende søknad blir lovlige, men at man ikke trenger å avslutte gamle byggesaker. Normalt sett kreves ferdigattest for alle søknadspliktige tiltak som gjøres etter plan- og bygningsloven.
Tinglyste heftelser og rettigheter
Leiligheten overdras fri for pengeheftelser.
Det er tinglyst følgende servitutter på sameiets eiendom:
Dagboknr 100647, tinglyst 24.02.1943, type heftelse: Bestemmelse om vannledning - Gammel servitutt om å kunne ha vannledning gjennom Sørumsgata/(Nå Vigernesgata).
Dagboknr 103347, tinglyst 03.07.1954, type heftelse: Bestemmelse om bebyggelse - riving av gammelt bohus. Gjelder ikke lenger.
Videre følger seksjoneringsbegjæring datert 17.10.1994, samt reseksjonering datert 17.03.2021 hvor kjelleren tildeles seksjon 1 og loftsetasjen tildeles seksjon 2.
Servituttene vil følge eiendommen.
Kjøpers bank vil få pant etter ovennevnte heftelser og servitutter.
Eventuell adgang til utleie
Eiendommen har ikke separat utleieenhet. Det vil normalt være anledning til utleie av hele eiendommen eller enkeltrom, såfremt utleiearealet er bygningsmessig godkjent for varig opphold og har forsvarlige radonnivåer.
Beliggenhet og tomteforhold
Beliggenhet og tomteforhold
Beliggenhet
Boligen ligger i et rolig, hyggelig og svært barnevennlig boligområde på Vigernes - et tilbaketrukket strøk med korte avstander til skoler, offentlig kommunikasjon, rekreasjonsområder og alle byens fasiliteter.
Området gir mulighet for offentlig kommunikasjon via buss og tog. Fra Lillestrøm togstasjon går det hurtigtog/flytog til Oslo S/Oslo Lufthavn med en reisetid på ca. 12 minutter. Fra boligen er det drøye 20 minutter å gå til togstasjon og bussterminalen. Med bil tar det ca. 6 min til Strømmen, 8 min til Lørenskog, 19 min til Oslo S og 27 min til Oslo lufthavn.
Fra eiendommen er det gangavstand til barnehage og Vigernes barneskole. Det finnes flere videregående skoler i nærliggende områder, bl.a. Lillestrøm og Skedsmo Videregående, samt et godt utvalg av både private og kommunale barnehager. OsloMet – storbyuniversitetet har avdeling på Kjeller.
Dagligvarehandelen kan blant annet gjøres på Rema 1000 Meierikvartalet og Coop Extra. Ønsker du ytterligere servicetilbud ligger Lillestrøm Torv kjøpesenter, samt de øvrige handlegatene i Lillestrøm sentrum. Det er også kort vei til Coop Obs Hypermarked og Strømmen Storsenter, landets mest innholdsrike kjøpesenter.
I tillegg til kjøpesenter og koselige handlegater har Lillestrøm et flott kulturhus, moderne kino og et mangfold av restauranter, kafeer og uteplasser. På kulturfronten står Lillestrøm for store nysatsinger og kan by på et fristende utvalg av shopping og små spesialbutikker. På utescenen på torget arrangeres det ofte konserter og forestillinger. Byfesten er et av årets høydepunkt – da kryr sentrum av mennesker, mens kjente musikere underholder fra de mange scenene. Fra boligen er det også gangavstand til Åråsen fotballstadion. Litt bortenfor finner du koselige Sørum gård, Oksefjellet, fine turstier og Lillestrøm golfklubb.
Nebbursvollen Friluftsbad ligger ved Nitelva og er byens populære badested med basseng, grøntområder, kiosk m.m. I samme område finner du flotte tur- og rekreasjonsområder, samt opplyste stier. Lillestrøm satser stort på kunst og kultur, og det er utplassert flere statuer og andre kunstverk langs stiene.
Barnehager, skoler og fritid
Lillestrøm barnehage (1-5 år)
Lillehagen Fus barnehage (1-5 år)
Måsan barnehage (1-5 år)
Vigernes skole (1-7 kl.)
Volla skole (1-7 kl.)
Kjeller skole (1-10 kl.)
Sophie Radich skole (8-10 kl.)
Stav skole (8-10 kl.)
Lillestrøm videregående skole
Skedsmo videregående skole
Informasjon om tilhørende skolekretser er hentet fra Prognosesenteret som dataleverandør, og tilhørigheten kan årlig endres av kommunen. Dersom skole- og barnehagetilbud er av betydning for kjøpet, ber vi om at det rettes en særskilt henvendelse til kommunen for oppdatert informasjon.
Beskrivelse av tomt
Eiertomt på 592 kvm som tilhører sameiet. Tomtearealet deles med nabo i overetasjen. Det foreligger fordeling av tomt mellom seksjonene ihht vedtekter som følger som en del av salgsoppgaven.
Tomten er opparbeidet med plen, trær og busker. Gruslagt adkomst til boligen. Eiendommen har flatt terreng opparbeidet med grus m/singel ved innkjørsel og på gårdsplass. For øvrig plen, beplantning, busker og gjerde på tomten.
Parkering
Parkering utendørs på felles gårdsplass. Hver seksjon har en fast plas. Det er etablert elbillader.
For øvrig gateparkering etter områdets bestemmelser.
Vei, vann og avløp
Eiendommen har adkomst via kommunal vei.
Eiendommen er tilknyttet kommunalt ledningsnett via private stikkledninger.
Sameiet er ansvarlig for private stikkledninger til bygningen.
Regulerings-og arealplaner
Eiendommen ligger i et uregulert område, men er i kommuneplan avsatt til nåværende boligbebyggelse.
Utsnitt av plan med tilhørende bestemmelser kan fås ved henvendelse til megler.
Økonomi
Økonomi
Kommunale utgifter
Kommunale avgifter er estimert kr 15 612,- for inneværende år. I dette inngår gebyr for vann, avløp, renovasjon og feiing/tilsyn.
Det er installert vannmåler på eiendommen og kostnadene betales etter forbruk. Forbruk avleses etter henvendelse fra kommunen. Forbruk betales à konto basert på siste avlesning. Avregning foretas i forbindelse med neste forfall på kommunale avgifter. Det er en vannmåler for begge seksjoner. Pr i dag er avtalen at kostnader for vann deles 50/50 mellom seksjonene.
Det er vedtatt eiendomsskatt i Lillestrøm kommune. Denne seksjonen betaler ikke eiendomsskatt pt., men bør påregnes på et senere tidspunkt.
Nåværende eier har et strømforbruk som tilsvarer ca. 20.000 kwh. pr. år.
I selgers husstand har det bodd 2 mennesker.
Boligen har en årlig forsikringspremie på kr 12.000. Denne er felles for seksjonen (1. og 2.etg). Kostnaden deles 50/50
Boligen er tilknyttet Altibox som leverandør av tv/internett. Tv-tuner/dekoder medfølger ikke.
Boligen er tilknyttet alarmselskap. Alarmen medfølger ikke.
Utgiftene er basert på nåværende eiers forbruk og avtaler.
Formuesverdi
Formuesverdi for 2025 var kr 960 139,- ifølge skatteetaten. Beløpet forutsetter at eier bor fast i boligen (primærbolig).
Ved eventuell øvrig bruk av eiendommen (f.eks. fritidsbolig, pendlerbolig, utleieobjekt) var formuesverdien for 2023 kr 3 840 556,-.
Formuesverdien justeres normalt årlig. Se skatteetaten.no for mer informasjon om fastsettelse av formuesverdien.
Omkostninger
6 600 000,00 Prisantydning
Omkostninger
165 000,00 Dokumentavgift til staten (2,5% av kjøpesum)
19 900,00 Gjensidige Boligkjøperpakke (valgfri)
545,00 Tinglysing panterettsdokument
545,00 Tinglysing skjøte
--------------------------------------------------------
185 990,00 Omkostninger totalt
--------------------------------------------------------
6 785 990,00 Totalpris inkl. omkostninger
--------------------------------------------------------
Totalpris inkl. omkostninger forutsetter kjøp til prisantydning.
Det tas forbehold om endringer i avgifter og gebyrer.
Tilbud om lånefinansiering
Megler formidler gjerne kontakt med rådgiver hos Trøgstad Sparebank. De har konkurransedyktige betingelser samt rask og løsningsorientert behandling av din lånesøknad.
Megler formidler gjerne kontakt med rådgiver hos vår samarbeidspartner BN Bank. De har konkurransedyktige betingelser samt rask og løsningsorientert behandling av din lånesøknad. Krogsveen mottar et honorar for denne formidlingen.
Betalingsbetingelser
Kjøpesum inkludert omkostninger, samt pantedokument tilknyttet eventuelt lån, skal være disponibelt hos megler 2 virkedager før overtagelsen.
Annen viktig informasjon
Annen viktig informasjon
Eier
Nam Huu Vo og Maria Tram Phuong Mai
Informasjon om sameiet
Eiendommen er seksjonert, og Leiligheten er tilknyttet Sameiet Vigernesgata 5A sameie, med sameiebrøk 1/2.
Sameiet består av 2 leiligheter. Sameiet har ikke forretningsfører eller styre, og det føres ikke regnskap eller budsjett. Dersom det mottas felles regninger til sameiet vil kostnader bli fordelt etter nærmere regler angitt av sameiet, vanligvis etter sameiebrøk eller vedtekter.
Dugnad samt trappevask må påregnes.
Dyrehold er tillatt.
Dokumenter for sameiet og kopi av seksjonsbegjæringen kan fås ved henvendelse til megler.
Overtakelse
Etter nærmere avtale.
Boligselgerforsikring
Selger har i forbindelse med salget tegnet boligselgerforsikring levert av Gjensidige.
Boligselgerforsikringen dekker selgers ansvar etter avhendingsloven begrenset oppad til kr 14 millioner. Dersom kjøper oppdager forhold ved eiendommen som hen mener utgjør en mangel ved eiendommen, vil Gjensidige behandle reklamasjonen på vegne av selger. Forsikringsvilkår kan fås ved henvendelse til megler.
Vedlagt salgsoppgaven følger selgers egenerklæringsskjema og tilstandsrapport. Interessenter må sette seg inn i dokumentene før bud inngis.
Boligkjøperforsikring
Innen kontraktsmøtet må kjøper ta stilling til om det ønskes å bestille Boligkjøperpakken gjennom Gjensidige. I denne gunstige pakken er boligen ferdig forsikret og inkluderer rettshjelpsforsikring, også kalt Boligkjøperforsikring. Rettshjelpsforsikring gir trygghet og tilgang på profesjonell juridisk hjelp dersom det oppdages uventede feil eller mangler det første året etter overtagelse. Forsikringsselskapet behandler i så fall ethvert mangelskrav kjøper måtte ha overfor selger.
Boligkjøperpakken inkluderer bygningsforsikring for hus og hytte, innboforsikring, flytteforsikring og dobbel rentedekning - i situasjoner hvor kjøper ikke får solgt nåværende primærbolig.
Kjøper mottar ingen særskilt faktura for Boligkjøperpakken da kostnaden det første året legges til kjøpesummen for boligen. Det gjøres oppmerksom på Krogsveen mottar et honorar for denne formidlingen.
Produktark for Boligkjøperpakken ligger vedlagt i salgsoppgaven.
Dersom ikke boligkjøperpakke ønskes kan kun rettshjelpsforsikring, også kalt boligkjøperforsikring, tegnes særskilt via megler. Rettshjelpsforsikringen varer i 5 år fra overtagelse og leveres gjennom Gjensidige. Ta kontakt med megler for ytterligere informasjon.
Selskap og privatpersoner som driver med kjøp/salg/utvikling som ledd i egen næringsvirksomhet kan ikke tegne boligkjøperpakke eller rettshjelpsforsikring.
Budgivning
Forbrukerinformasjon om budgivning er vedlagt denne salgsoppgaven og er også på vår hjemmeside Krogsveen.no. Alle bud og budforhøyelser må inngis skriftlig. I tillegg må legitimasjon være fremlagt sammen med signatur fra budgiver.
Vi oppfordrer til å gi bud elektronisk via GI BUD-knappen på eiendommens hjemmeside på Krogsveen.no. Da vil samtlige vilkår bli oppfylt.
Eventuelle forhøyelser eller endringer av budet kan bekreftes pr SMS eller på e-post. Vi oppfordrer alltid til å kontakte megler pr. telefon i tillegg da forsinkelser i SMS og e-post kan forekomme.
For at budene skal kunne bli behandlet og videreformidlet skriftlig til alle involverte parter, må alle bud ha en tilstrekkelig lang akseptfrist, jf. eiendomsmeglingsforskriften § 6-3.
Selger må også skriftlig akseptere budet før aksept kan formidles til budgiver. Akseptfrist bør derfor være på minimum 30 minutter, og budforhøyelser må derfor skje i god tid før fristens utløp.
Bud i forbrukerforhold kan uansett ikke settes med kortere frist enn kl. 12.00 første virkedag etter siste annonserte visning. I tillegg kan ikke budet ha forbehold om at det skal holdes hemmelig ovenfor øvrige interessenter. Megler har iht lov om eiendomsmegling ikke anledning til å videreformidle disse budene, og de vil dermed heller ikke bli journalført.
Etter at eiendommen er solgt vil kjøper og selger få tilsendt budjournal. Øvrige budgivere kan få utlevert kopi av budjournalen i anonymisert form.
Hvitvaskingsreglene
I henhold til lov om hvitvasking og terrorfinansiering har megler plikt til å gjennomføre kontrolltiltak overfor kunder, herunder fullmektiger. Dette innebærer bl.a. å bekrefte kunders og reelle rettighetshaveres identitet på bakgrunn av fremvist gyldig legitimasjon eller på annen godkjent måte, samt å innhente opplysninger om kundeforholdets formål og tilsiktede art.
Dersom slike kundetiltak ikke kan gjennomføres, kan megler ikke etablere kundeforholdet eller utføre transaksjonen.
Hvis kjøper ikke bidrar til gjennomføring av kundekontrollen og dette fører til at transaksjonen blir forsinket eller ikke kan gjennomføres, vil dette ansees som mislighold av avtalen og gi selger rettigheter etter avhendingslova kapittel 5. I tilfeller der selger ikke bidrar til gjennomføring av løpende kundekontroll underveis i oppdraget, er det selger som misligholder sine forpliktelser etter avtalen og gi kjøper rettigheter etter avhendingslovens kapittel 4. Partene er selv ansvarlige for eventuelle kostnader og ansvar dette kan medføre. Eiendomsmegleren eller eiendomsmeglingsforetaket kan ikke holdes ansvarlig for de konsekvenser dette vil kunne få for partene eller andre som har interesser i eiendomshandelen.
Kjøper oppfordres til å innbetale kjøpesummen som ikke kommer fra låneinstitusjon i én samlet innbetaling fra egen konto i norsk bank. Megler har plikt til å melde fra til Økokrim om eiendomshandler som fremstår som mistenkelige. Melding sendes Økokrim uten at partene varsles.
Personopplysningsloven
I henhold til personopplysningsloven gjør vi oppmerksom på at interessenter kan bli registrert for videre oppfølging.
Lovanvendelse
Generelle bestemmelser
Salgsoppgaven er basert på de opplysningene selger har gitt til megler, den bygningssakyndiges tilstandsrapport, samt opplysninger innhentet fra kommunen, Kartverket og andre tilgjengelige kilder. Det er viktig at kjøper setter seg grundig inn i alle salgsdokumentene, herunder salgsoppgave, tilstandsrapport og selgers egenerklæring. Kjøper anses kjent med forhold som er tydelig beskrevet i salgsdokumentene, og slike forhold kan ikke påberopes som mangler. Dette gjelder uavhengig av om kjøper har lest dokumentene. Alle interessenter oppfordres til å undersøke eiendommen nøye, gjerne sammen med fagkyndig før bud inngis. Kjøper som velger å kjøpe usett kan ikke gjøre gjeldende som mangel noe han burde blitt kjent med ved undersøkelsen.
Dersom det er behov for avklaringer, anbefaler vi at interessenter rådfører seg med eiendomsmegler eller egne rådgivere før det legges inn bud.
En bolig som har blitt brukt i en viss tid, har vanligvis blitt utsatt for slitasje og skader kan ha oppstått. Slik bruksslitasje må kjøper regne med, og det kan avdekkes enkelte forhold etter overtakelse som nødvendiggjør utbedringer. Normal slitasje og skader som nødvendiggjør utbedring, er innenfor hva kjøper må forvente og vil ikke utgjøre en mangel.
Kjøper og selgers rettigheter og plikter reguleres av avtalen mellom partene, samt informasjonen som har vært tilgjengelig for kjøperen i forbindelse med handelen. Avtalen utfylles av avhendingsloven, og det gjelder ulike avtalevilkår avhengig av om kjøper er forbrukerkjøper eller ikke. Dette er nærmere beskrevet nedenfor.
På grunn av ulike avtalevilkår kan selger vurdere bud fra en som ikke er forbruker, ulikt fra en forbrukers bud. Dersom kjøper ikke er forbruker, er selger sitt mulige mangelsansvar begrenset fordi eiendommen selges "som den er". Selger kan ikke ta «som den er»- forbehold overfor en forbrukerkjøper. Selv et lavere bud fra en som ikke er forbruker kan foretrekkes fordi begrensningen i mulig mangelsansvar kan ha egenverdi for selger. Selger står fritt til å forkaste eller akseptere ethvert bud, og er for eksempel ikke forpliktet til å akseptere høyeste bud.
Budgiver skal i budskjema avgi egenerklæring om budgiver er forbruker eller næringsdrivende/ person som hovedsakelig handler som ledd i næringsvirksomhet. Budgivere får informasjon dersom andre bud er inngitt av en som ikke er forbruker.
Forbrukerkjøp - definisjon
Med forbrukerkjøp menes kjøp av eiendom når kjøperen er en fysisk person som ikke hovedsakelig handler som ledd i næringsvirksomhet.
Forbruker – avtalevilkår
Eiendommen har en mangel dersom den ikke er i samsvar med kravene som følger av avtalen, eller det foreligger brudd på bestemmelsene i avhendingsloven §§ 3-2 til 3-8. Hvis eiendommen ikke er i samsvar med det kjøperen må kunne forvente ut ifra alder, type og synlig tilstand, kan det være grunnlag for mangelskrav. Det samme gjelder hvis det er holdt tilbake eller gitt uriktige opplysninger om eiendommen. Dette gjelder likevel bare dersom man kan gå ut ifra at det virket inn på avtalen at opplysningen ikke ble gitt eller at mangelskravet ikke blir rettet i tide på en tydelig måte.
Boligen kan ha en mangel etter avhendingsloven § 3-3 andre ledd, dersom det er avvik mellom opplyst og faktisk innvendig areal, forutsatt at avviket er på 2% eller mer og minimum 1 kvm.
Ved beregning av et eventuelt prisavslag eller erstatning må kjøper selv dekke tap/kostnader opptil et beløp på kr 10 000 (egenandel).
Ikke-forbruker (næringsdrivende) – definisjon
Hvis kjøper er en juridisk person, eller en fysisk person som hovedsakelig handler som ledd i næringsvirksomhet, vil kjøpet ikke anses som et forbrukerkjøp.
Ikke-forbruker – avtalevilkår
Eiendommen har en mangel dersom den ikke er i samsvar med kravene som følger av avtalen.
Eiendommen selges «som den er», og selgers ansvar utover det konkret avtalte er da begrenset etter avhendingsloven § 3-9, første ledd andre setning.
Avhendingsloven § 3-3 andre ledd fravikes, og hvorvidt boligens arealsvikt utgjør en mangel vurderes etter avhendingsloven § 3-8.
Informasjon om kjøpers undersøkelsesplikt, herunder oppfordringen om å undersøke eiendommen nøye, gjelder også for kjøpere som ikke anses som forbrukere.
Det forutsettes at hjemmel overføres til kjøper. Hvis kjøper ikke ønsker hjemmelsoverføring av eiendommen, må det tas forbehold om dette i budet.
Meglers vederlag
Meglers vederlag betales av selger og er avtalt til:
Vederlag: 0,8% av salgssummen inkl. eventuell fellesgjeld.
Tilrettelegging fra kr 17 000,-
Oppgjør: kr 7 500,-
Markedspakke: kr 27 400,-
Visninger/Overtagelse: kr 2 500,- pr. stk
Oppslag eiendomsregister: kr 2 900,-
Megler har i tillegg krav på dekning av følgende utlegg:
Innhenting av dokumenter/servitutter fra grunnboken kr 240,-
Innhenting av offentlige opplysninger kr 2 500,-
Tinglysing sikring kr 545,-
Boligselgerforsikring kr 49 564,-
Foto kr 4 125,-
Vi er opptatt av verdiskapning, og har knyttet til oss samarbeidspartnere som skal sikre våre kunder de beste produkter og tjenester;
• I forbindelse med forberedelse av salget, innhenter vi informasjon om eiendommen hovedsakelig fra vår samarbeidspartner Ambita.
• Gjensidige leverer boligselgerforsikring og tilbyr bygningsforsikring
• Boligkjøperforsikring leveres av Hiscox og med Sedgwick som skadebehandler, og er formidlet gjennom Gjensidige.
• BN bank tilbyr finansieringsløsninger
• Vår avdeling Krogsveen Pluss tilbyr flyttetjenester som utvask, visningsvask, lager, tømming og transport av flyttelass, i tillegg til å formidle kontakt med Flip for overflateoppussing.
• I forbindelse med overtagelse av eiendommen tilbyr Overo avtale om strøm, alarm og bredbånd.
• Krogsveen er, sammen med øvrige bransjeaktører, medeier i den digitale annonseringsplattformen Hjem som eies av Bomega AS.
Opplysninger om oppdraget
Oppdragsnummer 60-0186/25
Eiendomsmegler Krogsveen AS, avd. Lillestrøm
Adolph Tidemands gate 38, 2000, LILLESTRØM
950 007 613
Oppdragets KR-kode KR60.25186
Dato
Sist oppdatert: 03. mai 2026 kl. 22:00
Dokumenter
Dokumenter
PDF – 746 KB
PDF – 900 KB
PDF – 906 KB
PDF – 1004 KB
PDF – 748 KB
PDF – 312 KB
PDF – 29 KB
PDF – 127 KB
PDF – 392 KB
Område
Legg til steder som er viktige for deg
Visning
Det er ingen planlagte visninger. Meld deg på for å avtale en tid som passer.
Lurer du på noe?
Unngå doble boligrenter
Vi tilbyr gunstig forsikring.
Vurderer du utleie?
Få et tilbud fra Utleie KrogsveenHva koster lånet?
Sjekk estimert lånekostnadVil du varsles om lignende boliger?
Ved å lagre ditt boligsøk hos oss får du beskjed når vi har en bolig som ligner denne, før den legges ut på markedet!

