Ørmenveien 43A

2 590 000 kr

114 m²

2 soverom

Komplett salgsoppgave

Ørmen

Oppgradert enebolig med alt på én flate og gjenstående arbeider. Vestvendt, solfylt terrasse. Landlige omgivelser.

    Pris

  • Prisantydning

    2 590 000 kr

  • Omkostninger

    75 790 kr

  • Totalpris

    2 665 790 kr

    Areal

  • Bruksareal

    138 m²

  • BRA-I (internt bruksareal)

    114 m²

  • BRA-E (eksternt bruksareal)

    24 m²

  • TBA (terrasse-balkongareal)

    42 m²

    Nøkkelinfo

  • Etasje

    1

  • Byggeår

    1973

  • Soverom

    2 soverom

  • Bad

    1 bad

  • Type

    Enebolig i kjede

  • Eierform

    Eierseksjon

  • Energimerke

    Oransje F

Unngå doble boligrenter

Vi tilbyr gunstig forsikring.

Hva koster lånet?

Sjekk estimert lånekostnad

Beskrivelse

Kort om eiendommen

Seksjonert og innholdsrik bolig med alle rom på én flate, i landlige omgivelser midt i Onsøy
  • Betydelig påkostet i senere år med ombygging og utskiftninger
  • Tilbygg oppført og flere rom bruksendret uten søknad eller godkjenning
  • De fleste innvendige overflater skiftet ut
  • Bad utvidet og renovert i 2018
  • Elektrisk anlegg fornyet, inkl. nytt sikringsskap og gulvvarme i flere rom
  • Egen biloppstillingsplass langs husveggen
  • Bussholdeplasser få meter unna - stopp bl.a. for ekspressbuss til Oslo
  • 10 min. med bil til sentrum og pendlervennlige Råde stasjon

Innhold og byggemåte

Eiendommen

Ørmenveien 43A, 1615 FREDRIKSTAD
Kommunenummer 3107, gårdsnummer 6, bruksnummer 20, seksjonsnummer 1, ideell andel 1/1

Innhold

Totalt bruksareal BRA: 138 kvm

BRA-i:
Enebolig i kjede:
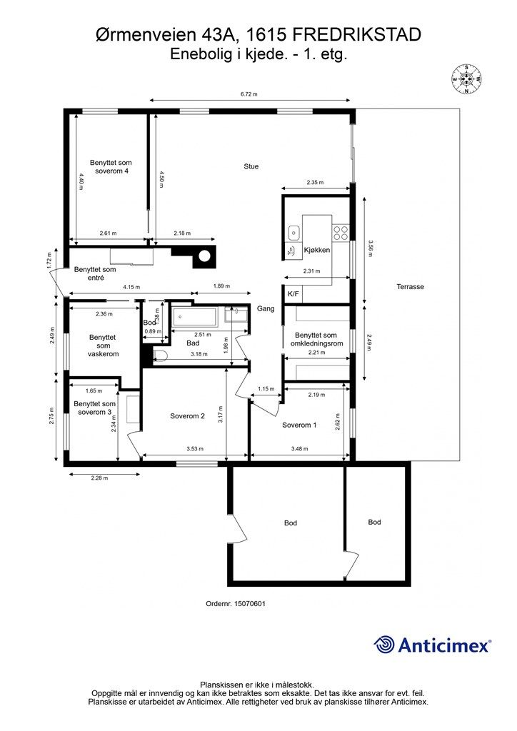
1. etasje - 114 kvm: Rom benyttet som entré, gang, bod, rom benyttet som vaskerom, bad, stue, kjøkken, rom benyttet som omkledningsrom, to soverom og to rom benyttet som soverom.

BRA-e:
Enebolig i kjede:
1. etasje - 24 kvm: Bod

Åpent areal:
Enebolig i kjede:
1. etasje - 42 kvm: Terrasse

Vedlagte plantegninger er ikke målbare. De oppgitte arealer er hentet fra rapport med befaringsdato 05.05.2025 utført av Anticimex. Arealene er beregnet og rom er definert etter dagens faktiske bruk, uavhengig av hva som er godkjent av bygningsmyndighetene.

Se punkt ferdigattest.

Byggemåte

Selger har fått utarbeidet en tilstandsrapport, dvs. en teknisk gjennomgang av boligen hvor eventuelle avvik, risiko for kjøper og prisoverslag for hva som bør gjøres av oppgradering, er skissert. Se særskilt TGIU (tilstandsgrad ikke undersøkt), samt TG2 og TG3 som viser hva som er boligens normale slitasje, alder og type, hva som er avvik fra dette og hva som bør/må utbedres. Rapporten og selgers egenerklæring er en del av salgsoppgaven og må leses nøye før bud inngis. Kjøper overtar ansvaret for de opplysninger som fremkommer av salgsdokumentasjonen, og kan ikke gjøre gjeldende som mangel noe som burde vært kjent eller som ikke kan anses å ha betydning for avtalen.  

Bygningen er iht. tilstandsrapporten oppført i tre. Bolig over ett plan samt kaldtloft. Gulv av betong mot grunn. Yttervegger i trekonstruksjon, utvendig kledd med stående og liggende trekledning. Takkonstruksjon i saltaksform, utvendig tekket med takplater av stål. Takkonstruksjon i pulttaksform, utvendig tekket med takpapp over bod. Boligen har profilert entrédør. Slett boddør. Skyvedør med tre-lags glass fra 2019. Vinduer med tre-lags glass fra mellom 2016 og 2019. Vinduer med enkle glass fra ukjent årstall. Les forøvrig mer om byggemåte og den tekniske tilstanden i rapporten.

Det er gitt 22% TG 2, 69% TG 2, 3% TG 3 og 6% TG IU.

Det gjøres spesielt oppmerksom på:
Det er gitt tilstandsgrad 3 (TG 3) på følgende:
- Elektrisk anlegg: TG3 gjelder: Det er registrert løse uisolerte ledninger over sikringsskap. Det er ikke kjent om disse er strømførende. Kan utgjøre berøringsfare. Forholdet må undersøkes av autorisert personell. Sjablongmessig prisanslag gjelder for elsjekk. Sjablongmessig prisanslag: kr 0 - 20 000.
- Yttervegger inkl. fasader og konstruksjon: Kledning mot syd har meget høy slitasje. Utskiftning bør påregnes. Det er stor åpning mot kaldtloft i overgang mellom stående og liggende kledning. Platekledning på bod er ufullstendig og har svelleskader mot vest. Tiltak anbefales. Sjablongmessig prisanslag: kr 50 000 - 100 000

Det er gitt tilstandsgrad 2 (TG 2) på bygningselementer i bad, vaskerom, kjøkken, øvrige rom, loft - uinnredet/råloft, ildsteder/skorsteiner, etasjeskiller, teknisk anlegg/VVS anlegg, andre forhold, elektrisk anlegg, yttervegger inkl. fasader og konstruksjon, dører og vinduer, yttertak, terrasser/platting på terreng, grunnmur/fundamenter, drenering, samt stikkledninger og tanker.

Se supplerende tekst i tilstandsrapporten om rommet/badet/bygningsdelen/skjevheten/sluket/fuktigheten/taket/det elektriske etc. Kjøper overtar ansvar og risiko for dette. 

Utdrag fra selgers egenerklæringsskjema:
- Kjenner du til om det er utført arbeid på bad/våtrom?
Ja, kun av ufaglært / egeninnsats. Renovert og utvidet hele badet, nye rør, nye elektriske kabler

- Ble tettesjikt/membran/sluk oppgradert/fornyet?
Nei. Ny membran, sluk, forynyet.

- Kjenner du til om det er/har vært insekter/skadedyr i boligen som f.eks. rotter, mus, skjeggkre, maur eller lignende?
Ja. Mus

- Kjenner du til om det har vært utført arbeider på terrasse/garasje/tak/fasade?
Ja, kun av ufaglært / egeninnsats. Ny terrasse

- Kjenner du til om det er/har vært utført arbeider på el-anlegget eller andre installasjoner (f.eks. oljetank, sentralfyr, ventilasjon)?
Ja, kun av ufaglært / egeninnsats. ny elektrisk boks, nye elektriske kabler

Standard

Nåværende eiere har siden 2016 bekostet både ombygging og en omfattende oppgradering av boligen. Innvendig er nær sagt alle overflater skiftet ut, nye innerdører er også montert. Stedvis er det gjenstående arbeider. Fornyet er også elektrisk anlegg som blant annet er utvidet til å inkludere gulvvarme i flere rom.

I forbindelse med ovennevnte er også ombygging av selve romløsningen utført, inkludert søknadspliktige tiltak og bruksendringer som ikke er omsøkt eller godkjent.

Romløsningen er i dag meget innholdsrik i forhold til boligens totale areal. Deler av den opprinnelige løsningen er beholdt, hovedsakelig de aktive rommene stuen og kjøkkenet. Stuen er av god størrelse til sitt formål og rommer uten trengsel både en sofagruppe og et spisebord.

Kjøkkenet er siden 2016 oppgradert med ny innredning som i dag er generelt bruks- og slitasjepreget. Rommets over 8 kvm. er et godt utgangspunkt for en ny og enda mer omfangsrik innredning om den eksisterende skiftes helt eller delvis ut.

Badet ble i 2018 både renovert og utvidet ved å omdisponere areal fra tilstøtende bod hvilket ikke er søkt om eller godkjent. Ved renovering ble blant annet rør og sluk skiftet ut, nytt elektrisk anlegg inkludert gulvvarme installert og ny membran etablert. Gulv og vegger er utført med fliser. Nytt sanitærutstyr ble installert, inkludert moderne baderomsmøbler og badekar med dusjvegg.

Rør-opplegg til vaskemaskin er etablert i bod som er ombygget og tatt i bruk som vaskerom, en bruksendring som ikke er omsøkt eller godkjent. Rommet bærer preg av påbegynte arbeider.

Etter endringer i romløsningen inneholder boligen i dag to godkjente soverom på ca. 11 og 8 kvm. Et tredje opprinnelig soverom på ca. 5,5 kvm. benyttes i dag som omkledningsrom og er mindre enn hva som er byggemeldt. Ytterligere to rom på henholdsvis ca. 11 og 5,5 kvm. benyttes som soverom, uten å være godkjent.

Overflater og innredninger:
Gulv: Parkett, laminat, fliser og betong.
Innervegger: Tapet, parkett, laminat, panelplater, fliser og teglstein.
Himlinger: Plater, MDF-panel og glatte malte flater.

Kjøkken: Skapinnredning med glatte grå og hvite fronter. Laminerte hvite benkeplater. Stålbeslag med dobbel kum og ett-greps blandebatteri. Tilkoblingsmulighet for oppvaskmaskin. Veggmontert ventilator.

Bad: Servantskap med rettprofilerte lyse fronter og heldekkende keramisk servant med ett-greps blandebatteri. Veggspeil med overbelysning. Høyskap med glatte lyse fronter. Badekar med veggmontert glassvegg og to-greps blandebatteri med hånddusj. Toalett montert på innbygget sisterne.

Løsøre og tilbehør

Vi viser til liste fra Norges Eiendomsmeglerforbund som gjelder fra 01.01.2020 angående løsøre og tilbehør.

Oppvarming

Oppvarming med elektrisitet. Boligen har skorstein.

Dersom beboelsesrom ikke har vegg- eller fastmonterte varmekilder ved visning, følger dette heller ikke med. 

Følgende avvik er registret hos kommunen fra Fredrikstad brannvesen:
Adkomst på tak. Mangler takstige.
Avvik fra: Forskrift om brannforebygging paragraf 6, 3. ledd.

Ferdigattest/brukstillatelse

Denne eiendommen var tidligere et alders- og sykehjem og det foreligger ikke ferdigattest på eiendommen, men midlertidig brukstillatelse for hybelhus ble gitt 16.06.1972 med tegninger. I tillegg foreligger det ferdigattest for paviljonger med tegninger mm. I 1997 ble hele bygningsmassen seksjonert opp til selvstendige eneboliger i kjede og ble solgt ut til markedet. Megler har forsøkt å få klarhet i underlagene til seksjonsbegjæringen i 1997 men kommunen opplyser at de ikke finner flere dokumenter i deres arkiver annet enn tegninger fra seksjonsbegjæringen og kan derfor ikke gi noen svar på forholdet.

I 2019 ble det foretatt en reseksjonering av seksjonene hvor tilhørende carporter ble lagt til og vi har mottatt reseksjoneringspapirer med tegninger (benyttet opprinnelig tegning) fra kommunen datert 23.7.2019
Følgende endringer er gjort fra disse tegningene:
- Rom benyttet som omkledningsrom er angitt som soverom i de fremlagte tegningene. Rommet er mindre enn hva som fremkommer av tegningene og noe mindre enn anbefalt størrelse for soverom.
- Badet er opprinnelig delt opp i bad og vaskerom.
- Rom benyttet som soverom 3 og rom benyttet som vaskerom er opprinnelig byggemeldt som boder.
- Rom benyttet som soverom 4 og deler av entré er et tilbygg som ikke er søkt om.

Rom benyttet som soverom 3 og rom benyttet som vaskerom er opprinnelig byggemeldt som boder jf. byggetegninger og er ikke godkjent til varig opphold. Innredning av rommene til bruk for varig opphold er ikke bruksendret/omsøkt og er heller ikke godkjent av kommunen.  
Rom benyttet som soverom 4 og deler av entré er ikke søkt om og godkjent. Tiltaket er å anse som et meldepliktig tiltak og rommene er dermed ikke godkjent til varig opphold. Det anbefales å ta kontakt med Fredrikstad kommune.

Det gjøres oppmerksom på at det ikke lenger utstedes ferdigattest på tiltak det er søkt om før 1998 jf. plan- og bygningsloven § 21-10. Kommunen vil ikke kreve ferdigattest for disse tiltakene og vil avvise eventuelle søknader. Bestemmelsen innebærer ikke at tiltak med manglende søknad blir lovlige, men at man ikke trenger å avslutte gamle byggesaker. Normalt sett kreves ferdigattest for alle søknadspliktige tiltak som gjøres etter plan- og bygningsloven.  

Tinglyste heftelser og rettigheter

Eiendommen overdras fri for pengeheftelser

Det er tinglyst følgende servitutter på eiendommen.
Dagboknr1627, tinglyst 13.02.1997, type heftelse: Bestemmelse om vann/kloakkledning - Denne omhandler bestemmelser om at denne eiendommen (bnr. 20) gir nåværende og fremtidige eiere av bnr 11, 21,22 og 24 rett til å ha felles pumpestasjon for vann -og kloakkledninger plassert på denne eiendom.

Følgende rettighet er tinglyst på denne eiendommen:
Dagboknr 1629, tinglyst 13.02.1997, type heftelse: Bestemmelse om veg- Denne omhandler at hjemmelshaver av bnr. 11 gir herved nåværende og fremtidige eier av denne eiendom veirett over bnr 11 med rett og plikt til å vedlikehold av veien samt snøbrøyting, fra offentlig vei til sin eiendom. Vedlikehold og kostnader til snøbrøyting skal dekkes med 3/40- del av de totale kostnadene etter regning. Videre gis det rett til å benytte nåværende private vann-og avløpsledning til offentlig nett mot vedlikeholdsplikt. Kostnadene til fremtidig vedlikehold skal dekkes med 3/115 deler av de totale kostnader.

Adkomst til sameiets tomt går over 3 private veier på hhv. bnr. 11 , bnr. 26 og bnr. 22. I tillegg til adkomstrett fra bnr. 11 som er tinglyst på denne eiendom, er det er tinglyst adkomstrett for denne eiendommen på bnr. 26. Når det gjelder adkomstrett over bnr 22, er dette forholdet ukjent. Megler har forsøkt å få klarhet i servitutter fra bnr. 22, men det er da ikke funnet noen tinglyst vegrett over denne eiendommen. Dog er bnr. 22 også skilt ut fra hovedbølet nr. 11 slik som denne eiendom. Adkomstretten har vært benyttet i over 52 år. Kjøper overtar alt ansvar, kostnad og risiko for dette videre.

Servituttene vil følge eiendommen. Kjøpers bank vil få prioritet etter ovennevnte heftelser og servitutter.

Eventuell adgang til utleie

Eiendommen har ikke separat utleieenhet. Det vil normalt være anledning til utleie av hele eiendommen eller enkeltrom, såfremt utleiearealet er bygningsmessig godkjent for varig opphold og har forsvarlige radonnivåer.

Diverse

Vi er opptatt av verdiskapning, og har knyttet til oss samarbeidspartnere som skal sikre våre kunder de beste produkter og tjenester; 
•    Gjensidige leverer boligselgerforsikring og tilbyr bygningsforsikring
•    Boligkjøperforsikring leveres av Hiscox og med Sedgwick som skadebehandler, og er formidlet gjennom Gjensidige.
•    BN bank tilbyr finansieringsløsninger
•    Vår avdeling Krogsveen Pluss tilbyr flyttetjenester som utvask, visningsvask, lager, tømming og transport av flyttelass, i tillegg til å formidle kontakt med Flip for overflateoppussing.
•    I forbindelse med overtagelse av eiendommen tilbyr Overo avtale om strøm, alarm og bredbånd.
•    Krogsveen er, sammen med øvrige bransjeaktører, medeier i den digitale annonseringsplattformen Hjem.
 

Beliggenhet og tomteforhold

Beliggenhet

Omgivelsene rundt eiendommen er meget landlige, men likevel ikke mer enn gode 10 minutter unna sentrumsområdet.

Nærhet til skog og mark innebærer umiddelbar tilgang til omfangsrike turområder. I skogene og jordbrukslandskapet omkring finnes et nettverk av grusveier og stier som er ypperlige for både fotturer og sykling. Kort avstand er det for øvrig også til Fredrikstadmarka hvor du finner lysløype og preparerte skispor når forholdene tillater.

Med bil er du fremme i byen på gode 10 minutter. Underveis passerer du Ørebekk med et større handelsområde bestående blant annet av flere store dagligvareforretninger, treningssentre og helsetilbud.

Med bussholdeplass like utenfor er det også enkelt å reise kollektivt i det daglige. Her stopper både regionale linjer og ekspressbuss til Oslo. Boligens beliggenhet er også strategisk om du pendler i hverdagen, med effektiv veiforbindelse til både E6 og Råde stasjon. Togreisen videre til Oslo S tar under 50 minutter.

Adkomst

Det vil bli skiltet med Krogsveen visningsskilt ved fellesvisninger.

Barnehager, skoler og fritid

Barnehager:
Ramsjø gårdsbarnehage (0-5 år) 7.2 km
Ambjørnrød barnehage (0-5 år) 7.2 km
Villa Øst barnehage (0-5 år) 7.4 km

Skoler:
Ambjørnrød skole (1-7 kl.) 7 km
Nylende skole (1-7 kl.) 8.9 km
Hurrød skole (1-7 kl.) 8.4 km
Kvernhuset ungdomsskole (8-10 kl.) 8.7 km
Vestbygda ungdomsskole (8-10 kl.) 9.7 km
Frederik II videregående skole 10.3 km
Tomb videregående skole 12.1 km

Informasjon om tilhørende skolekretser er hentet fra Prognosesenteret som dataleverandør, og tilhørigheten kan årlig endres av kommunen. Dersom skole- og barnehagetilbud er av betydning for kjøpet, ber vi om at det rettes en særskilt henvendelse til kommunen/bydelsadministrasjonen for oppdatert informasjon.

Beskrivelse av tomt

Eiertomt på 1 834 kvm som tilhører sameiet. Tomten er fellesareal. Tomt opparbeidet med asfalterte biloppstillingsplasser, gressplen og diverse beplantning.

Parkering

Parkering på sameiets felles tomt.

Vei, vann og avløp

Eiendommen har adkomst via kommunal vei og inn til privat vei med felles vedlikeholdsansvar. Adkomst til sameiets tomt går over 3 private veier se punkt tinglyste heftelser og rettigheter for nærmere beskrivelse.

Eiendommen er tilknyttet kommunalt ledningsnett via private stikkledninger. Eier er selv ansvarlig for private stikkledninger til boligen.

Regulerings-og arealplaner

Eiendommen ligger i et uregulert område, men er i kommuneplan datert 15.06.2023 er avsatt til: 5100 LNF - tiltak for stedbunden næring. Det tillates ikke etablering av nye boliger/boenheter innenfor formålet. Under arealformålet LNF foreslås det å angi hensynsone som ivaretar interessen friluftsliv og bevaring av naturmiljø med tilhørende bestemmelser.

Det foreligger et generelt pålegg for området fra Fredriksstad kommune vedrørende utkobling av taknedløp (dvs regnvann skal ikke belastes offentlige vann-og avløpsrør men føres/ledes ut i bakke)

Utsnitt av plan med tilhørende bestemmelser kan fås ved henvendelse til megler.

Økonomi

Kommunale utgifter

Kommunale avgifter er kr 19.087,- for inneværende år. I dette inngår gebyr for vann, avløp, renovasjon og feiing/tilsyn.
Eiendomsskatten er kr 2.279,- for inneværende år. Denne faktureres med de kommunale avgiftene.

Nåværende eier har et strømforbruk som tilsvarer ca. kr 22.000,- pr. år. / 17.195 kwh. pr. år. 
Boligen har en årlig forsikringspremie på kr 6.648.

Utgiftene er basert på nåværende eiers forbruk og avtaler.

Formuesverdi

Formuesverdi for 2023 var kr 558 454,- ifølge skatteetaten. Beløpet forutsetter at eier bor fast i boligen (primærbolig).

Ved eventuell øvrig bruk av eiendommen (f.eks. fritidsbolig, pendlerbolig, utleieobjekt) var formuesverdien for 2023 kr 2 233 816,-.

Formuesverdien justeres normalt årlig. Se skatteetaten.no for mer informasjon om fastsettelse av formuesverdien.

Omkostninger

2 590 000,00 Prisantydning

Omkostninger

64 750,00  Dokumentavgift til staten (2,5% av kjøpesum)
9 950,00  Gjensidige Boligkjøperpakke (valgfri)
545,00  Tinglysing panterettsdokument
545,00  Tinglysing skjøte
--------------------------------------------------------
75 790,00 Omkostninger totalt

--------------------------------------------------------
2 665 790,00 Totalpris inkl. omkostninger

--------------------------------------------------------

Tilbud om lånefinansiering

Megler formidler gjerne kontakt med rådgiver hos vår samarbeidspartner BN Bank. De har konkurransedyktige betingelser samt rask og løsningsorientert behandling av din lånesøknad. Krogsveen mottar et honorar for denne formidlingen.

Betalingsbetingelser

Kjøpesum inkludert omkostninger, samt pantedokument tilknyttet eventuelt lån, skal være disponibelt hos megler 2 virkedager før overtagelsen.

Annen viktig informasjon

Eier

Karolina Helena Kwiecinska og Rafal Korycki

Informasjon om forkjøpsrett

Eiendommen er seksjonert, og boligen har sameiebrøk 2/6
Sameiet består av 6 leiligheter

Sameiet har ikke forretningsfører eller styre, og det føres ikke regnskap eller budsjett. Dersom det mottas felles regninger til sameiet vil kostnader bli fordelt etter nærmere regler angitt av sameiet, vanligvis etter sameiebrøk eller vedtekter.

Dugnad må påregnes. Utvending vedlikehold av bygningsmassen, herunder pussing, maling, reparasjoner på tak, takrenner etc. besørges av sameierene. Snørydding, strøing, feiing, vask o.l. av fellesarealer besørges av sameierne i fellesskap etter avtale og utgiftene fordeles forholdsmessig i samsvar med brøken.

Vi gjør videre oppmerksom på at det iht. eierseksjonsloven ikke er anledning å erverve mer enn 2 seksjoner i sameiet, her teller også eierskap via. firma, nærstående og familie. Kjøper har risikoen for at overskjøting på denne bakgrunn kan nektes av Statens Kartverk. I så fall vil kjøper uansett være forpliktet til å gjennomføre handelen, og oppgjør til selger vil finne sted tross manglende overskjøting. Konferer med megler for mer informasjon.

Dokumenter for sameiet og kopi av seksjonsbegjæringen kan fås ved henvendelse til megler.

Overtakelse

Etter nærmere avtale.

Boligselgerforsikring

Selger har i forbindelse med salget tegnet boligselgerforsikring levert av Gjensidige.  
Boligselgerforsikringen dekker selgers ansvar etter avhendingsloven begrenset oppad til kr 14 millioner. Dersom kjøper oppdager forhold ved eiendommen som hen mener utgjør en mangel ved eiendommen, vil Gjensidige behandle reklamasjonen på vegne av selger. Forsikringsvilkår kan fås ved henvendelse til megler.  

Vedlagt salgsoppgaven følger selgers egenerklæringsskjema og tilstandsrapport. Interessenter må sette seg inn i dokumentene før bud inngis. 

Boligkjøperforsikring

Innen kontraktsmøtet må kjøper ta stilling til om det ønskes å bestille Boligkjøperpakken gjennom Gjensidige. I denne gunstige pakken er boligen ferdig forsikret og inkluderer rettshjelpsforsikring, også kalt Boligkjøperforsikring. Rettshjelpsforsikring gir trygghet og tilgang på profesjonell juridisk hjelp dersom det oppdages uventede feil eller mangler det første året etter overtagelse. Forsikringsselskapet behandler i så fall ethvert mangelskrav kjøper måtte ha overfor selger. 

Boligkjøperpakken inkluderer bygningsforsikring for hus og hytte, innboforsikring, flytteforsikring og dobbel rentedekning - i situasjoner hvor kjøper ikke får solgt nåværende primærbolig.   

Kjøper mottar ingen særskilt faktura for Boligkjøperpakken da kostnaden det første året legges til kjøpesummen for boligen. Det gjøres oppmerksom på Krogsveen mottar et honorar for denne formidlingen.
Produktark for Boligkjøperpakken ligger vedlagt i salgsoppgaven.  

Dersom ikke boligkjøperpakke ønskes kan kun rettshjelpsforsikring, også kalt boligkjøperforsikring, tegnes særskilt via megler. Rettshjelpsforsikringen varer i 5 år fra overtagelse og leveres gjennom Gjensidige. Ta kontakt med megler for ytterligere informasjon. 

Selskap og privatpersoner som driver med kjøp/salg/utvikling som ledd i egen næringsvirksomhet kan ikke tegne boligkjøperpakke eller rettshjelpsforsikring. 

Budgivning

Forbrukerinformasjon om budgivning er vedlagt denne salgsoppgaven og er også på vår hjemmeside Krogsveen.no. Alle bud og budforhøyelser må inngis skriftlig. I tillegg må legitimasjon være fremlagt sammen med signatur fra budgiver.

Vi oppfordrer til å gi bud elektronisk via GI BUD-knappen på eiendommens hjemmeside på Krogsveen.no. Da vil samtlige vilkår bli oppfylt.  
Eventuelle forhøyelser eller endringer av budet kan bekreftes pr SMS eller på e-post. Vi oppfordrer alltid til å kontakte megler pr. telefon i tillegg da forsinkelser i SMS og e-post kan forekomme.

For at budene skal kunne bli behandlet og videreformidlet skriftlig til alle involverte parter, må alle bud ha en tilstrekkelig lang akseptfrist, jf. eiendomsmeglingsforskriften § 6-3.

Selger må også skriftlig akseptere budet før aksept kan formidles til budgiver. Akseptfrist bør derfor være på minimum 30 minutter, og budforhøyelser må derfor skje i god tid før fristens utløp.

Bud i forbrukerforhold kan uansett ikke settes med kortere frist enn kl. 12.00 første virkedag etter siste annonserte visning. I tillegg kan ikke budet ha forbehold om at det skal holdes hemmelig ovenfor øvrige interessenter. Megler har iht lov om eiendomsmegling ikke anledning til å videreformidle disse budene, og de vil dermed heller ikke bli journalført.

Etter at eiendommen er solgt vil kjøper og selger få tilsendt budjournal. Øvrige budgivere kan få utlevert kopi av budjournalen i anonymisert form.

Hvitvaskingsreglene

I henhold til lov om hvitvasking og terrorfinansiering har megler plikt til å gjennomføre kontrolltiltak overfor kunder, herunder fullmektiger. Dette innebærer bl.a. å bekrefte kunders og reelle rettighetshaveres identitet på bakgrunn av fremvist gyldig legitimasjon eller på annen godkjent måte, samt å innhente opplysninger om kundeforholdets formål og tilsiktede art.
Dersom slike kundetiltak ikke kan gjennomføres, kan megler ikke etablere kundeforholdet eller utføre transaksjonen.
Hvis kjøper ikke bidrar til gjennomføring av kundekontrollen og dette fører til at transaksjonen blir forsinket eller ikke kan gjennomføres, vil dette ansees som mislighold av avtalen og gi selger rettigheter etter avhendingslova kapittel 5. I tilfeller der selger ikke bidrar til gjennomføring av løpende kundekontroll underveis i oppdraget, er det selger som misligholder sine forpliktelser etter avtalen og gi kjøper rettigheter etter avhendingslovens kapittel 4. Partene er selv ansvarlige for eventuelle kostnader og ansvar dette kan medføre. Eiendomsmegleren eller eiendomsmeglingsforetaket kan ikke holdes ansvarlig for de konsekvenser dette vil kunne få for partene eller andre som har interesser i eiendomshandelen.

Kjøper oppfordres til å innbetale kjøpesummen som ikke kommer fra låneinstitusjon i én samlet innbetaling fra egen konto i norsk bank. Megler har plikt til å melde fra til Økokrim om eiendomshandler som fremstår som mistenkelige. Melding sendes Økokrim uten at partene varsles. 

Personopplysningsloven

I henhold til personopplysningsloven gjør vi oppmerksom på at interessenter kan bli registrert for videre oppfølging.

Lovanvendelse

Generelle bestemmelser
Salgsoppgaven er basert på de opplysningene selger har gitt til megler, den bygningssakyndiges tilstandsrapport, samt opplysninger innhentet fra kommunen, Kartverket og andre tilgjengelige kilder. Det er viktig at kjøper setter seg grundig inn i alle salgsdokumentene, herunder salgsoppgave, tilstandsrapport og selgers egenerklæring. Kjøper anses kjent med forhold som er tydelig beskrevet i salgsdokumentene, og slike forhold kan ikke påberopes som mangler. Dette gjelder uavhengig av om kjøper har lest dokumentene. Alle interessenter oppfordres til å undersøke eiendommen nøye, gjerne sammen med fagkyndig før bud inngis. Kjøper som velger å kjøpe usett kan ikke gjøre gjeldende som mangel noe han burde blitt kjent med ved undersøkelsen. 

Dersom det er behov for avklaringer, anbefaler vi at interessenter rådfører seg med eiendomsmegler eller egne rådgivere før det legges inn bud.

En bolig som har blitt brukt i en viss tid, har vanligvis blitt utsatt for slitasje og skader kan ha oppstått. Slik bruksslitasje må kjøper regne med, og det kan avdekkes enkelte forhold etter overtakelse som nødvendiggjør utbedringer. Normal slitasje og skader som nødvendiggjør utbedring, er innenfor hva kjøper må forvente og vil ikke utgjøre en mangel.

Kjøper og selgers rettigheter og plikter reguleres av avtalen mellom partene, samt informasjonen som har vært tilgjengelig for kjøperen i forbindelse med handelen. Avtalen utfylles av avhendingsloven, og det gjelder ulike avtalevilkår avhengig av om kjøper er forbrukerkjøper eller ikke.  Dette er nærmere beskrevet nedenfor. 

På grunn av ulike avtalevilkår kan selger vurdere bud fra en som ikke er forbruker, ulikt fra en forbrukers bud. Dersom kjøper ikke er forbruker, er selger sitt mulige mangelsansvar begrenset fordi eiendommen selges "som den er".  Selger kan ikke ta «som den er»- forbehold overfor en forbrukerkjøper. Selv et lavere bud fra en som ikke er forbruker kan foretrekkes fordi begrensningen i mulig mangelsansvar kan ha egenverdi for selger. Selger står fritt til å forkaste eller akseptere ethvert bud, og er for eksempel ikke forpliktet til å akseptere høyeste bud.

Budgiver skal i budskjema avgi egenerklæring om budgiver er forbruker eller næringsdrivende/ person som hovedsakelig handler som ledd i næringsvirksomhet. Budgivere får informasjon dersom andre bud er inngitt av en som ikke er forbruker. 

Forbrukerkjøp - definisjon
Med forbrukerkjøp menes kjøp av eiendom når kjøperen er en fysisk person som ikke hovedsakelig handler som ledd i næringsvirksomhet.

Forbruker – avtalevilkår
Eiendommen har en mangel dersom den ikke er i samsvar med kravene som følger av avtalen, eller det foreligger brudd på bestemmelsene i avhendingsloven §§ 3-2 til 3-8. Hvis eiendommen ikke er i samsvar med det kjøperen må kunne forvente ut ifra alder, type og synlig tilstand, kan det være grunnlag for mangelskrav. Det samme gjelder hvis det er holdt tilbake eller gitt uriktige opplysninger om eiendommen. Dette gjelder likevel bare dersom man kan gå ut ifra at det virket inn på avtalen at opplysningen ikke ble gitt eller at mangelskravet ikke blir rettet i tide på en tydelig måte.

Boligen kan ha en mangel etter avhendingsloven § 3-3 andre ledd, dersom det er avvik mellom opplyst og faktisk innvendig areal, forutsatt at avviket er på 2% eller mer og minimum 1 kvm.

Ved beregning av et eventuelt prisavslag eller erstatning må kjøper selv dekke tap/kostnader opptil et beløp på kr 10 000 (egenandel).

Ikke-forbruker (næringsdrivende) – definisjon 
Hvis kjøper er en juridisk person, eller en fysisk person som hovedsakelig handler som ledd i næringsvirksomhet, vil kjøpet ikke anses som et forbrukerkjøp. 

Ikke-forbruker – avtalevilkår
Eiendommen har en mangel dersom den ikke er i samsvar med kravene som følger av avtalen.
Eiendommen selges «som den er», og selgers ansvar utover det konkret avtalte er da begrenset etter avhendingsloven § 3-9, første ledd andre setning. 

Avhendingsloven § 3-3 andre ledd fravikes, og hvorvidt boligens arealsvikt utgjør en mangel vurderes etter avhendingsloven § 3-8. 

Informasjon om kjøpers undersøkelsesplikt, herunder oppfordringen om å undersøke eiendommen nøye, gjelder også for kjøpere som ikke anses som forbrukere.

Det forutsettes at hjemmel overføres til kjøper. Hvis kjøper ikke ønsker hjemmelsoverføring av eiendommen, må det tas forbehold om dette i budet.

Meglers vederlag

Meglers vederlag betales av selger og er avtalt til:
Vederlag kr 45.000,-
Tilrettelegging fra kr 17.000,-
Oppgjør: kr 7.500,-
Markedspakke: kr 27.400
Visninger: kr 2.900,- pr. visning
Oppslag eiendomsregister: kr 2.900,-

Megler har i tillegg krav på dekning av følgende utlegg:
Innhenting av dokumenter/servitutter fra grunnboken kr 240 pr stk
Innhenting av offentlig opplysninger Fredrikstad - inkl. tegning: kr 4.477,-
Tinglysning sikring: kr 545,-
Foto PBF - dag: kr 4.750,-

Opplysninger om oppdraget

Oppdragsnummer 67-0143/25
Eiendomsmegler Krogsveen AS, avd. Fredrikstad og Sarpsborg
Dikeveien 14, 1661, ROLVSØY
950 007 613
Oppdragets KR-kode KR67.25143

Dato

Sist oppdatert: 04. februar 2026 kl. 19:55

Dokumenter

Utskriftsvennlig salgsoppgave

Område

Legg til steder som er viktige for deg

Prisutvikling for området

Kvadratmeterpris

0 kr/m²

Endring

↘︎ % ()

Visning

For å delta på visning, ber vi om at du melder deg på. Da sikrer vi at du får nødvendig informasjon og at det er satt av tilstrekkelig med tid. Kontakt megler dersom annet tidspunkt ønskes. Husk å lese salgsoppgaven før visningen, så du stiller forberedt. NB. Visning utgår dersom det ikke er noen påmeldte.
Ønsker du kun å bli holdt orientert, kan du fra eiendommens hjemmeside få varsel om solgtpris, eller kontakte megler.

Lurer du på noe?

Unngå doble boligrenter

Vi tilbyr gunstig forsikring.

Hva koster lånet?

Sjekk estimert lånekostnad

Vil du varsles om lignende boliger?

Ved å lagre ditt boligsøk hos oss får du beskjed når vi har en bolig som ligner denne, før den legges ut på markedet!

På flyttefot? Slik gjør vi det enklere for deg

Skreddersydd flyttepakke

Vi fikser håndverkere, vask, pakking, lagring og transport, og legger ut for utgiftene underveis.

Hjelp med både kjøp og salg

Hos oss har du din egen rådgiver gjennom hele kjøps- og salgsprosessen.

Hjelp til finansiering

Vårt samarbeid med BN Bank sikrer deg rask og løsningsorientert hjelp, til konkurransedyktige betingelser.