Kroken 2
10 500 000 kr
197 m²
3 soverom
Komplett salgsoppgave

Eiganes
Lekker enebolig beliggende i et ærverdig og svært ettertraktet boligområde på Eiganes.
Prisantydning
10 500 000 krOmkostninger
283 490 krTotalpris
10 783 490 kr
Pris
Bruksareal
215 m²BRA-I (internt bruksareal)
197 m²BRA-E (eksternt bruksareal)
18 m²TBA (terrasse-balkongareal)
37 m²
Areal
Etasje
3Byggeår
1960Soverom
3 soveromBad
1 badTomteareal
380 m² (eiet)Type
Enebolig - FrittliggendeEierform
EietFasiliteter
Garasje/P-plass og Balkong/TerrasseEnergimerke
Oransje E
Nøkkelinfo
Unngå doble boligrenter
Vi tilbyr gunstig forsikring.
Vurderer du utleie?
Få et tilbud fra Utleie KrogsveenHva koster lånet?
Sjekk estimert lånekostnadBeskrivelse
Kort om eiendommen
Innhold og byggemåte
Innhold og byggemåte
Eiendommen
Kroken 2, 4009 STAVANGER
Kommunenummer 1103, gårdsnummer 58, bruksnummer 633, ideell andel 1/1
Innhold
Totalt bruksareal BRA: 215 kvm
BRA-i:
Enebolig:
U.etasje 69 kvm: Kjellerstue, vaskerom, wc, 3 boder og gang.
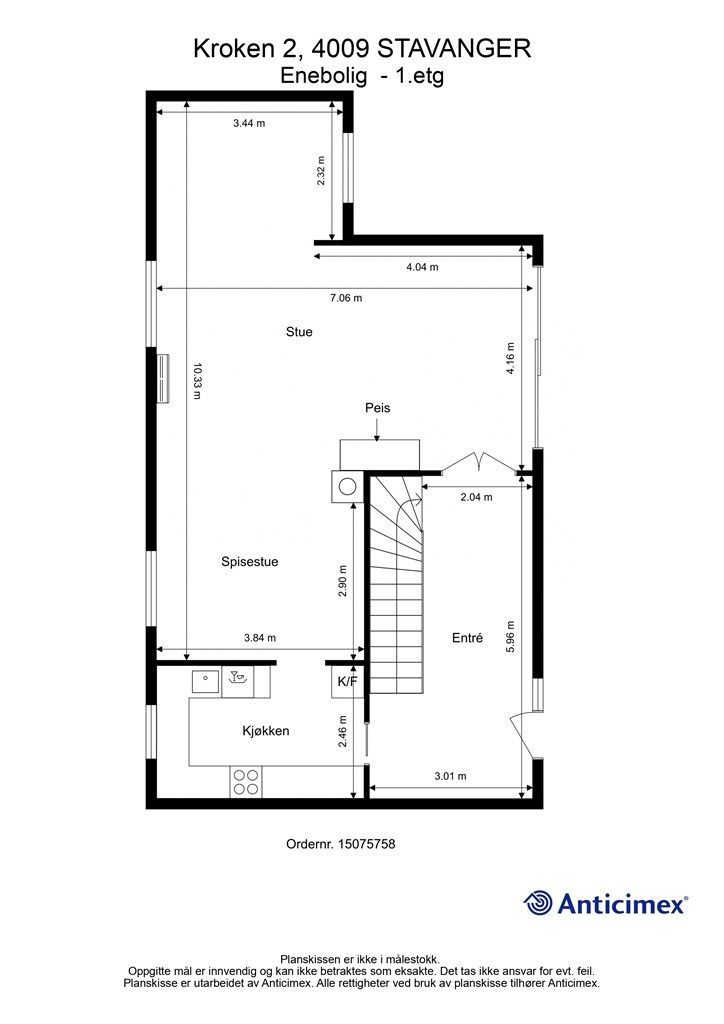
1. etasje 80 kvm: Stue, spisestue, kjøkken og entré.
2. etasje 48 kvm: 3 soverom, bad og gang.
BRA-e:
Garasje: 18 kvm
Åpent areal:
Enebolig:
1. etasje 28 kvm: Platting.
2. etasje 9 kvm: Balkong.
2.etg (loftsetasjen) har et totalt gulvareal (GUA) på 72 kvm, men grunnet skråtak/lav takhøyde er kun 48 kvm av arealet måleverdig som bruksareal.
De delene av arealene som har lav himlingshøyde (ALH) utgjør 24 kvm (kott utgjør ca. 22 kvm og ikke måleverdig areal på bad utgjør ca. 2 kvm).
Arealer bak knevegger og lignende (som ikke er måleverdige) er i dette tilfellet medtatt som areal med lav himlingshøyde (ALH).
Vedlagte plantegninger er ikke målbare. De oppgitte arealer er hentet fra rapport med befaringsdato 16.09.2025 utført av Anticimex v/Kent Lilleland. Arealene er beregnet og rom er definert etter dagens faktiske bruk, uavhengig av hva som er godkjent av bygningsmyndighetene.
Kjellerstue er på godkjente byggetegninger omtalt som hobbyrom, det er ikke omsøkt/godkjent til rom for varig opphold. Les mer under punkt om brukstillatelse.
Byggemåte
Standard
For utfyllende teknisk standard for øvrig henvises det til vedlagt tilstandsrapport.
Løsøre og tilbehør
Vi viser til liste fra Norges Eiendomsmeglerforbund som gjelder fra 01.01.2020 angående løsøre og tilbehør.
Følgende medfølger ikke i handelen:
Tak lysekrone.
Følgende medfølger i handelen:
Fastmonterte hvitevarer på kjøkken.
Robotklipper.
Miele kaffemaskin.
3 frittstående skap på vaskerom.
Spotter i stue.
Taklampe i gang.
Oppvarming
Varmepumpe samt åpen peis i stue, ellers elektrisk oppvarming. Varmekabler på bad og vaskerom.
Dersom beboelsesrom ikke har vegg- eller fastmonterte varmekilder ved visning, følger dette heller ikke med.
Ferdigattest/brukstillatelse
Eiendommen har vært brukt til boligformål siden 1960.
Det foreligger byggetillatelse for oppføring av enebolig datert 03.02.1959.
Boligen er gitt tillatelse til baldakin over hovedinngang tilknyttet garasjen i 1968.
Boligen er tilbygget (sørsiden) i 1980. Det foreligger godkjent vedtak for tilbygg datert 27.08.1980.
Kommunen opplyser at det ikke foreligger ferdigattest eller midlertidig brukstillatelse for eiendommen.
Det gjøres oppmerksom på at det ikke lenger utstedes ferdigattest på tiltak det er søkt om før 1998 jf. plan- og bygningsloven § 21-10. Kommunen vil ikke kreve ferdigattest for disse tiltakene og vil avvise eventuelle søknader.
Det er utført en fasadeendring i form av karnapper på 80-tallet på østsiden av boligen som det ikke foreligger dokumentasjon i form av byggesøknad. Kjøper overtar alt ansvar for dette videre.
For et takoverbygg over sykkel og søppelrom omsøkt i 2003 er det ikke dokumentert at ferdigmelding er innsendt. Kjøper overtar alt ansvar for dette videre.
Det er foretatt endringer i kjeller som avviker fra godkjente byggetegninger fra 1959. Det er opprettet toalettrom i gang og satt opp lettvegg for å lage ekstra bod i gang og under trapp.
Kjellerstue er opprinnelig byggemeldt som hobbyrom jf. godkjente byggetegninger, og er ikke godkjent til varig opphold.
Kjøper overtar eiendommen slik den fremstår på visning med risiko og ansvaret for eventuelle pålegg fra kommunen og kostnader forbundet med dette.
Tinglyste heftelser og rettigheter
Eiendommen overdras fri for pengeheftelser.
Det er tinglyst følgende servitutter på eiendommen:
Dagboknr. 728277, tinglyst 12.08.2016, Bestemmelse om bebyggelse:
Avtalen regulerer rettigheter og plikter knyttet til en felles vegg og grenselinjen mellom denne eiendommen (Kroken 2) og naboeiendommen (Kroken 4). Den spesifiserer ansvar for vedlikehold, samt gir gjensidig rett til å oppføre nye vegger, carporter, boder og gjerder inntil grensen. Avtalen inneholder også bestemmelser om fundamentering og varsling ved byggearbeider. Forpliktelsene i avtalen følger eiendommen ved salg.
Servituttene vil følge eiendommen. Kjøpers bank vil få prioritet etter ovennevnte heftelser og servitutter.
Eventuell adgang til utleie
Eiendommen har ikke separat utleieenhet. Det vil normalt være anledning til utleie av hele eiendommen eller enkeltrom, såfremt utleiearealet er bygningsmessig godkjent for varig opphold og har forsvarlige radonnivåer.
Beliggenhet og tomteforhold
Beliggenhet og tomteforhold
Beliggenhet
Kroken 2 har en flott beliggenhet i et ærverdig og ettertraktet boligområde på Eiganes.
Stavanger sentrum med alle dens servicetilbud kun en kort gåtur unna.
Gangavstand til "Hermetikken" ved Ledaal park, hvor man finner både Matmagasinet, Kanelsnurren og Lervig Local. Helgø Meny med søndagsåpent ligger også i gåavstand fra boligen.
Det er kort vei til barnehager, skoler, samt Stavanger Stadion. Flotte turområder som Stokkavannet og Mosvannet like ved.
Enkel adkomst til E39.
Adkomst
Veibeskrivelse: Se Google maps - det er enkelt å finne frem i kartet.
Det vil bli skiltet med Krogsveen visningsskilt ved fellesvisninger.
Barnehager, skoler og fritid
Barnehager:
- Egenes idrettsbarnehage (1-5 år) 0,3 km
- Bokkaskogen barnehage (1-5 år) 0,9 km
- Huskestua barnehage (1-5 år) 1 km
Skoler:
- Eiganes skole (1-7 kl.) 0,4 km
- Lassa skole (1-7 kl.) 1,3 km
- BISS Sentrum (1-10 kl.) 1,3 km
- Kannik skole (8-10 kl.) 0,9 km
- Wang Ung Stavanger (8-10 kl.) 1,4 km
- St. Olav videregående skole 1,2 km
- St. Svithun videregående skole 1,3 km
Informasjon om tilhørende skolekretser er hentet fra Prognosesenteret som dataleverandør, og tilhørigheten kan årlig endres av kommunen. Dersom skole- og barnehagetilbud er av betydning for kjøpet, ber vi om at det rettes en særskilt henvendelse til kommunen/bydelsadministrasjonen for oppdatert informasjon.
Beskrivelse av tomt
Eiertomt på 380 kvm.
Oppgitt tomteareal er hentet fra digitalt eiendomskart fra Stavanger kommune. Oppgitt/anslått areal kan derfor avvike fra nøyaktig areal.
Parkering
Boligen disponerer en biloppstillingsplass i egen garasje og parkeringsmuligheter på tomt.
Vei, vann og avløp
Eiendommen har adkomst via kommunal vei.
Eiendommen er tilknyttet kommunalt ledningsnett via private stikkledninger. Eier er selv ansvarlig for private stikkledninger til boligen.
Regulerings-og arealplaner
Eiendommen er regulert til boligformål i henhold til reguleringsplan ID 203 "Reg.plan for Eiganesveien - Holbergsgt - Bratlandsgt - Rektor Hammersgt." datert 17.03.1934 med tilhørende reguleringsbestemmelser.
Eiendommen følger kommuneplan ID KP 2023-2040 "Kommuneplanens arealdel 2023-2040" datert 28.06.2024 med tilhørende reguleringsbestemmelser.
Boligen er en del av "Trehusbyen" i Stavanger hvor den kulturhistorisk verdifulle bebyggelsen skal søkes bevart og områdenes særpregede miljø skal sikres og videreutvikles. Det må søkes om tillatelse for byggearbeider som endrer bygningers utseende, også for endringer på taket. Med bakgrunn i vernehensynet vil flere tiltak regnes som vesentlige fasadeendringer enn ellers i kommunen, jf. pbl. §20-5 bokstav f.
Reguleringsplaner under arbeid i nærheten (100 meter):
- ID 2803 "Detaljregulering for Eiganesveien fra Rektor Hammers gate til Møllegata".
Formål:
Formålet med detaljregulering for Eiganesveien er både å tilrettelegge veien for gående og syklende, og å verne og styrke det kulturhistoriske miljøet. Planen skal styrke veien som en viktig grønnstruktur og som forbindelse vestover fra sentrum. Veiens kulturhistoriske elementer og miljø skal styrkes og sikres et vern gjennom regulering i tråd med kulturminneplanen. Prosjektet er et gangeprosjekt i bymiljøpakken og skal bidra til å gjøre det enklere og mer attraktivt å gå
- ID 2836 "Detaljregulering for Domkirkens sykehjem og bispeboligen".
Formål:
Formål med planen er vern av bebyggelse og tilrettelegging for ny utbygging.
Viktige tema for planen vil være vern og tilrettelegging for ny bebyggelse.
Utsnitt av plan med tilhørende bestemmelser kan fås ved henvendelse til megler.
Økonomi
Økonomi
Kommunale utgifter
Kommunale avgifter var i 2025 kr 18.284,-. I dette inngår gebyr for vann, avløp, renovasjon og feiing/tilsyn.
Nåværende eier har et strømforbruk som tilsvarer ca 26.000 kwh. pr. år med billader.
Boligen er tilknyttet altibox som leverandør av kabel-tv samt internett og har avgift på kr 1.339,- pr. mnd. Tv-tuner/dekoder og WIFI ruter medfølger ikke.
Utgiftene er basert på nåværende eiers forbruk og avtaler.
Formuesverdi
Formuesverdi for 2023 var kr 1.693.665,- ifølge skatteetaten. Beløpet forutsetter at eier bor fast i boligen (primærbolig).
Ved eventuell øvrig bruk av eiendommen (f.eks. fritidsbolig, pendlerbolig, utleieobjekt) var formuesverdien for 2023 kr 6.774.660,-.
Formuesverdien justeres normalt årlig. Formuesverdien for denne eiendommen vurderes til å være satt lavt sammenlignet med markedsverdien. Kjøper må derfor påregne at formuesverdien vil øke.
Se skatteetaten.no for mer informasjon om fastsettelse av formuesverdien.
Eiendomsskatt
Eiendomsskatten er i Stavanger kommune gjeninnført fra 2026, men det er ikke stipulert hvor mye dette utgjør for denne eiendommen.
Omkostninger
10 500 000,00 Prisantydning
Omkostninger
262 500,00 Dokumentavgift til staten (2,5% av kjøpesum)
19 900,00 Gjensidige Boligkjøperpakke (valgfri)
545,00 Tinglysing panterettsdokument
545,00 Tinglysing skjøte
--------------------------------------------------------
283 490,00 Omkostninger totalt
--------------------------------------------------------
10 783 490,00 Totalpris inkl. omkostninger
--------------------------------------------------------
Totalpris inkl. omkostninger forutsetter kjøp til prisantydning.
Det tas forbehold om endringer i avgifter og gebyrer.
Tilbud om lånefinansiering
Megler formidler gjerne kontakt med rådgiver hos vår samarbeidspartner BN Bank. De har konkurransedyktige betingelser samt rask og løsningsorientert behandling av din lånesøknad. Krogsveen mottar et honorar for denne formidlingen.
Betalingsbetingelser
Kjøpesum inkludert omkostninger, samt pantedokument tilknyttet eventuelt lån, skal være disponibelt hos megler 2 virkedager før overtagelsen.
Annen viktig informasjon
Annen viktig informasjon
Eier
Espen Sørli og Jane Elisabeth Sørli
Overtakelse
Etter nærmere avtale.
Boligselgerforsikring
Selger har i forbindelse med salget tegnet boligselgerforsikring levert av Gjensidige.
Boligselgerforsikringen dekker selgers ansvar etter avhendingsloven begrenset oppad til kr 14 millioner. Dersom kjøper oppdager forhold ved eiendommen som hen mener utgjør en mangel ved eiendommen, vil Gjensidige behandle reklamasjonen på vegne av selger. Forsikringsvilkår kan fås ved henvendelse til megler.
Vedlagt salgsoppgaven følger selgers egenerklæringsskjema og tilstandsrapport. Interessenter må sette seg inn i dokumentene før bud inngis.
Boligkjøperforsikring
Innen kontraktsmøtet må kjøper ta stilling til om det ønskes å bestille Boligkjøperpakken gjennom Gjensidige. I denne gunstige pakken er boligen ferdig forsikret og inkluderer rettshjelpsforsikring, også kalt Boligkjøperforsikring. Rettshjelpsforsikring gir trygghet og tilgang på profesjonell juridisk hjelp dersom det oppdages uventede feil eller mangler det første året etter overtagelse. Forsikringsselskapet behandler i så fall ethvert mangelskrav kjøper måtte ha overfor selger.
Boligkjøperpakken inkluderer bygningsforsikring for hus og hytte, innboforsikring, flytteforsikring og dobbel rentedekning - i situasjoner hvor kjøper ikke får solgt nåværende primærbolig.
Kjøper mottar ingen særskilt faktura for Boligkjøperpakken da kostnaden det første året legges til kjøpesummen for boligen. Det gjøres oppmerksom på Krogsveen mottar et honorar for denne formidlingen.
Produktark for Boligkjøperpakken ligger vedlagt i salgsoppgaven.
Dersom ikke boligkjøperpakke ønskes kan kun rettshjelpsforsikring, også kalt boligkjøperforsikring, tegnes særskilt via megler. Rettshjelpsforsikringen varer i 5 år fra overtagelse og leveres gjennom Gjensidige. Ta kontakt med megler for ytterligere informasjon.
Selskap og privatpersoner som driver med kjøp/salg/utvikling som ledd i egen næringsvirksomhet kan ikke tegne boligkjøperpakke eller rettshjelpsforsikring.
Budgivning
Forbrukerinformasjon om budgivning er vedlagt denne salgsoppgaven og er også på vår hjemmeside Krogsveen.no. Alle bud og budforhøyelser må inngis skriftlig. I tillegg må legitimasjon være fremlagt sammen med signatur fra budgiver.
Vi oppfordrer til å gi bud elektronisk via GI BUD-knappen på eiendommens hjemmeside på Krogsveen.no. Da vil samtlige vilkår bli oppfylt.
Eventuelle forhøyelser eller endringer av budet kan bekreftes pr SMS eller på e-post. Vi oppfordrer alltid til å kontakte megler pr. telefon i tillegg da forsinkelser i SMS og e-post kan forekomme.
For at budene skal kunne bli behandlet og videreformidlet skriftlig til alle involverte parter, må alle bud ha en tilstrekkelig lang akseptfrist, jf. eiendomsmeglingsforskriften § 6-3.
Selger må også skriftlig akseptere budet før aksept kan formidles til budgiver. Akseptfrist bør derfor være på minimum 30 minutter, og budforhøyelser må derfor skje i god tid før fristens utløp.
Bud i forbrukerforhold kan uansett ikke settes med kortere frist enn kl. 12.00 første virkedag etter siste annonserte visning. I tillegg kan ikke budet ha forbehold om at det skal holdes hemmelig ovenfor øvrige interessenter. Megler har iht lov om eiendomsmegling ikke anledning til å videreformidle disse budene, og de vil dermed heller ikke bli journalført.
Etter at eiendommen er solgt vil kjøper og selger få tilsendt budjournal. Øvrige budgivere kan få utlevert kopi av budjournalen i anonymisert form.
Hvitvaskingsreglene
I henhold til lov om hvitvasking og terrorfinansiering har megler plikt til å gjennomføre kontrolltiltak overfor kunder, herunder fullmektiger. Dette innebærer bl.a. å bekrefte kunders og reelle rettighetshaveres identitet på bakgrunn av fremvist gyldig legitimasjon eller på annen godkjent måte, samt å innhente opplysninger om kundeforholdets formål og tilsiktede art.
Dersom slike kundetiltak ikke kan gjennomføres, kan megler ikke etablere kundeforholdet eller utføre transaksjonen.
Hvis kjøper ikke bidrar til gjennomføring av kundekontrollen og dette fører til at transaksjonen blir forsinket eller ikke kan gjennomføres, vil dette ansees som mislighold av avtalen og gi selger rettigheter etter avhendingslova kapittel 5. I tilfeller der selger ikke bidrar til gjennomføring av løpende kundekontroll underveis i oppdraget, er det selger som misligholder sine forpliktelser etter avtalen og gi kjøper rettigheter etter avhendingslovens kapittel 4. Partene er selv ansvarlige for eventuelle kostnader og ansvar dette kan medføre. Eiendomsmegleren eller eiendomsmeglingsforetaket kan ikke holdes ansvarlig for de konsekvenser dette vil kunne få for partene eller andre som har interesser i eiendomshandelen.
Kjøper oppfordres til å innbetale kjøpesummen som ikke kommer fra låneinstitusjon i én samlet innbetaling fra egen konto i norsk bank. Megler har plikt til å melde fra til Økokrim om eiendomshandler som fremstår som mistenkelige. Melding sendes Økokrim uten at partene varsles.
Personopplysningsloven
I henhold til personopplysningsloven gjør vi oppmerksom på at interessenter kan bli registrert for videre oppfølging.
Lovanvendelse
Generelle bestemmelser
Salgsoppgaven er basert på de opplysningene selger har gitt til megler, den bygningssakyndiges tilstandsrapport, samt opplysninger innhentet fra kommunen, Kartverket og andre tilgjengelige kilder. Det er viktig at kjøper setter seg grundig inn i alle salgsdokumentene, herunder salgsoppgave, tilstandsrapport og selgers egenerklæring. Kjøper anses kjent med forhold som er tydelig beskrevet i salgsdokumentene, og slike forhold kan ikke påberopes som mangler. Dette gjelder uavhengig av om kjøper har lest dokumentene. Alle interessenter oppfordres til å undersøke eiendommen nøye, gjerne sammen med fagkyndig før bud inngis. Kjøper som velger å kjøpe usett kan ikke gjøre gjeldende som mangel noe han burde blitt kjent med ved undersøkelsen.
Dersom det er behov for avklaringer, anbefaler vi at interessenter rådfører seg med eiendomsmegler eller egne rådgivere før det legges inn bud.
En bolig som har blitt brukt i en viss tid, har vanligvis blitt utsatt for slitasje og skader kan ha oppstått. Slik bruksslitasje må kjøper regne med, og det kan avdekkes enkelte forhold etter overtakelse som nødvendiggjør utbedringer. Normal slitasje og skader som nødvendiggjør utbedring, er innenfor hva kjøper må forvente og vil ikke utgjøre en mangel.
Kjøper og selgers rettigheter og plikter reguleres av avtalen mellom partene, samt informasjonen som har vært tilgjengelig for kjøperen i forbindelse med handelen. Avtalen utfylles av avhendingsloven, og det gjelder ulike avtalevilkår avhengig av om kjøper er forbrukerkjøper eller ikke. Dette er nærmere beskrevet nedenfor.
På grunn av ulike avtalevilkår kan selger vurdere bud fra en som ikke er forbruker, ulikt fra en forbrukers bud. Dersom kjøper ikke er forbruker, er selger sitt mulige mangelsansvar begrenset fordi eiendommen selges "som den er". Selger kan ikke ta «som den er»- forbehold overfor en forbrukerkjøper. Selv et lavere bud fra en som ikke er forbruker kan foretrekkes fordi begrensningen i mulig mangelsansvar kan ha egenverdi for selger. Selger står fritt til å forkaste eller akseptere ethvert bud, og er for eksempel ikke forpliktet til å akseptere høyeste bud.
Budgiver skal i budskjema avgi egenerklæring om budgiver er forbruker eller næringsdrivende/ person som hovedsakelig handler som ledd i næringsvirksomhet. Budgivere får informasjon dersom andre bud er inngitt av en som ikke er forbruker.
Forbrukerkjøp - definisjon
Med forbrukerkjøp menes kjøp av eiendom når kjøperen er en fysisk person som ikke hovedsakelig handler som ledd i næringsvirksomhet.
Forbruker – avtalevilkår
Eiendommen har en mangel dersom den ikke er i samsvar med kravene som følger av avtalen, eller det foreligger brudd på bestemmelsene i avhendingsloven §§ 3-2 til 3-8. Hvis eiendommen ikke er i samsvar med det kjøperen må kunne forvente ut ifra alder, type og synlig tilstand, kan det være grunnlag for mangelskrav. Det samme gjelder hvis det er holdt tilbake eller gitt uriktige opplysninger om eiendommen. Dette gjelder likevel bare dersom man kan gå ut ifra at det virket inn på avtalen at opplysningen ikke ble gitt eller at mangelskravet ikke blir rettet i tide på en tydelig måte.
Boligen kan ha en mangel etter avhendingsloven § 3-3 andre ledd, dersom det er avvik mellom opplyst og faktisk innvendig areal, forutsatt at avviket er på 2% eller mer og minimum 1 kvm.
Ved beregning av et eventuelt prisavslag eller erstatning må kjøper selv dekke tap/kostnader opptil et beløp på kr 10 000 (egenandel).
Ikke-forbruker (næringsdrivende) – definisjon
Hvis kjøper er en juridisk person, eller en fysisk person som hovedsakelig handler som ledd i næringsvirksomhet, vil kjøpet ikke anses som et forbrukerkjøp.
Ikke-forbruker – avtalevilkår
Eiendommen har en mangel dersom den ikke er i samsvar med kravene som følger av avtalen.
Eiendommen selges «som den er», og selgers ansvar utover det konkret avtalte er da begrenset etter avhendingsloven § 3-9, første ledd andre setning.
Avhendingsloven § 3-3 andre ledd fravikes, og hvorvidt boligens arealsvikt utgjør en mangel vurderes etter avhendingsloven § 3-8.
Informasjon om kjøpers undersøkelsesplikt, herunder oppfordringen om å undersøke eiendommen nøye, gjelder også for kjøpere som ikke anses som forbrukere.
Det forutsettes at hjemmel overføres til kjøper. Hvis kjøper ikke ønsker hjemmelsoverføring av eiendommen, må det tas forbehold om dette i budet.
Meglers vederlag
Meglers vederlag betales av selger og er avtalt til:
Vederlag: 1,00 % av salgssummen.
Vederlag:
Kontroll av hjemmel og heftelser kr 2 900,00
Markedsføringspakke kr 26 900,00
Oppgjør kr 7 500,00
Salgsoppgaver vanlige kr 3 600,00
Tilrettelegging kr 17 000,00
Visninger pr stk / Overtagelse kr 4 000,00
Utlegg:
Tinglysing sikring kr 545,00
Andre utgifter:
Foto kr 4 500,00
Vi er opptatt av verdiskapning, og har knyttet til oss samarbeidspartnere som skal sikre våre kunder de beste produkter og tjenester;
• I forbindelse med forberedelse av salget, innhenter vi informasjon om eiendommen hovedsakelig fra vår samarbeidspartner Amibita.
• Gjensidige leverer boligselgerforsikring og tilbyr bygningsforsikring
• Boligkjøperforsikring leveres av Hiscox og med Sedgwick som skadebehandler, og er formidlet gjennom Gjensidige.
• BN bank tilbyr finansieringsløsninger
• Vår avdeling Krogsveen Pluss tilbyr flyttetjenester som utvask, visningsvask, lager, tømming og transport av flyttelass, i tillegg til å formidle kontakt med Flip for overflateoppussing.
• I forbindelse med overtagelse av eiendommen tilbyr Overo avtale om strøm, alarm og bredbånd.
• Krogsveen er, sammen med øvrige bransjeaktører, medeier i den digitale annonseringsplattformen Hjem som eies av Bomega AS.
Opplysninger om oppdraget
Oppdragsnummer 35-0343/25
Eiendomsmegler Krogsveen AS, avd. Stavanger
Nedre Strandgate 41, 4005, STAVANGER
950007613
Oppdragets KR-kode KR35.25343
Dato
Sist oppdatert: 19. januar 2026 kl. 17:29
Dokumenter
Dokumenter
PDF – 1009 KB
PDF – 531 KB
PDF – 140 KB
PDF – 312 KB
PDF – 29 KB
PDF – 127 KB
PDF – 392 KB
Område
Legg til steder som er viktige for deg
Visning
Unngå doble boligrenter
Vi tilbyr gunstig forsikring.
Vurderer du utleie?
Få et tilbud fra Utleie KrogsveenHva koster lånet?
Sjekk estimert lånekostnadVil du varsles om lignende boliger?
Ved å lagre ditt boligsøk hos oss får du beskjed når vi har en bolig som ligner denne, før den legges ut på markedet!

