Riihimækiveien 11

2 990 000 kr

54 m²

1 soverom

Komplett salgsoppgave

Skjetten

Romslig 2-roms i 4. etasje | Stor innglasset balkong på 14 m² | Kjøkken fra 2023 | Garasjeplass m ladepunkt

    Pris

  • Prisantydning

    2 990 000 kr

  • Andel fellesgjeld

    300 434 kr

  • Omkostninger

    19 253 kr

  • Totalpris

    3 309 687 kr

    Areal

  • Bruksareal

    69 m²

  • BRA-I (internt bruksareal)

    54 m²

  • BRA-E (eksternt bruksareal)

    1 m²

    Nøkkelinfo

  • Etasje

    4

  • Byggeår

    1974

  • Soverom

    1 soverom

  • Bad

    1 bad

  • Type

    Andelsleilighet

  • Eierform

    Andel

  • Fasiliteter

    Garasje/P-plass og Balkong/Terrasse

  • Fellesutgifter

    5 878 kr

  • Energimerke

    Oransje F

Unngå doble boligrenter

Vi tilbyr gunstig forsikring.

Hva koster lånet?

Sjekk estimert lånekostnad

Beskrivelse

Kort om eiendommen

Velkommen til Riihimækiveien 11! Pen og arealeffektiv 2-roms andelsleilighet med nyere kjøkken og stor, innglasset balkong. Leiligheten har en barnevennlig og tilbaketrukket beliggenhet på Skjetten. Her bor du i rolige omgivelser, samtidig som du har kort vei til butikker, skoler og kollektivtransport. Boligen har en delvis åpen løsning mellom stue og det ble satt inn nytt kjøkkenet i 2023. Fra stuen er det utgang til en romslig, innglasset balkong som blir en fin forlengelse av stuen. Høydepunkter:
  • Kjøkkeninnredning fra 2023
  • Stor innglasset balkong på 14 m²
  • Garasjeplass i felles anlegg
  • God lagringsplass med innvendig og utvendig bod
  • Kort vei til butikker og offentlig kommunikasjon

Innhold og byggemåte

Eiendommen

Riihimækiveien 11, 2013 SKJETTEN
Kommunenummer 3205, gårdsnummer 71, bruksnummer 54, ideell andel 1/1
Andelsnummer 251, Riihimækiveien Borettslag, organisasjonsnummer 948 391 546

Innhold

Totalt bruksareal BRA: 69 kvm

BRA-i:
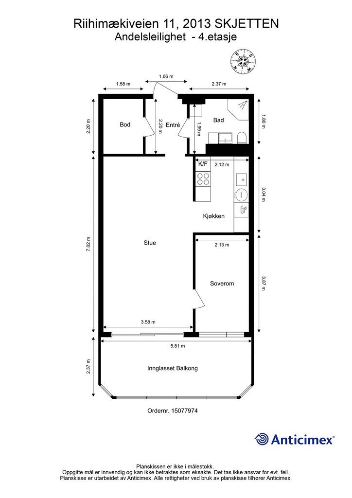
4. etasje 54 kvm: Entré, bad, bod, stue, kjøkken og ett soverom.

BRA-e:
1. etasje 1 kvm: utvendig bod i felles bodbygg.

BRA-b:
4. etasje 14 kvm: Innglasset balkong.

Leiligheten disponerer ett bodskap i kjeller.

Vedlagte plantegninger er ikke målbare. De oppgitte arealer er hentet fra rapport med befaringsdato 17.12.2025 utført av Anticimex AS v/Thomas Nordby.

Byggemåte

Selger har fått utarbeidet en tilstandsrapport, dvs. en teknisk gjennomgang av boligen hvor eventuelle avvik, risiko for kjøper og prisoverslag for hva som bør gjøres av oppgradering, er skissert. Se særskilt TGIU (tilstandsgrad ikke undersøkt), samt TG2 og TG3 som viser hva som er boligens normale slitasje, alder og type, eller som bør/må utbedres. Rapporten og selgers egenerklæring er en del av salgsoppgaven og må leses nøye før bud inngis. Kjøper overtar ansvaret for de opplysninger som fremkommer av salgsdokumentasjonen, og kan ikke gjøre gjeldende som mangel noe som burde vært kjent eller som ikke kan anses å ha betydning for avtalen.

Bygningen er iht. tilstandsrapport en andelsleilighet i et boligbygg over fem etasjer, oppført i 1974. Bygningen har grunnmur, bærende konstruksjoner og skillende dekker av betong med utfyllende bindingsverk. Fasader er kledd med fasadeplater og trepanel. Taket er en tilnærmet flat takkonstruksjon, utvendig tekket med takpapp. Leiligheten har vinduer med karmer av tre og to-lags glass fra 2006. Entrédøren er av tre med brannklasse B30 og lydklasse 40dB, mens balkongdøren har karmer av PVC og to-lags glass fra 2006. Innvendige dører er hvite i slett utførelse.

Det gjøres spesielt oppmerksom på at følgende bygningsdeler er gitt Tilstandsgrad 3 (TG3) — Store eller alvorlige avvik:

- Våtrom: Våtrommet er gitt TG3 som en helhetsvurdering på grunn av høy alder og slitasjegrad. Det er registrert moderat slitasje og manglende vedheft på våtromstapetet, og tettesjiktet har passert forventet levetid. Fornying/oppgradering av våtrommet må påregnes. Det er opplyst om et pågående rehabiliteringsprosjekt i borettslaget hvor alle bad skal totalrenoveres.

Ovennevnte er kun et utdrag fra rapporten. Se supplerende tekst i tilstandsrapporten for mer informasjon. For øvrige tilstandsgrader og tilstandsgrader grunnet høy alder og evt. slitasje, så henvises det til rapporten. Kjøper overtar ansvar og risiko for dette.

Standard

Lys og trivelig 2-roms andelsleilighet med innglasset balkong - perfekt for å nyte både sommer- og vinterdager.
Leiligheten ligger i et borettslag hvor det er vedtatt totalrenovering av alle baderom.

Stue og kjøkken i delvis åpen løsning, og kjøkkeninnredningen ble oppgradert i 2023.
Her finner du hvite, glatte fronter, laminert benkeplate og benkebelysning.
Det er godt med skapplass og løsninger med nisje for frittstående komfyr og kjøleskap.
Opplegg for oppvaskmaskin og mekanisk ventilator med kullfilter.
Frittstående kjøleskap og fryser medfølger.
Varmtvannsbereder på 116 liter er plassert under benken. Denne vil oppgraderes når badet blir tatt av regi av borettslaget.
Borettslaget renoverer alle bad i borettslaget, og har estimert at badet i denne leiligheten vil pusses opp i 3.kvartal 2026. Infomøte kommer i april.

Fra stuen er det utgang til en innglasset balkong som fungerer perfekt som en forlengelse av stuen.

Baderommet har gulvbelegg, tapetserte vegger og dusjkabinett. Det er opplegg for vaskemaskin, vegghengt servantskap og gulvmontert toalett. Oppvarming via stråleovn og mekanisk avtrekk.
Badet er gitt TG3.

Leiligheten har et soverom av god størrelse med plass til garderobeskap.

Dette er en leilighet med stort potensial, perfekt for deg som ønsker å sette ditt eget preg.

Løsøre og tilbehør

Vi viser til liste fra Norges Eiendomsmeglerforbund som gjelder fra 01.01.2020 angående løsøre og tilbehør.

Oppvarming

Leiligheten er elektrisk oppvarmet. Det er stråleovn på badet.

Dersom beboelsesrom ikke har vegg- eller fastmonterte varmekilder ved visning følger dette heller ikke med.

Ferdigattest/brukstillatelse

Eiendommen har vært brukt til boligformål siden 1975. Det foreligger midlertidig brukstillatelse for boligblokk med 54 leiligheter.
Dokument kan fås ved henvendelse til megler.

Tinglyste heftelser og rettigheter

Utover andel fellesgjeld overdras leiligheten fri for pengeheftelser.

Borettslaget har legalpant for forfalte felleskostnader og andre krav som følger av borettslagsforholdet iht. burettslagsloven § 5-20. Pantet er begrenset oppad til 2G (G = folketrygdens grunnbeløp).

Det er tinglyst følgende servitutter på borettslagets eiendom:
Dagboknr 1234, tinglyst 10.03.1970, type heftelse: Rettigheter iflg. skjøte på bnr.4 er det best. om ledn.for vann-kloakk,el-ledninger m.v. Fl.best.
Dagboknr 4244, tinglyst 29.06.1977, type heftelse: Forkjøpsrett

Servituttene vil følge eiendommen. Kjøpers bank vil få prioritet etter ovennevnte heftelser og servitutter.

Eventuell adgang til utleie

Andelseier kan ikke uten samtykke fra styret i borettslaget overlate bruken av boligen til andre. Med samtykke kan andelseier overlate boligen til andre i inntil tre år hvis andelseier har bodd i boligen i minst ett av de to siste år. Utleie i andre tilfeller kan godtas ved særlige grunner, jf. burettslagslova § 5-6. Utleie forutsetter at leiligheten har forsvarlige radonverdier. Se også borettslagets vedtekter og konferer megler ved spørsmål.

Energimerking

.

Beliggenhet og tomteforhold

Beliggenhet

Leiligheten har en attraktiv og tilbaketrukket beliggenhet i et etablert boligområde på Skjetten. Her bor du i rolige omgivelser med umiddelbar nærhet til grøntarealer, samtidig som du har kort vei til alt en aktiv hverdag krever. Området er kjent for å være trygt og er godt tilrettelagt for både barnefamilier, etablerere og voksne som verdsetter en fredelig atmosfære med naturen rett utenfor.

Hverdagslogistikken er enkel med gangavstand til flere barnehager og skoler, deriblant Gjellerås skole som ligger kun minutter unna. For daglige innkjøp finnes både Meny og Coop Extra i nærheten, og for et bredere utvalg av butikker og servicetilbud er det kun en kort kjøretur til Skjetten Nærsenter eller Strømmen Storsenter.

Området byr på et rikt og variert fritidstilbud. Skjetten Sportsklubb er et naturlig samlingspunkt med aktiviteter som fotball, håndball og svømming for alle aldre. For den som foretrekker friluftsliv, finnes det flotte turmuligheter i nærområdet, som den populære rundturen ved Skjettenkollen. I tillegg er det flere treningssentre, padelbaner og en utendørs treningspark lett tilgjengelig.

Beliggenheten er også praktisk for pendlere. Nærmeste busstopp er kun noen få minutters gange unna, med forbindelser som tar deg videre. Med bil tar det rundt åtte minutter til Strømmen, ti minutter til Lillestrøm og i underkant av 25 minutter til både Oslo sentrum og Oslo Lufthavn Gardermoen, noe som gjør området til et sentralt og gunstig utgangspunkt.

Barnehager, skoler og fritid

Gjellerås skole (1-7 kl.)
Skjetten skole (1-7 kl.)
Romerike Steinerskole (1-10 kl.)
Oks friskole (1-10 kl.)
Stav skole (8-10 kl.)
Strømmen videregående skole
Lillestrøm videregående skole

Informasjon om tilhørende skolekretser er hentet fra Prognosesenteret som dataleverandør, og tilhørigheten kan årlig endres av kommunen. Dersom skole- og barnehagetilbud er av betydning for kjøpet, ber vi om at det rettes en særskilt henvendelse til kommunen for oppdatert informasjon.

Beskrivelse av tomt

Eiertomt på 6 583 kvm som tilhører borettslaget.

Parkering

Leiligheten disponerer en biloppstillingsplass (plass 01 i 1.etg.) med ladepunkt i felles garasjeanlegg. For øvrig gjelder gateparkering etter gjeldende bestemmelser.

Vei, vann og avløp

Eiendommen har adkomst via privat vei med felles vedlikeholdsansvar for Borettslaget.

Eiendommen er tilknyttet kommunalt ledningsnett via private stikkledninger.
Borettslaget er ansvarlig for private stikkledninger til bygningen.

Regulerings-og arealplaner

Eiendommen er regulert til bebyggelse og anlegg og veg i henhold til kommuneplanens arealdel 2019-2030 datert 18.06.2019 og detaljregulering for del av Fv 410 datert 21.11.1990 med tilhørende reguleringsbestemmelser.

Utsnitt av plan med tilhørende bestemmelser kan fås ved henvendelse til megler.

Økonomi

Boligens kostnader

Felleskostnadene er kr 5 878,-  pr. mnd. og inkluderer: Parkering, avdrag/renter fellesgjeld, forretningsførsel, felles bygningsforsikring, kabel-tv/bredbånd, driftsutgifter og kommunale avgifter.
Felleskostnadene justeres normalt en til to ganger årlig i forhold til borettslagets faktiske utgifter og ble sist justert 01.01.2026.
Det bør også forventes en økning av felleskostnader som følge av låneopptaket.
Det er forespeilet en økning i felleskostnadene 01.07.2026 på 8%.

Felleskostnadene fordeles slik:
Felleskostnader kr 2 567,-
Renter og avdrag kr 2 811,-
Parkering kr 500,-

Nåværende eier har et strømforbruk som tilsvarer ca. kr 15 000,- pr. år. / 7 500 kwh. pr. år.
Boligen er tilknyttet Telia som leverandør av tv/internett. Tv-tuner/dekoder medfølger ikke.

Utgiftene er basert på nåværende eiers forbruk. Kjøper må selv tegne innboforsikring.

Formuesverdi

Formuesverdi for 2024 var kr 770 815,- ifølge selgers skatteetaten. Beløpet forutsetter at eier bor fast i boligen (primærbolig).

Ved eventuell øvrig bruk av eiendommen (f.eks. fritidsbolig, pendlerbolig, utleieobjekt) var formuesverdien for 2023 kr 3 083 260,-.

Formuesverdien justeres normalt årlig. Se skatteetaten.no for mer informasjon om fastsettelse av formuesverdien.

Opplysninger om fellesgjeld

Andel formue er kr 43 808,- pr. 31.12.2024
Andel fellesgjeld er kr 300 434,- pr. 01.01.2026

Total fellesgjeld for boligselskapet er kr 121 222 264,- pr. 01.01.2026 og lånevilkårene er:

Lån 1
Rentebetingelser: 5,45%
Lånets innfrielsesår 2054
Saldo kr 43 739 858,-
Andel saldo kr 108 403,-

Lån 2
Rentebetingelser: 5,45%
Lånets innfrielsesår 2032
Saldo kr 17 482 679,-
Andel av saldo kr 43 329,-

Lån 3
Rentebetingelser: 5,10%
Saldo pr 01.01.2026: kr 60 000 000,-
Andel av saldo kr 148 702,-

Borettslaget ønsker på sikt å samle disse tre lånene til ett og ser på refinansieringsmulighet for dette.

Omkostninger

2 990 000,00 Prisantydning
300 434,00 Andel av fellesgjeld
--------------------------------------------------------
3 290 434,00 Pris inkl. fellesgjeld

Omkostninger

8 213,00  Gebyr forhåndsavklaring forkjøpsrett
9 950,00  Gjensidige Boligkjøperpakke (valgfri)
545,00  Tinglysing hjemmel
545,00  Tinglysing panterettsdokument
--------------------------------------------------------
19 253,00 Omkostninger totalt

--------------------------------------------------------
3 309 687,00 Totalpris inkl. omkostninger

--------------------------------------------------------

Dersom kjøper ikke er medlem av boligbyggelaget, må det påregnes en innmeldingsavgift og årlig medlemsgebyr pr. ny andelseier. Dette faktureres direkte fra boligbyggelaget.
Dersom borettslaget har fellesgjeld, vil leilighetens andel av fellesgjelden komme i tillegg til kjøpesummen. Denne gjelden skal ikke innbetales i oppgjøret, men følger leiligheten.
Det tas forbehold om endringer i avgifter og gebyrer.

Tilbud om lånefinansiering

Megler formidler gjerne kontakt med rådgiver hos Trøgstad Sparebank. De har konkurransedyktige betingelser samt rask og løsningsorientert behandling av din lånesøknad.

Betalingsbetingelser

Kjøpesum inkludert omkostninger, samt pantedokument tilknyttet eventuelt lån, skal være disponibelt hos megler 2 virkedager før overtagelsen.

Annen viktig informasjon

Eier

Marius Bø Engebraaten

Informasjon om borettslaget

Leiligheten er tilknyttet Riihimækiveien Borettslag. Borettslaget består av 318 leiligheter.
Forretningsfører er Solibo AS, forkjøpsrett via BORI.
Dugnad må påregnes.
Dyrehold skal godkjennes av styret og styrets godkjenning gjelder kun for det kjæledyret som det er søkt om.

Planlagte påkostninger: 
Borettslaget skal bytte avløpsrør og sluk, som fører til oppgradering av alle våtrom. Borettslaget estimerer oppstart tidlig sommer 2025. Etter vedtak på ekstraordinær generalforsamling i januar 2025 vil styret søke nytt lån på kr. 130.000.000,- til prosjektet. Estimert oppstart av arbeidene på våtrommene til denne leiligheten er i uke 45. Førbefaring er i uke 36 og bestillingsmøtet er i uke 38. Andel fellesgjeld er i dag totalt 199.860,- og det forventes/estimeres en økning av fellesgjeld på kr. 417 450,- som dekker kostnaden for rørprosjektet og nye bad. Etter rørfornying estimeres det at den totale fellesgjelden er på ca kr. 617 483,-. Dersom kjøperen av leiligheten gjør tilvalg vil fellesgjelden øke deretter. Fellesgjelden nedbetales via felleskostnadene, og det vil bli en økning av felleskostnadene som følge av nytt låneopptak.

I henhold til borettslagets vedtekter må kjøper godkjennes av styret som ny andelseier. Det er kjøpers ansvar at styregodkjenning blir gitt, men styret kan ikke nekte godkjenning uten saklig grunn.
Iht. burettslagslova kan man bare eie én andel i borettslaget. Kun fysiske personer kan være andelseiere.

Øvrige andelseiere i borettslaget og eventuelt medlemmer av boligbyggelaget har forkjøpsrett. I henhold til burettslagslova tar dette inntil 20 dager å avklare fra melding om salget er gitt borettslaget. Dersom boligen tas på forkjøpsrett løses kjøper fra avtalen. 

Borettslaget er tilknyttet Borettslagenes Sikringsordning AS som dekker manglende innbetaling av felleskostnader fra øvrige andelseiere.  Avtalen om sikring er gyldig til avtalen sies opp av en av partene. Oppsigelsesfrist er 1 desember med gyldighet fra førstkommende årsskifte.

Dokumenter for borettslaget kan fås ved henvendelse til megler.

Overtakelse

Etter nærmere avtale. Overtakelse kan tidligst skje etter at forkjøpsretten for øvrige andelseiere i borettslaget og eventuelt medlemmer av boligbyggelaget er avklart, samt at styrets godkjennelse er avklart. 

Boligselgerforsikring

Selger har i forbindelse med salget tegnet boligselgerforsikring levert av Gjensidige.  
Boligselgerforsikringen dekker selgers ansvar etter avhendingsloven begrenset oppad til kr 14 millioner. Dersom kjøper oppdager forhold ved eiendommen som hen mener utgjør en mangel ved eiendommen, vil Gjensidige behandle reklamasjonen på vegne av selger. Forsikringsvilkår kan fås ved henvendelse til megler.  

Vedlagt salgsoppgaven følger selgers egenerklæringsskjema og tilstandsrapport. Interessenter må sette seg inn i dokumentene før bud inngis. 

Boligkjøperforsikring

Innen kontraktsmøtet må kjøper ta stilling til om det ønskes å bestille Boligkjøperpakken gjennom Gjensidige. I denne gunstige pakken er boligen ferdig forsikret og inkluderer rettshjelpsforsikring, også kalt Boligkjøperforsikring. Rettshjelpsforsikring gir trygghet og tilgang på profesjonell juridisk hjelp dersom det oppdages uventede feil eller mangler det første året etter overtagelse. Forsikringsselskapet behandler i så fall ethvert mangelskrav kjøper måtte ha overfor selger. 

Boligkjøperpakken inkluderer bygningsforsikring for hus og hytte, innboforsikring, flytteforsikring og dobbel rentedekning - i situasjoner hvor kjøper ikke får solgt nåværende primærbolig.   

Kjøper mottar ingen særskilt faktura for Boligkjøperpakken da kostnaden det første året legges til kjøpesummen for boligen. Det gjøres oppmerksom på Krogsveen mottar et honorar for denne formidlingen.
Produktark for Boligkjøperpakken ligger vedlagt i salgsoppgaven.  

Dersom ikke boligkjøperpakke ønskes kan kun rettshjelpsforsikring, også kalt boligkjøperforsikring, tegnes særskilt via megler. Rettshjelpsforsikringen varer i 5 år fra overtagelse og leveres gjennom Gjensidige. Ta kontakt med megler for ytterligere informasjon. 

Selskap og privatpersoner som driver med kjøp/salg/utvikling som ledd i egen næringsvirksomhet kan ikke tegne boligkjøperpakke eller rettshjelpsforsikring. 

Budgivning

Forbrukerinformasjon om budgivning er vedlagt denne salgsoppgaven og er også på vår hjemmeside Krogsveen.no. Alle bud og budforhøyelser må inngis skriftlig. I tillegg må legitimasjon være fremlagt sammen med signatur fra budgiver.

Vi oppfordrer til å gi bud elektronisk via GI BUD-knappen på eiendommens hjemmeside på Krogsveen.no. Da vil samtlige vilkår bli oppfylt.  
Eventuelle forhøyelser eller endringer av budet kan bekreftes pr SMS eller på e-post. Vi oppfordrer alltid til å kontakte megler pr. telefon i tillegg da forsinkelser i SMS og e-post kan forekomme.

For at budene skal kunne bli behandlet og videreformidlet skriftlig til alle involverte parter, må alle bud ha en tilstrekkelig lang akseptfrist, jf. eiendomsmeglingsforskriften § 6-3.

Selger må også skriftlig akseptere budet før aksept kan formidles til budgiver. Akseptfrist bør derfor være på minimum 30 minutter, og budforhøyelser må derfor skje i god tid før fristens utløp.

Bud i forbrukerforhold kan uansett ikke settes med kortere frist enn kl. 12.00 første virkedag etter siste annonserte visning. I tillegg kan ikke budet ha forbehold om at det skal holdes hemmelig ovenfor øvrige interessenter. Megler har iht lov om eiendomsmegling ikke anledning til å videreformidle disse budene, og de vil dermed heller ikke bli journalført.

Etter at eiendommen er solgt vil kjøper og selger få tilsendt budjournal. Øvrige budgivere kan få utlevert kopi av budjournalen i anonymisert form.

Hvitvaskingsreglene

I henhold til lov om hvitvasking og terrorfinansiering har megler plikt til å gjennomføre kontrolltiltak overfor kunder, herunder fullmektiger. Dette innebærer bl.a. å bekrefte kunders og reelle rettighetshaveres identitet på bakgrunn av fremvist gyldig legitimasjon eller på annen godkjent måte, samt å innhente opplysninger om kundeforholdets formål og tilsiktede art.

Dersom slike kundetiltak ikke kan gjennomføres, kan megler ikke etablere kundeforholdet eller utføre transaksjonen.

Hvis kjøper ikke bidrar til gjennomføring av kundekontrollen og dette fører til at transaksjonen blir forsinket eller ikke kan gjennomføres, vil dette ansees som mislighold av avtalen og gi selger rettigheter etter avhendingslova kapittel 5. I tilfeller der selger ikke bidrar til gjennomføring av løpende kundekontroll underveis i oppdraget, er det selger som misligholder sine forpliktelser etter avtalen og gi kjøper rettigheter etter avhendingslovens kapittel 4. Partene er selv ansvarlige for eventuelle kostnader og ansvar dette kan medføre. Eiendomsmegleren eller eiendomsmeglingsforetaket kan ikke holdes ansvarlig for de konsekvenser dette vil kunne få for partene eller andre som har interesser i eiendomshandelen.

Kjøper oppfordres til å innbetale kjøpesummen som ikke kommer fra låneinstitusjon i én samlet innbetaling fra egen konto i norsk bank. Megler har plikt til å melde fra til Økokrim om eiendomshandler som fremstår som mistenkelige. Melding sendes Økokrim uten at partene varsles. 

Personopplysningsloven

I henhold til personopplysningsloven gjør vi oppmerksom på at interessenter kan bli registrert for videre oppfølging.

Lovanvendelse

Generelle bestemmelser
Salgsoppgaven er basert på de opplysningene selger har gitt til megler, den bygningssakyndiges tilstandsrapport, samt opplysninger innhentet fra kommunen, Kartverket og andre tilgjengelige kilder. Det er viktig at kjøper setter seg grundig inn i alle salgsdokumentene, herunder salgsoppgave, tilstandsrapport og selgers egenerklæring. Kjøper anses kjent med forhold som er tydelig beskrevet i salgsdokumentene, og slike forhold kan ikke påberopes som mangler. Dette gjelder uavhengig av om kjøper har lest dokumentene. Alle interessenter oppfordres til å undersøke eiendommen nøye, gjerne sammen med fagkyndig før bud inngis. Kjøper som velger å kjøpe usett kan ikke gjøre gjeldende som mangel noe han burde blitt kjent med ved undersøkelsen. 

Dersom det er behov for avklaringer, anbefaler vi at interessenter rådfører seg med eiendomsmegler eller egne rådgivere før det legges inn bud.

En bolig som har blitt brukt i en viss tid, har vanligvis blitt utsatt for slitasje og skader kan ha oppstått. Slik bruksslitasje må kjøper regne med, og det kan avdekkes enkelte forhold etter overtakelse som nødvendiggjør utbedringer. Normal slitasje og skader som nødvendiggjør utbedring, er innenfor hva kjøper må forvente og vil ikke utgjøre en mangel.

Kjøper og selgers rettigheter og plikter reguleres av avtalen mellom partene, samt informasjonen som har vært tilgjengelig for kjøperen i forbindelse med handelen. Avtalen utfylles av avhendingsloven, og det gjelder ulike avtalevilkår avhengig av om kjøper er forbrukerkjøper eller ikke.  Dette er nærmere beskrevet nedenfor. 

På grunn av ulike avtalevilkår kan selger vurdere bud fra en som ikke er forbruker, ulikt fra en forbrukers bud. Dersom kjøper ikke er forbruker, er selger sitt mulige mangelsansvar begrenset fordi eiendommen selges "som den er".  Selger kan ikke ta «som den er»- forbehold overfor en forbrukerkjøper. Selv et lavere bud fra en som ikke er forbruker kan foretrekkes fordi begrensningen i mulig mangelsansvar kan ha egenverdi for selger. Selger står fritt til å forkaste eller akseptere ethvert bud, og er for eksempel ikke forpliktet til å akseptere høyeste bud.

Budgiver skal i budskjema avgi egenerklæring om budgiver er forbruker eller næringsdrivende/ person som hovedsakelig handler som ledd i næringsvirksomhet. Budgivere får informasjon dersom andre bud er inngitt av en som ikke er forbruker. 

Forbrukerkjøp - definisjon
Med forbrukerkjøp menes kjøp av eiendom når kjøperen er en fysisk person som ikke hovedsakelig handler som ledd i næringsvirksomhet.

Forbruker – avtalevilkår
Eiendommen har en mangel dersom den ikke er i samsvar med kravene som følger av avtalen, eller det foreligger brudd på bestemmelsene i avhendingsloven §§ 3-2 til 3-8. Hvis eiendommen ikke er i samsvar med det kjøperen må kunne forvente ut ifra alder, type og synlig tilstand, kan det være grunnlag for mangelskrav. Det samme gjelder hvis det er holdt tilbake eller gitt uriktige opplysninger om eiendommen. Dette gjelder likevel bare dersom man kan gå ut ifra at det virket inn på avtalen at opplysningen ikke ble gitt eller at mangelskravet ikke blir rettet i tide på en tydelig måte.

Boligen kan ha en mangel etter avhendingsloven § 3-3 andre ledd, dersom det er avvik mellom opplyst og faktisk innvendig areal, forutsatt at avviket er på 2% eller mer og minimum 1 kvm.

Ved beregning av et eventuelt prisavslag eller erstatning må kjøper selv dekke tap/kostnader opptil et beløp på kr 10 000 (egenandel).

Ikke-forbruker (næringsdrivende) – definisjon 
Hvis kjøper er en juridisk person, eller en fysisk person som hovedsakelig handler som ledd i næringsvirksomhet, vil kjøpet ikke anses som et forbrukerkjøp. 

Ikke-forbruker – avtalevilkår
Eiendommen har en mangel dersom den ikke er i samsvar med kravene som følger av avtalen.
Eiendommen selges «som den er», og selgers ansvar utover det konkret avtalte er da begrenset etter avhendingsloven § 3-9, første ledd andre setning. 

Avhendingsloven § 3-3 andre ledd fravikes, og hvorvidt boligens arealsvikt utgjør en mangel vurderes etter avhendingsloven § 3-8. 

Informasjon om kjøpers undersøkelsesplikt, herunder oppfordringen om å undersøke eiendommen nøye, gjelder også for kjøpere som ikke anses som forbrukere.

Det forutsettes at hjemmel overføres til kjøper. Hvis kjøper ikke ønsker hjemmelsoverføring av eiendommen, må det tas forbehold om dette i budet.

Meglers vederlag

Meglers vederlag betales av selger og er avtalt til:
Vederlag: 1,25 % av salgssummen inkl. eventuell fellesgjeld. Minimumsprovisjon er kr 35 000,00

Vederlag:
Første visning gratis, deretter 3.500,- pr visning / Overtagelse  kr 0,00
Kontroll av hjemmel og heftelser  kr 2 900,00
Markedsføringspakke  kr 29 900,00
Oppgjør  kr 7 500,00
Tilrettelegging  kr 17 000,00

Utlegg:
Eierskiftegebyr forretningsfører (selger)  kr 6 570,00
Innhenting av informasjon forretningsfører   kr 4 500,00
Innhenting av offentlig opplysninger  kr 869,00
Tinglysing sikring  kr 545,00

Andre utgifter:
AX tilstandsrapport leilighet  kr 9 950,00
Foto  kr 4 300,00

Vi er opptatt av verdiskapning, og har knyttet til oss samarbeidspartnere som skal sikre våre kunder de beste produkter og tjenester;
• I forbindelse med forberedelse av salget, innhenter vi informasjon om eiendommen hovedsakelig fra vår samarbeidspartner Amibita.
• Gjensidige leverer boligselgerforsikring og tilbyr bygningsforsikring
• Boligkjøperforsikring leveres av Hiscox og med Sedgwick som skadebehandler, og er formidlet gjennom Gjensidige.
• BN bank tilbyr finansieringsløsninger
• Vår avdeling Krogsveen Pluss tilbyr flyttetjenester som utvask, visningsvask, lager, tømming og transport av flyttelass, i tillegg til å formidle kontakt med Flip for overflateoppussing.
• I forbindelse med overtagelse av eiendommen tilbyr Overo avtale om strøm, alarm og bredbånd.
• Krogsveen er, sammen med øvrige bransjeaktører, medeier i Bomega AS som tilbyr den digitale annonseringsplattformen Hjem.

Opplysninger om oppdraget

Oppdragsnummer 60-0399/25
Eiendomsmegler Krogsveen AS, avd. Lillestrøm
Adolph Tidemands gate 38, 2000, LILLESTRØM
950 007 613
Oppdragets KR-kode KR60.25399

Dato

Sist oppdatert: 22. januar 2026 kl. 11:19

Dokumenter

Utskriftsvennlig salgsoppgave

Område

Legg til steder som er viktige for deg

Prisutvikling for området

Kvadratmeterpris

0 kr/m²

Endring

↘︎ % ()

Visning

Lurer du på noe?

Unngå doble boligrenter

Vi tilbyr gunstig forsikring.

Hva koster lånet?

Sjekk estimert lånekostnad

Vil du varsles om lignende boliger?

Ved å lagre ditt boligsøk hos oss får du beskjed når vi har en bolig som ligner denne, før den legges ut på markedet!

På flyttefot? Slik gjør vi det enklere for deg

Skreddersydd flyttepakke

Vi fikser håndverkere, vask, pakking, lagring og transport, og legger ut for utgiftene underveis.

Hjelp med både kjøp og salg

Hos oss har du din egen rådgiver gjennom hele kjøps- og salgsprosessen.

Hjelp til finansiering

Vårt samarbeid med BN Bank sikrer deg rask og løsningsorientert hjelp, til konkurransedyktige betingelser.