Velkommen til Buskveien 14E!

Buskveien 14E

2 280 000 kr

109 m²

3 soverom

Solgt

Andreas Haraldsen
Presenteres av
Andreas Haraldsen

Østerøya

Fantastisk flott nyoppført tomannsbolig med gjennomgående god standard – Kort vei til både byliv og sjø - 3 sov - 2 bad - 2 Stuer

    Pris

  • Prisantydning

    2 280 000 kr

  • Andel fellesgjeld

    2 913 000 kr

  • Omkostninger

    11 040 kr

  • Totalpris

    5 204 040 kr

    Areal

  • Bruksareal

    115 m²

  • BRA-I (internt bruksareal)

    109 m²

  • BRA-E (eksternt bruksareal)

    6 m²

    Nøkkelinfo

  • Etasje

    2

  • Byggeår

    2023

  • Soverom

    3 soverom

  • Bad

    2 bad

  • Type

    Halvpart vertikaldelt bolig

  • Eierform

    Andel

  • Fasiliteter

    Balkong/Terrasse

  • Fellesutgifter

    17 536 kr

  • Energimerke

    Rød B

Unngå doble boligrenter

Vi tilbyr gunstig forsikring.

Hva koster lånet?

Sjekk estimert lånekostnad

Beskrivelse

Kort om eiendommen

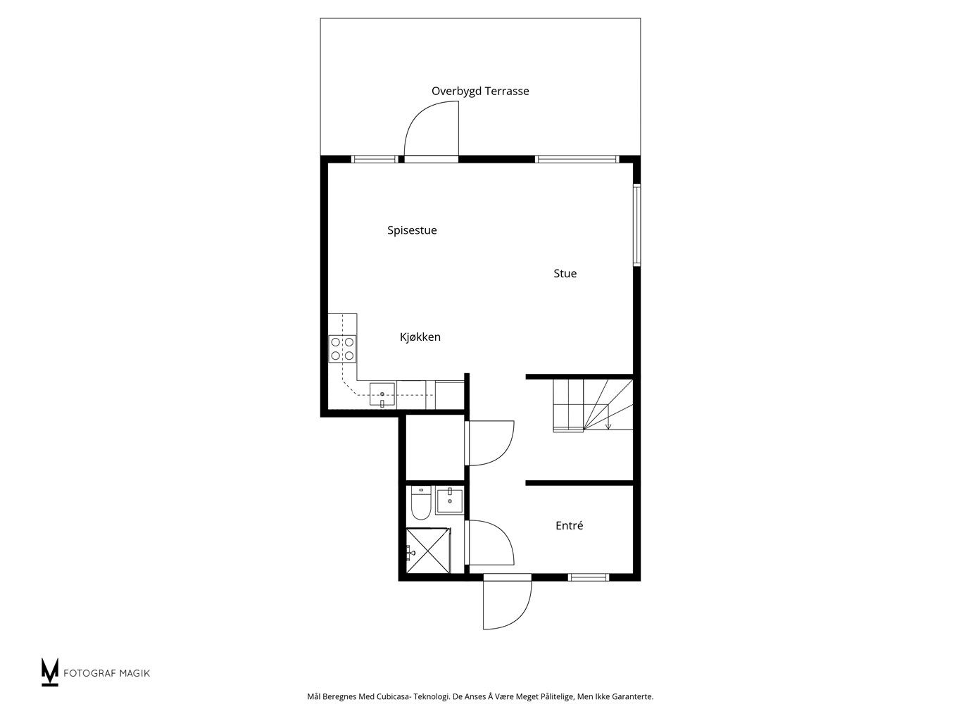
Moderne, nyoppført bolig som kombinerer komfort, kvalitet og praktiske løsninger. Det stilrene kjøkkenet med integrerte hvitevarer, to delikate bad, eget vaskerom og tre romslige soverom gjør hjemmet perfekt for både barnefamilier og par. Boligen byr på usjenerte uteplasser med terrasse, hyggelig hage og balkonger i 2. etasje, som gir gode soner for både ro, lek og sosiale stunder.

Beliggenheten er svært barnevennlig, med trygge gang- og sykkelveier til sjø, strender, turstier, skole og ulike fritidsaktiviteter. Området har også gode bussforbindelser til Sandefjord sentrum og videre til Oslo, noe som gjør pendling enkelt.

Boligen er bygget etter TEK-17 og fremstår helt ny. Borettslaget tilbyr IN-ordning for en fleksibel og forutsigbar finansieringsløsning.

Område

Legg til steder som er viktige for deg

Prisutvikling for området

Kvadratmeterpris

0 kr/m²

Endring

↘︎ % ()

På flyttefot? Tenk kjøp og salg samtidig.

Få din egen rådgiver gjennom hele kjøps- og salgsprosessen. Det starter med en verdivurdering.

Unngå doble boligrenter

Vi tilbyr gunstig forsikring.

Hva koster lånet?

Sjekk estimert lånekostnad

Vil du varsles om lignende boliger?

Ved å lagre ditt boligsøk hos oss får du beskjed når vi har en bolig som ligner denne, før den legges ut på markedet!

På flyttefot? Slik gjør vi det enklere for deg

Skreddersydd flyttepakke

Vi fikser håndverkere, vask, pakking, lagring og transport, og legger ut for utgiftene underveis.

Hjelp med både kjøp og salg

Hos oss har du din egen rådgiver gjennom hele kjøps- og salgsprosessen.

Hjelp til finansiering

Vårt samarbeid med BN Bank sikrer deg rask og løsningsorientert hjelp, til konkurransedyktige betingelser.