Komplett salgsoppgave

Tennisveien 44

5 000 000 kr
120 m²
3 soverom
Velkommen til Tennisveien 44! Fotograf Marianne Lyse
Velkommen til Tennisveien 44! Fotograf Marianne Lyse
Kart
Redesign på Hjem.no
Del
Bjørg Turid Engeland
Presenteres av
Bjørg Turid Engeland
Fint enderekkehus m/sentral beliggenhet på Tjensvoll. Solrik terrasse og hage. Parkering.

Unngå doble boligrenter

Vi tilbyr gunstig forsikring.
Sjekk estimert lånekostnad

    Pris

  • Prisantydning
    5 000 000 kr
  • Andel fellesgjeld
    664 168 kr
  • Omkostninger
    19 252 kr
  • Totalpris
    5 683 420 kr

    Areal

  • BRUKSAREAL
    125 m²
  • BRA-I (internt bruksareal)
    120 m²
  • BRA-E (eksternt bruksareal)
    5 m²
  • TBA (terrasse-balkongareal)
    31 m²

    Nøkkelinfo

  • Byggeår
    1977
  • Soverom
    3 soverom
  • Bad
    1 bad
  • Type
    Rekkehus
  • Eierform
    Andel
  • Fellesutgifter
    8 220 kr
  • Energimerke
    Rød F

Visning

Lurer du på noe?

Beskrivelse

Kort om eiendommen

Krogsveen har gleden av å presentere Tennisveien 44, et lyst og innholdsrikt rekkehus. Rekkehuset ligger i et etablert og attraktivt boligområde med de fleste fasiliteter innen kort avstand.
- Praktisk planløsning.
- Utgang fra stue til solrik uteplass med treplatting og plen
- Eget vaskerom i 1.etg.
- Parkeringsplass med elbillader.
- Utvendig bod
- Attraktiv og populær beliggenhet.
- Flotte turområder like i nærheten, Mosvannet og Stokkavannet.

Innhold og byggemåte

Eiendommen

Tennisveien 44, 4021 STAVANGER
Kommunenummer 1103, gårdsnummer 26, bruksnummer 451
Andelsnummer 895, Tjensvoll Terrasse 1 Borettslag, organisasjonsnummer 955 043 723

Innhold

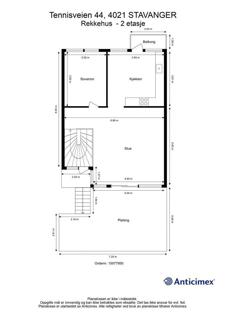
Totalt bruksareal BRA: 125 kvm
BRA-i:
Rekkehus:
1. etasje 57 kvm: Entré, gang, bad, vaskerom, wc, 3 soverom
2. etasje 63 kvm: Stue, soverom, kjøkken
BRA-e:
Frittstående bod:
2. etasje 5 kvm: Bod
Åpent areal:
Rekkehus:
2. etasje 31 kvm: Terrasse og balkong
Det gjøres oppmerksom på at boligens eksterne boder tilhører borettslagets fellesareal, og at boden således ikke eies av den enkelte andelseier. Dette medfører at sameiet/borettslaget i fellesskap beslutter bruken, og at man ikke selv har eierrett og rettsvern for boden. Borettslaget kan ved vedtak beslutte annet bruk av fellesarealet og disponering av bodarealet kan dermed opphøre.
De oppgitte arealer er hentet fra rapport med befaringsdato 17.12.2025 utført av Anticimex v/ Yngve Paulsen. Arealene er beregnet og rom er definert etter dagens faktiske bruk, uavhengig av hva som er godkjent av bygningsmyndighetene.

Byggemåte

Selger har fått utarbeidet en tilstandsrapport, dvs. en teknisk gjennomgang av boligen hvor eventuelle avvik, risiko for kjøper og prisoverslag for hva som bør gjøres av oppgradering, er skissert. Se særskilt TGIU (tilstandsgrad ikke undersøkt), samt TG2 og TG3 som viser hva som er boligens normale slitasje, alder og type, hva som er avvik fra dette og hva som bør/må utbedres. Rapporten og selgers egenerklæring er en del av salgsoppgaven og må leses nøye før bud inngis. Kjøper overtar ansvaret for de opplysninger som fremkommer av salgsdokumentasjonen, og kan ikke gjøre gjeldende som mangel noe som burde vært kjent eller som ikke kan anses å ha betydning for avtalen.  
Bygningen er iht. tilstandsrapporten oppført: Boligbygg oppført i 1977. Bolig over 2 etasjer. Grunnmur av betong. Fundamentert på ukjent byggegrunn. Yttervegger av trekonstruksjoner. Fasaden er kledd med liggende
trekledning, murvegg mot vei. Etasjeskillere av trekonstruksjoner. Saltak i trekonstruksjoner (ikke besiktiget). Yttertak er utvendig tekket med takstein.Les for øvrig mer om byggemåte og den tekniske tilstanden i rapporten.
Det gjøres spesielt oppmerksom på:
Rapporten inneholder 58% Tg1 (i orden), 35% TG2 (alder, slitasje, skader, mv), 0% TG3 (strakstiltak nødvendig), 7% TGIU (ikke undersøkt).
Det er gitt TG2 på følgende:
Våtrom - Bad:
- Ventilasjon
- Overflater gulv
- Membran, tettesjikt og overgang til sluk
- Annet
Våtrom - vaskerom:
- Ventilasjon
- Overflater vegger
Kjøkken:
- Overflater vegger
- Innredning
Øvrige rom:
- Ventilasjon
Rom under terreng:
- Ventilasjon
- Innerdører
Loft - uinnredet/råloft:
- Overflater vegger/undertak
Innvendige trapper
Etasjeskiller - begge etg.:
- Skjevhetsmåling
Radon
Dører og vinduer:
- Dører
Yttertak:
- Helhetsvurdering
Balkonger, terrasser, veranda etc:
- Utkragede eller understøttede konstruksjoner
Terrasser/platting på terreng:
- Platting på terreng
Utvendige trapper:
- Helhetsvurdering
Drenering:
- Fuktsikring av grunnmur
- Alder
Stikkledninger og tanker:
- Vann- og avløpsledninger
Se supplerende tekst i tilstandsrapporten og selgers egenerklæringsskjema. Kjøper overtar ansvar og risiko for dette. 

Moderniseringer og påkostninger

Selger opplyser følgende er gjort i løpet av de siste tre år:
- Lagt nye gipsplater enkelte steder og malt en del vegger.
-Selger har installert lysarmaturer i de rom som er oppusset.
Se mer detaljert info i selgers egenerklæringsskjema.

Standard

Tennisveien 44, er et kjekt og praktisk rekkehus over 2 plan med en god planløsning.
Entre og gang i boligens første etasje med plass til å henge fra seg yttertøy. Gjestetoalett direkte fra gang. Større helfliset bad med grå fliser på gulv og lyse fliser på vegg også i tilknytning gang. Her er det varmekabler på gulv. Servant med innredning, speilskap på vegg, badekar og vegghengt toalett. Innenfor badet ligger vaskerommet. Praktisk med opplegg for vaskemaskin og tørketrommel.
I første etasje ligger 2 soverom i tillegg til et rom som er innredet som soverom, men ikke godkjent. Hovedsoverommet er med plass til stor seng og nattbord. Praktisk garderobe med god oppbevaringsplass.
Trapp opp til boligens 2 etasje. I trappeoppgangen er det montert varmepumpe. Her kan man også gå direkte ut til hagen.
Stue og kjøkken ligger i en delvis åpen løsning. Stuen er av god størrelse med spisestue og salong. Store vinduer/skyvedør i stuen gir ekstra gode lysforhold. Direkte utgang fra stuen til solrik terrasse og hage.
Fint og romslig kjøkken, med rikelig oppbevaring i skuffer og skap i tillegg til gode arbeidsflater på benk.
I denne etasjen finner man også et soverom. Fra dette rommet er det tilkomst til loft med en nedtrekkbar stige.
Alt i alt en innholdsrik og kjekk bolig som er verdt en titt. Velkommen på visning.

Løsøre og tilbehør

Vi viser til liste fra Norges Eiendomsmeglerforbund som gjelder fra 01.01.2020 angående løsøre og tilbehør.
- Følgende vil medfølge: Oppvaskmaskin, stekeovn, kjøleskap, vaskemaskin og tørketrommel.

Oppvarming

Varmekabler i gulv på bad.
Dersom beboelsesrom ikke har vegg- eller fastmonterte varmekilder ved visning, følger dette heller ikke med. 

Ferdigattest/brukstillatelse

Det foreligger ikke ferdigattest på eiendommen, men midlertidig brukstillatelse ble gitt 20.04.1978. Tillatelsen er gitt på følgende vilkår:
- Attest fra byingeniøren
- Håndlist innvendige trapper
Det gjøres oppmerksom på at det ikke lenger utstedes ferdigattest på tiltak det er søkt om før 1998 jf. plan- og bygningsloven § 21-10. Kommunen vil ikke kreve ferdigattest for disse tiltakene og vil avvise eventuelle søknader. Bestemmelsen innebærer ikke at tiltak med manglende søknad blir lovlige, men at man ikke trenger å avslutte gamle byggesaker. Normalt sett kreves ferdigattest for alle søknadspliktige tiltak som gjøres etter plan- og bygningsloven
Det foreligger byggetegninger av boligen datert 01.10.1975. Vaskerommet er opprinnelig byggemeldt som mat- og klesbod. Soverommet vegg i vegg til vaskerommet og badet er opprinnelig byggemeldt som kjeller jf. byggetegninger og er ikke godkjent til varig opphold. Innredning av rommene til bruk for varig opphold er ikke bruksendret/omsøkt og er heller ikke godkjent av kommunen. Konsekvensen ved søknad kan være at rommet ikke godkjennes som varig opphold og at rommet da må brukes som bod/midlertidig oppbevaring.
Kjøper overtar alt ansvar, kostnad og risiko for dette videre.

Tinglyste heftelser og rettigheter

Utover andel fellesgjeld overdras leiligheten fri for pengeheftelser.
Borettslaget har legalpant for forfalte felleskostnader og andre krav som følger av borettslagsforholdet iht. burettslagsloven § 5-20. Pantet er begrenset oppad til 2G (G = folketrygdens grunnbeløp).
På eiendommen er det tinglyst følgende heftelser og rettigheter som følger eiendommens matrikkel ved overskjøting til ny hjemmelshaver:
1103/26/451:
01.09.1976 - Dokumentnr: 9804 - Rettigheter iflg. skjøte
Rett for kommunen til å anlegge og vedlikeholde ledninger m.m.
05.03.1982 - Dokumentnr: 2899 - Erklæring/avtale
Rett for Stavanger E-verk til å legge kabler
22.09.2006 - Dokumentnr: 16534 - Erklæring/avtale
Avtale om høyspenningskabelanlegg for Lyse Nett AS
Med flere bestemmelser
Servituttene vil følge eiendommen. Kjøpers bank vil få pant etter ovennevnte heftelser og servitutter.

Eventuell adgang til utleie

Andelseier kan ikke uten samtykke fra styret i borettslaget overlate bruken av boligen til andre. Med samtykke kan andelseier overlate boligen til andre i inntil tre år hvis andelseier har bodd i boligen i minst ett av de to siste år. Utleie i andre tilfeller kan godtas ved særlige grunner, jf. burettslagslova § 5-6. Utleie forutsetter at leiligheten har forsvarlige radonverdier. Se også borettslagets vedtekter og konferer megler ved spørsmål.

Diverse

Tilbud av produkter og tjenester fra våre samarbeidspartnere
Vi er opptatt av verdiskapning, og har knyttet til oss samarbeidspartnere som skal sikre våre kunder de beste produkter og tjenester;
• Gjensidige leverer boligselgerforsikring og tilbyr bygningsforsikring
• Boligkjøperforsikring leveres av Hiscox og med Sedgwick som skadebehandler, og er formidlet gjennom Gjensidige.
• BN bank tilbyr finansieringsløsninger
• Vår avdeling Krogsveen Pluss tilbyr flyttetjenester som utvask, visningsvask, lager, tømming og transport av flyttelass, i tillegg til å formidle kontakt med Flip for overflateoppussing.
• I forbindelse med overtagelse av eiendommen tilbyr Overo avtale om strøm, alarm og bredbånd.
• Krogsveen er, sammen med øvrige bransjeaktører, medeier i den digitale annonseringsplattformen Hjem som eies av Bomega AS.

Beliggenhet og tomteforhold

Beliggenhet

Tennisveien 44 har en attraktiv og sentral beliggenhet i en rolig og etablert gate på Tjensvoll. Her er det kort vei til sentrum, samt naturskjønne opplevelser. Beliggenheten kombinerer sentral komfort og fredelig atmosfære.
Stavanger sentrum med alle dens fasiliteter ligger kun er kort gå eller sykkeltur unna. Flotte turområder som Mosvannet, Stokkavannet, samt nydelig tursti langs Hafrsfjord like i nærheten.
Offentlig transport er lett tilgjengelig, med gode bussforbindelser til Stavanger sentrum og omegn. Enkel adkomst til E39.

Adkomst

Veibeskrivelse: Se Google maps - det er enkelt å finne frem i kartet.
Det vil bli skiltet med Krogsveen visningsskilt ved fellesvisninger.
Veibeskrivelse Se Google maps - det er enkelt å finne frem i kartet.

Barnehager, skoler og fritid

Barnehager:
- Hannes Lekestue Tjensvoll bhg. (1-5 år) 0,3 km
- Hakkebakkeskogen private bhg. Tjensvoll (1-5 år) 0,4 km
-Solborg barnehage (1-5 år) 0,5 km
Skoler:
- Tjensvoll skole (1-7 kl.) 0,7 km
- Lassa skole (1-7 kl.) 1 km
- Stavanger Kristne grunnskole (1-10 kl.) 1,4 km
- Wang Ung - Stavanger (8-10 kl.) 0,4 km
- Ullandhaug skole (8-10 kl.) 1,8 km
- Wang Toppidrett - Stavanger 0,4 km
- St. Svithun videregående skole 0,9 km
Informasjon om tilhørende skolekretser er hentet fra Prognosesenteret som dataleverandør, og tilhørigheten kan årlig endres av kommunen. Dersom skole- og barnehagetilbud er av betydning for kjøpet, ber vi om at det rettes en særskilt henvendelse til kommunen for oppdatert informasjon.

Beskrivelse av tomt

Eiertomt på 34.140,50 kvm som tilhører borettslaget.
Oppgitt tomteareal er hentet fra digitalt eiendomskart fra Stavanger kommune. Oppgitt/anslått areal kan derfor avvike fra nøyaktig areal.

Parkering

Parkering i garasje. El-billader installert.
Biler skal kun parkeres på tildelt plass. Gjester skal parkere på gjesteparkering.
Det er ikke tillatt å parkere i gårdsrom, på snuplasser eller plasser som er beregnet for av- og pålessing (kort stopp).
Det gjøres oppmerksom på at dagens parkeringsløsning er etablert på borettslagets fellesareal, og at parkeringsplassene således ikke eies av den enkelte andelseier. Dette medfører at borettslaget i fellesskap beslutter bruken, og at man ikke selv har eierrett og rettsvern for parkeringsplassen. Borettslaget kan ved vedtak beslutte annet bruk av fellesarealet.

Vei, vann og avløp

Eiendommen har adkomst via kommunal vei.
Eiendommen er tilknyttet kommunalt ledningsnett via private stikkledninger.
Borettslaget er ansvarlig for private stikkledninger til bygningen.

Regulerings-og arealplaner

Eiendommen er regulert til boligformål i henhold til reguleringsplan ID 600 "TJENSVOLL" datert 27.07.1971 med tilhørende reguleringsbestemmelser.
Eiendommen følger reguleringsplanen ID 987 "Utvidelse av deler av Gunnar Warebergs gate" datert 07.09.1982 med tilhørende reguleringsbestemmelser.
Eiendommen følger av kommuneplan ID KP 2023 - 2040
"Kommuneplanens arealdel" datert 28.06.2024 med tilhørende reguleringsbestemmelser.
Reguleringsplaner under arbeid:
ID 2865 "Detaljregulering for tennishall og konkurransearena på Forum-området".
Plantype: 35 - Detaljregulering.
Status: Planlegging igangsatt.
Beskrivelse:
Formålet med planarbeidet er å etablere en ny tennishall og ny konkurransearena. Konkurransearenaen skal være et fleksibelt bygg som kan brukes til blant annet idrettsarrangement, messer, konferanser og konserter og kan ha plass til 10 000 – 15 000 mennesker.
Utsnitt av plan med tilhørende bestemmelser kan fås ved henvendelse til megler.

Økonomi

Boligens kostnader

Felleskostnadene er kr  8.220,-  pr. mnd. og inkluderer: Renter og avdrag på fellesgjeld, drift og vedlikehold, kommunale avgifter, utvendig bygg forsikring, strøm i fellesarealer, grunnpakke TV-anlegg/bredbånd m.m.
Felleskostnadene justeres normalt en til to ganger årlig i forhold til borettslagets faktiske utgifter.
Felleskostnadene fordeles slik:
Lån nr: 9820742975; IN lån 1 - Akonto renter kr 345,-
Lån nr: 9820742975; IN lån 1 - Akonto avdrag kr 921,-
Andel fellesutgifter kr 6 555,-
Kabel-tv kr 399,-
Nåværende eier har et strømforbruk som tilsvarer ca. kr 14 259,- pr. år. / 8 358 kwh. pr. år.
Boligen er tilknyttet Fiber Altibox som leverandør av kabel-tv. Tv-tuner/dekoder medfølger ikke.
Utgiftene er basert på nåværende eiers forbruk. Kjøper må selv tegne innboforsikring.

Formuesverdi

Formuesverdi for 2023 var kr 1 017 712,- ifølge skatteetaten. Beløpet forutsetter at eier bor fast i boligen (primærbolig).
Ved eventuell øvrig bruk av eiendommen (f.eks. fritidsbolig, pendlerbolig, utleieobjekt) var formuesverdien for 2023 kr 4 070 846,-.
Formuesverdien justeres normalt årlig. Se skatteetaten.no for mer informasjon om fastsettelse av formuesverdien.

Eiendomsskatt

Det er p.t ikke vedtatt eiendomsskatt for eiendommer i kommunen.

Opplysninger om fellesgjeld

Andel formue er kr 51 043,- pr. 31.12.2024
Andel fellesgjeld er kr 664 168,- pr. 20.10.2025
Selskapets totale lån og vilkår:
Bank: Obos Boligkreditt AS
Lånenr.: 98207429759
Lånetype: Annuitetslån
Rentesats: 5,10%
Restsaldo 10 830 371,00
Innfrielsesdato: 30.12.2031
Type rente: Flytende rente
Terminer i året: 12
Andel av saldo: 80 269,62
Bank: Obos Boligkreditt AS
Lånenr.: 98207890936
Lånetype: Annuitetslån
Rentesats: 5,10%
Restsaldo 85 662 402,00
Innfrielsesdato: 30.07.2050
Type rente: Flytende rente
Andel av saldo: 583 898,97
Dette borettslaget har tilrettelagt for individuell nedbetaling av andel fellesgjeld (IN-ordning). Det vil si at hver enkelt andelseier helt eller delvis kan velge å nedbetale sin andel av borettslagets fellesgjeld til boligbyggelaget. Dette vil i så fall medføre en reduksjon av de månedlige felleskostnadene (andel av renter og avdrag på fellesgjelden). Nedbetalt andel av fellesgjeld knyttes til andelen og følger andelen ved et eventuelt salg.
Dette gjelder kun for lån med lånenummer: 98207429759.

Omkostninger

5 000 000,00 Prisantydning
664 168,00 Andel av fellesgjeld
--------------------------------------------------------
5 664 168,00 Pris inkl. fellesgjeld
Omkostninger
8 212,00  Forkjøpsrett - forhåndsutlyst (kjøper)
9 950,00  Gjensidige Boligkjøperpakke (valgfri)
545,00  Tinglysing hjemmel
545,00  Tinglysing panterettsdokument
--------------------------------------------------------
19 252,00 Omkostninger totalt
--------------------------------------------------------
5 683 420,00 Totalpris inkl. omkostninger
--------------------------------------------------------
Dersom kjøper ikke er medlem av boligbyggelaget, må det påregnes en innmeldingsavgift og årlig medlemsgebyr pr. ny andelseier. Dette faktureres direkte fra boligbyggelaget.
Dersom borettslaget har fellesgjeld, vil leilighetens andel av fellesgjelden komme i tillegg til kjøpesummen. Denne gjelden skal ikke innbetales i oppgjøret, men følger leiligheten.
Det tas forbehold om endringer i avgifter og gebyrer.

Tilbud om lånefinansiering

Megler formidler gjerne kontakt med rådgiver hos vår samarbeidspartner BN Bank. De har konkurransedyktige betingelser samt rask og løsningsorientert behandling av din lånesøknad. Krogsveen mottar et honorar for denne formidlingen.

Betalingsbetingelser

Kjøpesum inkludert omkostninger, samt pantedokument tilknyttet eventuelt lån, skal være disponibelt hos megler 2 virkedager før overtagelsen.

Annen viktig informasjon

Eier

Eamonn Patrick O'Leary

Informasjon om borettslaget

Styrets arbeid:
- 13 styremøter er avholdt siden sist årsmøte (status primo mai 2025). Etter vedtak i styremøtet 8. juni 2022 skal styreprotokoller legges ut på eget tema på Vibbo. Denne praksisen er fulgt opp i årsmøteperioden.
- Vibbo.no er et svært viktig verktøy for at styret skal kunne kommunisere med alle andelseierne. Det er også et viktig verktøy for andelseiere å kommunisere med styret og seg imellom. Styret oppfordrer alle til å logge seg inn på Vibbo.no og sjekke at kontaktinfo er korrekt under “Min profil”. Alle oppfordres også til å sjekke at varslingsinnstillinger er satt slik at dere får varslinger på SMS samt at varsling for minimum nyheter og meldinger er aktivert. Normalt vil meldinger bare varsles på epost.
- Høsten 2024 ble det etablert kontortid i felleslokalene, Tennisveien 13. Kontortiden er onsdager fra 18.00-19.00. Det er styreleder som hittil har vært til stede i kontortiden. Kontortid er foreløpig ikke benyttet av mange, og bør evalueres ved starten av neste årsmøteperiode. Responstiden for kontakt med styret når det oppstår spørsmål eller hendelser, har bedret seg radikalt i denne perioden. Vibbo, telefon og epost blir raskt besvart og sakene undersøkt. Denne bedringen må tilskrives styreleders innsats.
- I perioden er det foretatt flere mindre skadeutbedringer av vinduer, dører, låser, porttelefoner m.m. Dette er ikke meldt som forsikringssaker enten ved at de er å regne som vedlikehold eller ikke overstiger egenandel ved oppgjør.
-Vannlekkasje inn i leilighetene har de siste årene hatt prioritet når det gjelder tiltak. 3 leiligheter har vært i fokus de siste årene, og i disse er renoveringen utført.
- 2 større tiltak er gjennomført på elektro-området. Strømtavlene i blokkene er nå renovert. I en anbudsrunde ble det valgt en modifisert løsning der en del utstyr ikke trengte utskifting. E-tech utførte oppgraderingen. Samme firma skiftet ut alle lysstoffrør i garasjene med ledlys. Dette var påtvunget på grunn av strukturelle feil i anlegget samt det faktum at lysstoffrør utgår. En del mindre reparasjoner av utelys er også utført i perioden.
- Fukt-problemer i blokkleilighetene
- Utbedring av bodtak, rekkehus
- Overflatebehandling av royalimpregnert kledning på rekke- og kjedehus
- Re-tekking av tak rekke- kjedehus
- Drenering, spesielt utsatte rekkehus
- Vurdere fasaderehabilitering fasade nord og øst på blokkene.
- Vurdere modernisering av fem felles strømtavler (se eget punkt om HMS,brannsikkerhet mm)

Overtakelse

Etter nærmere avtale. Overtakelse kan tidligst skje etter at forkjøpsretten for øvrige andelseiere i borettslaget og eventuelt medlemmer av boligbyggelaget er avklart, samt at styrets godkjennelse er avklart. 

Boligselgerforsikring

Selger har i forbindelse med salget tegnet boligselgerforsikring levert av Gjensidige.  
Boligselgerforsikringen dekker selgers ansvar etter avhendingsloven begrenset oppad til kr 14 millioner. Dersom kjøper oppdager forhold ved eiendommen som hen mener utgjør en mangel ved eiendommen, vil Gjensidige behandle reklamasjonen på vegne av selger. Forsikringsvilkår kan fås ved henvendelse til megler.  
Vedlagt salgsoppgaven følger selgers egenerklæringsskjema og tilstandsrapport. Interessenter må sette seg inn i dokumentene før bud inngis. 

Boligkjøperforsikring

Innen kontraktsmøtet må kjøper ta stilling til om det ønskes å bestille Boligkjøperpakken gjennom Gjensidige. I denne gunstige pakken er boligen ferdig forsikret og inkluderer rettshjelpsforsikring, også kalt Boligkjøperforsikring. Rettshjelpsforsikring gir trygghet og tilgang på profesjonell juridisk hjelp dersom det oppdages uventede feil eller mangler det første året etter overtagelse. Forsikringsselskapet behandler i så fall ethvert mangelskrav kjøper måtte ha overfor selger. 
Boligkjøperpakken inkluderer bygningsforsikring for hus og hytte, innboforsikring, flytteforsikring og dobbel rentedekning - i situasjoner hvor kjøper ikke får solgt nåværende primærbolig.   
Kjøper mottar ingen særskilt faktura for Boligkjøperpakken da kostnaden det første året legges til kjøpesummen for boligen. Det gjøres oppmerksom på Krogsveen mottar et honorar for denne formidlingen.
Produktark for Boligkjøperpakken ligger vedlagt i salgsoppgaven.  
Dersom ikke boligkjøperpakke ønskes kan kun rettshjelpsforsikring, også kalt boligkjøperforsikring, tegnes særskilt via megler. Rettshjelpsforsikringen varer i 5 år fra overtagelse og leveres gjennom Gjensidige. Ta kontakt med megler for ytterligere informasjon. 
Selskap og privatpersoner som driver med kjøp/salg/utvikling som ledd i egen næringsvirksomhet kan ikke tegne boligkjøperpakke eller rettshjelpsforsikring. 

Budgivning

Forbrukerinformasjon om budgivning er vedlagt denne salgsoppgaven og er også på vår hjemmeside Krogsveen.no. Alle bud og budforhøyelser må inngis skriftlig. I tillegg må legitimasjon være fremlagt sammen med signatur fra budgiver.
Vi oppfordrer til å gi bud elektronisk via GI BUD-knappen på eiendommens hjemmeside på Krogsveen.no. Da vil samtlige vilkår bli oppfylt.  
Eventuelle forhøyelser eller endringer av budet kan bekreftes pr SMS eller på e-post. Vi oppfordrer alltid til å kontakte megler pr. telefon i tillegg da forsinkelser i SMS og e-post kan forekomme.
For at budene skal kunne bli behandlet og videreformidlet skriftlig til alle involverte parter, må alle bud ha en tilstrekkelig lang akseptfrist, jf. eiendomsmeglingsforskriften § 6-3.
Selger må også skriftlig akseptere budet før aksept kan formidles til budgiver. Akseptfrist bør derfor være på minimum 30 minutter, og budforhøyelser må derfor skje i god tid før fristens utløp.
Bud i forbrukerforhold kan uansett ikke settes med kortere frist enn kl. 12.00 første virkedag etter siste annonserte visning. I tillegg kan ikke budet ha forbehold om at det skal holdes hemmelig ovenfor øvrige interessenter. Megler har iht lov om eiendomsmegling ikke anledning til å videreformidle disse budene, og de vil dermed heller ikke bli journalført.
Etter at eiendommen er solgt vil kjøper og selger få tilsendt budjournal. Øvrige budgivere kan få utlevert kopi av budjournalen i anonymisert form.

Hvitvaskingsreglene

I henhold til lov om hvitvasking og terrorfinansiering har megler plikt til å gjennomføre kontrolltiltak overfor kunder, herunder fullmektiger. Dette innebærer bl.a. å bekrefte kunders og reelle rettighetshaveres identitet på bakgrunn av fremvist gyldig legitimasjon eller på annen godkjent måte, samt å innhente opplysninger om kundeforholdets formål og tilsiktede art.
Dersom slike kundetiltak ikke kan gjennomføres, kan megler ikke etablere kundeforholdet eller utføre transaksjonen.
Hvis kjøper ikke bidrar til gjennomføring av kundekontrollen og dette fører til at transaksjonen blir forsinket eller ikke kan gjennomføres, vil dette ansees som mislighold av avtalen og gi selger rettigheter etter avhendingslova kapittel 5. I tilfeller der selger ikke bidrar til gjennomføring av løpende kundekontroll underveis i oppdraget, er det selger som misligholder sine forpliktelser etter avtalen og gi kjøper rettigheter etter avhendingslovens kapittel 4. Partene er selv ansvarlige for eventuelle kostnader og ansvar dette kan medføre. Eiendomsmegleren eller eiendomsmeglingsforetaket kan ikke holdes ansvarlig for de konsekvenser dette vil kunne få for partene eller andre som har interesser i eiendomshandelen.
Kjøper oppfordres til å innbetale kjøpesummen som ikke kommer fra låneinstitusjon i én samlet innbetaling fra egen konto i norsk bank. Megler har plikt til å melde fra til Økokrim om eiendomshandler som fremstår som mistenkelige. Melding sendes Økokrim uten at partene varsles. 

Personopplysningsloven

I henhold til personopplysningsloven gjør vi oppmerksom på at interessenter kan bli registrert for videre oppfølging.

Lovanvendelse

Generelle bestemmelser
Salgsoppgaven er basert på de opplysningene selger har gitt til megler, den bygningssakyndiges tilstandsrapport, samt opplysninger innhentet fra kommunen, Kartverket og andre tilgjengelige kilder. Det er viktig at kjøper setter seg grundig inn i alle salgsdokumentene, herunder salgsoppgave, tilstandsrapport og selgers egenerklæring. Kjøper anses kjent med forhold som er tydelig beskrevet i salgsdokumentene, og slike forhold kan ikke påberopes som mangler. Dette gjelder uavhengig av om kjøper har lest dokumentene. Alle interessenter oppfordres til å undersøke eiendommen nøye, gjerne sammen med fagkyndig før bud inngis. Kjøper som velger å kjøpe usett kan ikke gjøre gjeldende som mangel noe han burde blitt kjent med ved undersøkelsen. 
Dersom det er behov for avklaringer, anbefaler vi at interessenter rådfører seg med eiendomsmegler eller egne rådgivere før det legges inn bud.
En bolig som har blitt brukt i en viss tid, har vanligvis blitt utsatt for slitasje og skader kan ha oppstått. Slik bruksslitasje må kjøper regne med, og det kan avdekkes enkelte forhold etter overtakelse som nødvendiggjør utbedringer. Normal slitasje og skader som nødvendiggjør utbedring, er innenfor hva kjøper må forvente og vil ikke utgjøre en mangel.
Kjøper og selgers rettigheter og plikter reguleres av avtalen mellom partene, samt informasjonen som har vært tilgjengelig for kjøperen i forbindelse med handelen. Avtalen utfylles av avhendingsloven, og det gjelder ulike avtalevilkår avhengig av om kjøper er forbrukerkjøper eller ikke.  Dette er nærmere beskrevet nedenfor. 
På grunn av ulike avtalevilkår kan selger vurdere bud fra en som ikke er forbruker, ulikt fra en forbrukers bud. Dersom kjøper ikke er forbruker, er selger sitt mulige mangelsansvar begrenset fordi eiendommen selges "som den er".  Selger kan ikke ta «som den er»- forbehold overfor en forbrukerkjøper. Selv et lavere bud fra en som ikke er forbruker kan foretrekkes fordi begrensningen i mulig mangelsansvar kan ha egenverdi for selger. Selger står fritt til å forkaste eller akseptere ethvert bud, og er for eksempel ikke forpliktet til å akseptere høyeste bud.
Budgiver skal i budskjema avgi egenerklæring om budgiver er forbruker eller næringsdrivende/ person som hovedsakelig handler som ledd i næringsvirksomhet. Budgivere får informasjon dersom andre bud er inngitt av en som ikke er forbruker. 
Forbrukerkjøp - definisjon
Med forbrukerkjøp menes kjøp av eiendom når kjøperen er en fysisk person som ikke hovedsakelig handler som ledd i næringsvirksomhet.
Forbruker – avtalevilkår
Eiendommen har en mangel dersom den ikke er i samsvar med kravene som følger av avtalen, eller det foreligger brudd på bestemmelsene i avhendingsloven §§ 3-2 til 3-8. Hvis eiendommen ikke er i samsvar med det kjøperen må kunne forvente ut ifra alder, type og synlig tilstand, kan det være grunnlag for mangelskrav. Det samme gjelder hvis det er holdt tilbake eller gitt uriktige opplysninger om eiendommen. Dette gjelder likevel bare dersom man kan gå ut ifra at det virket inn på avtalen at opplysningen ikke ble gitt eller at mangelskravet ikke blir rettet i tide på en tydelig måte.
Boligen kan ha en mangel etter avhendingsloven § 3-3 andre ledd, dersom det er avvik mellom opplyst og faktisk innvendig areal, forutsatt at avviket er på 2% eller mer og minimum 1 kvm.
Ved beregning av et eventuelt prisavslag eller erstatning må kjøper selv dekke tap/kostnader opptil et beløp på kr 10 000 (egenandel).
Ikke-forbruker (næringsdrivende) – definisjon 
Hvis kjøper er en juridisk person, eller en fysisk person som hovedsakelig handler som ledd i næringsvirksomhet, vil kjøpet ikke anses som et forbrukerkjøp. 
Ikke-forbruker – avtalevilkår
Eiendommen har en mangel dersom den ikke er i samsvar med kravene som følger av avtalen.
Eiendommen selges «som den er», og selgers ansvar utover det konkret avtalte er da begrenset etter avhendingsloven § 3-9, første ledd andre setning. 
Avhendingsloven § 3-3 andre ledd fravikes, og hvorvidt boligens arealsvikt utgjør en mangel vurderes etter avhendingsloven § 3-8. 
Informasjon om kjøpers undersøkelsesplikt, herunder oppfordringen om å undersøke eiendommen nøye, gjelder også for kjøpere som ikke anses som forbrukere.
Det forutsettes at hjemmel overføres til kjøper. Hvis kjøper ikke ønsker hjemmelsoverføring av eiendommen, må det tas forbehold om dette i budet.

Meglers vederlag

Meglers vederlag betales av selger og er avtalt til:
Vederlag: 1,00 % av salgssummen inkl. eventuell fellesgjeld.
Vederlag:
Kontroll av hjemmel og heftelser  kr 2 900,00
Markedsføringspakke  kr 26 900,00
Oppgjør  kr 7 500,00
Salgsoppgaver vanlige  kr 3 600,00
Start smart - Kjøpsrådgivning   kr 6 000,00
Tilrettelegging  kr 17 000,00
Visningspakke / Overtagelse  kr 4 000,00
Utlegg:
Tinglysing sikring  kr 545,00
Andre utgifter:
AX tilstandsrapport rekkehus/tomannsbolig  kr 12 500,00
Boligselgerforsikring Gjensidige Andel/Aksje regnes av prisant.  kr 0,00
Foto  kr 4 450,00
Vi er opptatt av verdiskapning, og har knyttet til oss samarbeidspartnere som skal sikre våre kunder de beste produkter og tjenester; 
• I forbindelse med forberedelse av salget, innhenter vi informasjon om eiendommen hovedsakelig fra vår samarbeidspartner Amibita.
• Gjensidige leverer boligselgerforsikring og tilbyr bygningsforsikring
• Boligkjøperforsikring leveres av Hiscox og med Sedgwick som skadebehandler, og er formidlet gjennom Gjensidige.
• BN bank tilbyr finansieringsløsninger
•  Vår avdeling Krogsveen Pluss tilbyr flyttetjenester som utvask, visningsvask, lager, tømming og transport av flyttelass, i tillegg til å formidle kontakt med Flip for overflateoppussing.
• I forbindelse med overtagelse av eiendommen tilbyr Overo avtale om strøm, alarm og bredbånd.
• Krogsveen er, sammen med øvrige bransjeaktører, medeier i den digitale annonseringsplattformen Hjem som eies av Bomega AS.

Opplysninger om oppdraget

Oppdragsnummer 36-0078/25
Eiendomsmegler Krogsveen AS, avd. Sandnes
Brannstasjonsveien 8, 4312, SANDNES
950 007 613
Oppdragets KR-kode KR36.2578

Dato

Sist oppdatert: 07. januar 2026 kl. 10:27

Dokumenter

Utskriftsvennlig salgsoppgave

Område

Legg til steder som er viktige for deg

Prisutvikling for området

Kvadratmeterpris
0 kr/m²
Endring
↘︎ % ()

Visning

Lurer du på noe?

Vil du varsles om lignende boliger?

Ved å lagre ditt boligsøk hos oss får du beskjed når vi har en bolig som ligner denne, før den legges ut på markedet!

På flyttefot? Slik gjør vi det enklere for deg

Skreddersydd flyttepakke

Vi fikser håndverkere, vask, pakking, lagring og transport, og legger ut for utgiftene underveis.

Hjelp med både kjøp og salg

Hos oss har du din egen rådgiver gjennom hele kjøps- og salgsprosessen.

Hjelp til finansiering

Vårt samarbeid med BN Bank sikrer deg rask og løsningsorientert hjelp, til konkurransedyktige betingelser.