Åkvågveien 1286
6 450 000 kr
120 m²
5 soverom
Komplett salgsoppgave

Risør
Eksklusiv, arkitekttegnet fritidsbolig rett ved sjøen - Vei, strøm, vann og avløp! Sørlandsidyll - 5 sov.
Prisantydning
6 450 000 krOmkostninger
182 240 krTotalpris
6 632 240 kr
Pris
Bruksareal
120 m²BRA-I (internt bruksareal)
120 m²TBA (terrasse-balkongareal)
30 m²
Areal
Etasje
2Byggeår
2019Soverom
5 soveromBad
1 badTomteareal
760 m² (eiet)Type
Fritidseiendom ved sjøenEierform
EietFasiliteter
Balkong/TerrasseEnergimerke
Gul C
Nøkkelinfo
Vurderer du utleie?
Få et tilbud fra Utleie KrogsveenHva koster lånet?
Sjekk estimert lånekostnadBeskrivelse
Kort om eiendommen
Nå har du muligheten til å kjøpe denne unike, eksklusive og arkitekttegnede fritidsboligen i Risør. Fritidsboligen ligger perfekt til med utsikt, sjøen få meter unna og fantastiske solforhold i et idyllisk område. Sandstrand og bryggeområdet ligger ca. 200 meter unna. Boligen byr på gjennomtenkte og påkostede materialvalg med blant annet Møre Royal kledning for lite fremtidig vedlikehold og bjørkefinerplater innvendig. Her befinner du deg i et rolig og etablert hyttefelt på en høytliggende tomt med svært gode sol-og utsiktsforhold. Flott og usjenert terrasse. Eiendommen er tilknyttet brønn og renseanlegg.
Det medfølger biloppstillingsplasser på nedsiden av hytta med elbillader mot en årlig leie pr. plass. I tillegg tilhører det rett til båtfeste og fortrinnsrett på bryggeplass!
Innhold og byggemåte
Innhold og byggemåte
Eiendommen
Åkvågveien 1286, 4957 RISØR
Kommunenummer 4201, gårdsnummer 3, bruksnummer 229, ideell andel 1/1
Innhold
Totalt bruksareal BRA: 120 kvm
BRA-i:
Fritidsbolig:
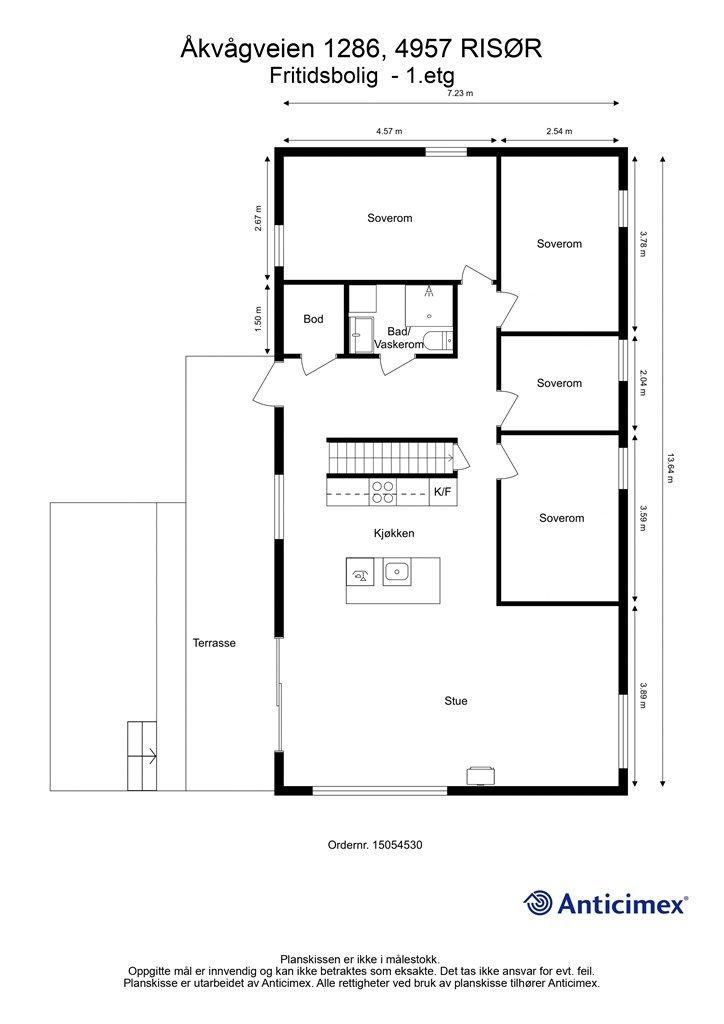
1. etasje 100 kvm: Gang, kjøkken, stue, bad/vaskerom, 4 soverom, bod 1, bod 2 under trapp.
2. etasje 20 kvm: Loftstue, soverom, bod.
Åpent areal:
Fritidsbolig:
1. etasje 30 kvm: Terrasse.
Loftsetasjen har et totalt gulvareal (GUA) på 40 m2, men grunnet skråtak/lav takhøyde er kun 20 m2 av arealet måleverdig som bruksareal. De delene av arealene som har lav himlingshøyde (ALH) utgjør 20 m2.
Vedlagte plantegninger er ikke målbare. De oppgitte arealer er hentet fra rapport datert 29.05.2024 utført av Anticimex v/ Odd Haakon Henriksen.
Byggemåte
Selger har fått utarbeidet en tilstandsrapport, dvs. en teknisk gjennomgang av boligen hvor eventuelle avvik, risiko for kjøper og prisoverslag for hva som bør gjøres av oppgradering, er skissert. Se særskilt TGIU (tilstandsgrad ikke undersøkt), samt TG2 og TG3 som viser hva som er avvik fra boligens normale slitasje, alder og type, eller som bør/må utbedres. Rapporten og selgers egenerklæring er en del av salgsoppgaven og må leses nøye før bud inngis. Kjøper overtar ansvaret for de opplysninger som fremkommer av salgsdokumentasjonen, og kan ikke gjøre gjeldende som mangel noe som burde vært kjent eller som ikke kan anses å ha betydning for avtalen.
Bygningen er iht. tilstandsrapporten en fritidsbolig over 2-plan fra 2019. Bygget står på pilarer i betong. Stubbloft. Yttervegger i trekonstruksjon kledd med stående trekledning. Vinduer er type 2-lags glass. Taket er saltaksformet og tekket med båndtekking( blikkplater med fals). Etasjeskiller i trebjelkelag. Oppvarmingen er elektrisk og ved. Stålrørspipe med vedovn i stue. Terrasse ved inngangspartiet. Inspeksjonsmulighet og tilgang under fritidsbolig. Vann fra brønn. Avløp til felles privat anlegg.
Les forøvrig mer om byggemåte og den tekniske tilstanden i rapporten.
Sammendrag av boligens tilstandsgrader:
TG1 I orden: 89%
TG2 Alder, slitasje, skader: 5%
TG3 Strakstiltak nødvendig: 2%
TGIU Ikke undersøkt: 4%
Følgende har fått tilstandsgrad 3/TG3:
- Terrasser/ platting på terreng : Lav høyde på rekkverk terrasse (dette etter dagens forskrifterfor sikkerhet). Manglende rekkverk ved skrent. Tiltak må påregnes. Sjablongmessig prisanslag: kr 10 000 - 50 000.
Følgende har fått tilstandsgrad 2/TG2:
Fallforhold på bad/vaskerom - Lokalfall i dusjsonen er mindre enn hva som ideelt sett anbefales.
Ventilasjon - Lite soverom i 1. etasje mangler veggventil, anbefaler å etablere dette.
Overflater gulv - Noe bruksslitasje noen steder.
Lite soverom i 1. etg. mangler veggventil. Anbefaler etablering av dette.
Kort sammendrag av selgers egenerklæring - Det henvises til punkter i skjema som er vedlagt salgsoppgaven i sin helhet:
2. Bad/våtrom: Flow Bredersen (firma).
2.1 Flow Bredersen.
2.2 Flow Bredersen har signert samsvarserklæring 25.10.2019.
2.3 Risør kommune har gitt ferdigattest 05.11.2019.
4. Flow Bredersen.
12. Stolt Bygg - Nybygg.
13. Arendal El-team, nybygg.
13.1 Arendal El-team har gitt sluttdokumentasjon.
15. Arendal El-team har installert ladeboks.
18. Det er gitt rammetillatelse for en fritidsbolig i Åkvågveien 1284 gnr. 3, bnr. 3 den 28.07.2022.
Standard
Åkvågveien 1296 er en fantastisk beliggenhet, samtidig som det er gjennomtenkte løsninger i hytta, både på materialvalg og utforming. Med sitt unike særpreg er det ikke rart eiendommen har blitt omtalt både nasjonalt og internasjonalt. Det har blitt skrevet artikler om eiendommen både i Archdaily og Bobedre hvor sistnevnte omtalte eiendommen som en av favoritthyttene. I Archdaily ble denne eiendommen nominert til "Årets Bygg".
Her kan man lese artiklene:
https://bo-bedre.no/boliger/hytter/se-arkitektens-hyttedrom-i-risor
https://www.archdaily.com/990087/cabin-akvag-fjord-arkitekter
Løsøre og tilbehør
Følgende hvitevarer medfølger i handelen: Bosch stekeovn, platetopp, oppvaskmaskin og ventilator.
Følgende vil ikke medfølge ved salg: Garderober (Ivarhyller) i gang, bod og soverom.
Vi viser ellers til liste fra Norges Eiendomsmeglerforbund som gjelder fra 01.01.2020 angående løsøre og tilbehør.
Oppvarming
Boligen har varmekabler på bad/vaskerom, ellers oppvarming med elektrisitet og vedfyring.
Ferdigattest/brukstillatelse
Det foreligger ferdigattest på eiendommen datert 05.11.2019. Denne kan fås ved henvendelse til megler.
Endringer etter ferdigattest: Høsten 2023 ble ny avløpsledning lagt fra hytta til renseanlegget. Det er ellers ikke foretatt bygningsmessige endringer fra opprinnelige tegninger.
Tinglyste heftelser og rettigheter
På eiendommen er det tinglyst følgende heftelser og rettigheter som følger eiendommens matrikkel ved overskjøting til ny hjemmelshaver:
4201/3/229:
05.04.1944 - Dokumentnr: 900546 - Erklæring/avtale
Expropriasjon til A-A Kraftverks ledn.reg. ved Nedenes
sorenskr. kraftreg. Tl.
01.04.1974 - Dokumentnr: 862 - Jordskifte
Sak nr 9/1971
Overført fra: Knr:4201 Gnr:3 Bnr:3
28.02.1984 - Dokumentnr: 670 - Elektriske kraftlinjer
for AA Kraftverk
19.06.2008 - Dokumentnr: 502726 - Elektriske kraftlinjer
Rettighetshaver: Glitre Nett AS
Org.nr: 982 974 011
Bestemmelse om ryddebelte
Med flere bestemmelser
Overført fra: Knr:4201 Gnr:3 Bnr:3
30.01.2017 - Dokumentnr: 88654 - Jordskifte
Aust-Agder Jordskifterett
Jordskiftesak 17-005074RFA-JARD Åkvåg
Overført fra: Knr:4201 Gnr:3 Bnr:3
Gjelder denne registerenheten med flere
13.02.2018 - Dokumentnr: 432363 - Jordskifte
Jordskiftesak 0900-2014-0010 Åkvåg
Aust-Agder Jordskifterett
Overført fra: Knr:4201 Gnr:3 Bnr:3
Gjelder denne registerenheten med flere
Megler kommenterer: Det følger totalt 41 tinglyste heftelser som vil fremgå av grunnboken også ved overdragelse til ny eier. Alle disse er overført fra hovedbruket (gnr. 3, bnr. 3 i Risør kommune). Disse ser ikke ut til å være relevante for denne eiendommen da det gjelder parkering, båtplasser, adkomstrett mv. på hovedeiendommen som denne er fradelt fra. Kontakt megler for å få tilsendt utskrift av grunnboken. Resterende tinglyste dokumenter som er nevnt ovenfor her har også fulgt eiendommen ved fradeling av hovedbruket. Det må likevel forventes at Glitre Nett AS har adkomstrett til ledningsnett for vedlikehold og lignende. Jordskifte gjelder hovedsakelig grenser i terrenget på hovedeiendommen mv.
Eventuell adgang til utleie
Fritidseiendommen har ikke separat utleiedel. Det vil normalt være anledning til utleie av hele eiendommen eller enkeltrom, såfremt utleiearealet er bygningsmessig godkjent for varig opphold.
Diverse
Medfølger rett til båtfeste i området VS2 I reguleringsplanen. Samt fortrinnsrett til bryggeplass i samme område. Brygge/båtplass må bekostes av brukerne.
Privat brøyting til eiendommen. Pris etter avtale, se også generell veiavgift under "Info om kommunale avgifter". For kjøp av båtplass i bryggeanlegg er estimert til kr. 135.000,- for kjøp av båtplass, med årlig vedlikeholdsavgift. Prisen kan ha justert seg noe fra prisen oppgitt i 2024.
Fiber: Dette er lagt opp frem til en boks og ny stolpe 150 meter før hytta opp i veikrysset. Det er nylig trukket Telenor-fiberkabel inn i området og tilkobling vil snart være mulig.
Krogsveen
Vi er opptatt av verdiskapning, og har knyttet til oss samarbeidspartnere som skal sikre våre kunder de beste produkter og tjenester;
• Gjensidige leverer boligselgerforsikring og tilbyr bygningsforsikring
• Boligkjøperforsikring leveres av Hiscox og med Sedgwick som skadebehandler, og er formidlet gjennom Gjensidige.
• BN bank tilbyr finansieringsløsninger
• Vår avdeling Krogsveen Pluss tilbyr flyttetjenester som utvask, visningsvask, lager, tømming og transport av flyttelass, i tillegg til å formidle kontakt med Flip for overflateoppussing.
• I forbindelse med overtagelse av eiendommen tilbyr Overo avtale om strøm, alarm og bredbånd.
• Krogsveen er, sammen med øvrige bransjeaktører, medeier i den digitale annonseringsplattformen Hjem.
Energimerking
Det er kun fylt ut en forenklet versjon av energiattesten. Det tas forbehold om mindre feil i denne.
Beliggenhet og tomteforhold
Beliggenhet og tomteforhold
Beliggenhet
Eiendommen ligger særdeles flott til med lite innsyn og nydelig utsikt til sjøen, samt områdene rundt. Her finner man en magisk skjærgård og fine badeplasser fra flere steder i området. I underkant av 200 meter fra fritidsboligen finner man en herlig badestrand og bryggeanlegg under oppføring. Det er fine turveier på stier, samt flere topper man kan nå i nærområdet. Her er et "mekka" for friluftsaktiviteter i skjærgården enten man liker å stå på vannski, ta seg en rolig båttur, padle eller bare ta seg et bad i sjøen. Området har navnet Hope/Krabbesund som er et passelig navn med fine sund og bukter for krabbefiske.
Til Risør sentrum tar det ca. 30 min. i bil/26 kilometer. Til Risør sentrum med båt kan man beregne ca. 20 minutter fra båtplassen. Risør er kjent som "Den hvite by ved Skagerrak" og har et fantastisk tilbud, særlig i sommersesong av aktiviteter og konserter. Det er meget populært å nyte en fiskesuppe eller lignende på Stangholmen, eller Villvinfestivalen, trebåtfestivalen eller andre spennende arrangementer man kan gå på. I Risør er det vakre svaberg, strender, holmer og fjorder man kan dra til med båt. Det er akvarium og uteservering på brygga, samt bakerier og serverdigheter rundt flere hjørner av byen.
Til Tvedestrand sentrum tar det ca. 35 min. i bil/27 kilometer. I Tvedestrand finner man en av Norges flotteste golfparker med 18-og 9-hulls golfbane. Det arrangeres også Tvedestrandsregatta, Kystkulturuka og er et mylder av aktiviteter å ta seg til. Tvedestrand er kanskje best kjent for Lyngør som man når på ca. 10 minutter i båt fra fritidsboligen, samt Sandøya og Borøya hvor det er alt fra matservering, iskiosker, bakerier og hele øysamfunn i vakker natur. Lyngør er synlig fra flere steder i området.
Brokelandsheia i Gjerstad ligger ca. 40 min. unna i bil/35 kilometer unna eiendommen. Der er det populært med en tur i Den lille Dyrehage som har flere spennende dyrearter man kan besøke, eller på Eurosparbutikken som omtaler seg som "Grensehandelsbutikk" med sine gode ukes-og dagstilbud.
Til Arendal sentrum tar det ca. 50 min i bil/52 kilometer. Arendal byr på videre Sørlandsidyll med Tromøya, Hisøy, Merdø og et attraktivt uteliv som den nest største byen i Agder. Her arrangeres det flere konserter og festivaler gjennom året, som f.eks Canal Street, Arendalsuka, Trommestadfestivalen og mye mer. Arendal har store shoppingsentre og et rikt tilbud i sentrumsområdene av forskjellige merke-og nisjebutikker.
Andre lokale tilbud/avstander verdt å nevne:
Aktiviteter:
Havgløtt Bad 13 min. med bil
Sørlandet Feriesenter badeplass 13 min. med bil
Lille Danmark badeplass 9 km
Einarsvika badeplass 32 min. med bil
Bowling 1 Risør 33 min. med bil
Risør Kino 34 min. med bil
Tjenna Badepark 37 min. med bil
Dagligvare:
Snarkjøp Lyngør Handelshus 4 km
Joker Hope 8,3 km
Varer/Tjenester:
Grisen Storsenter 35 min. med bil
Vitusapotek Risør 32 min. med bil
Apotek 1 Tvedestrand 35 min. med bil
Risør Vinmonopol 36 min. med bil
Tvedestrand Vinmonopol 36 min. med bil
Vil man ta seg en dagstur til Dyreparken i Kristiansand når man dit på ca. 1,5 time fra eiendommen i bil/103 kilometer.
Adkomst
Se kart eller kontakt megler for veibeskrivelse.
Beskrivelse av tomt
Eiertomt på 760 kvm. Flott og høytliggende tomt, usjenert beliggenhet og svært gode solforhold. Hytten glir fint inn med naturen, og mye av naturtomten rundt er bevart. Lune og flotte terrasseareal, samt få meter til sjøen. Eiendomsgrenser er oppgitt som nøyaktige i eiendomskart mottatt fra kommunen.
Parkering
Det medfølger to parkeringsplasser, inkludert elbillader til den ene plassen. Parkeringsplassene står på grunneiers tomt, gnr. 3, bnr. 3 i Risør kommune. Det betales årlig avgift til vedlikehold per plass, se info om priser under "Info kommunale avgifter".
Vei, vann og avløp
Eiendommen har adkomst via privat vei med felles vedlikeholdsansvar.
Privat vann og avløpsanlegg. Eiendommen er koblet til renseanlegg i Skudevikaskjæret, som eies og driftes av Skudvika Renseanlegg AS. Det faktureres driftskostnader for bortføring og behandling av avløpsvann, se kostnadsoversikt under "Info kommunale avgifter".
Kommunen har generell hjemmel til å gjøre endringer vedr. tillatelser rundt dette. ved Kontakt megler for ytterligere informasjon.
Eiendommen har privat brønn som vannkilde (egen). Brønnen ble boret i 2019. Brønnen er i forbindelse med salget ikke undersøkt og det er ikke tatt vannprøver selger bekjent. Det tas forbehold om vannkvalitet og brønnens tilstand. Selger opplyser at brønnen ikke har gått tom for vann i sin eiertid og at det kan komme litt partikler i vannet etter at det har regnet kraftig - Selv om dette ikke er farlig å drikke.
Regulerings-og arealplaner
Eiendommen er regulert til frittliggende fritidsbebyggelse i henhold til reguleringsplan for Sørbudalen datert 14.12.2017.
Utsnitt av plan med tilhørende bestemmelser kan fås ved henvendelse til megler.
Økonomi
Økonomi
Kommunale utgifter
I årlige kommunale avgifter inngår følgende:
Renovasjon (fritid) kr. 2.833,-
Eiendomsskatt kr. 6.341,-
Kommunale avgifter er totalt kr 9.174,- for inneværende år. I dette inngår ovennevnte kostnader.
Andre kostnader som må påregnes:
Privat avløp/renseanlegg med flere andre hytter kr. 6.145,- + andel av årlig markleie for avløpsanlegget kr. 1.800,- pr. år. Reguleres hvert 5. år, neste regulering 2028.
Veiavgift for Sørbudalsveien som strekker seg 350 meter kr. 500,- pr. år.
Veiavgift for Sørbudalens grunneier kr. 500,- pr. år med regulering hvert 5. år. Neste regulering i 2026.
Det medfølger to parkeringsplasser inkludert strøm til lading. Årlige vedlikeholdskostnader er kr 3.000 ,- pr plass, pr. år.
Totale hytteavgifter for år 2024 kr. 14.945,-.
Annet:
Nåværende eier har et strømforbruk som tilsvarer ca. kr 3.341,- i hele 2022/ca. 1.388 kWt.
Boligen har en årlig forsikringspremie i Tryg forsikring på kr 3.650,-
Selger har benyttet 5G internett.
Utgiftene er basert på nåværende eiers forbruk og avtaler.
Formuesverdi
Formuesverdi for 2022 var kr 399.629,- ifølge skatteetaten.
Eiendomsskatt
Det er eiendomsskatt i Risør kommune.
Omkostninger
6 450 000,00 Prisantydning
Omkostninger
161 250,00 Dokumentavgift til staten (2,5% av kjøpesum)
19 900,00 Gjensidige Boligkjøperpakke (valgfri)
545,00 Tinglysing panterettsdokument
545,00 Tinglysing skjøte
--------------------------------------------------------
182 240,00 Omkostninger totalt
--------------------------------------------------------
6 632 240,00 Totalpris inkl. omkostninger
--------------------------------------------------------
Totalpris inkl. omkostninger forutsetter kjøp til prisantydning.
Det tas forbehold om endringer i avgifter og gebyrer.
Betalingsbetingelser
Kjøpesum inkludert omkostninger, samt pantedokument tilknyttet eventuelt lån, skal være disponibelt hos megler 2 virkedager før overtagelsen.
Annen viktig informasjon
Annen viktig informasjon
Eier
Finn M. Høvik Rasmussen og Brita Høvik
Overtakelse
Overtagelse kan skje fra 05.11.2024.
Velforening
Eiendommen er tilknyttet Sørbudalen Hytte-eierforening. Hytteforeningen har egen hjemmeside: sorbudalen.no/start
Årskontigent er kr. 1.000,- for 2026 og de disponerer ca. kr. 211.000,- iflg. protokoll fra siste årsmøte i 2025.
Fra forrige årsmøte er følgende verdt å nevne:
Budsjett: Ingen planlagte utgifter pt.
Vei og parkering: Det ligger an til at jordskifteretten vil avgjøre hvordan veien skal forvaltes og fordeling av kostnader relatert til det i fremtiden.
Eventuelt: Iht. reguleringsplan skal det oppføres en egen avfallsbu når tilstrekkelig antall av hytter er satt opp i området, ut ifra styrets anbefaling var det på årsmøte konsensus om at eksisterende avfallsanlegg som benyttes i dag vil være tilstrekkelig for oss også i fremtiden. Vedtekter for hytteforeningen kan ettersendes ved henvendelse. Det er ikke pliktig medlemsskap der per i dag.
Boligselgerforsikring
Selger har i forbindelse med salget tegnet boligselgerforsikring hos Anticimex. Vedlagt salgsoppgaven følger selgers egenerklæringsskjema og tilstandsrapport. Interessenter må sette seg inn i dokumentene før bud inngis.
Boligselgerforsikringen dekker selgers ansvar etter avhendingsloven. Dersom kjøper oppdager forhold ved eiendommen som man mener utgjør en mangel ved eiendommen, vil Claims Handling AS behandle reklamasjonen på vegne av selger. Forsikringsvilkår kan fås ved henvendelse til megler.
Boligkjøperforsikring
Innen kontraktsmøtet må kjøper ta stilling til om det ønskes å bestille Boligkjøperpakken gjennom Gjensidige. I denne gunstige pakken er boligen ferdig forsikret og inkluderer rettshjelpsforsikring, også kalt Boligkjøperforsikring. Rettshjelpsforsikring gir trygghet og tilgang på profesjonell juridisk hjelp dersom det oppdages uventede feil eller mangler det første året etter overtagelse. Forsikringsselskapet behandler i så fall ethvert mangelskrav kjøper måtte ha overfor selger.
Boligkjøperpakken inkluderer bygningsforsikring for hus og hytte, innboforsikring, flytteforsikring og dobbel rentedekning - i situasjoner hvor kjøper ikke får solgt nåværende primærbolig.
Kjøper mottar ingen særskilt faktura for Boligkjøperpakken da kostnaden det første året legges til kjøpesummen for boligen. Det gjøres oppmerksom på Krogsveen mottar et honorar for denne formidlingen.
Produktark for Boligkjøperpakken ligger vedlagt i salgsoppgaven.
Dersom ikke boligkjøperpakke ønskes kan kun rettshjelpsforsikring, også kalt boligkjøperforsikring, tegnes særskilt via megler. Rettshjelpsforsikringen varer i 5 år fra overtagelse og leveres gjennom Gjensidige. Ta kontakt med megler for ytterligere informasjon.
Selskap og privatpersoner som driver med kjøp/salg/utvikling som ledd i egen næringsvirksomhet kan ikke tegne boligkjøperpakke eller rettshjelpsforsikring.
Budgivning
Forbrukerinformasjon om budgivning er vedlagt denne salgsoppgaven og er også på vår hjemmeside Krogsveen.no. Alle bud og budforhøyelser må inngis skriftlig. I tillegg må legitimasjon være fremlagt sammen med signatur fra budgiver.
Vi oppfordrer til å gi bud elektronisk via GI BUD-knappen på eiendommens hjemmeside på Krogsveen.no. Da vil samtlige vilkår bli oppfylt.
Eventuelle forhøyelser eller endringer av budet kan bekreftes pr SMS eller på e-post. Vi oppfordrer alltid til å kontakte megler pr. telefon i tillegg da forsinkelser i SMS og e-post kan forekomme.
For at budene skal kunne bli behandlet og videreformidlet skriftlig til alle involverte parter, må alle bud ha en tilstrekkelig lang akseptfrist, jf. eiendomsmeglingsforskriften § 6-3.
Selger må også skriftlig akseptere budet før aksept kan formidles til budgiver. Akseptfrist bør derfor være på minimum 30 minutter, og budforhøyelser må derfor skje i god tid før fristens utløp.
Bud i forbrukerforhold kan uansett ikke settes med kortere frist enn kl. 12.00 første virkedag etter siste annonserte visning. I tillegg kan ikke budet ha forbehold om at det skal holdes hemmelig ovenfor øvrige interessenter. Megler har iht lov om eiendomsmegling ikke anledning til å videreformidle disse budene, og de vil dermed heller ikke bli journalført.
Etter at eiendommen er solgt vil kjøper og selger få tilsendt budjournal. Øvrige budgivere kan få utlevert kopi av budjournalen i anonymisert form.
Hvitvaskingsreglene
I henhold til lov om hvitvasking og terrorfinansiering har megler plikt til å gjennomføre kontrolltiltak overfor kunder, herunder fullmektiger. Dette innebærer bl.a. å bekrefte kunders og reelle rettighetshaveres identitet på bakgrunn av fremvist gyldig legitimasjon eller på annen godkjent måte, samt å innhente opplysninger om kundeforholdets formål og tilsiktede art.
Dersom slike kundetiltak ikke kan gjennomføres, kan megler ikke etablere kundeforholdet eller utføre transaksjonen.
Hvis kjøper ikke bidrar til gjennomføring av kundekontrollen og dette fører til at transaksjonen blir forsinket eller ikke kan gjennomføres, vil dette ansees som mislighold av avtalen og gi selger rettigheter etter avhendingslova kapittel 5. I tilfeller der selger ikke bidrar til gjennomføring av løpende kundekontroll underveis i oppdraget, er det selger som misligholder sine forpliktelser etter avtalen og gi kjøper rettigheter etter avhendingslovens kapittel 4. Partene er selv ansvarlige for eventuelle kostnader og ansvar dette kan medføre. Eiendomsmegleren eller eiendomsmeglingsforetaket kan ikke holdes ansvarlig for de konsekvenser dette vil kunne få for partene eller andre som har interesser i eiendomshandelen.
Kjøper oppfordres til å innbetale kjøpesummen som ikke kommer fra låneinstitusjon i én samlet innbetaling fra egen konto i norsk bank. Megler har plikt til å melde fra til Økokrim om eiendomshandler som fremstår som mistenkelige. Melding sendes Økokrim uten at partene varsles.
Personopplysningsloven
I henhold til personopplysningsloven gjør vi oppmerksom på at interessenter kan bli registrert for videre oppfølging.
Lovanvendelse
Generelle bestemmelser
Salgsoppgaven er basert på de opplysningene selger har gitt til megler, den bygningssakyndiges tilstandsrapport, samt opplysninger innhentet fra kommunen, Kartverket og andre tilgjengelige kilder. Det er viktig at kjøper setter seg grundig inn i alle salgsdokumentene, herunder salgsoppgave, tilstandsrapport og selgers egenerklæring. Kjøper anses kjent med forhold som er tydelig beskrevet i salgsdokumentene, og slike forhold kan ikke påberopes som mangler. Dette gjelder uavhengig av om kjøper har lest dokumentene. Alle interessenter oppfordres til å undersøke eiendommen nøye, gjerne sammen med fagkyndig før bud inngis. Kjøper som velger å kjøpe usett kan ikke gjøre gjeldende som mangel noe han burde blitt kjent med ved undersøkelsen.
Dersom det er behov for avklaringer, anbefaler vi at interessenter rådfører seg med eiendomsmegler eller egne rådgivere før det legges inn bud.
En bolig som har blitt brukt i en viss tid, har vanligvis blitt utsatt for slitasje og skader kan ha oppstått. Slik bruksslitasje må kjøper regne med, og det kan avdekkes enkelte forhold etter overtakelse som nødvendiggjør utbedringer. Normal slitasje og skader som nødvendiggjør utbedring, er innenfor hva kjøper må forvente og vil ikke utgjøre en mangel.
Kjøper og selgers rettigheter og plikter reguleres av avtalen mellom partene, samt informasjonen som har vært tilgjengelig for kjøperen i forbindelse med handelen. Avtalen utfylles av avhendingsloven, og det gjelder ulike avtalevilkår avhengig av om kjøper er forbrukerkjøper eller ikke. Dette er nærmere beskrevet nedenfor.
På grunn av ulike avtalevilkår kan selger vurdere bud fra en som ikke er forbruker, ulikt fra en forbrukers bud. Dersom kjøper ikke er forbruker, er selger sitt mulige mangelsansvar begrenset fordi eiendommen selges "som den er". Selger kan ikke ta «som den er»- forbehold overfor en forbrukerkjøper. Selv et lavere bud fra en som ikke er forbruker kan foretrekkes fordi begrensningen i mulig mangelsansvar kan ha egenverdi for selger. Selger står fritt til å forkaste eller akseptere ethvert bud, og er for eksempel ikke forpliktet til å akseptere høyeste bud.
Budgiver skal i budskjema avgi egenerklæring om budgiver er forbruker eller næringsdrivende/ person som hovedsakelig handler som ledd i næringsvirksomhet. Budgivere får informasjon dersom andre bud er inngitt av en som ikke er forbruker.
Forbrukerkjøp - definisjon
Med forbrukerkjøp menes kjøp av eiendom når kjøperen er en fysisk person som ikke hovedsakelig handler som ledd i næringsvirksomhet.
Forbruker – avtalevilkår
Eiendommen har en mangel dersom den ikke er i samsvar med kravene som følger av avtalen, eller det foreligger brudd på bestemmelsene i avhendingsloven §§ 3-2 til 3-8. Hvis eiendommen ikke er i samsvar med det kjøperen må kunne forvente ut ifra alder, type og synlig tilstand, kan det være grunnlag for mangelskrav. Det samme gjelder hvis det er holdt tilbake eller gitt uriktige opplysninger om eiendommen. Dette gjelder likevel bare dersom man kan gå ut ifra at det virket inn på avtalen at opplysningen ikke ble gitt eller at mangelskravet ikke blir rettet i tide på en tydelig måte.
Boligen kan ha en mangel etter avhendingsloven § 3-3 andre ledd, dersom det er avvik mellom opplyst og faktisk innvendig areal, forutsatt at avviket er på 2% eller mer og minimum 1 kvm.
Ved beregning av et eventuelt prisavslag eller erstatning må kjøper selv dekke tap/kostnader opptil et beløp på kr 10 000 (egenandel).
Ikke-forbruker (næringsdrivende) – definisjon
Hvis kjøper er en juridisk person, eller en fysisk person som hovedsakelig handler som ledd i næringsvirksomhet, vil kjøpet ikke anses som et forbrukerkjøp.
Ikke-forbruker – avtalevilkår
Eiendommen har en mangel dersom den ikke er i samsvar med kravene som følger av avtalen.
Eiendommen selges «som den er», og selgers ansvar utover det konkret avtalte er da begrenset etter avhendingsloven § 3-9, første ledd andre setning.
Avhendingsloven § 3-3 andre ledd fravikes, og hvorvidt boligens arealsvikt utgjør en mangel vurderes etter avhendingsloven § 3-8.
Informasjon om kjøpers undersøkelsesplikt, herunder oppfordringen om å undersøke eiendommen nøye, gjelder også for kjøpere som ikke anses som forbrukere.
Det forutsettes at hjemmel overføres til kjøper. Hvis kjøper ikke ønsker hjemmelsoverføring av eiendommen, må det tas forbehold om dette i budet.
Rett til fritt å velge megler
Valg av eiendomsmeglingsforetak skal være frivillig. Eiendomsmeglingsforetak kan ikke inngå oppdrag om eiendomsmegling dersom inngåelsen av oppdraget er satt som vilkår i avtale om annet enn eiendomsmegling, f.eks. tilbud om lån eller andre banktjenester, jf. Lov om eiendomsmegling § 6-3 (3)
Meglers vederlag
Meglers vederlag betales av selger og er avtalt til:
Vederlag: 1% av salgssummen inkl. eventuell fellesgjeld.
Tilrettelegging fra kr 11.000,-
Oppgjør: kr 7.500,-
Markedspakke på fritidsbolig: kr 25.000,-
Visninger/ overtakelse pr stk : kr 1.500,- ved visn. nr. 4.
Oppslag eiendomsregister: kr 2.900,-
Megler har i tillegg krav på dekning av utlegg. Herunder foto, sikring og offentlige opplysninger.
Opplysninger om oppdraget
Oppdragsnummer 47-0041/24
Eiendomsmegler Krogsveen AS, avd. Arendal
Kystveien 14, 4841, ARENDAL
950 007 613
Oppdragets KR-kode KR47.2441
Dato
Sist oppdatert: 16. mars 2026 kl. 17:08
Dokumenter
Dokumenter
PDF – 1 MB
PDF – 228 KB
PDF – 404 KB
PDF – 914 KB
PDF – 312 KB
PDF – 29 KB
PDF – 127 KB
PDF – 392 KB
Område
Legg til steder som er viktige for deg
Visning
For å delta på visning, ber vi om at du melder deg på. Da sikrer vi at du får nødvendig informasjon og at det er satt av tilstrekkelig med tid. Kontakt megler dersom annet tidspunkt ønskes. Husk å lese salgsoppgaven før visningen, så du stiller forberedt. NB. Visning utgår dersom det ikke er noen påmeldte.
Ønsker du kun å bli holdt orientert, kan du fra eiendommens hjemmeside få varsel om solgtpris, eller kontakte megler.
Lurer du på noe?
Vurderer du utleie?
Få et tilbud fra Utleie KrogsveenHva koster lånet?
Sjekk estimert lånekostnadVil du varsles om lignende boliger?
Ved å lagre ditt boligsøk hos oss får du beskjed når vi har en bolig som ligner denne, før den legges ut på markedet!

