Nordengveien 45C
15 000 000 kr
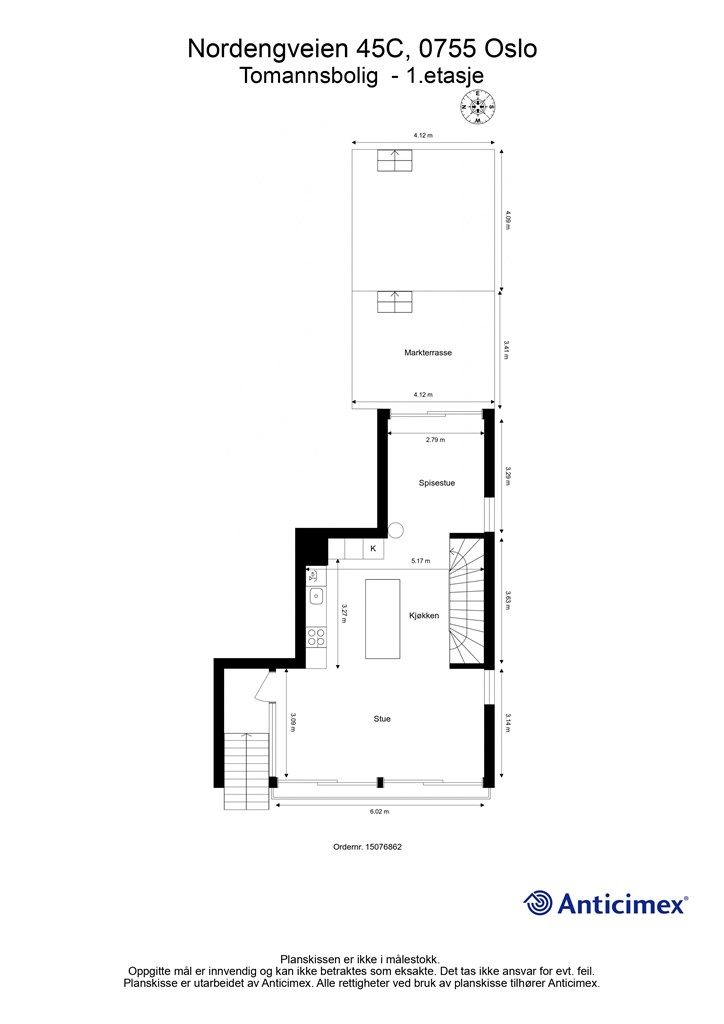
168 m²
4 soverom
Solgt

Bogstad/Røa
Tomannsbolig med ettertraktet beliggenhet -Garasje + P-plass -4 sov og 3 Bad -Hybelmulighet -Solrike uteplasser
Prisantydning
15 000 000 krOmkostninger
395 990 krTotalpris
15 395 990 kr
Pris
Bruksareal
168 m²BRA-I (internt bruksareal)
168 m²TBA (terrasse-balkongareal)
57 m²
Areal
Byggeår
2019Soverom
4 soveromBad
3 badType
Halvpart vertikaldelt boligEierform
EierseksjonFasiliteter
Garasje/P-plass og Balkong/TerrasseFellesutgifter
300 krEnergimerke
Oransje C
Nøkkelinfo
Unngå doble boligrenter
Vi tilbyr gunstig forsikring.
Vurderer du utleie?
Få et tilbud fra Utleie KrogsveenHva koster lånet?
Sjekk estimert lånekostnadBeskrivelse
Kort om eiendommen
Denne vakre, vertikaldelte tomannsboligen ligger fint til med en ettertraktet beliggenhet på Røa. Her bor du i et sentralt, men tilbaketrukket og barnevennlig område.
Herlig nabolag i naturskjønne omgivelser, med nærhet til marka så vel som til et bredt service- og kollektivtilbud. Boligen holder god standard fra byggeåret 2019
Noen høydepunkter:
-To solrike uteplasser: Frodig, vestvendt hage med utgang fra stuen og østvendt platting i bakhage på ca. 31kvm, med morgensol.
-Separat del underetasje tilrettelagt for hybelkjøkken.
-Rikelig med naturlig lys og store vindusflater.
-Stort åpent kjøkken med god plass til spisebord
-Innbydende hovedetasje med utgang til begge uteplasser.
-Meget barnevennlig, med kort vei til skole og barnehage.
-Garasjeplass m/elbillader og sep. oppstillingsplass
Område
Legg til steder som er viktige for deg
På flyttefot? Tenk kjøp og salg samtidig.
Få din egen rådgiver gjennom hele kjøps- og salgsprosessen. Det starter med en verdivurdering.
Unngå doble boligrenter
Vi tilbyr gunstig forsikring.
Vurderer du utleie?
Få et tilbud fra Utleie KrogsveenHva koster lånet?
Sjekk estimert lånekostnadVil du varsles om lignende boliger?
Ved å lagre ditt boligsøk hos oss får du beskjed når vi har en bolig som ligner denne, før den legges ut på markedet!

