Sandviksveien 183
234 m²
Næringsoppgave

Sandvika - Lekre kontorlokaler på 234 kvm med parkering til leie
Etasje
3Bruttoareal
234 m²Type
Næring KontorEierform
Eiet
Nøkkelinfo
Vurderer du utleie?
Få et tilbud fra Utleie KrogsveenBeskrivelse
Innhold og byggemåte
Innhold og byggemåte
Eiendommen
Sandviksveien 183, 1337 SANDVIKA
Kommunenummer 3201, gårdsnummer 52, bruksnummer 45, ideell andel 1/1
Innhold
Vi leter etter ny leietaker til fine lokaler på 234 kvm i 3. etasje rett ved Sandvika Storsenter og Thon hotell Oslofjord.
Lokalene ble totalrehabilitert med høy standard i 2019. God belysning med bevegelsessensor for en smartere bruk av energi.
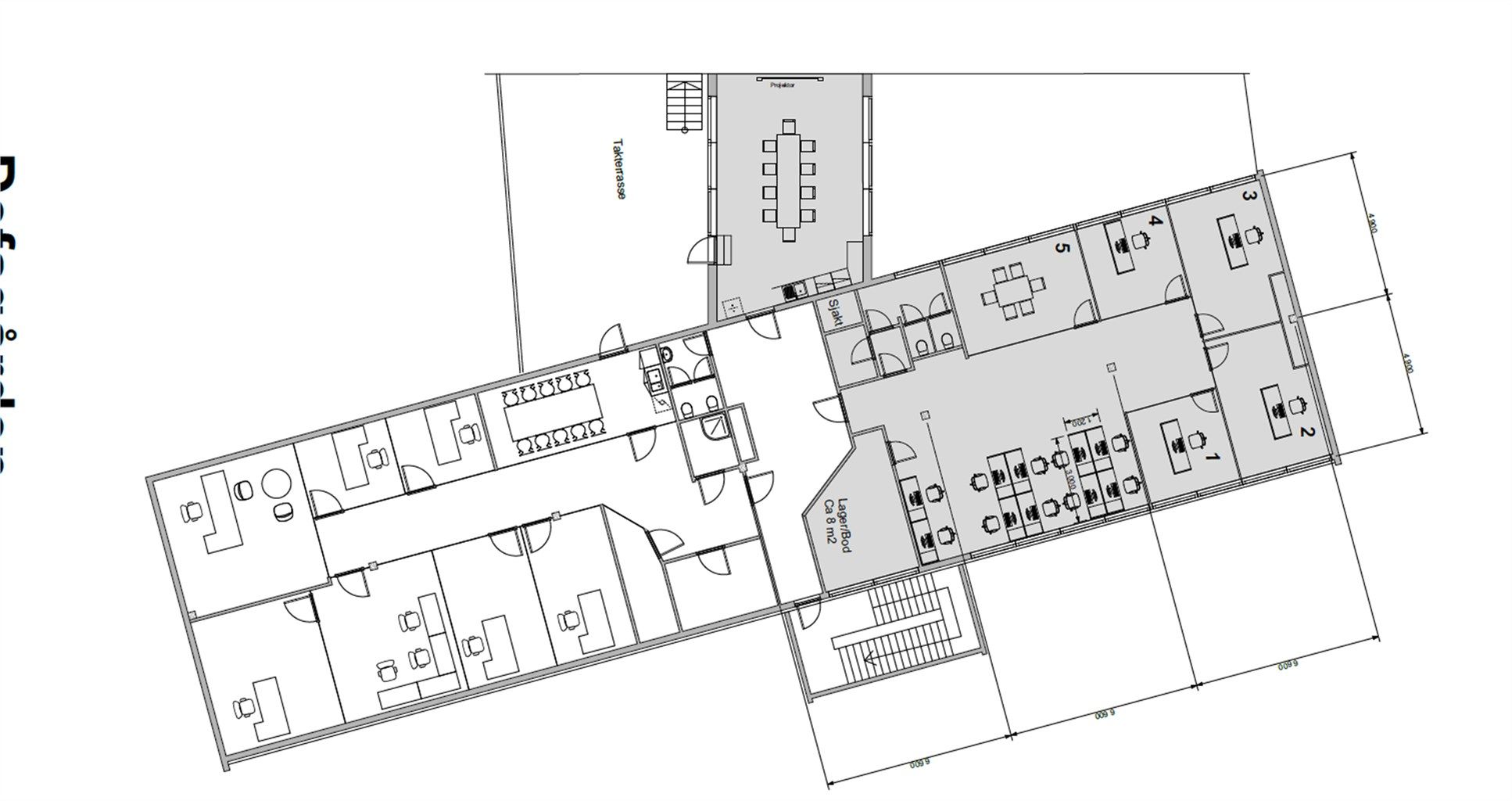
Arealet egner seg godt for selskaper som har behov for en kombinasjon av åpent landskap, cellekontor, stillerom, møterom og sosiale soner.
Her er det tilrettelagt i dag for ca. 13 arbeidsplasser og inndelt med 5 kontor, åpent areal hvor det kan sitte inntil 8 personer.
Utstrakt bruk av glassvegger og dører gir en åpen følelse og godt med naturlig lys fra vinduene på begge sider.
Perfekt størrelse for nettopp din virksomhet.
Ta kontakt for ytterligere info og en hyggelig visning.
Beliggenhet og tomteforhold
Beliggenhet og tomteforhold
Beliggenhet
Eiendommen har en sentral beliggenhet i Sandvika sentrum med Sandvika storsenter og Thon Hotel Oslofjord rett over gaten. Meget godt tilbud av offentlig kommunikasjon med kort vei til Sandvika jernbanestasjon. Her stopper Flytoget, samt regions og lokaltog. Bussholdeplass i rett utenfor inngangen. Enkel adkomst fra E18.
Parkering
Parkering for ansatte og kunder rett utenfor inngangsdøren
Annen viktig informasjon
Annen viktig informasjon
Utleier
Defa Gården DA
Opplysninger om oppdraget
Oppdragsnummer 25-0003/26
Krogsveen Næring, LINK Næringsmegling AS
Martin Linges vei 17, 1330, FORNEBU
986746358
Oppdragets KR-kode KR25.263
Dato
Sist oppdatert: 26. januar 2026 kl. 10:54
Område
Legg til steder som er viktige for deg
Visning
Det er ingen planlagte visninger. Meld deg på for å avtale en tid som passer.
Lurer du på noe?
Vurderer du utleie?
Få et tilbud fra Utleie Krogsveen
