Komplett utleieoppgave

Lørenveien 59A

27 900 kr
90 m²
3 soverom
Velkommen til Lørenveien 59A!
Velkommen til Lørenveien 59A!
Kart
Del
Øystein Sannes
Presenteres av
Øystein Sannes
Løren - Attraktiv og moderne 4-roms i 3.etg - Solrik balkong og sentral beliggenhet. Ledig!

    Areal

  • BRUKSAREAL
    90 m²
  • BRA-I (internt bruksareal)
    90 m²

    Nøkkelinfo

  • Månedsleie
    27 900 kr
  • Etasje
    3
  • Byggeår
    2018
  • Soverom
    3 soverom
  • Bad
    2 bad
  • Type
    Eierleilighet
  • Eierform
    Eierseksjon
  • Fasiliteter
    Garasje/P-plass, Heis og Balkong/Terrasse
  • Energimerke
    Grønn B

Visning

Det er ingen planlagte visninger. Meld deg på for å avtale en tid som passer.
Leieskjema
Lurer du på noe?

Beskrivelse

Kort om eiendommen

Velkommen til Lørenveien 59A!
Kort om leiligheten:
- Attraktiv og moderne 4-roms i 3.etg.
- Stilren og moderne leilighet.
- Solrik balkong på ca. 9. kvm.
- 1 kjellerbod og 1 bod i leiligheten.
- Kommunale avgifter og renovasjon inkl.
- Grunnpakke på tv & internett inkl.
- Integrerte hvitevarer medfølger.
- Garderobeskap medfølger.
- Garasjeplass/parkeringsplass (tilleggsbeløp 1.800,- pr/mnd).
- Attraktivt og rolig område.
- Offentlig transport: 350 m.
- Dagligvare: 100 m.
- Ledig 01.12.
Ønsker du å komme på visning? Trykk på "visningspåmelding" eller send mail til Øystein.Sannes@krogsveen.no

Innhold og byggemåte

Eiendommen

Lørenveien 59A, 0585 OSLO
Kommunenummer 301, gårdsnummer 124, bruksnummer 270, seksjonsnummer 60, ideell andel 1/1

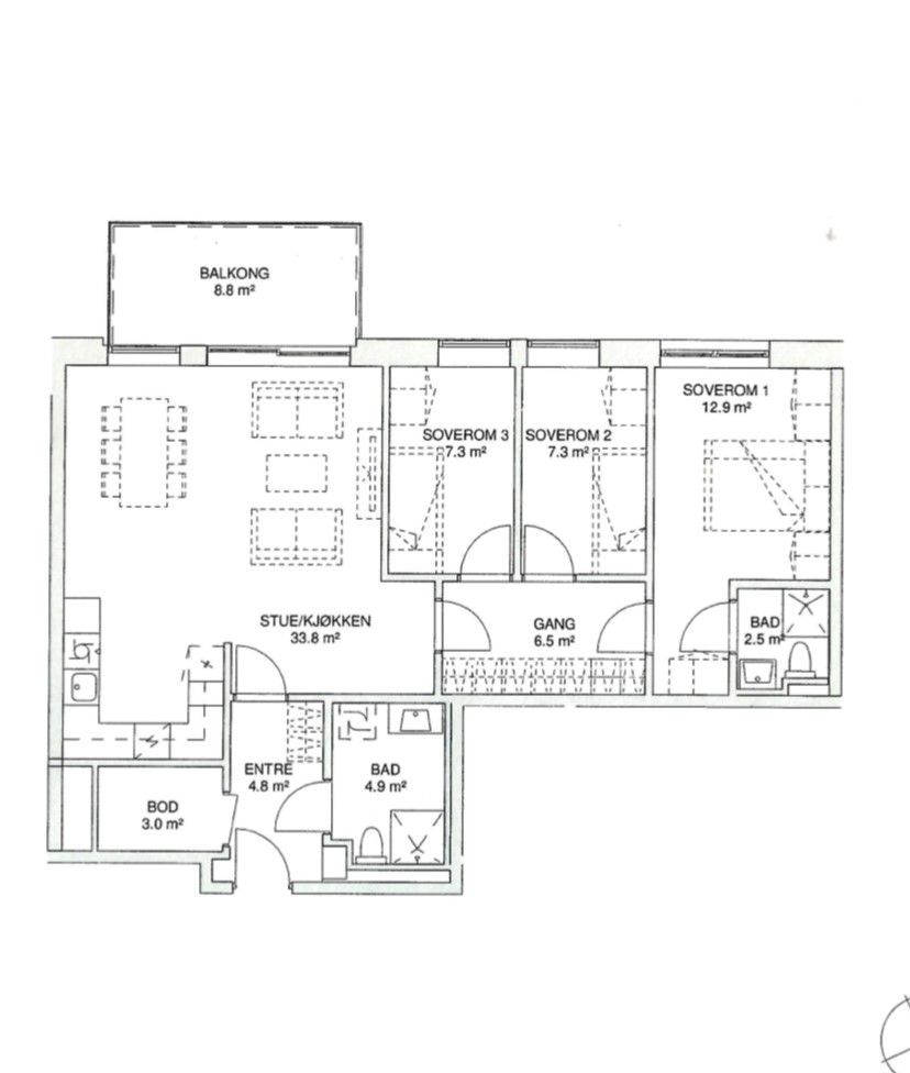
Innhold

BRA: 96 m²
Internt bruksareal: 90 m²
Åpent areal/Balkong: 9 m²
Eksternt bruksareal/ekstern bod: 6 m²
Innhold (BRA-i): Entre, stue/kjøkken, 2 bad, bod, 3 soverom.
Ønsker du å komme på visning? Trykk på "visningspåmelding" eller send mail til Øystein.Sannes@krogsveen.no

Standard

Entré:
Innbydende entré med plass til oppbevaring av sko og yttertøy. Fra entreen har du tilgang til et av to bad. Dørtelefon med calling-system.
Stue:
Lys og moderne stue med åpen løsning mot kjøkkenet. Her har du gode møbleringsmuligheter, store vindusflater og direkte adgang til balkong.
Kjøkken:
Moderne og stilrent kjøkken med meget god skap- og benkeplass. Kjøkkenet har hvite fronter, grå benkeplate med innfelt kjøkkenvask og integrerte hvitevarer.
Balkong:
Stor og koselig balkong på nesten 9. kvm. Her har du gode møbleringsmuligheter.
Baderom I og II:
Delikate og flislagte baderom med vegghengt dusj, servantskap, toalett og opplegg til vaskemaskin. Det ene badet har direkte adgang til leilighetens hovedsoverom. Det er godt med lagringsplass i servantskap.
Soverom:
Leiligheten har tre gode soverom som fremstår som lyse og åpne med plass til både seng og skap. Hovedsoverommet har tilgang til eget bad. Soverommene passer meget godt som både soverom/gjesterom og kontor.
Innvendig bod i leiligheten.
Garderobeskap medfølger.
Ønsker du å komme på visning? Trykk på "visningspåmelding" eller send mail til Øystein.Sannes@krogsveen.no

Oppvarming

Oppvarming med fjernvarme via radiatorer. Gulvvarme på begge bad.

Ferdigattest/brukstillatelse

Det foreligger en ferdigattest datert 25.08.2021.

Radon

Utleier er ansvarlig for at boligen har forsvarlige radonverdier. I normaltilfeller er det kun nødvendig å måle radon i leiligheter med bakkekontakt, samt etasjen over. Det er derfor ikke nødvendig å dokumentere forsvarlige radonverdier for denne leiligheten.

Diverse

Tilbud av produkter og tjenester fra våre samarbeidspartnere
Vi er opptatt av verdiskapning, og har knyttet til oss samarbeidspartnere som skal sikre våre kunder de beste produkter og tjenester;
• IF forsikring tilbyr innboforsikring.
• Søderberg&Partners formidler leiegaranti som et alternativt til depositum som sikkerhetstillelse for leieforholdet.
• SMS Electro tilbyr elektrikertjenester.
• Vår avdeling Krogsveen Pluss tilbyr flyttetjenester som utvask, visningsvask, tømming og transport av flyttelass, i tillegg til å formidle kontakt med Flyttefoten for lagertjenester og Flip for overflateoppussing.
• I forbindelse med overtagelse av eiendommen tilbyr Overo avtale om strøm, alarm og bredbånd.

Inventar og hvitevarer

Integrerte hvitevarer medfølger.

Beliggenhet og tomteforhold

Beliggenhet

Leiligheten ligger i et attraktivt og sentralt boligområde på Løren i bydel Grünerløkka, nær grensen til Hasle og Økern. Området er moderne, urbant og populært blant både unge og etablerte. Her bor du i et rolig og velorganisert boområde med kort vei til alt du trenger i hverdagen – fra dagligvare og service, til caféer, restauranter og gode kollektivforbindelser. Området byr på grønne gårdsrom, hyggelige møteplasser og kort vei til både byliv og rekreasjonsområder.
Servicetilbud:
Løren har hatt en betydelig utvikling de siste årene og fremstår i dag som et komplett byområde med et bredt servicetilbud. Innenfor få minutters gange fra leiligheten finner du Løren Torg, med blant annet Meny, Apotek 1, Norli, STERK helse og trening, frisør, bakeri, kafé og spisesteder. Blant populære serveringssteder finner du Peppes Pizza, Baker Hansen, Kaffebrenneriet, Sanjay’s Indian Restaurant & Bar, Domino’s Pizza, Umai Sushi og Fryd Gastropub.
Kort vei også til Vinslottet på Hasle, et moderne senter med flere restauranter og butikker, blant annet Hasle Linie Gastropub, 8 Fish Sushi, W.B. Samson, Sugar & Spice og Normal. Dagligvarer handler du hos Meny Løren, Rema 1000 Lørenveien eller Kiwi Løren, alle innen gangavstand. Området tilbyr også praktiske tjenester som dyreklinikk, hud- og velværeklinikker, renseri, fysioterapeut og legekontor.
For større handleturer ligger Økern Portal og Storo Storsenter kun noen få minutters kjøretur unna, med et rikt utvalg av butikker, treningssentre, restauranter og kino.
Offentlig transport:
Løren er svært godt tilknyttet kollektivnettet. Løren T-banestasjon ligger ca. 400–500 meter fra leiligheten, og herfra går linje 4 med hyppige avganger mot sentrum – reisen til Jernbanetorget tar rundt 10 minutter. Bussforbindelser finnes også fra Sinsen, Hasle og Økern, med avganger til de fleste deler av byen. Fra Sinsen går i tillegg trikk 17, og flybussen stopper ved Dag Hammarskjølds vei (ca. 600 meter). Om sommeren er Oslo Bysykkel et populært og miljøvennlig alternativ for korte turer i nærområdet.
Rekreasjonsområder:
Løren er et urbant område med grønne lunger og gode uteområder mellom byggene. Det finnes flere parker og lekeplasser i umiddelbar nærhet, og området er tilrettelagt for både gang- og sykkelturer. Kort vei til Hasleparken og Refstadparken, som byr på fine grøntområder for piknik og trening. For mer omfattende turmuligheter ligger Torshovdalen, Lillomarka og Grefsenkollen kun en kort sykkeltur unna – perfekte steder for joggeturer, turgåing og friluftsliv året rundt.

Parkering

Parkering kr. 1.800,- i tillegg pr mnd.

Annen viktig informasjon

Utleier

Gaurav Vij

Informasjon om husleie

Leien reguleres hvert år med endringen i konsumprisindeksen.
Utleier har inngått forvaltningsavtale med Krogsveen. Krogsveen vil derfor følge opp løpende husleieinnbetalinger.
Husleien inkluderer:
- Kommunale avgifter
- Renovasjon
- Grunnpakke på tv & internett
Husleien inkluderer ikke:
- Fjernvarme og varmtvann. Egen avtale tegnes.
- Strøm

Fremleie

Fremleie vil ikke bli tillatt uten skriftlig forhåndsgodkjennelse.

Utleiers krav til sikkerhet

Depositum: 3 mnd depositum pålydende kr. 83 700,- evt. leiegaranti fra HDI Global Specialty kr. 13 392,-.
Som sikkerhet i dette leieforholdet kan leietaker velge å innbetale kontant depositum i DNB, eller etablere en garanti formidlet av Søderberg & Partners.
Velges kontant depositum i DNB, er sikkerhetsbeløpet fra 3 måneders husleie.
Velges garanti formidlet av Søderberg & Partners er sikkerhetsbeløpet fra fire måneders husleie.
Garantipremien er 12 % av sikkerhetsbeløpet. Garantipremien refunderes ikke ved leieavtalens opphør. 
Garantisten vil kreve regress av leietaker ved leietakers erstatningsbetingede mislighold.
Det tas forbehold om prisendringer fra garantistiller.
Ta kontakt med saksbehandler i Utleie Krogsveen for å finne ut om du tilfredsstiller vilkårene for å kjøpe garanti. 

Leietid og partenes oppsigelsesadgang

Leieforholdet starter: 01.12.2025 og utløper: 30.11.2028
Langtidsleie. Minimum botid 1 år.
Begge parter kan si opp leieforholdet med 3 måneders skriftlig varsel, til fraflytting ved utløpet av den kalendermåneden fristen utløper, dog ikke før kontrakten har løpt i 9 måneder, slik at minimum botid er 1 år. Oppsigelsen gjelder fra den første i påfølgende måned.

Leietakers plikter

Utleier vet ikke om noen mangler ved boligen og boligen leies ut slik den fremstår på vising. Leietaker har selv undersøkelsesplikt på visning og kan ikke pårope seg feil og mangler de burde ha oppdaget.
Leieren skal for egen regning forestå det sedvanemessige indre vedlikehold av boligen og av ytre rom som tilhører boligen. Dette innebærer bl.a. å vedlikeholde maling, tapeter, gulvbelegg, dører, ildsteder, låser, nøkler, sikringer, ledninger, ruter, kraner, brytere, kontakter, brannvarslings- og slukningsutstyr og lignende forbruksmateriell. For møblerte leieforhold omfattes også vedlikehold av møblene av leierens vedlikeholdsplikt.
Medfører vedlikeholdet forandringer i boligen, skal det gis et skriftlig forhåndssamtykke fra utleier som godkjenner forandringene. Slikt forhåndssamtykke gir ikke leieren rett til å kreve vederlag for forbedringer jf. husleielovens § 10-5. Medfører vedlikeholdet at gjenstander må skiftes ut, påhviler utskiftning utleier med mindre gjenstanden er installert av leieren eller gjenstanden er ødelagt, grunnet leierens bruk eller av manglende vedlikehold fra leierens side.
Dersom boligen har utvendige fasader/terrasser skal utleier, uansett hvor lenge leieforholdet varer, ivareta normalt utvendig vedlikehold. Leieren er likevel ansvarlig for å etterse og vedlikeholde hageanlegg, tak, balkonger, terrasser, takrenner, nedløpsrør, innkjørsel/parkeringsområde. Leieren plikter også å holde eiendommen ryddet, rengjort og forestå egen snømåking.

Hvitvaskingsreglene

I henhold til lov om hvitvasking og terrorfinansiering har megler plikt til å gjennomføre kontrolltiltak overfor kunder, herunder fullmektiger. Dette innebærer bl.a. å bekrefte kunders og reelle rettighetshaveres identitet på bakgrunn av fremvist gyldig legitimasjon eller på annen godkjent måte, samt å innhente opplysninger om kundeforholdets formål og tilsiktede art.
Dersom slike kundetiltak ikke kan gjennomføres, kan megler ikke etablere kundeforholdet eller utføre transaksjonen.
Hvis kjøper ikke bidrar til gjennomføring av kundekontrollen og dette fører til at transaksjonen blir forsinket eller ikke kan gjennomføres, vil dette ansees som mislighold av avtalen og gi selger rettigheter etter avhendingslova kapittel 5. I tilfeller der selger ikke bidrar til gjennomføring av løpende kundekontroll underveis i oppdraget, er det selger som misligholder sine forpliktelser etter avtalen og gi kjøper rettigheter etter avhendingslovens kapittel 4. Partene er selv ansvarlige for eventuelle kostnader og ansvar dette kan medføre. Eiendomsmegleren eller eiendomsmeglingsforetaket kan ikke holdes ansvarlig for de konsekvenser dette vil kunne få for partene eller andre som har interesser i eiendomshandelen.
Kjøper oppfordres til å innbetale kjøpesummen som ikke kommer fra låneinstitusjon i én samlet innbetaling fra egen konto i norsk bank. Megler har plikt til å melde fra til Økokrim om eiendomshandler som fremstår som mistenkelige. Melding sendes Økokrim uten at partene varsles. 
I henhold til lov om hvitvasking og terrorfinansiering har megler plikt til å gjennomføre kontrolltiltak ovenfor kunder, herunder fullmektiger. Dette innebærer bla. å bekrefte kunders og reelle rettighetshaveres identitet på bakgrunn av fremvist gyldig legitimasjon eller på annen godkjent måte, samt å innhente opplysninger om kundeforholdets formål og tilsiktede art.
Dersom slike kundetiltak ikke kan gjennomføres, kan megler ikke etablere kundeforholdet eller utføre transaksjonen. Hvis en av partene ikke bidrar til gjennomføring av kundekontrollen og dette fører til at leieforholdet blir forsinket eller ikke kan fortsette, vil dette ansees som mislighold av avtalen og gi partene rettigheter etter husleielovens kapittel 5.
Partene er selv ansvarlige for eventuelle kostnader og ansvar dette kan medføre. Eiendomsmegleren eller eiendomsmeglingsforetaket kan ikke holdes ansvarlig for de konsekvenser dette vil kunne få for partene eller andre som har interesser i eiendomshandelen.
Det forutsettes at leiesum og depositum kommer fra leietaker konto i norsk bank i en samlet overføring. Megler har plikt til å melde fra til Økokrim om eiendomshandler som fremstår som mistenkelige. Melding sendes Økokrim uten at partene varsles. 

Personopplysningsloven

I henhold til personopplysningsloven gjør vi oppmerksom på at interessenter kan bli registrert for videre oppfølging.

Opplysninger om oppdraget

Oppdragsnummer 88-0155/25
Utleiemegler Krogsveen AS, avd. Løren
Lørenveien 50, 0585, OSLO
993 808 717
Oppdragets KR-kode KR88.25155

Dato

Sist oppdatert: 04. desember 2025 kl. 14:03
Utskriftsvennlig utleieoppgave

Område

Legg til steder som er viktige for deg

Prisutvikling for området

Kvadratmeterpris
0 kr/m²
Endring
↘︎ % ()

Visning

Det er ingen planlagte visninger. Meld deg på for å avtale en tid som passer.
Leieskjema
Lurer du på noe?