Nils Slottos vei 6
4 390 000 kr
183 m²
5 soverom
Solgt

Røyken
Stor vertikaldelt bolig i barnevennlige og solrike omgivelser - Godkjent hybel i u.etg - Oppussingsbehov
Prisantydning
4 390 000 krOmkostninger
130 740 krTotalpris
4 520 740 kr
Pris
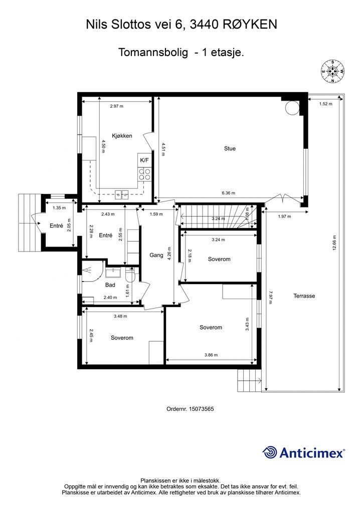
Bruksareal
199 m²BRA-I (internt bruksareal)
183 m²BRA-E (eksternt bruksareal)
16 m²TBA (terrasse-balkongareal)
35 m²
Areal
Byggeår
1971Soverom
5 soveromBad
2 badTomteareal
668 m² (eiet)Type
Halvpart vertikaldelt boligEierform
EietFasiliteter
Garasje/P-plass og Balkong/TerrasseÅrlig velavgift
4 000 krEnergimerke
Rød G
Nøkkelinfo
Unngå doble boligrenter
Vi tilbyr gunstig forsikring.
Vurderer du utleie?
Få et tilbud fra Utleie KrogsveenHva koster lånet?
Sjekk estimert lånekostnadBeskrivelse
Kort om eiendommen
Velkommen til Nils Slottos vei 6!
Romslig og praktisk bolig i barnevennlig omgivelser og kort vei til barnehage og skole! Boligen går over 2 plan, hvorav begge etasjer er utstyrt med kjøkken, bad og soverom. Praktisk mulighet for utleie av underetasjen, hvor den også har en egen entré. Fra eiendommen er det bare en kort kjøretur til Røyken sentrum, hvor det er dagligvarebutikker og det meste du skulle trenge til dagliglivet. Fra sentrum går det tog i retning Oslo og Asker. Kort gåtur fra eiendommen er det mark og skog hvor det er flotte stier om sommeren og meget gode skiløyper om vinteren.
- Moderniseringsbehov
- Kort vei til barnehage og skoler
- Godkjent hybel i u.etg
- 5 soverom
- Koselig uteområde
- Gode parkeringsforhold på egen tomt og garasje i felles rekke
Område
Legg til steder som er viktige for deg
På flyttefot? Tenk kjøp og salg samtidig.
Få din egen rådgiver gjennom hele kjøps- og salgsprosessen. Det starter med en verdivurdering.
Unngå doble boligrenter
Vi tilbyr gunstig forsikring.
Vurderer du utleie?
Få et tilbud fra Utleie KrogsveenHva koster lånet?
Sjekk estimert lånekostnadVil du varsles om lignende boliger?
Ved å lagre ditt boligsøk hos oss får du beskjed når vi har en bolig som ligner denne, før den legges ut på markedet!

