Såvegen 5
3 990 000 kr
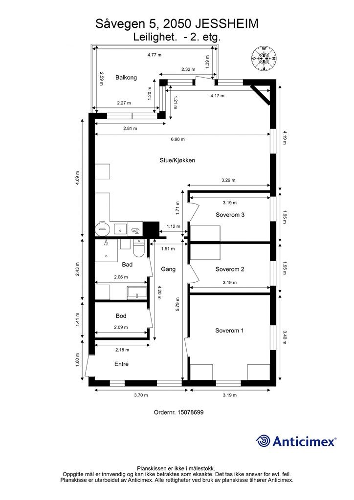
79 m²
3 soverom
Solgt
Jessheim
Lys og luftig 4- roms eierleilighet i 2.etasje med balkong på 9 kvm, heis og garasjeplass | Sentral beliggenhet
Prisantydning
3 990 000 krOmkostninger
110 790 krTotalpris
4 100 790 kr
Pris
Bruksareal
84 m²BRA-I (internt bruksareal)
79 m²BRA-E (eksternt bruksareal)
5 m²TBA (terrasse-balkongareal)
9 m²
Areal
Etasje
2Byggeår
2007Soverom
3 soveromBad
1 badType
EierleilighetEierform
EierseksjonFellesutgifter
3 691 krEnergimerke
Gul D
Nøkkelinfo
Unngå doble boligrenter
Vi tilbyr gunstig forsikring.
Vurderer du utleie?
Få et tilbud fra Utleie KrogsveenHva koster lånet?
Sjekk estimert lånekostnadBeskrivelse
Kort om eiendommen
Velkommen til Såvegen 5
En lys 4- roms eierleilighet sentralt på Jessheim. Leiligheten har en meget god planløsning, romslig stue-kjøkken løsning samt 3 gode soverom. Her bor du godt i et rolig område som er meget sentrumsnært. Gangavstand til alt du trenger og flere flotte turmuligheter, blant annet populære Nordbytjærnet. Det er et gode kollektiv muligheter på området.
Kort oppsummert
Tre soverom
Gasspeis i stuen
Romslig balkong på 9 kvm
Godt med oppbevaringsmuligheter i innvendig bod og kjellerbod
Garasjeplass
Avstand med bil:
12 min. til Gradermoen
23 min. til Lillestrøm
35 min til Oslo s
Noe moderniseringsbehov
Er du på utkikk etter en lys, luftig og arealeffektiv leilighet med kort avstand til det du trenger?
Vi ses på visning
Område
Legg til steder som er viktige for deg
På flyttefot? Tenk kjøp og salg samtidig.
Få din egen rådgiver gjennom hele kjøps- og salgsprosessen. Det starter med en verdivurdering.
Unngå doble boligrenter
Vi tilbyr gunstig forsikring.
Vurderer du utleie?
Få et tilbud fra Utleie KrogsveenHva koster lånet?
Sjekk estimert lånekostnadVil du varsles om lignende boliger?
Ved å lagre ditt boligsøk hos oss får du beskjed når vi har en bolig som ligner denne, før den legges ut på markedet!
På flyttefot? Slik gjør vi det enklere for deg
Skreddersydd flyttepakke
Vi fikser håndverkere, vask, pakking, lagring og transport, og legger ut for utgiftene underveis.
Hjelp med både kjøp og salg
Hos oss har du din egen rådgiver gjennom hele kjøps- og salgsprosessen.
Hjelp til finansiering
Vårt samarbeid med BN Bank sikrer deg rask og løsningsorientert hjelp, til konkurransedyktige betingelser.














































