Gjerivegen 12A
2 990 000 kr
41 m²
1 soverom
Komplett salgsoppgave

Ask
Moderne 2-roms fra 2021 i Ask sentrum | Overbygget balkong på 11 m² | Heisadkomst
Prisantydning
2 990 000 krAndel fellesgjeld
8 383 krOmkostninger
85 990 krTotalpris
3 084 373 kr
Pris
Bruksareal
43 m²BRA-I (internt bruksareal)
41 m²BRA-E (eksternt bruksareal)
2 m²TBA (terrasse-balkongareal)
11 m²
Areal
Etasje
3Byggeår
2021Soverom
1 soveromBad
1 badType
EierleilighetEierform
EierseksjonFellesutgifter
3 490 kr
Nøkkelinfo
Unngå doble boligrenter
Vi tilbyr gunstig forsikring.
Vurderer du utleie?
Få et tilbud fra Utleie KrogsveenHva koster lånet?
Sjekk estimert lånekostnadBeskrivelse
Kort om eiendommen
Innhold og byggemåte
Innhold og byggemåte
Eiendommen
Gjerivegen 12A, 2022 GJERDRUM
Kommunenummer 3230, gårdsnummer 42, bruksnummer 139, seksjonsnummer 18, ideell andel 1/1
Innhold
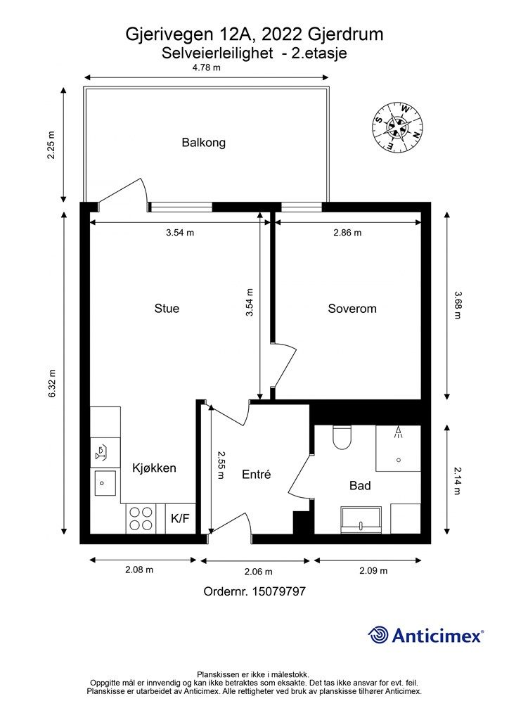
Totalt bruksareal BRA: 43 kvm
BRA-i:
2. etasje 41 kvm: Entré, bad, stue/kjøkken og 1 soverom.
BRA-e:
Kjeller 2 kvm: Bod.
Terrasse- og balkongareal (TBA):
2. etasje 11 kvm: Balkong.
Det gjøres oppmerksom på at boligens eksterne boder tilhører sameiets fellesareal, og at boden således ikke eies av den enkelte sameier. Dette medfører at sameiet i fellesskap beslutter bruken, og at man ikke selv har eierrett og rettsvern for boden. Sameiet kan ved vedtak beslutte annet bruk av fellesarealet og disponering av bodarealet kan dermed opphøre.
Vedlagte plantegninger er ikke målbare. De oppgitte arealer er hentet fra rapport med befaringsdato 27.02.2026 utført av Anticimex AS v/Thomas Nordby.
Byggemåte
Tilstandsrapporten er inntatt i salgsoppgaven. Rapporten inneholder informasjon om eventuelle avvik og konsekvensen av disse. Dersom det er registrert avvik med TG3, har den bygningssakkyndige i tillegg gitt et anslag på hva det vil koste å utbedre disse. Ettersom kjøper regnes å være kjent med forhold som tydelig fremgår av tilstandsrapporten, oppfordres du til å sette deg grundig inn i rapporten i sin helhet.
Bygningen er iht. tilstandsrapport oppført i 2021. Bygningen har støpt gulv mot grunn, og grunnmur er i hovedsak av betong. Bærende konstruksjoner og skillende dekker er av betong med utfyllende bindingsverk. Fasader er kledd med fasadeplater og trepanel. Taket er en tilnærmet flat konstruksjon tekket med takpapp. Leiligheten har vinduer med karmer av tre og tre-lags glass fra byggeåret. Entrédøren er av tre med brannklasse EI30 og lydklasse 43dB, og balkongdøren har karmer av tre med tre-lags glass, begge fra byggeåret. Innvendige dører er hvite i slett utførelse.
Følgende bygningsdeler er gitt Tilstandsgrad 2 (TG2) — Avvik som kan kreve tiltak:
Våtrom
- Sanitærutstyr og innredning: Drenering fra innebygget toalettsisterne er ikke registrert.
Følgende bygningsdeler er ikke undersøkt (TGIU):
Våtrom
- Kontroll i tilliggende konstruksjon ikke utført: På grunn av plassering av det som vurderes å være en sjakt (brannskiller) og våtrommets utforming er det ikke praktisk mulig å gjennomføre fuktmåling/hulltaking i et område der det erfaringsmessig forekommer skader. Hulltaking og fuktmåling i lukkede konstruksjoner er derfor ikke utført. Tilstanden inne i konstruksjonen er ikke kjent. Det ble derimot gjennomført et overflatesøk med fuktindikator, uten at det ble påvist indikasjoner som tyder på fuktskader.
Se vedlagt tilstandsrapport for supplerende informasjon vedrørende boligens tilstand.
Moderniseringer og påkostninger
Ingen moderniseringer er dokumentert siden byggeår.
Løsøre og tilbehør
Vi viser til liste fra Norges Eiendomsmeglerforbund som gjelder fra 01.01.2020 angående løsøre og tilbehør.
Oppvarming
Leiligheten er oppvarmet med vannbåren varme til radiator, samt elektrisk gulvvarme på bad. Dersom beboelsesrom ikke har vegg- eller fastmonterte varmekilder ved visning, følger dette heller ikke med. Felles oppvarming avregnes A-konto.
Ferdigattest/brukstillatelse
Det foreligger ikke ferdigattest på eiendommen, men midlertidig brukstillatelse ble gitt 03.12.21.
Tillatelsen er gitt på følgende vilkår:
Deler av kjeller under BB3 som brukes til rigg og lagring i forbindelse med byggetrinn 2.
Det er uklart om dette er utført. Kjøper overtar ansvaret for dette.
Det er gitt en frist av Gjerdrum kommune om søknad for ferdig attest er 01.02.23 noe det ikke er gjort, grunnet utsettelser på byggingen av resten av prosjektet.
Ferdigattest blir det søkt om når alt er oppført og utomhus arealene er ferdig for hele prosjektet.
Kjøper overtar eiendommen slik den framstår på visning.
Tinglyste heftelser og rettigheter
Eiendommen overdras fri for pengeheftelser
Sameiet har legalpant for krav mot sameieren som følger av sameieforholdet iht. eierseksjonsloven § 31. Pantet er begrenset oppad til 2G (G = folketrygdens grunnbeløp).
Det er tinglyst 7 servitutter på sameiets eiendom. Disse omhandler blant annet bestemmelse om veg, utbyggingsavtale, bestemmelse om nettstasjon, bestemmelse om vann/kloakk og bestemmelse om adkomstrett.
2021/1465247-1/200 19.11.2021 SEKSJONERING
Opprettet seksjoner:
SNR: 18
Formål: Bolig
Sameiebrøk: 41/1446
Servituttene vil følge eiendommen. Kjøpers bank vil få prioritet etter ovennevnte heftelser og servitutter.
Eventuell adgang til utleie
Leiligheten kan leies ut såfremt leiligheten har forsvarlige radonverdier. Leietaker må følge sameiets vedtekter og ordensregler på lik linje som eier.
Bortleie av seksjon skal meldes til styret. Korttidsutleie av hele boligseksjonen i mer enn 60 døgn årlig er ikke tillatt. Med korttidsutleie menes utleie i inntil 30 døgn sammenhengende.
Diverse
Eiendommen inngår i et dødsbo hvor arvingene er selgere. Arvingene har ikke bebodd eiendommen og kjennskapen til eiendommens tilstand kan være mangelfull. Kjøper må derfor kunne påregne at det kan være flere feil og mangler som normalt oppdages ved bruk av boligen, men som selger av dødsbo ikke har mulighet å vite.
Beliggenhet og tomteforhold
Beliggenhet og tomteforhold
Beliggenhet
Leiligheten ligger fint til midt i Ask sentrum i Gjerdrum kommune. Fra leiligheten er det umiddelbar nærhet til servicetilbud som bla. Rema 1000, apotek, spisestedet Nordvæst, frisør, kulturhus, bibliotek, idrettshall, Gjerdrum stadion, kafé, hotell, vinmonopol, treningssenter og hyggelige butikker.
Det er kort gangavstand til barneskole, ungdomsskole og barnehage, og det finnes flere videregående skoler i området både på Lillestrøm, i Nannestad og på Jessheim.
Det er kort vei til flotte turområder i Romeriksåsen. Området byr på flere idylliske badevann, der Lysdammen er den mest populære og et yndet badested hele sommeren. Innover i marka finnes det flere oppmerkede løyper og koselige turisthytter som tilbyr servering i helgene. Om vinteren er det et langstrakt løypenett i marka, og Kniplia skisenter har alpinbakke, snowboardpark, hoppbakker, akebakke og varmestue. Kommunen er meget barnevennlig, og har et bredt idrettstilbud.
Ved ungdomsskolen ligger både en idrettshall, med blant annet klatrevegg og innendørs skytebane, og en av flere kunstgressbaner. Det er kort vei til Gjerdrum golfklubb med fullverdig 9-hulls bane. Det er også kort vei til Kløfta med Romerikssenteret, samt Jessheim, Lillestrøm og Strømmen med alle øvrige servicetilbud.
Med bil tar det ca. 9 min til Kløfta, 17 min til OSL Gardermoen, 19 min til Lillestrøm og ca. 25 min til Oslo.
For ytterligere informasjon om Ask og Gjerdrum se https://www.gjerdrum.kommune.no
Adkomst
Veibeskrivelse Se Google maps - det er enkelt å finne frem i kartet.
Det vil bli skiltet med Krogsveen visningsskilt ved fellesvisninger.
Barnehager, skoler og fritid
BARNEHAGER:
Gjerdrum Barnehage (0-5 år) 0.7 km
Espiria Brådalsfjellet barnehage (0-5 år) 1.8 km
Grønlund Barnehage (1-6 år) 2.9 km
SKOLER:
Gjerdrum Barneskole (1-7 kl.) 0.3 km
Gjerdrum ungdomsskole (8-10 kl.) 0.7 km
Jessheim Videregående: 18 min med bil
Lillestrøm Videregående: 20 min med bil
Informasjon om tilhørende skolekretser er hentet fra Prognosesenteret som dataleverandør, og tilhørigheten kan årlig endres av kommunen. Dersom skole- og barnehagetilbud er av betydning for kjøpet, ber vi om at det rettes en særskilt henvendelse til kommunen/bydelsadministrasjonen for oppdatert informasjon.
Beskrivelse av tomt
Eiertomt på 521 kvm som tilhører sameiet. Tomten er fellesareal. Fellesarealer opparbeidet med blant annet asfalterte internveier, plenareal, prydbusker og diverse beplantninger.
Parkering
Det medfølger ingen garasje- eller parkeringsplass til leiligheten. Parkeringsplasser er etablert i anleggseiendommen Ask, hvor parkeringsseksjonen eies i sameie av de som har en plass. I tillegg finnes 9 parkeringsplasser på terreng på felles utomhusareal, hvorav 6 er gjesteplasser.
Vei, vann og avløp
Eiendommen har adkomst via kommunal og privat vei med felles vedlikeholdsansvar for sameiet.
Eiendommen er tilknyttet kommunalt ledningsnett via private stikkledninger.
Sameiet er ansvarlig for private stikkledninger til bygningen.
Regulerings-og arealplaner
Eiendommen er regulert til boligbebyggelse i henhold til reguleringsplan "Detaljregulering for Askhøgda" med tilhørende reguleringsbestemmelser datert 25.10.2017.
Det vil bli bygget flere bygninger på området pr i dag er det planlagt to bygg til som ligger på samme tomt. Disse kan sees i reguleringskartet vedlagt i salgsoppgaven.
Eiendommen ligger i "Gul" sone (lav faregrad) for områder med påvist kvikkleire iflg. NVE.
Utsnitt av plan med tilhørende bestemmelser kan fås ved henvendelse til megler.
Økonomi
Økonomi
Boligens kostnader
Totale fellesutgifter er kr 3 490,- per måned. Dette inkluderer bredbånd fra Globalconnect, filter, kommunale avgifter, drift og vedlikehold, utvendig bygningsforsikring mm.
Beboere må selv bestille og betale for tilleggspakker som TV og høyere hastigheter.
Fellesutgiftene er fordelt slik:
- Felleskostnader: kr 3 157,-
- Bredbånd / Kabel-TV: kr 257,-
- Filter: kr 76,-
Kostnader til vann, avløp og oppvarming fordeles etter BRA. Felles oppvarming avregnes A-konto etter forbruk.
Renter og avdrag på fellesgjelden er stipulerte og kan endres i tråd med bankens vilkår. Sameiet står også foran en rettslig prosess mot utbygger, noe som kan påvirke fremtidige kostnader.
Nåværende eier har et strømforbruk som tilsvarer ca. kr 720,- pr. år. / 5000 kwh. pr. år.
Boligen er tilknyttet Riks TV som leverandør av kabel-tv.
Utgiftene er basert på nåværende eiers forbruk. Kjøper må selv tegne innboforsikring.
Opplysninger om fellesgjeld
Andel formue er kr 0,- pr. 2025.
Andel fellesgjeld er kr 8 383,- pr. 28.02.2026.
Total fellesgjeld for sameiet er kr 295 662,- pr. 28.02.2026 og lånevilkårene er:
Bank: BOLIGBANKEN ASA
Type: Annuitetslån, 1 terminer per år
Restsaldo pr. 28.02.26: kr 295 662,-
Andel av saldo: kr 8 383,-
Innfrielsesdato: 31.01.31
Type Rente: Flytende
Rente: 7,05%
Det er ikke mulighet for individuell nedbetaling (IN-ordning) på sameiets lån.
Omkostninger
2 990 000,00 Prisantydning
8 383,00 Andel av fellesgjeld
--------------------------------------------------------
2 998 383,00 Pris inkl. fellesgjeld
Omkostninger
74 950,00 Dokumentavgift til staten (2,5% av kjøpesum)
9 950,00 Gjensidige Boligkjøperpakke (valgfri)
545,00 Tinglysing panterettsdokument
545,00 Tinglysing skjøte
--------------------------------------------------------
85 990,00 Omkostninger totalt
--------------------------------------------------------
3 084 373,00 Totalpris inkl. omkostninger
--------------------------------------------------------
Annen viktig informasjon
Annen viktig informasjon
Eier
Janne Helene Weås
Informasjon om sameiet
Leiligheten er tilknyttet Kvartalet II Eierseksjonssameie (org.nr. 928440931).
- Sameiet består av 33 eierseksjoner.
- Forretningsfører er BORI BBL.
- Sameiet er forsikret i Fremtind Forsikring AS med polisenummer 25986494.
Dugnad må påregnes.
Dyrehold er tillatt.
Foretatt påkostninger de senere år: Løpende vedlikehold.
Planlagte påkostninger: Løpende vedlikehold.
Den enkelte seksjonseier har vedlikeholdsplikt for sin seksjon, inkludert inventar, utstyr, vinduer, ytterdører, våtrom og sluk.
Styret satt i gang de tiltakene som måtte til for å gå videre i sak mot utbyggeren for mangler. Det har vært takstmann, ingeniører, advokat, SINTEF, utbygger og andre relevante aktører og underleverandører på banen, i jevnlig dialog.
Fra ekstraordinært årsmøte 23.12.2025:
- Sameiet forbereder en rettslig prosess mot utbygger, og stevning vil bli tatt ut.
- Det ble valgt nytt styre og vedtatt et styrehonorar på kr 57 050 til ny styreleder.
Det foreligger ingen forkjøpsrett på eiendommen.
For å dekke eventuell manglende innbetaling av felleskostnader har sameiet panterett i den enkelte seksjon foran alle andre panthavere med et beløp tilsvarende to ganger folketrygdens grunnbeløp (2G). Sameiet er ikke tilknyttet en sikringsordning som dekker tap ved manglende innbetaling av felleskostnader.
Vi gjør videre oppmerksom på at det iht. eierseksjonsloven ikke er anledning å erverve mer enn 2 seksjoner i sameiet, her teller også eierskap via. firma, nærstående og familie. Kjøper har risikoen for at overskjøting på denne bakgrunn kan nektes av Statens Kartverk. I så fall vil kjøper uansett være forpliktet til å gjennomføre handelen, og oppgjør til selger vil finne sted tross manglende overskjøting.
Konferer med megler for mer informasjon.
Dokumenter for sameiet og kopi av seksjonsbegjæringen kan fås ved henvendelse til megler.
Overtakelse
Etter nærmere avtale.
Budgivning
Forbrukerinformasjon om budgivning er vedlagt denne salgsoppgaven og er også på vår hjemmeside Krogsveen.no. Alle bud og budforhøyelser må inngis skriftlig. I tillegg må legitimasjon være fremlagt sammen med signatur fra budgiver.
Vi oppfordrer til å gi bud elektronisk via GI BUD-knappen på eiendommens hjemmeside på Krogsveen.no. Da vil samtlige vilkår bli oppfylt.
Eventuelle forhøyelser eller endringer av budet kan bekreftes pr SMS eller på e-post. Vi oppfordrer alltid til å kontakte megler pr. telefon i tillegg da forsinkelser i SMS og e-post kan forekomme.
For at budene skal kunne bli behandlet og videreformidlet skriftlig til alle involverte parter, må alle bud ha en tilstrekkelig lang akseptfrist, jf. eiendomsmeglingsforskriften § 6-3.
Selger må også skriftlig akseptere budet før aksept kan formidles til budgiver. Akseptfrist bør derfor være på minimum 30 minutter, og budforhøyelser må derfor skje i god tid før fristens utløp.
Bud i forbrukerforhold kan uansett ikke settes med kortere frist enn kl. 12.00 første virkedag etter siste annonserte visning. I tillegg kan ikke budet ha forbehold om at det skal holdes hemmelig ovenfor øvrige interessenter. Megler har iht lov om eiendomsmegling ikke anledning til å videreformidle disse budene, og de vil dermed heller ikke bli journalført.
Etter at eiendommen er solgt vil kjøper og selger få tilsendt budjournal. Øvrige budgivere kan få utlevert kopi av budjournalen i anonymisert form.
Hvitvaskingsreglene
I henhold til lov om hvitvasking og terrorfinansiering har megler plikt til å gjennomføre kontrolltiltak overfor kunder, herunder fullmektiger. Dette innebærer bl.a. å bekrefte kunders og reelle rettighetshaveres identitet på bakgrunn av fremvist gyldig legitimasjon eller på annen godkjent måte, samt å innhente opplysninger om kundeforholdets formål og tilsiktede art.
Dersom slike kundetiltak ikke kan gjennomføres, kan megler ikke etablere kundeforholdet eller utføre transaksjonen.
Hvis kjøper ikke bidrar til gjennomføring av kundekontrollen og dette fører til at transaksjonen blir forsinket eller ikke kan gjennomføres, vil dette ansees som mislighold av avtalen og gi selger rettigheter etter avhendingslova kapittel 5. I tilfeller der selger ikke bidrar til gjennomføring av løpende kundekontroll underveis i oppdraget, er det selger som misligholder sine forpliktelser etter avtalen og gi kjøper rettigheter etter avhendingslovens kapittel 4. Partene er selv ansvarlige for eventuelle kostnader og ansvar dette kan medføre. Eiendomsmegleren eller eiendomsmeglingsforetaket kan ikke holdes ansvarlig for de konsekvenser dette vil kunne få for partene eller andre som har interesser i eiendomshandelen.
Kjøper oppfordres til å innbetale kjøpesummen som ikke kommer fra låneinstitusjon i én samlet innbetaling fra egen konto i norsk bank. Megler har plikt til å melde fra til Økokrim om eiendomshandler som fremstår som mistenkelige. Melding sendes Økokrim uten at partene varsles.
Personopplysningsloven
I henhold til personopplysningsloven gjør vi oppmerksom på at interessenter kan bli registrert for videre oppfølging.
Lovanvendelse
Generelle bestemmelser
Salgsoppgaven er basert på de opplysningene selger har gitt til megler, den bygningssakyndiges tilstandsrapport, samt opplysninger innhentet fra kommunen, Kartverket og andre tilgjengelige kilder. Det er viktig at kjøper setter seg grundig inn i alle salgsdokumentene, herunder salgsoppgave, tilstandsrapport og selgers egenerklæring. Kjøper anses kjent med forhold som er tydelig beskrevet i salgsdokumentene, og slike forhold kan ikke påberopes som mangler. Dette gjelder uavhengig av om kjøper har lest dokumentene. Alle interessenter oppfordres til å undersøke eiendommen nøye, gjerne sammen med fagkyndig før bud inngis. Kjøper som velger å kjøpe usett kan ikke gjøre gjeldende som mangel noe han burde blitt kjent med ved undersøkelsen.
Dersom det er behov for avklaringer, anbefaler vi at interessenter rådfører seg med eiendomsmegler eller egne rådgivere før det legges inn bud.
En bolig som har blitt brukt i en viss tid, har vanligvis blitt utsatt for slitasje og skader kan ha oppstått. Slik bruksslitasje må kjøper regne med, og det kan avdekkes enkelte forhold etter overtakelse som nødvendiggjør utbedringer. Normal slitasje og skader som nødvendiggjør utbedring, er innenfor hva kjøper må forvente og vil ikke utgjøre en mangel.
Kjøper og selgers rettigheter og plikter reguleres av avtalen mellom partene, samt informasjonen som har vært tilgjengelig for kjøperen i forbindelse med handelen. Avtalen utfylles av avhendingsloven, og det gjelder ulike avtalevilkår avhengig av om kjøper er forbrukerkjøper eller ikke. Dette er nærmere beskrevet nedenfor.
På grunn av ulike avtalevilkår kan selger vurdere bud fra en som ikke er forbruker, ulikt fra en forbrukers bud. Dersom kjøper ikke er forbruker, er selger sitt mulige mangelsansvar begrenset fordi eiendommen selges "som den er". Selger kan ikke ta «som den er»- forbehold overfor en forbrukerkjøper. Selv et lavere bud fra en som ikke er forbruker kan foretrekkes fordi begrensningen i mulig mangelsansvar kan ha egenverdi for selger. Selger står fritt til å forkaste eller akseptere ethvert bud, og er for eksempel ikke forpliktet til å akseptere høyeste bud.
Budgiver skal i budskjema avgi egenerklæring om budgiver er forbruker eller næringsdrivende/ person som hovedsakelig handler som ledd i næringsvirksomhet. Budgivere får informasjon dersom andre bud er inngitt av en som ikke er forbruker.
Forbrukerkjøp - definisjon
Med forbrukerkjøp menes kjøp av eiendom når kjøperen er en fysisk person som ikke hovedsakelig handler som ledd i næringsvirksomhet.
Forbruker – avtalevilkår
Eiendommen har en mangel dersom den ikke er i samsvar med kravene som følger av avtalen, eller det foreligger brudd på bestemmelsene i avhendingsloven §§ 3-2 til 3-8. Hvis eiendommen ikke er i samsvar med det kjøperen må kunne forvente ut ifra alder, type og synlig tilstand, kan det være grunnlag for mangelskrav. Det samme gjelder hvis det er holdt tilbake eller gitt uriktige opplysninger om eiendommen. Dette gjelder likevel bare dersom man kan gå ut ifra at det virket inn på avtalen at opplysningen ikke ble gitt eller at mangelskravet ikke blir rettet i tide på en tydelig måte.
Boligen kan ha en mangel etter avhendingsloven § 3-3 andre ledd, dersom det er avvik mellom opplyst og faktisk innvendig areal, forutsatt at avviket er på 2% eller mer og minimum 1 kvm.
Ved beregning av et eventuelt prisavslag eller erstatning må kjøper selv dekke tap/kostnader opptil et beløp på kr 10 000 (egenandel).
Ikke-forbruker (næringsdrivende) – definisjon
Hvis kjøper er en juridisk person, eller en fysisk person som hovedsakelig handler som ledd i næringsvirksomhet, vil kjøpet ikke anses som et forbrukerkjøp.
Ikke-forbruker – avtalevilkår
Eiendommen har en mangel dersom den ikke er i samsvar med kravene som følger av avtalen.
Eiendommen selges «som den er», og selgers ansvar utover det konkret avtalte er da begrenset etter avhendingsloven § 3-9, første ledd andre setning.
Avhendingsloven § 3-3 andre ledd fravikes, og hvorvidt boligens arealsvikt utgjør en mangel vurderes etter avhendingsloven § 3-8.
Informasjon om kjøpers undersøkelsesplikt, herunder oppfordringen om å undersøke eiendommen nøye, gjelder også for kjøpere som ikke anses som forbrukere.
Det forutsettes at hjemmel overføres til kjøper. Hvis kjøper ikke ønsker hjemmelsoverføring av eiendommen, må det tas forbehold om dette i budet.
Meglers vederlag
Meglers vederlag betales av selger og er avtalt til:
Vederlag: 1,30 % av salgssummen inkl. eventuell fellesgjeld. Minimumsprovisjon er kr 35 000,00
Vederlag:
Kontroll av hjemmel og heftelser kr 3 900,00
Markedsføringspakke kr 29 900,00
Oppgjør kr 8 900,00
Tilrettelegging kr 19 900,00
Visninger/overtakelse kr. 4.000 pr visning/overtakelse)
Utlegg:
Eierskiftegebyr forretningsfører (selger) kr 6 725,00
Innhenting av informasjon forretningsfører og kommune kr 7 500,00
Tinglysing sikring kr 545,00
Andre utgifter:
AX tilstandsrapport leilighet kr 10 750,00
Foto kr 4 600,00
Vi er opptatt av verdiskapning, og har knyttet til oss samarbeidspartnere som skal sikre våre kunder de beste produkter og tjenester;
• I forbindelse med forberedelse av salget, innhenter vi informasjon om eiendommen hovedsakelig fra vår samarbeidspartner Amibita.
• Gjensidige leverer boligselgerforsikring og tilbyr bygningsforsikring
• Boligkjøperforsikring leveres av Hiscox og med Sedgwick som skadebehandler, og er formidlet gjennom Gjensidige.
• BN bank tilbyr finansieringsløsninger
• Vår avdeling Krogsveen Pluss tilbyr flyttetjenester som utvask, visningsvask, lager, tømming og transport av flyttelass, i tillegg til å formidle kontakt med Flip for overflateoppussing.
• I forbindelse med overtagelse av eiendommen tilbyr Overo avtale om strøm, alarm og bredbånd.
• Krogsveen er, sammen med øvrige bransjeaktører, medeier i Bomega AS som tilbyr den digitale annonseringsplattformen Hjem.
Opplysninger om oppdraget
Oppdragsnummer 59-0027/26
Eiendomsmegler Krogsveen AS, avd. Skedsmokorset
Furuholtet 1, 2020, SKEDSMOKORSET
950 007 613
Oppdragets KR-kode KR59.2627
Dato
Sist oppdatert: 23. april 2026 kl. 15:49
Dokumenter
Dokumenter
PDF – 926 KB
PDF – 168 KB
PDF – 312 KB
PDF – 29 KB
PDF – 127 KB
PDF – 392 KB
Område
Legg til steder som er viktige for deg
Visning
Unngå doble boligrenter
Vi tilbyr gunstig forsikring.
Vurderer du utleie?
Få et tilbud fra Utleie KrogsveenHva koster lånet?
Sjekk estimert lånekostnadVil du varsles om lignende boliger?
Ved å lagre ditt boligsøk hos oss får du beskjed når vi har en bolig som ligner denne, før den legges ut på markedet!
































