Skullerudveien 91
4 190 000 kr
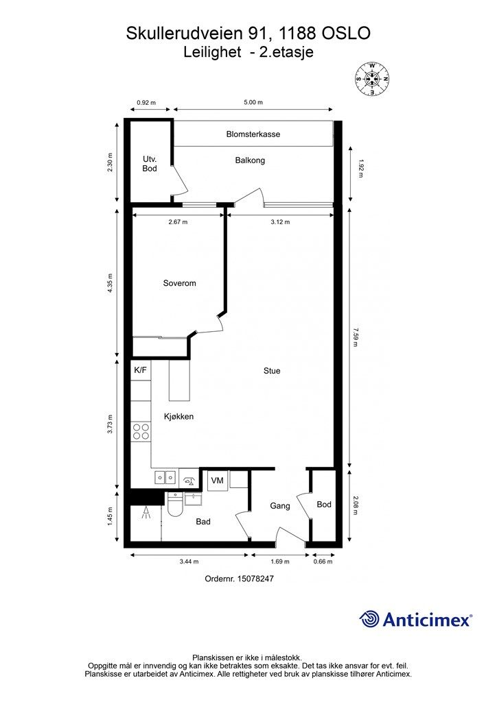
58 m²
1 soverom
Solgt

Presenteres av
Blenor HadergjonajSkullerud
Stor & luftig 2-roms selveierleilighet. Solrik balkong med flott utsikt. Ingen innsyn. Garasjeplass. Nær marka.
Prisantydning
4 190 000 krOmkostninger
115 790 krTotalpris
4 305 790 kr
Pris
Bruksareal
64 m²BRA-I (internt bruksareal)
58 m²BRA-E (eksternt bruksareal)
6 m²TBA (terrasse-balkongareal)
10 m²
Areal
Etasje
2Byggeår
1989Soverom
1 soveromBad
1 badType
EierleilighetEierform
EierseksjonFasiliteter
Garasje/P-plass og Balkong/TerrasseFellesutgifter
2 531 krEnergimerke
Rød E
Nøkkelinfo
Unngå doble boligrenter
Vi tilbyr gunstig forsikring.
Vurderer du utleie?
Få et tilbud fra Utleie KrogsveenHva koster lånet?
Sjekk estimert lånekostnadDette liker selger best ved boligen
Veldig lave felleskostnader som inkluderer varmtvann, internett og TV. Ingen ekstra kostnad for parkeringsplassen man har heller. Det er veldig billig og forutsigbart å bo her og har aldri møtt noen ubehagelige overraskelser. Er god komfort, og et rolig, behagelig område med naboer som flagger, har godt stelte hager, og har mye koselig vinterbelysning. Spesielt fint at naturen er så tett på samtidig som koblingen med T-bane og buss til både sentrum og Gardermoen som alle går fra Skullerud T. Det er også mer enn nok lagringsplass, med bod bak parkeringsplassen i garasjen og bod på balkongen.
Beskrivelse
Kort om eiendommen
Velkommen til Skullerudeien 91!
Stor 2-roms leilighet med sørvendt balkong, masse sol og flott utsikt. Fredfullt og rolig med bilfrie fellesområder nær marka. Fra leiligheten er det kort gangavstand til offentlig kommunikasjon og dagligvarebutikker. Leiligheten holder en gjennomgående god standard.
Høydepunkter:
Stor 2-roms selveier
Garasjeplass med el-lader
Lave felleskostnader
Ingen forkjøpsrett
Vestvendt balkong med gode solforhold
Stue med gode lysforhold
Soverom med god garderobeplass
2 medfølgende boder
Nær marka med flotte tur- og skimuligheter
Nærhet til Østensjøvannet, Østmarka og Nøklevann
Nær buss, T-bane og dagligvare
Velkommen til hyggelig visning!
Område
Legg til steder som er viktige for deg
På flyttefot? Tenk kjøp og salg samtidig.
Få din egen rådgiver gjennom hele kjøps- og salgsprosessen. Det starter med en verdivurdering.
Unngå doble boligrenter
Vi tilbyr gunstig forsikring.
Vurderer du utleie?
Få et tilbud fra Utleie KrogsveenHva koster lånet?
Sjekk estimert lånekostnadVil du varsles om lignende boliger?
Ved å lagre ditt boligsøk hos oss får du beskjed når vi har en bolig som ligner denne, før den legges ut på markedet!
På flyttefot? Slik gjør vi det enklere for deg
Skreddersydd flyttepakke
Vi fikser håndverkere, vask, pakking, lagring og transport, og legger ut for utgiftene underveis.
Hjelp med både kjøp og salg
Hos oss har du din egen rådgiver gjennom hele kjøps- og salgsprosessen.
Hjelp til finansiering
Vårt samarbeid med BN Bank sikrer deg rask og løsningsorientert hjelp, til konkurransedyktige betingelser.



































