Herkulesvegen 1B
1 490 000 kr
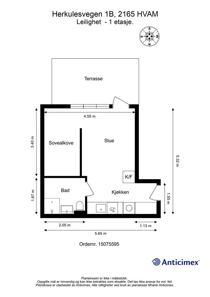
26 m²
Solgt

Innflytningsklar 1-roms på Neskollen – nyrenovert, biloppstillingsplass og elbillader!
Prisantydning
1 490 000 krAndel fellesgjeld
82 352 krOmkostninger
11 040 krTotalpris
1 583 392 kr
Pris
Bruksareal
29 m²BRA-I (internt bruksareal)
26 m²BRA-E (eksternt bruksareal)
3 m²TBA (terrasse-balkongareal)
10 m²
Areal
Etasje
1Byggeår
2001Bad
1 badType
AndelsleilighetEierform
AndelFasiliteter
Garasje/P-plass og Balkong/TerrasseFellesutgifter
3 398 krEnergimerke
Rød C
Nøkkelinfo
Unngå doble boligrenter
Vi tilbyr gunstig forsikring.
Vurderer du utleie?
Få et tilbud fra Utleie KrogsveenHva koster lånet?
Sjekk estimert lånekostnadBeskrivelse
Kort om eiendommen
Lys og arealeffektiv 1-roms leilighet på bakkeplan med sovealkove og flotte solforhold, beliggende i et rolig og ettertraktet område på populære Neskollen. Her bor du med kort vei til dagligvare og enkel adkomst til Årnes, Oslo og Gardermoen, perfekt for en praktisk og komfortabel hverdag. Leiligheten ble helrenovert i 2023 og fremstår som svært moderne, med stilrent kjøkken fra Norema og delikat baderomsinnredning fra Megaflis. Smarthus-styring av lys i stue og sovealkove gir en moderne touch. Det medfølger egen parkeringsplass med elbillader og en bod i etasjen under leiligheten.
Her bor du bekymringsfritt med det meste inkludert i fellesutgiftene, som blant annet TV og internett, kommunale avgifter, bygningsforsikring, renter og avdrag på andel fellesgjeld, samt drift av borettslaget
Område
Legg til steder som er viktige for deg
På flyttefot? Tenk kjøp og salg samtidig.
Få din egen rådgiver gjennom hele kjøps- og salgsprosessen. Det starter med en verdivurdering.
Unngå doble boligrenter
Vi tilbyr gunstig forsikring.
Vurderer du utleie?
Få et tilbud fra Utleie KrogsveenHva koster lånet?
Sjekk estimert lånekostnadVil du varsles om lignende boliger?
Ved å lagre ditt boligsøk hos oss får du beskjed når vi har en bolig som ligner denne, før den legges ut på markedet!

