Nordbergveien 124
5 350 000 kr
199 m²
3 soverom
Komplett salgsoppgave

Velholdt enebolig fra 2012 med 3 sov, 2 bad og 2 stuer. Store, solrike utearealer. Dobbelgarasje. Tilbaketrukket nabolag
Prisantydning
5 350 000 krOmkostninger
134 840 krTotalpris
5 484 840 kr
Pris
Bruksareal
199 m²BRA-I (internt bruksareal)
199 m²TBA (terrasse-balkongareal)
163 m²
Areal
Etasje
2Byggeår
2012Soverom
3 soveromBad
2 badTomteareal
834 m² (eiet)Type
Enebolig - FrittliggendeEierform
EietFasiliteter
Garasje/P-plass og Balkong/TerrasseEnergimerke
Oransje B
Nøkkelinfo
Unngå doble boligrenter
Vi tilbyr gunstig forsikring.
Vurderer du utleie?
Få et tilbud fra Utleie KrogsveenHva koster lånet?
Sjekk estimert lånekostnadBeskrivelse
Kort om eiendommen
- Familievennlig og praktisk planløsning med tre soverom + kontor innredet som soverom, to bad og to stuer
- Velholdt standard som hovedsakelig er fra byggeåret
- Omfangsrik kjøkkeninnredning med alle hvitevarer integrert
- Underetasje med egen varmtvannsbereder og mulighet for utvendig adkomst
- Sentralstøvsuger, balansert ventilasjon, luft-luft varmepumpe og vedovn
- Altan og terrasser på til sammen over 100 kvm.
- Dobbelgarasje med innvendig bod og motoriserte leddporter
- Skogsområder med turmuligheter like utenfor døren
- Gangavstand til grendeskole med SFO
- Få minutter med bil til dagligvareforretninger, sentrum og E6
Innhold og byggemåte
Innhold og byggemåte
Eiendommen
Nordbergveien 124, 1738 BORGENHAUGEN
Kommunenummer 3105, gårdsnummer 1044, bruksnummer 74, ideell andel 1/1
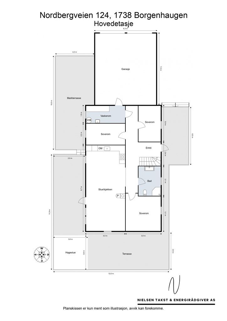
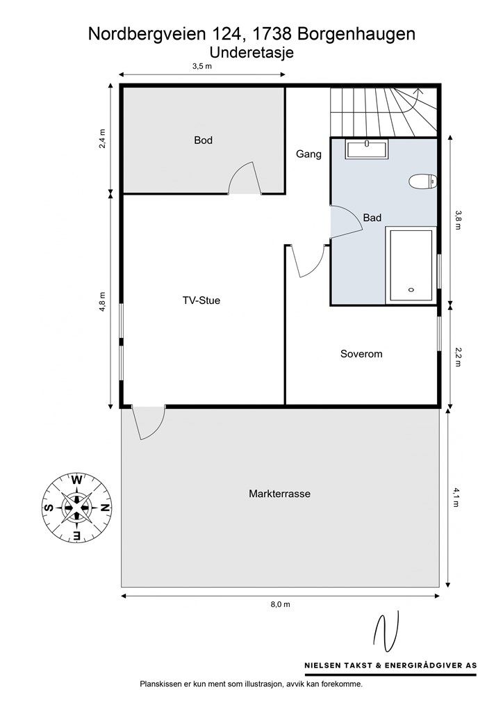
Innhold
Totalt bruksareal BRA: 199 kvm
BRA-i:
Enebolig:
Underetasje - 52 kvm: Gang, bad, bod, soverom og tv-stue
1. etasje - 147 kvm: Entré, bad, vaskerom, 3 soverom, stue/kjøkken og garasje
Åpent areal:
Enebolig:
Underetasje - 33 kvm: Markterrasse
1. etasje - 130 kvm: Terrasse
Vedlagte plantegninger er ikke målbare. De oppgitte arealer er hentet fra rapport med befaringsdato 12.03.2026 utført av Takstmann Ole-Martin Nielsen. Arealene er beregnet og rom er definert etter dagens faktiske bruk, uavhengig av hva som er godkjent av bygningsmyndighetene.
Her kan du vise til punkt om ferdigattest og beskrive konsekvens under det punktet.
Byggemåte
Selger har fått utarbeidet en tilstandsrapport, dvs. en teknisk gjennomgang av boligen hvor eventuelle avvik, risiko for kjøper og prisoverslag for hva som bør gjøres av oppgradering, er skissert. Se særskilt TGIU (tilstandsgrad ikke undersøkt), samt TG2 og TG3 som viser hva som er boligens normale slitasje, alder og type, hva som er avvik fra dette og hva som bør/må utbedres. Rapporten og selgers egenerklæring er en del av salgsoppgaven og må leses nøye før bud inngis. Kjøper overtar ansvaret for de opplysninger som fremkommer av salgsdokumentasjonen, og kan ikke gjøre gjeldende som mangel noe som burde vært kjent eller som ikke kan anses å ha betydning for avtalen.
Bygningen er iht. tilstandsrapporten oppført i tre. Enebolig oppført i 2013. Bygningen er oppført på grunnmur av betong. Etasjeskille av trebjelkelag. Yttervegger antas oppført med konstruksjonsvirke av tre, utvendig kledd med liggende kledning. Takkonstruksjon med W-takstoler av tre, saltak, tekket med takstein e.l (ikke besiktiget). Les for øvrig mer om byggemåte og den tekniske tilstanden i rapporten.
Det gjøres spesielt oppmerksom på:
Det er gitt tilstandsgrad 2 (TG2- avvik som kan krever tiltak) på følgende:
Utvendig > Veggkonstruksjon: Dagens krav til isolasjon og tetthet er strengere enn de kravene som gjaldt da denne bygningen ble oppført. Type/mengde isolasjon er ikke kjent, men antas å være oppført etter byggeårets normer og krav. Ytterveggene er visuelt befart uten inngrep i konstruksjonen.
Utvendig > Takkonstruksjon/loft: Punktet må sees i sammenheng med taktekking. Hele loftet er ikke besiktiget som følge av manglende gangbart gulv. Konstruksjonen er derfor besiktiget fra loftsluker. Det kan være fuktskjolder avvik som derfor ikke fremkommer av denne rapporten. For at dette skal kunne avdekkes i sin helhet fordrer dette gangbart gulv.
Hovedetasje > Bad > Overflater, vegger og himling: Himling med malt MDF-plater, innfelt downlights. Vegger med fliser. Det er ikke direkte vannpåkjenning på veggene, noe som er bra. Ved endret bruk kan det medføre en dårligere tilstandsgrad.
Hovedetasje > Bad > Overflater Bad: Det er påvist at høydeforskjellen mellom topp slukrist og gulv ved dørterskel er mindre enn anbefalt. Målt høydeforskjell var ca. 5 mm, mot anbefalt minimum 25 mm. Utenfor dusjsonen ble det registrert manglende fall på gulvet. Det bør etableres tilstrekkelig høydeforskjell mellom topp slukrist og gulv ved dørterskel, samt utbedres fall på gulvet utenfor dusjsonen, for å redusere risikoen for vannskader ved eventuell lekkasje eller vannsøl.
Hovedetasje > Bad > Sluk, membran og tettesjikt: Mer enn halvparten av forventet brukstid er passert på membranløsningen. Vurdering basert på alder. Tilstandsgrad 2 gis med bakgrunn i at mer enn halvparten av forventet brukstid for membran/tettesjikt er passert.
Hovedetasje > Bad > Sanitærutstyr og innredning: Det er påvist riss/sprekker i utstyr på våtrommet. Det er ikke behov for utbedringstiltak. Overvåk konstruksjonen jevnlig, ved forverring bør det utføres tiltak.
Vaskerom > Overflater vegger og himling: Det bør vurderes å skifte ut MDF-plater i våtsonen med mer egnet materiale for å hindre videre fuktskader. Fuktsvelling kan føre til redusert levetid på materialene og økt risiko for råte.
Vaskerom > Overflater gulv: Overflatene ser visuelt bra ut, tilsstandsgraden settes av hensyn til alder. Det anses ikke væ re nødvendig med utbedringstiltak for å lukke dette avviket. Det anbefales at det gjøres en kontroll av fuger minimum en gang i året for å være sikker på at det ikke dannes noe riss i fuger e.l.
Vaskerom > Sluk, membran og tettesjikt: Smøremembran med ukjent utførelse. Byggeår tilsier at det er brukt smøremembran med tilhørende mansjetter. Mer enn halvparten av forventet brukstid er passert på membranløsningen.
Underetajse > Bad > Overflater vegger og himling: Overflatene ser visuelt bra ut, tilstandsgrad settes av hensyn til alder. Det er ikke behov for tiltak, da det ikke er direkte vannpåkjenning på veggene.
Underetasje > Bad > Overflater gulv: Gulv med fliser. Det er påvist at høydeforskjellen mellom topp slukrist og gulv ved dørterskel er mindre enn anbefalt. Målt høydeforskjell var ca. 15 mm, mot anbefalt minimum 25 mm. Utenfor dusjsonen ble det registrert manglende fall på gulvet. Det bør etableres tilstrekkelig høydeforskjell mellom topp slukrist og gulv ved dørterskel, samt utbedres fall på gulvet utenfor dusjsonen, for å redusere risikoen for vannskader ved eventuell lekkasje eller vannsøl.
Underetasje > Bad > Sluk, membran og tettesjikt: Smøremembran med ukjent utførelse. Byggeår tilsier at det er brukt smøremembran med tilhørende mansjetter. Mer en halvparten av forventet bruksalder av forventet brukstid er passert på membranløsningen.
Hovedetasje > Stue/kjøkken > Overflater og innredning: Det ble registrert fuktsvelling på kjøkkenfronter, samt skade på benkeplaten. Det bør gjennomføres lokal utbedring eller utskiftning av skadede kjøkkenfronter og benkeplate for å hindre videre fuktskader og forringelse av materialene.
Tekniske installasjoner > Vannledninger: Det ble registrert manglende tettemuffe i enden av varerør på rør-i-rør-system i kjøkkenbenken. Det bør monteres tettemuffe i enden av varerøret på rør-i-rør-systemet under kjøkkenbenken for å hindre vannlekkasje inn i konstruksjonen ved en eventuell skade på vannrøret. Manglende tettemuffe øker risikoen for fuktskader og følgeskader på bygningsdeler.
Tekniske installasjoner > Varmtvannstank: Ca. 200 liters varmtvannsbereder plassert på vaskerom og under trapp til underetasje. Det er ikke påvist tilfredsstillende el-tilkobling av varmtvannstank ihjt. gjeldene forskrift.
Tomteforhold > Fuktisikring og drenering: Punktet må sees i sammenheng ‘Rom under terreng’. Drenering/utv. fuktsikring fra byggeår. Grunnet skjult i byggegrunn er materialvalg ikke mulig å konstantere. Det bør monteres topplist på grunnmursplasten, samt sørges for korrekt avslutning i terreng for å hindre vanninntrengning bak plasten. Konsekvensen av manglende topplist og feil avslutning er økt risiko for fuktinntrengning i grunnmuren, som kan føre til skader på konstruksjonen.
Tomteforhold > Terrengforhold: Det er påvist dårlig fall eller flatt terreng inn mot grunnmur og dermed muligheter for større vannansamlinger. Ytterligere undersøkelser anbefales.
Se supplerende tekst i tilstandsrapporten. Kjøper overtar ansvar og risiko for dette.
Utdrag fra selgers egenerklæringsskjema:
-Har du andre opplysninger om boligen eller eiendommen utover det du har svart?
Ja. Røret fra oppvaskmaskinen løsnet under tømming av vann etter endt oppvaskprogram. Feilen ble utbedret umiddelbart. I forbindelse med hendelsen oppstod det noe fukt under kjøkkeninnredningen. Som følge av dette ble gulvet på kjøkkenet samt sokkellist til kjøkkeninnredningen skiftet ut. For å sikre en helhetlig og sømløs overgang i boligen, ble det samtidig lagt nytt gulv i gangen, ettersom kjøkken og gang har åpen løsning.
Standard
Boligen ble oppført med moderne standard for byggeåret og er i dag velholdt, noe som også gjenspeiles i tilstandsrapport.
Det interne bruksarealet på hele 199 kvm. er velutnyttet til en familievennlig og praktisk romløsning. Stue i begge etasjer kombinert med totalt tre soverom + innredet rom som soverom, gir familien gode muligheter for så vel felles som individuelt opphold.
I første etasje er stuen og kjøkkenet sømløst knyttet sammen i en åpen sosial sone på 35 kvm. hvor det er god plass til felles opphold. Stuen inneholder for øvrig både en energieffektiv varmepumpe og en like stemningsfremmende som varmende vedovn montert.
Kjøkkenets innredning er en omfangsrik og stilsikker løsning fra IKEA som i tillegg til sin rent praktiske funksjon også fyller rollen som et stort møbel. Innredningen har mange oppbevaringsmuligheter og hendige arbeidsflater rundt vask og kokesone. Førstnevnte er i kompositt og installert i senere år. Hvitevarene er alle integrert, stekeovn i hendig benkehøyde.
Soverommene i første etasje er samlet omkring gangen og distansert fra den sosiale sonen. Innerst i gangen finnes de naturlige barnerommene som med rundt 9 kvm. gulvflate hver gir barna god plass til lek og opphold i egne omgivelser. Hovedsoverommet er oppmålt til over 11 kvm. og utstyrt med skyvedørsgarderobe. Ytterligere et rom innredet som soverom på ca. 8 kvm. inngår i underetasjen.
Romløsningen med bad i begge etasjer er både praktisk og bekvemmelig i hverdagen. Badet i første er utstyrt med dusjkabinett og omfangsrike Vikingbad møbler med mange oppbevaringsmuligheter. Underetasjens bad ble pusset opp i 2015 og er utstyrt med blant annet hjørneboblekar med sitteplass for to personer. Begge bad har elektrisk gulvvarme.
I tillegg til badene inneholder boligen et teknisk rom kombinert som vaskerom i første etasje. Dette er meget praktisk innredet til formålet med blant annet flere skap, utslagsvask og en langstrakt arbeidsbenk. Tekniske installasjoner inkluderer sentralstøvsuger og varmtvannsbereder på ca. 200 liter fra 2012. En separat varmtvannsbereder av samme volum ble montert i underetasjen i 2015. Verdt å fremheve er ikke minst også døren mellom vaskerommet og garasjen gjør det mulig å gå tørrskodd til og fra bilene - upåvirket av været.
Overflater og innredninger:
Gulv: Laminat og fliser.
Innervegger: MDF-plater, fliser og våtromsplater.
Himlinger: MDF-panel.
Kjøkken: Skapinnredning med glatte og profilerte hvite fronter samt vitrineskap. Laminerte grå benkeplater. Nedfelt vask i sort kompositt med ett-greps blandebatteri. Integrert platetopp, stekeovn, mikrobølgeovn, oppvaskmaskin og kombiskap. Veggmontert sort ventilator. Glassplate på vegg over vask og platetopp.
Bad 1. etasje: Skapinnredning med glatte hvite fronter. Helstøpt servant med ett-greps blandebatteri. Speilskap med overbelysning. Dusjkabinett. Gulvmontert klosett.
Bad underetasje: Servantskap med glatte mørke fronter og heldekkende servant med ett-greps blandebatteri. Speilskap med overbelysning. Hjørnebadekar med massasje-dyser og hånddusj. Gulvmontert klosett.
Løsøre og tilbehør
Oppvaskmaskin, integrert kjøleskap/fryser, stekeovn, platetopp og mikrobølgeovn medfølger salg.
Knagg i gang medfølger ikke.
Vi viser til liste fra Norges Eiendomsmeglerforbund som gjelder fra 01.01.2020 angående løsøre og tilbehør.
Oppvarming
Boligen varmes opp av elektrisk oppvarming, luft-til-luft varmepumpe og vedovn. Elektrisk gulvvarme på bad.
Dersom beboelsesrom ikke har vegg- eller fastmonterte varmekilder ved visning, følger dette heller ikke med.
Ferdigattest/brukstillatelse
Det foreligger ferdigattest på eiendommen datert 05.01.2013. Ferdigattesten gjelder oppføring av enebolig med garasje.
Det er gjort endringer i planløsningen på huset sammenlignet med de godkjente byggetegningene, og etter at ferdigattesten ble gitt:
Soverom ved entré i 1. etasje er opprinnelig byggemeldt som kjøkken, jf. byggetegninger datert 19.10.2010.
Bad i underetasje er opprinnelig byggemeldt som soverom, jf. byggetegninger datert 19.10.2010.
Store deler av soverom i underetasjen er opprinnelig byggemeldt som kontor, jf. byggetegninger datert 19.10.2010.
Kjøper overtar eiendommen slik den framstår på visning.
Tinglyste heftelser og rettigheter
Det er tinglyst 2 servitutter på eiendommen. Disse omhandler blant annet bestemmelse om veg, samt rett til å legge og drifte rør for vannbåren varme og signalkabler ifm. biovarmeanlegg.
Servituttene vil følge eiendommen. Kjøpers bank vil få prioritet etter ovennevnte heftelser og servitutter.
Eventuell adgang til utleie
Eiendommen har ikke separat utleieenhet. Det vil normalt være anledning til utleie av hele eiendommen eller enkeltrom, såfremt utleiearealet er bygningsmessig godkjent for varig opphold og har forsvarlige radonnivåer.
Diverse
Vi er opptatt av verdiskapning, og har knyttet til oss samarbeidspartnere som skal sikre våre kunder de beste produkter og tjenester;
• I forbindelse med forberedelse av salget, innhenter vi informasjon om eiendommen hovedsakelig fra vår samarbeidspartner Amibita.
• Gjensidige leverer boligselgerforsikring og tilbyr bygningsforsikring
• Boligkjøperforsikring leveres av Hiscox og med Sedgwick som skadebehandler, og er formidlet gjennom Gjensidige.
• BN bank tilbyr finansieringsløsninger
• Vår avdeling Krogsveen Pluss tilbyr flyttetjenester som utvask, visningsvask, lager, tømming og transport av flyttelass, i tillegg til å formidle kontakt med Flip for overflateoppussing.
• I forbindelse med overtagelse av eiendommen tilbyr Overo avtale om strøm, alarm og bredbånd.
• Krogsveen er, sammen med øvrige bransjeaktører, medeier i den digitale annonseringsplattformen Hjem som eies av Bomega AS.
Beliggenhet og tomteforhold
Beliggenhet og tomteforhold
Beliggenhet
Boligen er oppriktig tilbaketrukket i svært fredelige omgivelser, innerst i Nordbergveien. Nabolaget består både av helt ny og veletablert boligbebyggelse, og er omgitt av et større skogsområde som kan være spennende for turglade å utforske.
I nærmiljøet finnes både Navestad grendeskole med 1. til 4. trinn samt SFO, og idrettsområde tilknyttet Navestad IF. Til skolen er det om lag halvannen kilometer å gå eller sykle langs hovedgatene, eller noe kortere om turen legges på stiene gjennom skogen.
Dagligvareforretninger er lett tilgjengelig på Årum, ved av- og påkjøring til E6 som er gode fem minutter unna. Ytterligere et fåtall minutters kjøring på E6 tar deg frem til Alvim, der det blant annet finnes kjøpesenter og et bredt shoppingtilbud. Sentrumskjernen med alle sine forretninger og fasiliteter er innenfor om lag 10 minutter.
Adkomst
Se Google maps - det er enkelt å finne frem i kartet. Det vil bli skiltet med Krogsveen visningsskilt ved fellesvisninger.
Barnehager, skoler og fritid
Barnehager:
Skogro barnehage (0-5 år) 1.8 km
Trollklubben Torp (1-5 år) 3 km
Baneveien barnehage (1-5 år) 3.3 km
Skoler:
Navestad barneskole (1-4 kl.) 1.5 km
Hafslund barneskole (1-7 kl.) 2.9 km
Hafslund ungdomsskole (8-10 kl.) 2.9 km
Kruseløkka ungdomsskole (8-10 kl.) 5.6 km
Borg videregående skole 5.4 km
St. Olav videregående skole 5.4 km
Informasjon om tilhørende skolekretser er hentet fra Prognosesenteret som dataleverandør, og tilhørigheten kan årlig endres av kommunen. Dersom skole- og barnehagetilbud er av betydning for kjøpet, ber vi om at det rettes en særskilt henvendelse til kommunen/bydelsadministrasjonen for oppdatert informasjon.
Beskrivelse av tomt
Eiet tomt på 834 kvm. Tomten er opparbeidet med gruset gårdsplass, diverse beplantning og naturtomt.
Parkering
Parkering i dobbel garasje og på gårdsplass.
Vei, vann og avløp
Eiendommen har adkomst via kommunal vei.
Eiendommen er tilknyttet kommunalt ledningsnett via private stikkledninger. Eier er selv ansvarlig for private stikkledninger til boligen.
Regulerings-og arealplaner
Eiendommen er regulert til boliger, park og kjørevei i henhold til reguleringsplan Bede - Navestad datert 13.02.1979 med tilhørende reguleringsbestemmelser.
Eiendommen omfattes også av Kommuneplanens arealdel 2024-2036 datert 10.10.2024 med formål: bebyggelse og anlegg.
Eiendommen ligger helt eller delvis innenfor et område med mulighet for marin leire, og grunnen kan derfor bestå av løsmasser, herunder kvikkleire.
Utsnitt av plan med tilhørende bestemmelser kan fås ved henvendelse til megler.
Økonomi
Økonomi
Kommunale utgifter
Kommunale avgifter er kr 24.047,- for inneværende år. I dette inngår gebyr for vann, avløp og renovasjon.
Eiendomsskatten er kr 7 982,- for inneværende år.
Nåværende eier har et strømforbruk som tilsvarer ca. kr 12-13.000,- pr. år. / 16.283 kwh. pr. år. Det er tegnet Norgespris.
Boligen har en årlig forsikringspremie på kr 7 865,-
Boligen er tilknyttet Telia som leverandør av kabel-tv og internett. Avgiften er på kr 660,- pr. mnd. Dekoder medfølger ikke.
Boligen er tilknyttet alarmselskap. Det medfølger ikke abonnement.
Utgiftene er basert på nåværende eiers forbruk og avtaler.
Formuesverdi
Ved hjelp av skatteetatens boligkalkulator er boligens formuesverdi beregnet til kr. 1.807.100,- for fjoråret når boligen benyttes som primærbolig.
Formuesverdien er en gitt prosent av den beregnede markedsverdien. Beregnet markedsverdi er basert på Statistisk sentralbyrå (SSB) sine opplysninger om omsatte boliger. I beregningen tas det hensyn til boligens beliggenhet, areal, byggeår og boligtype.
Det er eier av boligen som fastsetter formuesverdien, jf. skatteforvaltningsloven § 9-1 første ledd, men skattemyndighetene kan kontrollere at verdien er satt riktig.
Formuesverdi skal ikke overstige:
Primærbolig: 25 % av beregnet eller dokumentert markedsverdi opp til kr. 10 000 000, og deretter 70 % av den overskytende markedsverdi.
Sekundærbolig: 100 % av beregnet eller dokumentert markedsverdi.
Formuesverdier som overstiger disse grensene, kan kreves nedjustert av eier.
Fra 2026 har Stortinget vedtatt en oppdatert modell for beregning av formuesverdi for primærbolig, så avvik kan forekomme.
For mer informasjon se skatteetaten.no
Omkostninger
5 350 000,00 Prisantydning
Omkostninger
133 750,00 Dokumentavgift til staten (2,5% av kjøpesum)
545,00 Tinglysing panterettsdokument
545,00 Tinglysing skjøte
--------------------------------------------------------
134 840,00 Omkostninger totalt
--------------------------------------------------------
5 484 840,00 Totalpris inkl. omkostninger
--------------------------------------------------------
Tilbud om lånefinansiering
Megler formidler gjerne kontakt med rådgiver hos vår samarbeidspartner BN Bank. De har konkurransedyktige betingelser samt rask og løsningsorientert behandling av din lånesøknad. Krogsveen mottar et honorar dersom lån opprettes.
Betalingsbetingelser
Kjøpesum inkludert omkostninger, samt pantedokument tilknyttet eventuelt lån, skal være disponibelt hos megler 2 virkedager før overtagelsen.
Annen viktig informasjon
Annen viktig informasjon
Eier
Ida Bålerud Ultvedt og Oskar Daniel Aronsen
Overtakelse
Etter nærmere avtale.
Boligselgerforsikring
Selger har i forbindelse med salget tegnet boligselgerforsikring levert av Gjensidige.
Boligselgerforsikringen dekker selgers ansvar etter avhendingsloven begrenset oppad til kr 14 millioner. Dersom kjøper oppdager forhold ved eiendommen som hen mener utgjør en mangel ved eiendommen, vil Gjensidige behandle reklamasjonen på vegne av selger. Forsikringsvilkår kan fås ved henvendelse til megler.
Vedlagt salgsoppgaven følger selgers egenerklæringsskjema og tilstandsrapport. Interessenter må sette seg inn i dokumentene før bud inngis.
Boligkjøperforsikring
Innen kontraktsmøtet må kjøper ta stilling til om det ønskes å bestille Boligkjøperpakken gjennom Gjensidige. I denne gunstige pakken er boligen ferdig forsikret og inkluderer rettshjelpsforsikring, også kalt Boligkjøperforsikring. Rettshjelpsforsikring gir trygghet og tilgang på profesjonell juridisk hjelp dersom det oppdages uventede feil eller mangler det første året etter overtagelse. Forsikringsselskapet behandler i så fall ethvert mangelskrav kjøper måtte ha overfor selger.
Boligkjøperpakken inkluderer bygningsforsikring for hus og hytte, innboforsikring, flytteforsikring og dobbel rentedekning - i situasjoner hvor kjøper ikke får solgt nåværende primærbolig.
Kjøper mottar ingen særskilt faktura for Boligkjøperpakken da kostnaden det første året legges til kjøpesummen for boligen. Det gjøres oppmerksom på Krogsveen mottar et honorar for denne formidlingen.
Produktark for Boligkjøperpakken ligger vedlagt i salgsoppgaven.
Dersom ikke boligkjøperpakke ønskes kan kun rettshjelpsforsikring, også kalt boligkjøperforsikring, tegnes særskilt via megler. Rettshjelpsforsikringen varer i 5 år fra overtagelse og leveres gjennom Gjensidige. Ta kontakt med megler for ytterligere informasjon.
Selskap og privatpersoner som driver med kjøp/salg/utvikling som ledd i egen næringsvirksomhet kan ikke tegne boligkjøperpakke eller rettshjelpsforsikring.
Budgivning
Forbrukerinformasjon om budgivning er vedlagt denne salgsoppgaven og er også på vår hjemmeside Krogsveen.no. Alle bud og budforhøyelser må inngis skriftlig. I tillegg må legitimasjon være fremlagt sammen med signatur fra budgiver.
Vi oppfordrer til å gi bud elektronisk via GI BUD-knappen på eiendommens hjemmeside på Krogsveen.no. Da vil samtlige vilkår bli oppfylt.
Eventuelle forhøyelser eller endringer av budet kan bekreftes pr SMS eller på e-post. Vi oppfordrer alltid til å kontakte megler pr. telefon i tillegg da forsinkelser i SMS og e-post kan forekomme.
For at budene skal kunne bli behandlet og videreformidlet skriftlig til alle involverte parter, må alle bud ha en tilstrekkelig lang akseptfrist, jf. eiendomsmeglingsforskriften § 6-3.
Selger må også skriftlig akseptere budet før aksept kan formidles til budgiver. Akseptfrist bør derfor være på minimum 30 minutter, og budforhøyelser må derfor skje i god tid før fristens utløp.
Bud i forbrukerforhold kan uansett ikke settes med kortere frist enn kl. 12.00 første virkedag etter siste annonserte visning. I tillegg kan ikke budet ha forbehold om at det skal holdes hemmelig ovenfor øvrige interessenter. Megler har iht lov om eiendomsmegling ikke anledning til å videreformidle disse budene, og de vil dermed heller ikke bli journalført.
Etter at eiendommen er solgt vil kjøper og selger få tilsendt budjournal. Øvrige budgivere kan få utlevert kopi av budjournalen i anonymisert form.
Hvitvaskingsreglene
I henhold til lov om hvitvasking og terrorfinansiering har megler plikt til å gjennomføre kontrolltiltak overfor kunder, herunder fullmektiger. Dette innebærer bl.a. å bekrefte kunders og reelle rettighetshaveres identitet på bakgrunn av fremvist gyldig legitimasjon eller på annen godkjent måte, samt å innhente opplysninger om kundeforholdets formål og tilsiktede art.
Dersom slike kundetiltak ikke kan gjennomføres, kan megler ikke etablere kundeforholdet eller utføre transaksjonen.
Hvis kjøper ikke bidrar til gjennomføring av kundekontrollen og dette fører til at transaksjonen blir forsinket eller ikke kan gjennomføres, vil dette ansees som mislighold av avtalen og gi selger rettigheter etter avhendingslova kapittel 5. I tilfeller der selger ikke bidrar til gjennomføring av løpende kundekontroll underveis i oppdraget, er det selger som misligholder sine forpliktelser etter avtalen og gi kjøper rettigheter etter avhendingslovens kapittel 4. Partene er selv ansvarlige for eventuelle kostnader og ansvar dette kan medføre. Eiendomsmegleren eller eiendomsmeglingsforetaket kan ikke holdes ansvarlig for de konsekvenser dette vil kunne få for partene eller andre som har interesser i eiendomshandelen.
Kjøper oppfordres til å innbetale kjøpesummen som ikke kommer fra låneinstitusjon i én samlet innbetaling fra egen konto i norsk bank. Megler har plikt til å melde fra til Økokrim om eiendomshandler som fremstår som mistenkelige. Melding sendes Økokrim uten at partene varsles.
Personopplysningsloven
I henhold til personopplysningsloven gjør vi oppmerksom på at interessenter kan bli registrert for videre oppfølging.
Lovanvendelse
Generelle bestemmelser
Salgsoppgaven er basert på de opplysningene selger har gitt til megler, den bygningssakyndiges tilstandsrapport, samt opplysninger innhentet fra kommunen, Kartverket og andre tilgjengelige kilder. Det er viktig at kjøper setter seg grundig inn i alle salgsdokumentene, herunder salgsoppgave, tilstandsrapport og selgers egenerklæring. Kjøper anses kjent med forhold som er tydelig beskrevet i salgsdokumentene, og slike forhold kan ikke påberopes som mangler. Dette gjelder uavhengig av om kjøper har lest dokumentene. Alle interessenter oppfordres til å undersøke eiendommen nøye, gjerne sammen med fagkyndig før bud inngis. Kjøper som velger å kjøpe usett kan ikke gjøre gjeldende som mangel noe han burde blitt kjent med ved undersøkelsen.
Dersom det er behov for avklaringer, anbefaler vi at interessenter rådfører seg med eiendomsmegler eller egne rådgivere før det legges inn bud.
En bolig som har blitt brukt i en viss tid, har vanligvis blitt utsatt for slitasje og skader kan ha oppstått. Slik bruksslitasje må kjøper regne med, og det kan avdekkes enkelte forhold etter overtakelse som nødvendiggjør utbedringer. Normal slitasje og skader som nødvendiggjør utbedring, er innenfor hva kjøper må forvente og vil ikke utgjøre en mangel.
Kjøper og selgers rettigheter og plikter reguleres av avtalen mellom partene, samt informasjonen som har vært tilgjengelig for kjøperen i forbindelse med handelen. Avtalen utfylles av avhendingsloven, og det gjelder ulike avtalevilkår avhengig av om kjøper er forbrukerkjøper eller ikke. Dette er nærmere beskrevet nedenfor.
På grunn av ulike avtalevilkår kan selger vurdere bud fra en som ikke er forbruker, ulikt fra en forbrukers bud. Dersom kjøper ikke er forbruker, er selger sitt mulige mangelsansvar begrenset fordi eiendommen selges "som den er". Selger kan ikke ta «som den er»- forbehold overfor en forbrukerkjøper. Selv et lavere bud fra en som ikke er forbruker kan foretrekkes fordi begrensningen i mulig mangelsansvar kan ha egenverdi for selger. Selger står fritt til å forkaste eller akseptere ethvert bud, og er for eksempel ikke forpliktet til å akseptere høyeste bud.
Budgiver skal i budskjema avgi egenerklæring om budgiver er forbruker eller næringsdrivende/ person som hovedsakelig handler som ledd i næringsvirksomhet. Budgivere får informasjon dersom andre bud er inngitt av en som ikke er forbruker.
Forbrukerkjøp - definisjon
Med forbrukerkjøp menes kjøp av eiendom når kjøperen er en fysisk person som ikke hovedsakelig handler som ledd i næringsvirksomhet.
Forbruker – avtalevilkår
Eiendommen har en mangel dersom den ikke er i samsvar med kravene som følger av avtalen, eller det foreligger brudd på bestemmelsene i avhendingsloven §§ 3-2 til 3-8. Hvis eiendommen ikke er i samsvar med det kjøperen må kunne forvente ut ifra alder, type og synlig tilstand, kan det være grunnlag for mangelskrav. Det samme gjelder hvis det er holdt tilbake eller gitt uriktige opplysninger om eiendommen. Dette gjelder likevel bare dersom man kan gå ut ifra at det virket inn på avtalen at opplysningen ikke ble gitt eller at mangelskravet ikke blir rettet i tide på en tydelig måte.
Boligen kan ha en mangel etter avhendingsloven § 3-3 andre ledd, dersom det er avvik mellom opplyst og faktisk innvendig areal, forutsatt at avviket er på 2% eller mer og minimum 1 kvm.
Ved beregning av et eventuelt prisavslag eller erstatning må kjøper selv dekke tap/kostnader opptil et beløp på kr 10 000 (egenandel).
Ikke-forbruker (næringsdrivende) – definisjon
Hvis kjøper er en juridisk person, eller en fysisk person som hovedsakelig handler som ledd i næringsvirksomhet, vil kjøpet ikke anses som et forbrukerkjøp.
Ikke-forbruker – avtalevilkår
Eiendommen har en mangel dersom den ikke er i samsvar med kravene som følger av avtalen.
Eiendommen selges «som den er», og selgers ansvar utover det konkret avtalte er da begrenset etter avhendingsloven § 3-9, første ledd andre setning.
Avhendingsloven § 3-3 andre ledd fravikes, og hvorvidt boligens arealsvikt utgjør en mangel vurderes etter avhendingsloven § 3-8.
Informasjon om kjøpers undersøkelsesplikt, herunder oppfordringen om å undersøke eiendommen nøye, gjelder også for kjøpere som ikke anses som forbrukere.
Det forutsettes at hjemmel overføres til kjøper. Hvis kjøper ikke ønsker hjemmelsoverføring av eiendommen, må det tas forbehold om dette i budet.
Meglers vederlag
Meglers vederlag betales av selger og er avtalt til:
Vederlag: 1,00 % av salgssummen
Vederlag:
Kontroll av hjemmel og heftelser kr 3 900,00
Markedsføringspakke kr 29 900,00
Oppgjør kr 8 900,00
Tilrettelegging kr 15 000,00
Visninger pr stk 1 900
Utlegg:
Innhenting av offentlig opplysninger Sarpsborg komm. inkl tegn kr 3 000,00
Tinglysing sikring kr 545,00
Andre utgifter:
Boligselgerforsikring Gjensidige Eiet - regnes av prisantydning kr 29 692,00
Foto PBF - dag + drone kr 6 250,00
Rapport fra takstmann kr 19 000,00
Vi er opptatt av verdiskapning, og har knyttet til oss samarbeidspartnere som skal sikre våre kunder de beste produkter og tjenester;
• I forbindelse med forberedelse av salget, innhenter vi informasjon om eiendommen hovedsakelig fra vår samarbeidspartner Amibita.
• Gjensidige leverer boligselgerforsikring og tilbyr bygningsforsikring
• Boligkjøperforsikring leveres av Hiscox og med Sedgwick som skadebehandler, og er formidlet gjennom Gjensidige.
• BN bank tilbyr finansieringsløsninger
• Vår avdeling Krogsveen Pluss tilbyr flyttetjenester som utvask, visningsvask, lager, tømming og transport av flyttelass, i tillegg til å formidle kontakt med Flip for overflateoppussing.
• I forbindelse med overtagelse av eiendommen tilbyr Overo avtale om strøm, alarm og bredbånd.
• Krogsveen er, sammen med øvrige bransjeaktører, medeier i Bomega AS som tilbyr den digitale annonseringsplattformen Hjem.
Opplysninger om oppdraget
Oppdragsnummer 67-0033/26
Eiendomsmegler Krogsveen AS, avd. Fredrikstad og Sarpsborg
Dikeveien 14, 1661, ROLVSØY
950 007 613
Oppdragets KR-kode KR67.2633
Dato
Sist oppdatert: 14. mai 2026 kl. 11:03
Dokumenter
Dokumenter
PDF – 679 KB
PDF – 1001 KB
PDF – 4 MB
PDF – 312 KB
PDF – 29 KB
PDF – 127 KB
PDF – 392 KB
Område
Legg til steder som er viktige for deg
Visning
For å delta på visning, ber vi om at du melder deg på. Da sikrer vi at du får nødvendig informasjon og at det er satt av tilstrekkelig med tid. Kontakt megler dersom annet tidspunkt ønskes. Husk å lese salgsoppgaven før visningen, så du stiller forberedt.
Ønsker du kun å bli holdt orientert, kan du fra eiendommens hjemmeside få varsel om solgtpris, eller kontakte megler.
Lurer du på noe?
Unngå doble boligrenter
Vi tilbyr gunstig forsikring.
Vurderer du utleie?
Få et tilbud fra Utleie KrogsveenHva koster lånet?
Sjekk estimert lånekostnadVil du varsles om lignende boliger?
Ved å lagre ditt boligsøk hos oss får du beskjed når vi har en bolig som ligner denne, før den legges ut på markedet!

