Otto Ruges vei 19B
9 500 000 kr
155 m²
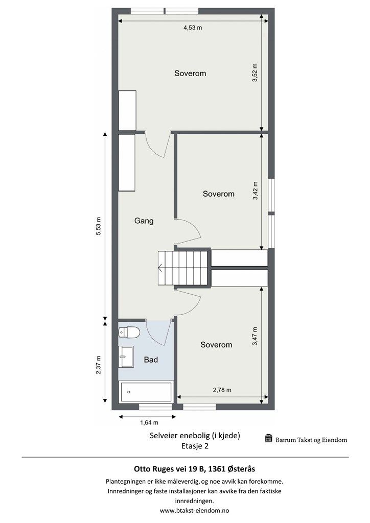
3 soverom
Solgt
EIKSMARKA/ØSTERÅS
Halvpart tomannsbolig i kjede over over 3 plan med oppussingsbehov i et ettertraktet boområde - Garasjepl. i felles rekke - Gangavstand til T-bane på Eiksmarka.
Prisantydning
9 500 000 krOmkostninger
258 490 krTotalpris
9 758 490 kr
Pris
Bruksareal
171 m²BRA-I (internt bruksareal)
155 m²BRA-E (eksternt bruksareal)
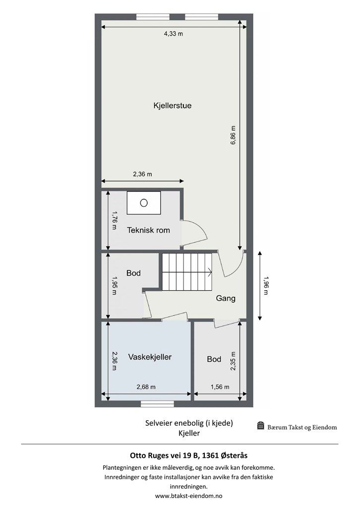
16 m²
Areal
Etasje
3Byggeår
1960Soverom
3 soveromBad
1 badTomteareal
551 m² (eiet)Type
Halvpart vertikaldelt boligEierform
EietFasiliteter
Garasje/P-plassÅrlig velavgift
500 krEnergimerke
Grønn G
Nøkkelinfo
Unngå doble boligrenter
Vi tilbyr gunstig forsikring.
Vurderer du utleie?
Få et tilbud fra Utleie KrogsveenHva koster lånet?
Sjekk estimert lånekostnadBeskrivelse
Kort om eiendommen
Velkommen til Otto Ruges v.19B presentert av Eiendomsmegler Kristoffer Stormfelt!
Halvpart tomannsbolig i kjede med oppussingsbehov i et attraktivt og barnevennlig område på Eiksmarka – fredelig og rolig, men samtidig sentralt. Den har behov for oppussing, noe som gir en god mulighet til å sette eget preg. Solrik hage med epletre, bringebær og bærbusker.
Kort gangavstand til både Eiksmarka og Østerås senter, med det meste av daglige servicetilbud. Svært gode kollektivmuligheter med både buss og T-bane gir enkel tilgang til Oslo og omegn.
Området har flere skoler og barnehager i nærheten, noe som gjør det ideelt for barnefamilier.
-Hyggelig utsyn og gode solforhold
-1 garasjeplass i felles dobbel garasje
-Nymalte vegger og ny parkett i kjellerstuen
-Oppussingsbehov m/potensiale
Område
Legg til steder som er viktige for deg
Meglere

Kristoffer Stormfelt
Daglig leder/Eiendomsmegler

Marius Stormfelt
Eiendomsmegler/Fagansvarlig
Ansvarlig megler Kristoffer Stormfelt
På flyttefot? Tenk kjøp og salg samtidig.
Få din egen rådgiver gjennom hele kjøps- og salgsprosessen. Det starter med en verdivurdering.
Unngå doble boligrenter
Vi tilbyr gunstig forsikring.
Vurderer du utleie?
Få et tilbud fra Utleie KrogsveenHva koster lånet?
Sjekk estimert lånekostnadVil du varsles om lignende boliger?
Ved å lagre ditt boligsøk hos oss får du beskjed når vi har en bolig som ligner denne, før den legges ut på markedet!
På flyttefot? Slik gjør vi det enklere for deg
Skreddersydd flyttepakke
Vi fikser håndverkere, vask, pakking, lagring og transport, og legger ut for utgiftene underveis.
Hjelp med både kjøp og salg
Hos oss har du din egen rådgiver gjennom hele kjøps- og salgsprosessen.
Hjelp til finansiering
Vårt samarbeid med BN Bank sikrer deg rask og løsningsorientert hjelp, til konkurransedyktige betingelser.


