Fjuklia 14
4 250 000 kr
130 m²
3 soverom
Komplett salgsoppgave

Fjuk
Kjedet enebolig fra 2018 m/ 3 sov. | Markterrasse på 25 m², garasje og elbillader. | Gangavstand til sentrum.
Prisantydning
4 250 000 krOmkostninger
127 240 krTotalpris
4 377 240 kr
Pris
Bruksareal
158 m²BRA-I (internt bruksareal)
130 m²BRA-E (eksternt bruksareal)
28 m²TBA (terrasse-balkongareal)
30 m²
Areal
Byggeår
2018Soverom
3 soveromBad
1 badTomteareal
166 m² (eiet)Type
Enebolig i kjedeEierform
EietFasiliteter
Garasje/P-plass og Balkong/TerrasseÅrlig velavgift
14 400 krEnergimerke
Rød B
Nøkkelinfo
Unngå doble boligrenter
Vi tilbyr gunstig forsikring.
Vurderer du utleie?
Få et tilbud fra Utleie KrogsveenHva koster lånet?
Sjekk estimert lånekostnadBeskrivelse
Kort om eiendommen
Velkommen til Fjuklia 14! En kjedet enebolig fra 2018 med familievennlig planløsning over tre plan og gode solforhold.
Boligen har en åpen løsning mellom stue og kjøkken i første etasje, med en lun peisovn og utgang til markterrasse på 25 m². Andre etasje rommer familiens private sone med tre soverom og et flislagt bad med både dusjnisje og badekar. Beliggenheten i Fjuk/Skreksrud gir umiddelbar nærhet til skog og mark, med gangavstand til sentrum, buss og tog.
Kort fortalt: Integrert garasje på 26 m² med elbillader. Sigdal-kjøkken med integrerte hvitevarer. Balansert ventilasjon og sentralstøvsuger. Varmekabler i entré, garderobe og på bad. Separat vaskerom i underetasjen
Velkommen til visning!
Innhold og byggemåte
Innhold og byggemåte
Eiendommen
Fjuklia 14, 2150 ÅRNES
Kommunenummer 3228, gårdsnummer 170, bruksnummer 210
Kommunenummer 3228, gårdsnummer 170, bruksnummer 187, ideell andel 1/24
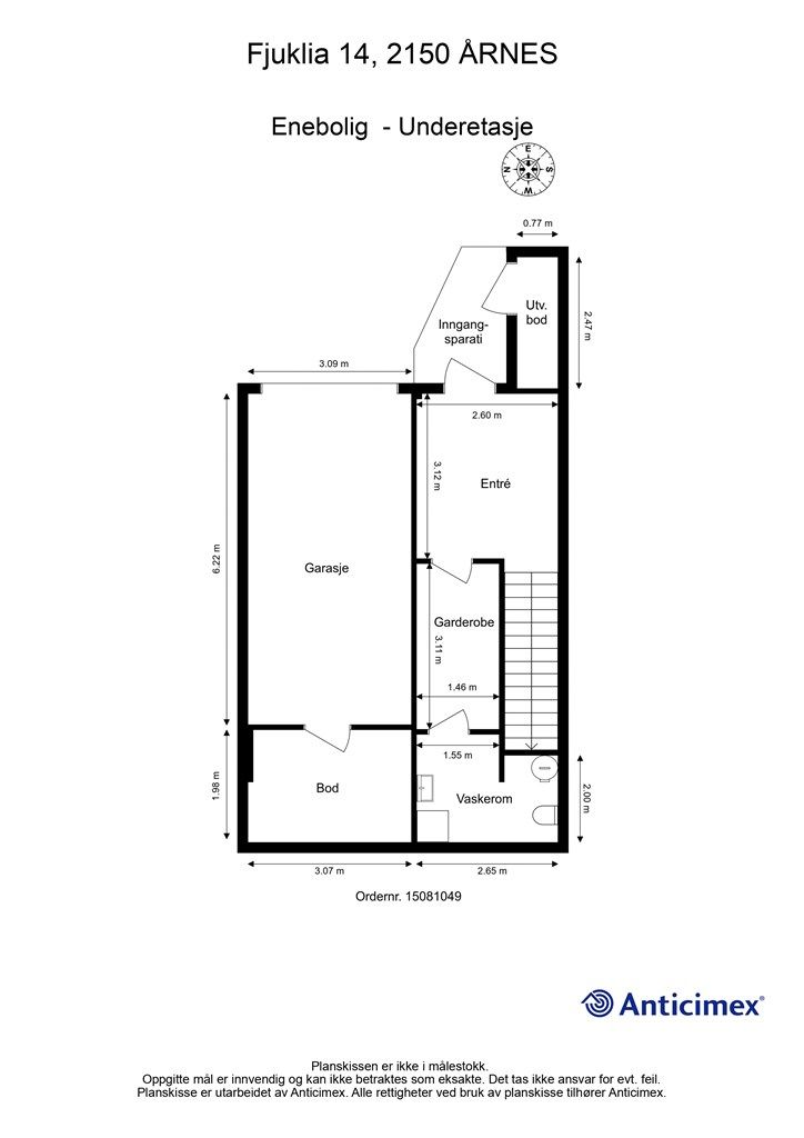
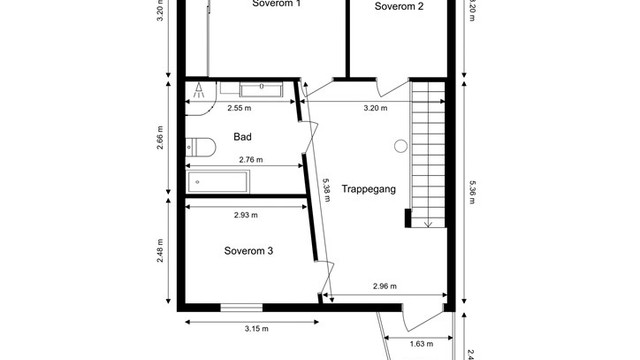
Innhold
Totalt bruksareal BRA: 158 kvm
BRA-i:
Enebolig:
Underetasje 22 kvm: Entré, garderobe og vaskerom.
1. etasje 54 kvm: Stue og kjøkken i åpen løsning.
2. etasje 54 kvm: Trappegang, bad og tre soverom.
BRA-e:
Underetasje 28 kvm: Garasje med bod og utvendig bod.
Åpent areal:
1. etasje 25 kvm: Markterrasse.
2. etasje 5 kvm: Balkong.
Vedlagte plantegninger er ikke målbare. De oppgitte arealer er hentet fra rapport med befaringsdato 07.04.2026 utført av Anticimex AS v/Thomas Nordby.
Byggemåte
Selger har innhentet en tilstandsrapport av boligen/eiendommen. Dersom det er registrert avvik, er disse klassifisert med tilstandsgrader (TGIU, TG2 og/eller TG3). Kjøper overtar ansvaret for de opplysninger som fremkommer av salgsdokumentasjonen, og kan ikke gjøre gjeldende som mangel noe som burde vært kjent eller som ikke kan anses å ha betydning for avtalen.
Bygningen er iht. tilstandsrapport en kjedet enebolig over tre plan, oppført i 2018. Boligen er oppført med grunnmur i betong og støpt gulv mot grunn. Yttervegger er av bindingsverk i trekonstruksjoner, utvendig kledd med liggende trepanel og fasadeplater. Etasjeskillere er av trekonstruksjoner. Yttertaket er en pulttakskonstruksjon tekket med takpapp, med renner og nedløp i metall. Boligen har et uinnredet kaldt loft med adkomst via luke på soverom. Vinduene har karmer av tre og to-lags glass fra byggeår. Ytterdøren er av tre med elektrisk kodelås, og terrassedør og balkongdør har karmer av tre og to-lags glass. Innvendige dører er hvite slette innerdører. Det er installert stålpipe og peisovn med glassdør i stuen. Innvendig er det en trapp i tre med rekkverk av tre og glassfelter. Boligen har en balkong på 5 m² og en markterrasse på 25 m², begge med bærende trekonstruksjoner og spaltegulv.
Sikringsskap med automatsikringer er plassert på vaskerom. Hovedsikringens kapasitet er 4x32A. Boligen har i hovedsak skjult elektrisk anlegg.
Det er installert godkjent slukkeutstyr, tilstrekkelig røykvarsling og komfyrvakt.
Følgende bygningsdeler er gitt Tilstandsgrad 2 (TG2) — Avvik som kan kreve tiltak:
Tekniske anlegg
- Innvendig stakeluke: Innvendig stakeluke er ikke påvist, og det er derfor ukjent om dette er etablert. Stakeluke anses generelt sett som et forskriftskrav, med enkelte unntak. Tilstandsgrad settes i henhold til NS 3600.
Andre rom
- Overflate gulv: Synlige deler av gulvets overflatemateriale bærer stedvis preg av noe slitasje med enkelte riper og hakk. Forholdet vurderes i hovedsak til å være av estetisk betydning, men riper og hakk av en viss dybde kan gjøre at fuktighet som for eksempel fra rengjøring forårsaker misfarging eller lignende konsekvenser.
Følgende bygningsdeler er ikke undersøkt (TGIU):
Loft - uinnredet / kaldt loft
- Inspeksjonsmulighet: Deler av kaldtloftet lot seg ikke undersøke grunnet redusert tilkomstmulighet (lav høyde).
- Ventilasjon, oppbygning og materialbruk: Ikke undersøkt.
Yttertak
- Inspeksjon av tak: Taket er ikke fysisk inspisert grunnet sikkerhetsmessige forhold. Tekking (med tilhørende beslag): Ikke besiktiget. Undertak (inkluderer sløyfer, lekter og innfestninger): Ikke besiktiget. Takgjennomføringer (takhatter o.l.): Ikke besiktiget. Skorsteiner (over tak): Ikke besiktiget.
Tilstandsrapporten er inntatt i salgsoppgaven. Rapporten inneholder informasjon om eventuelle avvik og konsekvensen av disse. Dersom det er registrert avvik med TG3, har den bygningssakkyndige i tillegg gitt et anslag på hva det vil koste å utbedre disse. Ettersom kjøper regnes å være kjent med forhold som tydelig fremgår av tilstandsrapporten, oppfordres du til å sette deg grundig inn i rapporten i sin helhet.
Standard
Kjedet enebolig oppført i 2018 over tre plan. Bygningen har grunnmur i betong, støpt gulv mot grunn, yttervegger i trebindingsverk og etasjeskillere av tre. Boligen er utstyrt med balansert ventilasjonsanlegg, sentralstøvsuger og en luft-til-luft-varmepumpe. Oppvarming baseres på elektrisitet, med elektrisk gulvvarme i entré, garderobe og bad, supplert med vedfyring.
KJØKKEN:
Kjøkkeninnredning fra Sigdal (2018) med hvite, glatte fronter og benkeplate i laminat. Utstyrt med nedfelt oppvaskkum, integrert komfyr med induksjonstopp og integrert oppvaskmaskin. Det er installert komfyrvakt og automatisk vannstoppventil. Kjøkkenventilator med mekanisk avtrekk.
BAD 2. ETASJE:
Baderom fra 2018. Innredet med vegghengt servantskap med heldekkende servant, speil med overlys, gulvmontert toalett, dusjnisje med innfellbare glassdører og badekar. Vannrør av typen rør-i-rør og synlige avløpsrør i plast. Rommet har mekanisk avtrekk.
VASKEROM UNDERETASJE:
Rom fra 2018. Innredet med vegghengt utslagsvask, gulvmontert toalett og opplegg for vaskemaskin. Vannrør av typen rør-i-rør og synlige avløpsrør i plast. Rommet har mekanisk avtrekk.
Overflater:
Gulv: Parkett i hovedrom. Fliser med elektrisk gulvvarme i entré, garderobe og bad. Gulvbelegg i vaskerom.
Vegger: Malte flater i hovedrom. Fliser på bad. Våtromsplater i vaskerom.
Himling: Malte flater. Takhøyde er målt til 2,39-2,40 meter.
Lagring:
Garderobeskap i ett soverom og garderobeløsning i eget rom i underetasjen. Integrert garasje med innvendig bod på til sammen 26 m². Utvendig bod ved inngangspartiet på 2 m², hvor sentralstøvsugeren er plassert.
For fullstendig teknisk informasjon om boligen, se punktet Byggemåte i salgsoppgaven.
Løsøre og tilbehør
Når ikke annet er avtalt, overdras eiendommen med innredninger og utstyr som etter lov, forskrift eller annet offentlig vedtak skal følge med, jf. avhendingsloven. Det samme gjelder varig innredning og utstyr som enten er fastmontert eller er særskilt tilpasset bygningen. Loven inneholder ingen detaljert oversikt over hva som omfattes av «innredning og utstyr», og over hva som skal regnes som «fastmontert eller særskilt tilpasset». Partene kan fritt avtale hva som skal følge eiendommen ved salg. Bransjens liste over løsøre og tilbehør som skal følge med eiendommen, er en del av avtalen mellom kjøper og selger dersom ikke annet er opplyst i salgsoppgaven, kjøper har tatt forbehold i bud eller annen måte er inngått. Er ikke annet avtalt, vil løsøre og tilbehør medfølge slik dette fremkommer av avhendingsloven og bransjens tilbehørsliste inntatt i salgsoppgaven. Følgende medfølger i tillegg: TV-tuner/dekoder.
Oppvarming
Boligen har elektrisk oppvarming i kombinasjon med vedfyring. Varmepumpe i trappeløp i andre etasje. Varmekabler på gang og bad.
Dersom beboelsesrom ikke har vegg- eller fastmonterte varmekilder ved visning, følger dette heller ikke med.
Ferdigattest/brukstillatelse
Det foreligger ferdigattest for kjedehus datert 12.02.2018. Denne kan fås ved henvendelse til megler.
Det foreligger godkjente og byggemeldte tegninger datert 11.04.2016, som stemmer med dagens bruk.
Tinglyste heftelser og rettigheter
Eiendommen overdras fri for pengeheftelser.
Kommunen har legalpant i eiendommen for forfalte krav på eiendomsskatt og kommunale avgifter/gebyrer.
Heftelser på eiendommen (Gnr. 170, Bnr. 210):
2016/1155165-1/200 13.12.2016 ERKLÆRING/AVTALE
Pliktig medlemskap i velforening/huseierforening
Gjelder denne registerenheten med flere
2016/1155669-1/200 13.12.2016 BEST. OM VANN/KLOAKKLEDN.
Bestemmelse om felles private kabler, ledningstrekk- og vann og avløpsledninger
Gjelder også for eventuelt fradelte parseller/senere seksjonerte boliger på eiendommene
Gjelder denne registerenheten med flere
Heftelser på realsameiet (Gnr. 170, Bnr. 187):
2016/210582-1/200 10.03.2016 ERKLÆRING/AVTALE
Rettighetshaver: ELVIA AS ORG.NR: 980 489 698
Bestemmelse om adkomstrett
Bestemmelse om elektriske ledninger/kabler
Rett til bygging, drift, vedlikehold og fornyelse
Bestemmelse om bebyggelse, beplanting m.m.
2016/1155115-1/200 13.12.2016 BEST. OM ADKOMSTRETT
Rettighetshavere er KNR: 3228 GNR: 170 BNR: 188 til 211.
2016/1155669-1/200 13.12.2016 BEST. OM VANN/KLOAKKLEDN.
Bestemmelse om felles private kabler, ledningstrekk- og vann og avløpsledninger
Gjelder også for eventuelt fradelte parseller/senere seksjonerte boliger på eiendommene
Gjelder denne registerenheten med flere
Eiendommens rettigheter:
2016/1155115-1/200 13.12.2016 BEST. OM ADKOMSTRETT
Rettighet hefter i: KNR: 3228 GNR: 170 BNR: 187
Gjelder denne registerenheten med flere
Servituttene vil følge eiendommen. Kjøpers bank vil få prioritet etter ovennevnte heftelser og servitutter.
Eventuell adgang til utleie
Eiendommen har ikke separat utleieenhet. Det vil normalt være anledning til utleie av hele eiendommen eller enkeltrom, såfremt utleiearealet er bygningsmessig godkjent for varig opphold og har forsvarlige radonnivåer.
Beliggenhet og tomteforhold
Beliggenhet og tomteforhold
Beliggenhet
Fjuklia 14 har en attraktiv, sentrumsnær beliggenhet på Årnes i Nes kommune. Fra eiendommen er det gangavstand til flere barnehager, skoler og offentlig transport. I kort avstand fra boligen finner man også fotball- og friidrettsstadion, Neshallen, ishall og Nes svømmehall. For de naturglade byr området på gode turmuligheter og korte sykkelavstander til Veslesjøen, Sagstusjøen og området rundt Dragsjøen. Av arrangementer er det blant annet matfestival, Årnesdager, oktoberfest mm. Med nærheten til både Glomma og bryggeanlegget er det muligheter med båt.
Kollektivtilbud
Området gir mulighet for offentlig kommunikasjon via buss og tog. Buss mellom Årnes og Jessheim/Gardermoen.
Årnes stasjon ligger i Årnes sentrum og er en av de opprinnelige stasjonene på Kongsvingerbanen. Stasjonen blir betjent av alle tog på Kongsvingerbanen. Gode togforbindelser inn mot hovedstaden med avgang hver time og en reisetid på kun ca. 48 min. til Oslo S. Er rutetidene av betydning - se ruter.no for mer info.
Shopping
Nærhet til et godt utvalg av daglige servicetilbud. Dagligvarehandelen kan gjøres ved blant annet Rema 1000, Bunnpris, Coop Mega, Spar og Kiwi. Fra boligen er det gangavstand til Årnes sentrum og Alti-senteret, som har et variert utvalg med bl.a. dagligvare, post, bank, minibank, apotek, vinmonopol, mote, interiør, blomster, frisør, kafé/restaurant, lege og tannlege mm. Kort vei til Jessheim med yttereligere servicetilbud.
Kulturhus
Kommunens kulturhus ligger i Årnes sentrum med tilknytning til Alti-senteret. Her finner man bibliotek, kino og diverse kulturinnslag. Pakkhuset ved jernbanen har egen Bluesklubb med konserter og kulturelle innslag.
Nes svømmehall
Ny svømmehall fra 2017 tilrettelagt for svømmetrening og vannaktiviteter.
Nes Golfklubb
Rommen Golfpark er et komplett helårs golfanlegg beliggende vakkert i det bølgende kulturlandskapet i Nes på Romerike, like nord for elvemøtet mellom Vorma og Glomma. Baneanlegget består av en 18-hulls bane og et stort treningsområde med puttinggreen, chippinggreen med ulike innspillsvinkler og driving range. På vinterstid har de 3 stk Full swing simulatorer hvor man kan velge mellom nærmere 60 baner rundt om i verden. Se forøvrig www.nesgolf.no.
Tidsavstander med bil
Vormsund ca. 7 min.
Jessheim ca. 20 min.
Oslo Lufthavn ca. 28 min.
Lillestrøm ca. 32 min.
Oslo sentrum ca. 45 min.
Adkomst
Veibeskrivelse Se Google maps - det er enkelt å finne frem i kartet.
Det vil bli skiltet med Krogsveen visningsskilt ved fellesvisninger.
Barnehager, skoler og fritid
Informasjon om tilhørende skolekretser er hentet fra Prognosesenteret som dataleverandør, og tilhørigheten kan årlig endres av kommunen. Dersom skole- og barnehagetilbud er av betydning for kjøpet, ber vi om at det rettes en særskilt henvendelse til kommunen/bydelsadministrasjonen for oppdatert informasjon.
Beskrivelse av tomt
Eiertomt på 165,9 kvm (beregnet areal fra matrikkel). Tomten er opparbeidet med gressplen, prydbusker og diverse beplantninger. I tillegg har eiendommen en ideell andel på 1/24 av fellesareal (gnr. 170, bnr. 187) som er opparbeidet med asfaltert adkomstvei og lekeplass. Oppgitt tomteareal er hentet fra digitalt eiendomskart fra Nes kommune. Oppgitt/anslått areal kan derfor avvike fra nøyaktig areal.
Parkering
Det medfølger en garasjeplass med tilhørende bod i bakkant. Samt en biloppstillingsplass. Fastmontert lader for EL-bil følger med.
Vei, vann og avløp
Eiendommen har adkomst via privat vei med tinglyst veirett. Eiendommen er tilknyttet privat vannverk og kommunalt avløpsnett via private stikkledninger. Eier er selv ansvarlig for private stikkledninger til boligen. Eiendommen har en 1/24 ideell andel i realsameiet (gnr. 170, bnr. 187) som omfatter fellesareal og infrastruktur, inkludert det private veinettet Fjuklia.
Regulerings-og arealplaner
Eiendommen er regulert til boligbebyggelse-konsentrert småhusbebyggelse (feltnavn BK2) i henhold til detaljreguleringsplan for Drognesjordet BK13 Gbnr 170/2 m.fl (ID: 023614023), vedtatt 21.04.2015, med tilhørende reguleringsbestemmelser.
Eiendommen omfattes av Kommuneplan for Nes kommune 2024 - 2036 (ID: 2021021), vedtatt 19.03.2024, og Kommunedelplan for Årnes 2019-2030 (ID: 2017072), vedtatt 18.06.2019. I begge planer er arealbruken avsatt til boligbebyggelse, nåværende (feltnavn B).
Pågående plansaker i nærområdet:
- Kommunedelplan for Årnes 2025-2038 (plan-ID 2025012) - status: Planlegging igangsatt. Planen er under arbeid og kan få betydning for fremtidige rammer i området.
Utsnitt av plan med tilhørende bestemmelser kan fås ved henvendelse til megler.
Økonomi
Økonomi
Kommunale utgifter
Kommunale avgifter er kr 13 256,55 for 2025. I dette inngår gebyr for vann, avløp, renovasjon og feiing.
Årsprognosen for 2026 ligger på kr 15 491,12.
Eiendommen er tilknyttet et privat vannverk og er ikke tilkoblet offentlig vannforsyning. Avløp er tilknyttet offentlig nett. Eiendommen er tilknyttet Årnes Vannverk. Vannverket fakturerer etter antall personer i husstanden. Gebyr pr. person er kr 1 090,- pr. år. Grunngebyr for alle boenheter er kr 2 688,- pr. år. Gebyr for renset vann etter måler er kr 30,05 pr. m³. Minstegebyr pr. boenhet er kr 4 870,- pr. år. Oppgitte satser kan endres av vannverket.
Det er installert vannmåler på eiendommen og kostnadene betales etter forbruk. Forbruk avleses etter henvendelse fra kommunen. Forbruk betales à konto basert på siste avlesning. Avregning foretas i forbindelse med neste forfall på kommunale avgifter.
For denne eiendommen utgjør vannforbruket kr. 2 175,95 av de kommunale avgiftene. Oppgitt kostnad baserer seg på selgers forbruk og vil variere utfra bruk/personer i husstanden.
Nåværende eier har et strømforbruk som tilsvarer ca. kr 16 371,48 pr. år / 18155 kWh pr. år.
Selger har avtalt Norgespris på strøm på eiendommen frem til 31. desember 2026, og denne er pt på kr 50 øre inkl mva. Nettleie, avgifter og påslag fra kraftleverandøren kommer i tillegg.
Denne avtalen vil følge eiendommen i den avtalte perioden.
Les mer om Norgespris her: https://www.regjeringen.no/no/aktuelt/legg-fram-lov-om-norgespris-pa-straum-og-fjernvarme/id3102642/
Boligen er tilknyttet Fiber via Altibox (500/500 Mbps) som leverandør av kabel-tv og internett. Standard TV-pakke er inkludert i felleskostnadene. Tv-tuner/dekoder medfølger.
Utgiftene er basert på nåværende eiers forbruk og avtaler.
Formuesverdi
Formuesverdi for 2024 var kr 1 137 131,- ifølge Skatteetaten. Beløpet forutsetter at eier bor fast i boligen (primærbolig).
Ved eventuell øvrig bruk av eiendommen (f.eks. fritidsbolig, pendlerbolig, utleieobjekt) var formuesverdien for 2024 kr 4 548 523-.
Fra 2026 har Stortinget vedtatt en oppdatert modell for beregning av formuesverdi for primærbolig, så avvik kan forekomme.
For mer informasjon se skatteetaten.no
Omkostninger
4 250 000,00 Prisantydning
Omkostninger
106 250,00 Dokumentavgift til staten (2,5% av kjøpesum)
19 900,00 Gjensidige Boligkjøperpakke* (valgfritt)
545,00 Tinglysing panterettsdokument
545,00 Tinglysing skjøte
--------------------------------------------------------
107 340,00 (Omkostninger totalt (uten Gjensidige Boligkjøperpakke))
127 240,00 Omkostninger totalt (med Gjensidige Boligkjøperpakke))
--------------------------------------------------------
4 357 340,00 Totalpris inkl. omkostninger
4 377 240,00 Totalpris inkl. omkostninger (med Gjensidige Boligkjøperpakke)
--------------------------------------------------------
Totalpris inkl. omkostninger forutsetter kjøp til prisantydning.
Det tas forbehold om endringer i avgifter og gebyrer.
Tilbud om lånefinansiering
Megler formidler gjerne kontakt med rådgiver hos vår samarbeidspartner BN Bank. De har konkurransedyktige betingelser samt rask og løsningsorientert behandling av din lånesøknad. Krogsveen mottar et honorar dersom lån opprettes.
Betalingsbetingelser
Kjøpesum inkludert omkostninger, samt pantedokument tilknyttet eventuelt lån, skal være disponibelt hos megler 2 virkedager før overtagelsen.
Annen viktig informasjon
Annen viktig informasjon
Eier
Tommy Alexander Solbergseter og Yrill Lykke Solbergseter
Overtakelse
Etter nærmere avtale.
Velforening
Det betales kr 1.200 i måneden som dekker følgende: TV/internett, Brøyting/strøing, feiing om våren. Strøm til gatelys, generell vedlikehold av uteområdet.
Boligselgerforsikring
Selger har i forbindelse med salget tegnet boligselgerforsikring levert av Gjensidige.
Boligselgerforsikringen dekker selgers ansvar etter avhendingsloven begrenset oppad til kr 14 millioner. Dersom kjøper oppdager forhold ved eiendommen som hen mener utgjør en mangel ved eiendommen, vil Gjensidige behandle reklamasjonen på vegne av selger. Forsikringsvilkår kan fås ved henvendelse til megler.
Vedlagt salgsoppgaven følger selgers egenerklæringsskjema og tilstandsrapport. Interessenter må sette seg inn i dokumentene før bud inngis.
Boligkjøperforsikring
Innen kontraktsmøtet må kjøper ta stilling til om det ønskes å bestille Boligkjøperpakken gjennom Gjensidige. I denne gunstige pakken er boligen ferdig forsikret og inkluderer rettshjelpsforsikring, også kalt Boligkjøperforsikring. Rettshjelpsforsikring gir trygghet og tilgang på profesjonell juridisk hjelp dersom det oppdages uventede feil eller mangler det første året etter overtagelse. Forsikringsselskapet behandler i så fall ethvert mangelskrav kjøper måtte ha overfor selger.
Boligkjøperpakken inkluderer bygningsforsikring for hus og hytte, innboforsikring, flytteforsikring og dobbel rentedekning - i situasjoner hvor kjøper ikke får solgt nåværende primærbolig.
Kjøper mottar ingen særskilt faktura for Boligkjøperpakken da kostnaden det første året legges til kjøpesummen for boligen. Det gjøres oppmerksom på Krogsveen mottar et honorar for denne formidlingen.
Produktark for Boligkjøperpakken ligger vedlagt i salgsoppgaven.
Dersom ikke boligkjøperpakke ønskes kan kun rettshjelpsforsikring, også kalt boligkjøperforsikring, tegnes særskilt via megler. Rettshjelpsforsikringen varer i 5 år fra overtagelse og leveres gjennom Gjensidige. Ta kontakt med megler for ytterligere informasjon.
Selskap og privatpersoner som driver med kjøp/salg/utvikling som ledd i egen næringsvirksomhet kan ikke tegne boligkjøperpakke eller rettshjelpsforsikring.
Budgivning
Forbrukerinformasjon om budgivning er vedlagt denne salgsoppgaven og er også på vår hjemmeside Krogsveen.no. Alle bud og budforhøyelser må inngis skriftlig. I tillegg må legitimasjon være fremlagt sammen med signatur fra budgiver.
Vi oppfordrer til å gi bud elektronisk via GI BUD-knappen på eiendommens hjemmeside på Krogsveen.no. Da vil samtlige vilkår bli oppfylt.
Eventuelle forhøyelser eller endringer av budet kan bekreftes pr SMS eller på e-post. Vi oppfordrer alltid til å kontakte megler pr. telefon i tillegg da forsinkelser i SMS og e-post kan forekomme.
For at budene skal kunne bli behandlet og videreformidlet skriftlig til alle involverte parter, må alle bud ha en tilstrekkelig lang akseptfrist, jf. eiendomsmeglingsforskriften § 6-3.
Selger må også skriftlig akseptere budet før aksept kan formidles til budgiver. Akseptfrist bør derfor være på minimum 30 minutter, og budforhøyelser må derfor skje i god tid før fristens utløp.
Bud i forbrukerforhold kan uansett ikke settes med kortere frist enn kl. 12.00 første virkedag etter siste annonserte visning. I tillegg kan ikke budet ha forbehold om at det skal holdes hemmelig ovenfor øvrige interessenter. Megler har iht lov om eiendomsmegling ikke anledning til å videreformidle disse budene, og de vil dermed heller ikke bli journalført.
Etter at eiendommen er solgt vil kjøper og selger få tilsendt budjournal. Øvrige budgivere kan få utlevert kopi av budjournalen i anonymisert form.
Hvitvaskingsreglene
I henhold til lov om hvitvasking og terrorfinansiering har megler plikt til å gjennomføre kontrolltiltak overfor kunder, herunder fullmektiger. Dette innebærer bl.a. å bekrefte kunders og reelle rettighetshaveres identitet på bakgrunn av fremvist gyldig legitimasjon eller på annen godkjent måte, samt å innhente opplysninger om kundeforholdets formål og tilsiktede art.
Dersom slike kundetiltak ikke kan gjennomføres, kan megler ikke etablere kundeforholdet eller utføre transaksjonen.
Hvis kjøper ikke bidrar til gjennomføring av kundekontrollen og dette fører til at transaksjonen blir forsinket eller ikke kan gjennomføres, vil dette ansees som mislighold av avtalen og gi selger rettigheter etter avhendingslova kapittel 5. I tilfeller der selger ikke bidrar til gjennomføring av løpende kundekontroll underveis i oppdraget, er det selger som misligholder sine forpliktelser etter avtalen og gi kjøper rettigheter etter avhendingslovens kapittel 4. Partene er selv ansvarlige for eventuelle kostnader og ansvar dette kan medføre. Eiendomsmegleren eller eiendomsmeglingsforetaket kan ikke holdes ansvarlig for de konsekvenser dette vil kunne få for partene eller andre som har interesser i eiendomshandelen.
Kjøper oppfordres til å innbetale kjøpesummen som ikke kommer fra låneinstitusjon i én samlet innbetaling fra egen konto i norsk bank. Megler har plikt til å melde fra til Økokrim om eiendomshandler som fremstår som mistenkelige. Melding sendes Økokrim uten at partene varsles.
Personopplysningsloven
I henhold til personopplysningsloven gjør vi oppmerksom på at interessenter kan bli registrert for videre oppfølging.
Lovanvendelse
Generelle bestemmelser
Salgsoppgaven er basert på de opplysningene selger har gitt til megler, den bygningssakyndiges tilstandsrapport, samt opplysninger innhentet fra kommunen, Kartverket og andre tilgjengelige kilder. Det er viktig at kjøper setter seg grundig inn i alle salgsdokumentene, herunder salgsoppgave, tilstandsrapport og selgers egenerklæring. Kjøper anses kjent med forhold som er tydelig beskrevet i salgsdokumentene, og slike forhold kan ikke påberopes som mangler. Dette gjelder uavhengig av om kjøper har lest dokumentene. Alle interessenter oppfordres til å undersøke eiendommen nøye, gjerne sammen med fagkyndig før bud inngis. Kjøper som velger å kjøpe usett kan ikke gjøre gjeldende som mangel noe han burde blitt kjent med ved undersøkelsen.
Dersom det er behov for avklaringer, anbefaler vi at interessenter rådfører seg med eiendomsmegler eller egne rådgivere før det legges inn bud.
En bolig som har blitt brukt i en viss tid, har vanligvis blitt utsatt for slitasje og skader kan ha oppstått. Slik bruksslitasje må kjøper regne med, og det kan avdekkes enkelte forhold etter overtakelse som nødvendiggjør utbedringer. Normal slitasje og skader som nødvendiggjør utbedring, er innenfor hva kjøper må forvente og vil ikke utgjøre en mangel.
Kjøper og selgers rettigheter og plikter reguleres av avtalen mellom partene, samt informasjonen som har vært tilgjengelig for kjøperen i forbindelse med handelen. Avtalen utfylles av avhendingsloven, og det gjelder ulike avtalevilkår avhengig av om kjøper er forbrukerkjøper eller ikke. Dette er nærmere beskrevet nedenfor.
På grunn av ulike avtalevilkår kan selger vurdere bud fra en som ikke er forbruker, ulikt fra en forbrukers bud. Dersom kjøper ikke er forbruker, er selger sitt mulige mangelsansvar begrenset fordi eiendommen selges "som den er". Selger kan ikke ta «som den er»- forbehold overfor en forbrukerkjøper. Selv et lavere bud fra en som ikke er forbruker kan foretrekkes fordi begrensningen i mulig mangelsansvar kan ha egenverdi for selger. Selger står fritt til å forkaste eller akseptere ethvert bud, og er for eksempel ikke forpliktet til å akseptere høyeste bud.
Budgiver skal i budskjema avgi egenerklæring om budgiver er forbruker eller næringsdrivende/ person som hovedsakelig handler som ledd i næringsvirksomhet. Budgivere får informasjon dersom andre bud er inngitt av en som ikke er forbruker.
Forbrukerkjøp - definisjon
Med forbrukerkjøp menes kjøp av eiendom når kjøperen er en fysisk person som ikke hovedsakelig handler som ledd i næringsvirksomhet.
Forbruker – avtalevilkår
Eiendommen har en mangel dersom den ikke er i samsvar med kravene som følger av avtalen, eller det foreligger brudd på bestemmelsene i avhendingsloven §§ 3-2 til 3-8. Hvis eiendommen ikke er i samsvar med det kjøperen må kunne forvente ut ifra alder, type og synlig tilstand, kan det være grunnlag for mangelskrav. Det samme gjelder hvis det er holdt tilbake eller gitt uriktige opplysninger om eiendommen. Dette gjelder likevel bare dersom man kan gå ut ifra at det virket inn på avtalen at opplysningen ikke ble gitt eller at mangelskravet ikke blir rettet i tide på en tydelig måte.
Boligen kan ha en mangel etter avhendingsloven § 3-3 andre ledd, dersom det er avvik mellom opplyst og faktisk innvendig areal, forutsatt at avviket er på 2% eller mer og minimum 1 kvm.
Ved beregning av et eventuelt prisavslag eller erstatning må kjøper selv dekke tap/kostnader opptil et beløp på kr 10 000 (egenandel).
Ikke-forbruker (næringsdrivende) – definisjon
Hvis kjøper er en juridisk person, eller en fysisk person som hovedsakelig handler som ledd i næringsvirksomhet, vil kjøpet ikke anses som et forbrukerkjøp.
Ikke-forbruker – avtalevilkår
Eiendommen har en mangel dersom den ikke er i samsvar med kravene som følger av avtalen.
Eiendommen selges «som den er», og selgers ansvar utover det konkret avtalte er da begrenset etter avhendingsloven § 3-9, første ledd andre setning.
Avhendingsloven § 3-3 andre ledd fravikes, og hvorvidt boligens arealsvikt utgjør en mangel vurderes etter avhendingsloven § 3-8.
Informasjon om kjøpers undersøkelsesplikt, herunder oppfordringen om å undersøke eiendommen nøye, gjelder også for kjøpere som ikke anses som forbrukere.
Det forutsettes at hjemmel overføres til kjøper. Hvis kjøper ikke ønsker hjemmelsoverføring av eiendommen, må det tas forbehold om dette i budet.
Meglers vederlag
Meglers vederlag betales av selger og er avtalt til:
Vederlag: 1,25 % av salgssummen inkl. eventuell fellesgjeld.
Vederlag:
Kontroll av hjemmel og heftelser kr 4 500,00
Markedsføringspakke kr 29 900,00
Oppgjør kr 8 900,00
Tilrettelegging kr 19 900,00
Visninger pr stk / Overtagelse kr 4 500,00
Utlegg:
Innhenting av offentlig opplysninger kr 4 093,00
Tinglysing sikring kr 545,00
Andre utgifter:
AX tilstandsrapport enebolig kr 20 625,00
Boligselgerforsikring Gjensidige Eiet - regnes av prisantydning kr 22 840,00
Foto inkludert drone av fasade kr 4 500,00
Vi er opptatt av verdiskapning, og har knyttet til oss samarbeidspartnere som skal sikre våre kunder de beste produkter og tjenester;
• I forbindelse med forberedelse av salget, innhenter vi informasjon om eiendommen hovedsakelig fra vår samarbeidspartner Ambita.
• Gjensidige leverer boligselgerforsikring og tilbyr bygningsforsikring
• Boligkjøperforsikring leveres av Hiscox og med Sedgwick som skadebehandler, og er formidlet gjennom Gjensidige.
• BN bank tilbyr finansieringsløsninger
• Vår avdeling Krogsveen Pluss tilbyr flyttetjenester som utvask, visningsvask, lager, tømming og transport av flyttelass, i tillegg til å formidle kontakt med Flip for overflateoppussing.
• I forbindelse med overtagelse av eiendommen tilbyr Overo avtale om strøm, alarm og bredbånd.
• Krogsveen er, sammen med øvrige bransjeaktører, medeier i Bomega AS som tilbyr den digitale annonseringsplattformen Hjem.
Opplysninger om oppdraget
Oppdragsnummer 24-0037/26
Eiendomsmegler Krogsveen AS, avd. Årnes
Rådhusgata 26, 2150, ÅRNES
950 007 613
Oppdragets KR-kode KR24.2637
Dato
Sist oppdatert: 17. april 2026 kl. 12:13
Dokumenter
Dokumenter
PDF – 913 KB
PDF – 312 KB
PDF – 29 KB
PDF – 127 KB
PDF – 392 KB
Område
Legg til steder som er viktige for deg
Visning
For å delta på visning, ber vi om at du melder deg på. Da sikrer vi at du får nødvendig informasjon og at det er satt av tilstrekkelig med tid. Kontakt megler dersom annet tidspunkt ønskes. Husk å lese salgsoppgaven før visningen, så du stiller forberedt. NB. Visning utgår dersom det ikke er noen påmeldte. Ønsker du kun å bli holdt orientert, kan du fra eiendommens hjemmeside få varsel om solgtpris, eller kontakte megler.
Lurer du på noe?
Unngå doble boligrenter
Vi tilbyr gunstig forsikring.
Vurderer du utleie?
Få et tilbud fra Utleie KrogsveenHva koster lånet?
Sjekk estimert lånekostnadVil du varsles om lignende boliger?
Ved å lagre ditt boligsøk hos oss får du beskjed når vi har en bolig som ligner denne, før den legges ut på markedet!



























