Kastanjeveien 58
2 450 000 kr
48 m²
1 soverom
Komplett salgsoppgave
Åssiden
Pen og velholdt 2-roms eierleilighet i 1. etasje med solrik innglasset balkong. Garasjeplass. Rett ved marka.
Prisantydning
2 450 000 krOmkostninger
72 290 krTotalpris
2 522 290 kr
Pris
Bruksareal
65 m²BRA-I (internt bruksareal)
48 m²BRA-E (eksternt bruksareal)
2 m²
Areal
Etasje
1Byggeår
1977Soverom
1 soveromBad
1 badType
EierleilighetEierform
EierseksjonFasiliteter
Garasje/P-plass og Balkong/TerrasseFellesutgifter
3 361 krEnergimerke
Rød F
Nøkkelinfo
Unngå doble boligrenter
Vi tilbyr gunstig forsikring.
Vurderer du utleie?
Få et tilbud fra Utleie KrogsveenHva koster lånet?
Sjekk estimert lånekostnadBeskrivelse
Kort om eiendommen
Innhold og byggemåte
Innhold og byggemåte
Eiendommen
Kastanjeveien 58, 3026 DRAMMEN
Kommunenummer 3301, gårdsnummer 116, bruksnummer 347, seksjonsnummer 17, ideell andel 1/1
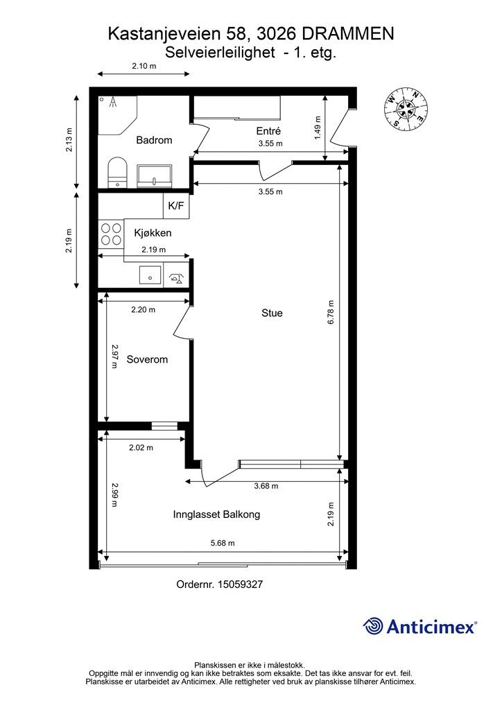
Innhold
BRA-i (internt bruksareal)
1. etasje:
48 kvm: Stue, kjøkken, bad, soverom og entré.
BRA-e (eksternt bruksareal)
1. etasje:
2 kvm: Bod.
BRA-B (innglasset balkong)
1. etasje: 15 kvm.
Vedlagte plantegninger er ikke målbare. De oppgitte arealer er hentet fra rapport utført av Kjetil Sukkehagen-Fevang. Arealene er beregnet og rom er definert etter dagens faktiske bruk, uavhengig av hva som er godkjent av bygningsmyndighetene.
Byggemåte
Bygningen er iht. tilstandsrapport, oppført med støpt gulv mot grunn. Grunnmur og bærende konstruksjoner i hovedsak av betong. Yttervegger av betong/trekonstruksjoner. Fasaden er kledd med fasadeplater og liggende trekledning. Etasjeskillere av betong. Tilnærmet flatt tak (ikke besiktiget). Leiligheten har entrédør med brannklasse B30. Leiligheten har entrédør med brannklasse B30. Vinduer med karmer av tre, og to-lags glass (fra byggeår). Balkongdør med karmer av tre, og to-lags glass (fra 2009). Les forøvrig mer om byggemåte og den tekniske tilstanden i rapporten.
Tilstandsrapporten og selgers egenerklæring er vedlagt salgsoppgaven. Interessenter må sette seg inn i dokumentene før bud inngis.
Standard
Felles overbygget inngangsparti med videre trappeadkomst ned til leilighetens etasjeplan. Videre har leiligheten sitt inngangsparti i gang, hvor det er kun denne leilighetens som har sitt inngangsparti (øvrige rom er felles bodrom). Leiligheten disponerer en matbod og en bod på ca. 2 kvm, i samme etasje som leiligheten.
Stue: Stue med sofaområde og spiseplass. Delvis åpen løsning mot kjøkkenet. Laminat på gulv, tapet samt malt tapet på vegger og malt himling. Utgang til innglasset sydvendt balkong på ca. 15 kvm med komposittbord på gulv, strømuttak, skyvbare glassfelt og utvendig downlights i tak. Sol fra ca. kl. 08.00 til 21.00 (midtsommerstid) iflg. selger.
Kjøkken: Profilert U-kjøkkeninnredning med helintegrerte hvitevarer. Over- og underskap samt vitrineskap i grå utførelse. Flislagte felt over benkeplater av laminat. Videre er kjøkkenet utstyrt med oppvaskmaskin, oppvaskkum, ventilator, platetopp, stekeovn og kjøle-/fryseskap. Laminat på gulv, malt tapet på vegger og malt himling.
Bad: Heldekkende servant over servantskap i hvit og glatt utførelse. Speil over servant. Videre er badet utstyrt med gulvstående toalett og dusjkabinett. Opplegg for vaskemaskin. Downlights i tak og gulvvarme. Fliser på gulv, panel på vegger og malt panel i himling.
Soverom: Downlights i tak. Laminat på gulv, malt tapet på vegger og plater i himling.
Entré: Skyvedørsgarderobe med speilfronter. Dørcallinganlegg med åpnerfunksjon. Downlights i tak. Laminat på gulv, malt tapet på vegger og plater i himling.
Generelt om boligen: Leiligheten er tilknyttet felles varmtvann. Sikringsskap med automat- og skrusikringer, plassert i felles trappegang.
Selger har fått utarbeidet en tilstandsrapport for eiendommen, dvs. en teknisk gjennomgang av boligen hvor eventuelle avvik, risiko for kjøper og prisoverslag for hva som bør gjøres av oppgradering, er skissert. Se særskilt TGIU (tilstandsgrad ikke undersøkt), samt TG2 og TG3 som viser hva som er avvik fra boligens normale slitasje, alder og type, eller som bør/må utbedres. Rapporten og selgers egenerklæring er en del av salgsoppgaven og må leses nøye før bud inngis. Kjøper overtar ansvaret for de opplysninger som fremkommer av salgsdokumentasjonen, og kan ikke gjøre gjeldende som mangel noe som burde vært kjent eller som ikke kan anses å ha betydning for avtalen.
I rapporten fremkommer det som takstmannen mener kjøper må være særskilt oppmerksom på, dette gjelder blant annet (se utfyllende tekst i rapporten):
Følgende kontrollpunkter/forhold har blitt tildelt TG2:
- Bad: Vannrør pga. alder, overflatebehandling i himling bærer preg av slitasje, ikke benyttet tilstrekkelig tettesjikt på vegger og avløpsrør pga. alder.
- Kjøkken: Kun kullfilter (ikke separat avtrekk fra rommet), vannrør pga. alder, stedvis manglende fugemasse på veggfliser, mindre riss/sprekker i himling, preg av slitasje på gulv og manglende komfyrvakt.
- Øvrige rom: Manglende luftespalte over/under innerdør og preg av slitasje på gulv.
- Tekniske anlegg, VVS anlegg: Vannrør pga. alder, stoppekran er plassert utenfor boenhet (ikke hensiktsmessig) og avløpsrør pga. alder.
- Elektrisk anlegg: Manglende samsvarserklæring på anlegget (etter år 1999).
- Dører og vinduer: Vinduer pga. alder samt slitasje og innsettingsdetaljer rundt balkongdør bærer preg av ufagmessig utførelse.
Følgende kontrollpunkter/forhold har blitt tildelt TG3:
Det er ingen punkter som har blitt tildelt TG3.
Se vedlagt tilstandsrapport for supplerende informasjon vedrørende boligens tilstand.
Løsøre og tilbehør
Integrerte hvitevarer på kjøkkenet medfølger i handelen, dette gjelder oppvaskmaskin, platetopp, stekeovn og kjøle-/fryseskap.
Videre vises det til liste fra Norges Eiendomsmeglerforbund angående løsøre og tilbehør. Produkter og installasjoner som medfølger overdras uten noen form for garantier, utover eventuell gjenværende leverandørgaranti.
Oppvarming
Gulvvarme på bad. Videre er boligen basert på elektrisk oppvarming ved evt. panelovner.
Dersom det ikke er vegg- eller fastmonterte varmekilder i beboelsesrom ved visning, følger dette heller ikke med.
Ferdigattest/brukstillatelse
Drammen kommune opplyser om at det ikke foreligger ferdigattest på eiendommen, men midlertidig brukstillatelse ble gitt for oppføring av boligblokka (blokk 3 - Kastanjeveien 58) datert 01.02.1977. I tillegg er det tilhørende godkjente byggetegninger fra 1975.
Det gjøres oppmerksom at det ikke lenger utstedes ferdigattest på tiltak det er søkt om før 1998 jf. plan- og bygningsloven §21-10. Kommunen vil ikke kreve ferdigattest for disse tiltakene og vil avvise eventuelle søknader. Bestemmelsen innebærer ikke at tiltak med manglende søknad blir lovlige, men at man ikke trenger å avslutte gamle byggesaker. Normalt sett kreves ferdigattest for alle søknadspliktige tiltak som gjøres etter plan - og bygningsloven.
Det er utstedt godkjente byggetegninger for innglassing/utvidelse av balkonger i boligblokka datert 03.06.2010. Det foreligger ikke ferdigattest på utført tiltak, dette er sameiet sitt ansvar.
Kjøper overtar eiendommen slik den framstår på visning.
Tinglyste heftelser og rettigheter
Leiligheten overdras fri for pengeheftelser, med unntak av sameiets tinglyste panterett:
Som sikkerhet for den enkelte seksjonseiers forpliktelser overfor sameiet, er det tinglyst et pant i hver seksjon til sameiet på kr 20.000,- med prioritet etter 90% av lånetakst.
De andre seksjonseierne har lovbestemt panterett i seksjonen for krav mot seksjonseieren som følger av sameieforholdet, jf. eierseksjonslovens § 31. Pantet er begrenset oppad til 2G, (G = folketrygdens grunnbeløp). I tillegg har sameiet tinglyst panterett som nevnt over.
Tinglyst seksjoneringsbegjæring
Dagboknummer: 5185
Tinglysningsdato: 29.06.1984
Omhandler seksjonering av eiendommen: Gjeldende seksjon med seksjonsnummer 17, boligformål, sameiebrøk 473/48940.
Tinglyst reseksjonering
Dagboknummer: 949
Tinglysningsdato: 01.02.1985
Omhandler reseksjonering av eiendommen: Gjeldende seksjon med seksjonsnummer 17, boligformål, sameiebrøk 473/50290.
Det er tinglyst 3 servitutter på sameiets eiendom. Disse omhandler blant annet bestemmelser om bebyggelse, diverse ledninger, benyttelse, trafostasjon/kiosk m.m. Ingen av disse har direkte betydning for bruken av denne boligen.
Servituttene vil følge eiendommen. Kjøpers bank vil få pant etter ovennevnte heftelser og servitutter som ikke skal slettes ved overdragelse.
Eventuell adgang til utleie
Leiligheten kan leies ut såfremt leiligheten har forsvarlige radonverdier. Leietaker må følge sameiets vedtekter og ordensregler på lik linje som eier. Sameiets styre skal underrettes skriftlig om alle leieforhold, senest 14 dager etter utleie.
Iflg. vedtektene er det bestemmelser om utleie til Airbnb e.l./korttidsutleie som seksjonseiere må forholde seg til. Vedtektene kan fås ved henvendelse til megler.
Diverse
Vi er opptatt av verdiskapning, og har knyttet til oss samarbeidspartnere som skal sikre våre kunder de beste produkter og tjenester;
• Gjensidige leverer boligselgerforsikring og tilbyr bygningsforsikring
• Boligkjøperforsikring leveres av Hiscox og med Sedgwick som skadebehandler, og er formidlet gjennom Gjensidige.
• BN bank tilbyr finansieringsløsninger
• Vår avdeling Krogsveen Pluss tilbyr flyttetjenester som utvask, visningsvask, lager, tømming og transport av flyttelass, i tillegg til å formidle kontakt med Flip for overflateoppussing.
• I forbindelse med overtagelse av eiendommen tilbyr Overo avtale om strøm, alarm og bredbånd.
• Krogsveen er, sammen med øvrige bransjeaktører, medeier i den digitale annonseringsplattformen Hjem.
Energimerking
Komplett energiattest inkludert oppvarmingskarakter fås ved henvendelse til megler eller lastes ned fra www.krogsveen.no.
Beliggenhet og tomteforhold
Beliggenhet og tomteforhold
Beliggenhet
Boligblokken er beliggende i høyden på Åssiden. Eiendommen grenser til friområder i bakkant av boligblokkene. Nærhet til attraktive marka med lysløyper samt populært skisenter og til Landfalltjern med fine bademuligheter.
Åssiden har meget gode fritids- og sportstilbud, med blant annet Skimore Drammen (tidligere Drammen skisenter) som kan tilby alpinanlegg (vinterstid), terrengsykling, klatrepark og zipline på sommerstid. Åssiden IF er et aktivt idrettslag med bl.a. allidrett, håndball og fotball, se foreningens hjemmeside på www.aif.no. Berskaug hallen med mulighet for ballspill m.m. og Berskaug idrettsplass med fotballbaner, skøytebane og tennisanlegg. Flere treningssentre i nærmiljøet.
Kort gangavstand til bussholdeplass langs Kastanjeveien med avganger til Drammen sentrum, se www.brakar.no for rutetider. Vy Ekspressbuss til Oslo og Notodden i tillegg er det lokalbuss mot Mjøndalen og Solbergelva langs Rosenkrantzgata. Fra Drammen- og Gulskogen togstasjon tar toget deg til Oslo på ca. 35-40 minutter, se www.vy.no for ekspressbuss- og togavganger. Pga. ombygging av Drammen togstasjon vil det hovedsakelig være Flytogbuss fra togstasjonen til Gardermoen flyplass (i en periode), se www.flytoget.no for mer informasjon. Det gjøres oppmerksom på at regjeringen har signalisert en nedleggelse av Flytoget (uvisst om eksakt tidspunkt), hvor Vy vil overta trafikken på strekningene. Generelt god offentlig kommunikasjon mot Kongsberg, Oslo og Tønsberg fra Drammen sentrum.
Adkomst
Det vil bli skiltet med Krogsveen visningsskilt ved fellesvisninger. Se kart i nettannonse eller Google Maps for nærmere veibeskrivelse. Velkommen til visning!
Barnehager, skoler og fritid
Godt sammensatt tilbud av private og offentlige barnehager.
Barnehager: Åssiden barnehage, Dalgårdsveien barnehage.
Skoler: Aronsløkka barneskole og Kjøsterud ungdomsskole.
Drammen kommune har tre private barne- og ungdomsskoler, Drammen Realfagsskole Heltberg, Norlights Montessoriskole Drammen og Rosendal skole (Mjøndalen).
Det ligger flere videregående skoler i Drammen og Lier, samt Universitetet i Sørøst-Norge som har campus på Papirbredden i Drammen, for mer informasjon se www.usn.no.
Dersom skole- og barnehagetilbud er av betydning for kjøpet, ber vi om at det rettes en særskilt henvendelse til kommunen for oppdatert informasjon.
Beskrivelse av tomt
Eiet tomt på 9 030 kvm som tilhører sameiet. Tomten er fellesareal. Tomten er pent opparbeidet med gressplen, trær, prydbusker og diverse beplantninger. Hyggelige sitteområder på fellesarealet. Asfalterte gang- og kjøreveier.
Parkering
Leiligheten disponerer en parkeringsplass i felles garasjeanlegg (nr. 17 iflg. selger), hver seksjonseier eier en lik andel i garasjelaget.
Sameiet er i en prosess vedrørende riving av eksisterende garasjer og oppføring av nytt garasjeanlegg. Se punkt om sameiet for mer informasjon.
Øvrig gjesteparkering på oppmerkede parkeringsplasser (ved oppgang 48, nedkjøring til nivå 1 i parkeringshuset og ved Kastanjeveien 56).
Vei, vann og avløp
Eiendommen har adkomst via kommunal vei, privat stikkvei med felles vedlikeholdsansvar for Sameiet.
Eiendommen er tilknyttet kommunalt ledningsnett via private stikkledninger. Sameiet er ansvarlig for private stikkledninger til bygningen.
Regulerings-og arealplaner
Eiendommen er regulert til bl.a. boligformål, i henhold til reguleringsplan for Bråtan Vest datert 08.03.1974. Videre er eiendommen avsatt til boligbebyggelse og adkomstvei ved kommuneplanen datert 05.10.2015 med tilhørende bestemmelser. Utsnitt av plan med tilhørende bestemmelser kan fås ved henvendelse til megler.
Det foreligger en igangsatt planlegging av ny kommunedelplan for FV 283 Rosenkrantzgata (se kommunens hjemmeside for mer info). Planen Fv 283 Rosenkrantzgata gjelder ny utforming av vei hvor hele Åssiden bydel er avsatt som planområde, men store deler av området blir ikke direkte berørt.
Det opplyses om utstedt rammetillatelse til oppføring av boligbygg på 3. og 4. etasjer på Kastanjeveien 46 (naboeiendommen mot øst). Tidshorisont og endelig utforming av prosjektet er pt. ikke klart, det må påregnes støy o.l. fra byggeprosjektet under utbyggingen.
Økonomi
Økonomi
Boligens kostnader
Felleskostnadene inkluderer bla. varmtvann, kommunale avgifter (vann og avløp), renovasjon, tv/internett grunnpakke, fremtidig garasjeanlegg, felles vedlikehold, felles driftskostnader, snøbrøyting/plenklipping, gang/trappevask, strøm i fellesarealer, forretningsførsel, revisjon- og administrasjonskostnader, styrehonorar, felles bygningsforsikring m.m.. Felleskostnadene justeres normalt en til to ganger årlig i forhold til sameiets faktiske utgifter.
Felleskostnadene pr. mnd fordeles slik:
Felleskostnader kr. 2.832,-
Garasjeprosjekt kr. 110,-
Tv/internett kr. 369,-
Dugnad kr. 50,-
Sameiet har vedtatt riving og oppføring av nytt garasjeanlegg, dette vil bli finansiert ved et nytt låneopptak som medfører en økning av felleskostnadene. Felleskostnadene vil bli på totalt ca. kr 6.670,- (ut i fra dagens lånebetingelser), estimert iverksettelse er tidligst 01.06.2026 iflg. styreleder. I tillegg har selger betalt engangs kapitalinnkreving på kr 176.000,- pr. seksjon som har forfall 31.01.2026. Se mer informasjon om prosjektet under "om sameiet".
Det må påregnes kostnader til strøm og nettleie, dette vil variere avhengig av strøm-/nettselskap. Nåværende eier har et strømforbruk som tilsvarer ca. kr 4.000,- pr. år.
Boligen er tilknyttet Viken fiber Altibox som leverandør av tv/internett, grunnpakke er inkludert i felleskostnadene. Selger har betalt for en utvidet pakke, dette koster kr 479,- pr. mnd.
Det må påregnes kostnader til innboforsikring.
Ovenstående er basert på nåværende eier/husstands senere års forbruk/utgifter. Dette vil variere avhengig av antall beboere, ønsket innetemperatur, egne fordelsavtaler, kanalvalg, hastighet på bredbånd osv.
Formuesverdi
Formuesverdi for 2022 var kr 669 993,- ifølge skatteetaten. Beløpet forutsetter at eier bor fast i boligen (primærbolig).
Ved eventuell øvrig bruk av eiendommen (f.eks. fritidsbolig, pendlerbolig, utleieobjekt) var formuesverdien for 2022 kr 2 545 972,-.
Formuesverdien justeres normalt årlig. Se skatteetaten.no for mer informasjon om fastsettelse av formuesverdien.
Opplysninger om fellesgjeld
Andel formue er kr 47 088,- pr. 05.08.2024.
Andel fellesgjeld er kr 0,- pr. 05.08.2024.
Sameiet har ingen fellesgjeld.
Omkostninger
2 450 000,00 Prisantydning
Omkostninger
61 250,00 Dokumentavgift til staten (2,5% av kjøpesum)
9 950,00 Gjensidige Boligkjøperpakke (valgfri)* (valgfritt)
545,00 Tinglysing panterettsdokument
545,00 Tinglysing skjøte
--------------------------------------------------------
62 340,00 Omkostninger totalt (uten Gjensidige Boligkjøperpakke (valgfri))
72 290,00 Omkostninger totalt (med Gjensidige Boligkjøperpakke (valgfri))
--------------------------------------------------------
2 512 340,00 Totalpris inkl. omkostninger
2 522 290,00 Totalpris inkl. omkostninger (med Gjensidige Boligkjøperpakke (valgfri))
--------------------------------------------------------
Totalpris inkl. omkostninger forutsetter kjøp til prisantydning.
Det tas forbehold om endringer i avgifter og gebyrer.
Tilbud om lånefinansiering
Megler formidler gjerne kontakt med rådgiver hos vår samarbeidspartner BN Bank. De har konkurransedyktige betingelser samt rask og løsningsorientert behandling av din lånesøknad. Krogsveen mottar et honorar for denne formidlingen.
Betalingsbetingelser
Kjøpesum inkludert omkostninger, samt pantedokument tilknyttet eventuelt lån, skal være disponibelt hos megler 2 virkedager før overtagelsen.
Annen viktig informasjon
Annen viktig informasjon
Eier
Bent Øivind Karlsen Gustavsen
Informasjon om sameiet
Leiligheten er tilknyttet Boligsameiet Kastanjeveien 48-58.
Sameiet består av 78 leiligheter og 1 garasjeseksjon.
Forretningsfører er Boalliansen Forvaltning AS.
Sameiets årsregnskap for 2024 viser et underskudd på kr -617.521,-.
Dugnader og vaktmesterturnus tilknyttet sameiet må påregnes.
Dyrehold er tillatt, med mindre det er til sjenanse for øvrige beboere og sameiets satte betingelser følges. Disse kan fås ved henvendelse til megler.
Borettslagets hjemmeside: www.bsk48-58.no.
Iht. husordensreglene skal vedlikeholdsarbeider ved renovering i seksjonene kun skje innenfor bestemte tidsrom (kl. 08.00 til 20.00 - mandag til fredag og kl. 10.00 til 17.00 - lørdag). Det er ikke tillatt på søndager og helligdager.
Seksjonseieres vedlikeholdsplikt omfatter reparasjon og utskiftning av slikt som vinduer, vinduskarmer, ytterdører m.m. iht. vedtektene. Skal det byttes vinduer og dører, eller gjøre andre endringer som kan påvirke sameiets fasade, eller ombygninger innvendig utover vanlig oppussing må det søkes styret om godkjennelse iht. husordensreglene.
Styret er av den oppfatning at det utførte løpende og periodiske vedlikeholdet er tilstrekkelig for å opprettholde den bokførte verdien på bygningsmassen.
Foretatte arbeid/påkostninger de senere år: Reparasjon av elektrisk anlegg og fasadeplater. Utført radontiltak. Skiftet gulvbelegg i fellesområde. Nytt tak ble ferdigstilt (2020), grundig vasking av garasjeanlegg, defekt utebelysning og montering av lyskastere (56-58). Nye låser i sikringsskap.
Saker som har vært og er under arbeid iht. årsmelding for 2024: Oppfølging av regelmessig vedlikehold av grøntanlegg. Kontroll av takvifter i alle oppganger. Radonmåling i oppganger (utført digitalt). Rengjort slukrister på tak (vår og høst). Oppmerking av parkeringsplasser. Innhentet tilbud på låsesystem og dørautomatikk. Vurdert ekstra filtrering på vanninntak. Utskiftning av eldre vinduer (ikke i balkong), utføres av hver enkelt seksjonseier innen 31.12.2026.
Det har blitt vedtatt riving av eksisterende garasje og oppføring av nytt garasjeanlegg på ekstraordinært møte den 05.11.2025. Estimert anslag for prosjektet er kr 47.625.000,-, deler av beløpet vil bli finansiert ved et nytt låneopptak og kapitalinnkreving. Det er tilrettelagt for førtidig nedbetaling (IN-ordning), som gir seksjonseierne mulighet til å innfri sin andel av fellesgjelden etter nærmere beskrevne rutiner hos bank og forretningsfører. Leiligheten betaler et beløp pr. mnd i felleskostnadene som er øremerket til garasjeprosjektet, kostnaden dekker vedlikehold, oppstøtting, befaringer, dispensasjons- og rammesøknad samt tilbudsprosess (både eksisterende og nytt garasjeanlegg). Estimert oppstart er tidligst 01.06.2026 iflg. styreleder.
Ved ferdigstillelse av prosjektet vil det bli utvidede parkeringsplasser, infrastruktur for el-billading på alle plasser, mulighet for bestilling av el-billader underveis og/eller etter prosjektet og felles takhage på 700 kvm med grøntarealer, lekeplass, utsiktspunkter samt møteområder. Det må påregnes utfordringer med parkering under byggeperioden, estimert byggetid er på 6 måneder.
I arbeidet med garasjesaken har styret avdekket av grunnbokshjemmelen til garasjeanlegget tilligger Kastanjeveien Garasjelag (ikke eksistert på veldig mange år). Styret vil innhente juridisk bistand for å avklare at grunnbokshjemmelen til sameiets garasjeeiendom, kan overføres til sameiet. Selve tinglysingen, herunder med et estimat på dokumentavgiften, vil bli forelagt årsmøtet på et senere tidspunkt sammen med tilbudene og vurderingen ifbm. garasjeprosjektet.
Seksjonseieren disponerer fritt over egen seksjon med de begrensninger som følger av sameieforholdet og eierseksjonsloven. Seksjonseieren kan fritt selge, pantsette og leie ut sin egen seksjon. Sameiets styre skal underrettes skriftlig om alle overdragelser og leieforhold, senest 14 dager etter overtakelse/utleie.
Ingen kan kjøpe eller på annen måte erverve flere enn to boligseksjoner i sameiet i henhold til lov om eierseksjoner. Dette gjelder ikke for kjøp og erverv av fritidsboliger, erverv ved ekspropriasjon, arv eller forskudd på arv til livsarving eller en kreditors erverv for å redde en fordring som er sikret med pant i en seksjon.
Sameiets bygningsmasse er fullverdiforsikret i IF Skadeforsikring NUF, polisenr: SP848468.6.1.
Dokumenter vedrørende sameiet kan fås ved henvendelse til megler.
Overtakelse
Etter nærmere avtale.
Boligselgerforsikring
Selger har i forbindelse med salget tegnet boligselgerforsikring levert av Gjensidige.
Boligselgerforsikringen dekker selgers ansvar etter avhendingsloven begrenset oppad til kr 14 millioner. Dersom kjøper oppdager forhold ved eiendommen som hen mener utgjør en mangel ved eiendommen, vil Gjensidige behandle reklamasjonen på vegne av selger. Forsikringsvilkår kan fås ved henvendelse til megler.
Vedlagt salgsoppgaven følger selgers egenerklæringsskjema og tilstandsrapport. Interessenter må sette seg inn i dokumentene før bud inngis.
Boligkjøperforsikring
Innen kontraktsmøtet må kjøper ta stilling til om det ønskes å bestille Boligkjøperpakken gjennom Gjensidige. I denne gunstige pakken er boligen ferdig forsikret og inkluderer rettshjelpsforsikring, også kalt Boligkjøperforsikring. Rettshjelpsforsikring gir trygghet og tilgang på profesjonell juridisk hjelp dersom det oppdages uventede feil eller mangler det første året etter overtagelse. Forsikringsselskapet behandler i så fall ethvert mangelskrav kjøper måtte ha overfor selger.
Boligkjøperpakken inkluderer bygningsforsikring for hus og hytte, innboforsikring, flytteforsikring og dobbel rentedekning - i situasjoner hvor kjøper ikke får solgt nåværende primærbolig.
Kjøper mottar ingen særskilt faktura for Boligkjøperpakken da kostnaden det første året legges til kjøpesummen for boligen. Det gjøres oppmerksom på Krogsveen mottar et honorar for denne formidlingen.
Produktark for Boligkjøperpakken ligger vedlagt i salgsoppgaven.
Dersom ikke boligkjøperpakke ønskes kan kun rettshjelpsforsikring, også kalt boligkjøperforsikring, tegnes særskilt via megler. Rettshjelpsforsikringen varer i 5 år fra overtagelse og leveres gjennom Gjensidige. Ta kontakt med megler for ytterligere informasjon.
Selskap og privatpersoner som driver med kjøp/salg/utvikling som ledd i egen næringsvirksomhet kan ikke tegne boligkjøperpakke eller rettshjelpsforsikring.
Budgivning
Forbrukerinformasjon om budgivning er vedlagt denne salgsoppgaven og er også på vår hjemmeside Krogsveen.no. Alle bud og budforhøyelser må inngis skriftlig. I tillegg må legitimasjon være fremlagt sammen med signatur fra budgiver.
Vi oppfordrer til å gi bud elektronisk via GI BUD-knappen på eiendommens hjemmeside på Krogsveen.no. Da vil samtlige vilkår bli oppfylt.
Eventuelle forhøyelser eller endringer av budet kan bekreftes pr SMS eller på e-post. Vi oppfordrer alltid til å kontakte megler pr. telefon i tillegg da forsinkelser i SMS og e-post kan forekomme.
For at budene skal kunne bli behandlet og videreformidlet skriftlig til alle involverte parter, må alle bud ha en tilstrekkelig lang akseptfrist, jf. eiendomsmeglingsforskriften § 6-3.
Selger må også skriftlig akseptere budet før aksept kan formidles til budgiver. Akseptfrist bør derfor være på minimum 30 minutter, og budforhøyelser må derfor skje i god tid før fristens utløp.
Bud i forbrukerforhold kan uansett ikke settes med kortere frist enn kl. 12.00 første virkedag etter siste annonserte visning. I tillegg kan ikke budet ha forbehold om at det skal holdes hemmelig ovenfor øvrige interessenter. Megler har iht lov om eiendomsmegling ikke anledning til å videreformidle disse budene, og de vil dermed heller ikke bli journalført.
Etter at eiendommen er solgt vil kjøper og selger få tilsendt budjournal. Øvrige budgivere kan få utlevert kopi av budjournalen i anonymisert form.
Hvitvaskingsreglene
I henhold til lov om hvitvasking og terrorfinansiering har megler plikt til å gjennomføre kontrolltiltak overfor kunder, herunder fullmektiger. Dette innebærer bl.a. å bekrefte kunders og reelle rettighetshaveres identitet på bakgrunn av fremvist gyldig legitimasjon eller på annen godkjent måte, samt å innhente opplysninger om kundeforholdets formål og tilsiktede art.
Dersom slike kundetiltak ikke kan gjennomføres, kan megler ikke etablere kundeforholdet eller utføre transaksjonen.
Hvis kjøper ikke bidrar til gjennomføring av kundekontrollen og dette fører til at transaksjonen blir forsinket eller ikke kan gjennomføres, vil dette ansees som mislighold av avtalen og gi selger rettigheter etter avhendingslova kapittel 5. I tilfeller der selger ikke bidrar til gjennomføring av løpende kundekontroll underveis i oppdraget, er det selger som misligholder sine forpliktelser etter avtalen og gi kjøper rettigheter etter avhendingslovens kapittel 4. Partene er selv ansvarlige for eventuelle kostnader og ansvar dette kan medføre. Eiendomsmegleren eller eiendomsmeglingsforetaket kan ikke holdes ansvarlig for de konsekvenser dette vil kunne få for partene eller andre som har interesser i eiendomshandelen.
Kjøper oppfordres til å innbetale kjøpesummen som ikke kommer fra låneinstitusjon i én samlet innbetaling fra egen konto i norsk bank. Megler har plikt til å melde fra til Økokrim om eiendomshandler som fremstår som mistenkelige. Melding sendes Økokrim uten at partene varsles.
Personopplysningsloven
I henhold til personopplysningsloven gjør vi oppmerksom på at interessenter kan bli registrert for videre oppfølging.
Lovanvendelse
Generelle bestemmelser
Salgsoppgaven er basert på de opplysningene selger har gitt til megler, den bygningssakyndiges tilstandsrapport, samt opplysninger innhentet fra kommunen, Kartverket og andre tilgjengelige kilder. Det er viktig at kjøper setter seg grundig inn i alle salgsdokumentene, herunder salgsoppgave, tilstandsrapport og selgers egenerklæring. Kjøper anses kjent med forhold som er tydelig beskrevet i salgsdokumentene, og slike forhold kan ikke påberopes som mangler. Dette gjelder uavhengig av om kjøper har lest dokumentene. Alle interessenter oppfordres til å undersøke eiendommen nøye, gjerne sammen med fagkyndig før bud inngis. Kjøper som velger å kjøpe usett kan ikke gjøre gjeldende som mangel noe han burde blitt kjent med ved undersøkelsen.
Dersom det er behov for avklaringer, anbefaler vi at interessenter rådfører seg med eiendomsmegler eller egne rådgivere før det legges inn bud.
En bolig som har blitt brukt i en viss tid, har vanligvis blitt utsatt for slitasje og skader kan ha oppstått. Slik bruksslitasje må kjøper regne med, og det kan avdekkes enkelte forhold etter overtakelse som nødvendiggjør utbedringer. Normal slitasje og skader som nødvendiggjør utbedring, er innenfor hva kjøper må forvente og vil ikke utgjøre en mangel.
Kjøper og selgers rettigheter og plikter reguleres av avtalen mellom partene, samt informasjonen som har vært tilgjengelig for kjøperen i forbindelse med handelen. Avtalen utfylles av avhendingsloven, og det gjelder ulike avtalevilkår avhengig av om kjøper er forbrukerkjøper eller ikke. Dette er nærmere beskrevet nedenfor.
På grunn av ulike avtalevilkår kan selger vurdere bud fra en som ikke er forbruker, ulikt fra en forbrukers bud. Dersom kjøper ikke er forbruker, er selger sitt mulige mangelsansvar begrenset fordi eiendommen selges "som den er". Selger kan ikke ta «som den er»- forbehold overfor en forbrukerkjøper. Selv et lavere bud fra en som ikke er forbruker kan foretrekkes fordi begrensningen i mulig mangelsansvar kan ha egenverdi for selger. Selger står fritt til å forkaste eller akseptere ethvert bud, og er for eksempel ikke forpliktet til å akseptere høyeste bud.
Budgiver skal i budskjema avgi egenerklæring om budgiver er forbruker eller næringsdrivende/ person som hovedsakelig handler som ledd i næringsvirksomhet. Budgivere får informasjon dersom andre bud er inngitt av en som ikke er forbruker.
Forbrukerkjøp - definisjon
Med forbrukerkjøp menes kjøp av eiendom når kjøperen er en fysisk person som ikke hovedsakelig handler som ledd i næringsvirksomhet.
Forbruker – avtalevilkår
Eiendommen har en mangel dersom den ikke er i samsvar med kravene som følger av avtalen, eller det foreligger brudd på bestemmelsene i avhendingsloven §§ 3-2 til 3-8. Hvis eiendommen ikke er i samsvar med det kjøperen må kunne forvente ut ifra alder, type og synlig tilstand, kan det være grunnlag for mangelskrav. Det samme gjelder hvis det er holdt tilbake eller gitt uriktige opplysninger om eiendommen. Dette gjelder likevel bare dersom man kan gå ut ifra at det virket inn på avtalen at opplysningen ikke ble gitt eller at mangelskravet ikke blir rettet i tide på en tydelig måte.
Boligen kan ha en mangel etter avhendingsloven § 3-3 andre ledd, dersom det er avvik mellom opplyst og faktisk innvendig areal, forutsatt at avviket er på 2% eller mer og minimum 1 kvm.
Ved beregning av et eventuelt prisavslag eller erstatning må kjøper selv dekke tap/kostnader opptil et beløp på kr 10 000 (egenandel).
Ikke-forbruker (næringsdrivende) – definisjon
Hvis kjøper er en juridisk person, eller en fysisk person som hovedsakelig handler som ledd i næringsvirksomhet, vil kjøpet ikke anses som et forbrukerkjøp.
Ikke-forbruker – avtalevilkår
Eiendommen har en mangel dersom den ikke er i samsvar med kravene som følger av avtalen.
Eiendommen selges «som den er», og selgers ansvar utover det konkret avtalte er da begrenset etter avhendingsloven § 3-9, første ledd andre setning.
Avhendingsloven § 3-3 andre ledd fravikes, og hvorvidt boligens arealsvikt utgjør en mangel vurderes etter avhendingsloven § 3-8.
Informasjon om kjøpers undersøkelsesplikt, herunder oppfordringen om å undersøke eiendommen nøye, gjelder også for kjøpere som ikke anses som forbrukere.
Det forutsettes at hjemmel overføres til kjøper. Hvis kjøper ikke ønsker hjemmelsoverføring av eiendommen, må det tas forbehold om dette i budet.
Rett til fritt å velge megler
Valg av eiendomsmeglingsforetak skal være frivillig. Eiendomsmeglingsforetak kan ikke inngå oppdrag om eiendomsmegling dersom inngåelsen av oppdraget er satt som vilkår i avtale om annet enn eiendomsmegling, f.eks. tilbud om lån eller andre banktjenester, jf. Lov om eiendomsmegling § 6-3 (3)
Meglers vederlag
Meglers vederlag betales av selger og er avtalt til:
Vederlag: kr 40.000,-
Vederlag
Kontroll av hjemmel og heftelser kr 2 900,00
Løfting av finn.no 11.11.2024 kr 2 900,00
Markedsføringspakke kr 27 200,00
Oppgjør kr 7 500,00
Tilrettelegging kr 17 000,00
Visninger pr. stk. (gjelder fellesvisninger eller privatvisninger etter kl16/helgedag) kr 3 500,00
Utlegg
Eierskiftegebyr forretningsfører (selger) kr 6 385,00
Innhenting av informasjon forretningsfører kr 4 704,00
Innhenting av offentlig opplysninger Drammen tegninger og RFD kr 2 674,00
Tinglysing sikring kr 500,00
Andre utgifter
Boligfotografering kr 3 700,00
Boligselgerforsikring Buysure (anslag, utgjør 3,31 promille av oppnådd salgssum) kr 9 434,00
Dronefoto (valgfritt) kr 1 700,00
Tilstandsrapport fra takstmann kr 9 700,00
Opplysninger om oppdraget
Oppdragsnummer 20-0228/24
Eiendomsmegler Krogsveen AS, avd. Drammen
Nedre Storgate 16, 3015, DRAMMEN
950 007 613
Oppdragets KR-kode KR20.24228
Dato
Sist oppdatert: 24. mai 2026 kl. 22:06
Dokumenter
Dokumenter
PDF – 656 KB
PDF – 562 KB
PDF – 939 KB
PDF – 440 KB
PDF – 312 KB
PDF – 29 KB
PDF – 127 KB
PDF – 392 KB
Område
Legg til steder som er viktige for deg
Visning
For å delta på visning, ber vi om at du melder deg på. Da sikrer vi at du får nødvendig informasjon og at det er satt av tilstrekkelig med tid. Kontakt megler dersom annet tidspunkt ønskes. Husk å lese salgsoppgaven før visningen, så du stiller forberedt. NB. Visning utgår dersom det ikke er noen påmeldte. Påmeldingsfrist er 1 time før oppsatt fellesvisning.
Ønsker du kun å bli holdt orientert, kan du fra eiendommens hjemmeside få varsel om solgtpris, eller kontakte megler.
Lurer du på noe?
Unngå doble boligrenter
Vi tilbyr gunstig forsikring.
Vurderer du utleie?
Få et tilbud fra Utleie KrogsveenHva koster lånet?
Sjekk estimert lånekostnadVil du varsles om lignende boliger?
Ved å lagre ditt boligsøk hos oss får du beskjed når vi har en bolig som ligner denne, før den legges ut på markedet!




