Stubberudveien 5
9 200 000 kr
346 m²
7 soverom
Solgt

Presenteres av
Arild KnudsenKonnerud
Romslig og innholdsrik familiebolig med stor utleiedel - Totalt 346 kvm BRA-i. Stor og solrik hage. Dblgarasje m/carport
Prisantydning
9 200 000 krOmkostninger
250 990 krTotalpris
9 450 990 kr
Pris
Bruksareal
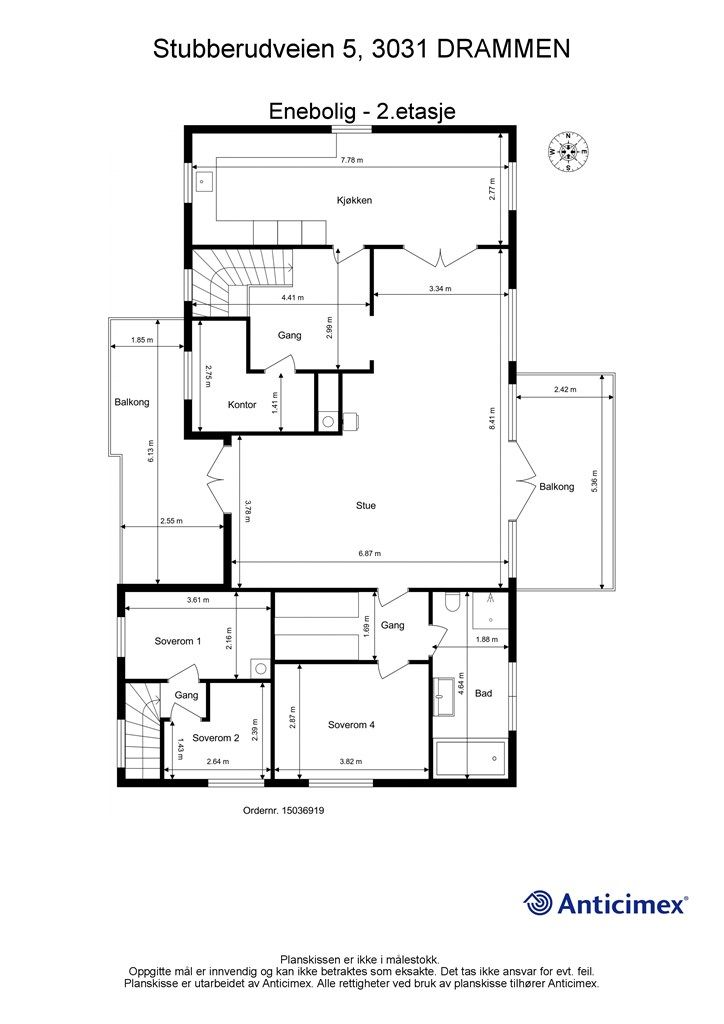
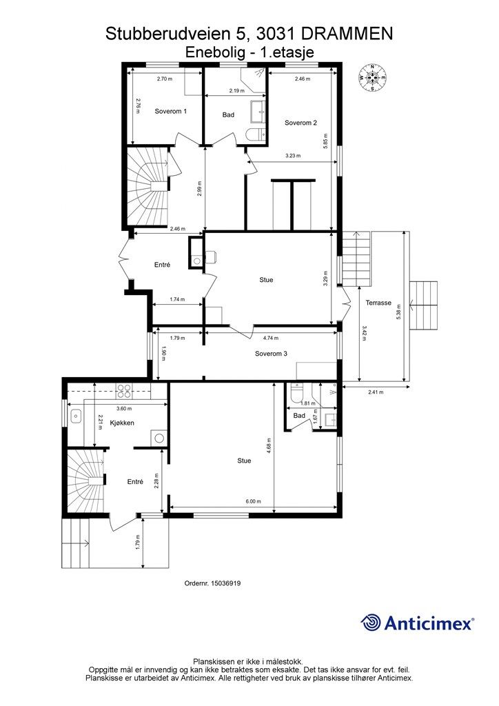
387 m²BRA-I (internt bruksareal)
346 m²BRA-E (eksternt bruksareal)
41 m²TBA (terrasse-balkongareal)
44 m²
Areal
Etasje
3Byggeår
1920Soverom
7 soveromBad
3 badTomteareal
1 673 m² (eiet)Type
Enebolig med utleiedelEierform
EietFasiliteter
Garasje/P-plass og Balkong/TerrasseEnergimerke
Oransje G
Nøkkelinfo
Unngå doble boligrenter
Vi tilbyr gunstig forsikring.
Vurderer du utleie?
Få et tilbud fra Utleie KrogsveenHva koster lånet?
Sjekk estimert lånekostnadBeskrivelse
Kort om eiendommen
Romslig og innholdsrik familiebolig med stor utleiedel - Totalt 346 kvm BRA-i.
Gjennomgående vinkelstue med peisovn og varmepumpe
Lekker HTH kjøkkeninnredning med helintegrerte hvitevarer
Delikat og innbydende bad i 2. etg med badekar og dusjnisje
Ekstra stue og flislagt bad med dusjkabinett i 1. etg
Praktisk vaskekjeller, wc-rom, dusjrom og badstue i kjeller
Stor 3-roms utleiedel over 2 etasjer (god skattefri leieinntekt)
Solrike uteplasser rundt boligen og stort hageområde
Dobbelgarasje med el-billader, carport og romslig gårdsplass
Fin beliggenhet i enden av en privat blindvei
Kort gangavstand til Konnerudsenteret og flere servicetilbud
Velkommen til visning!
Område
Legg til steder som er viktige for deg
På flyttefot? Tenk kjøp og salg samtidig.
Få din egen rådgiver gjennom hele kjøps- og salgsprosessen. Det starter med en verdivurdering.
Unngå doble boligrenter
Vi tilbyr gunstig forsikring.
Vurderer du utleie?
Få et tilbud fra Utleie KrogsveenHva koster lånet?
Sjekk estimert lånekostnadVil du varsles om lignende boliger?
Ved å lagre ditt boligsøk hos oss får du beskjed når vi har en bolig som ligner denne, før den legges ut på markedet!
På flyttefot? Slik gjør vi det enklere for deg
Skreddersydd flyttepakke
Vi fikser håndverkere, vask, pakking, lagring og transport, og legger ut for utgiftene underveis.
Hjelp med både kjøp og salg
Hos oss har du din egen rådgiver gjennom hele kjøps- og salgsprosessen.
Hjelp til finansiering
Vårt samarbeid med BN Bank sikrer deg rask og løsningsorientert hjelp, til konkurransedyktige betingelser.

