Wilh. Wilhelmsens vei 53B
7 500 000 kr
123 m²
3 soverom
Solgt

Pen og lys horisontaldelt tomannsbolig - Flott beliggende, rolig og usjenerte uteplasser - Oppussing - Utsikt og garasje
Prisantydning
7 500 000 krOmkostninger
208 490 krTotalpris
7 708 490 kr
Pris
Bruksareal
123 m²BRA-I (internt bruksareal)
123 m²TBA (terrasse-balkongareal)
25 m²
Areal
Etasje
2Byggeår
1962Soverom
3 soveromBad
2 badType
Halvpart horisontaldelt boligEierform
EierseksjonFasiliteter
Garasje/P-plass og Balkong/TerrasseEnergimerke
Rød G
Nøkkelinfo
Unngå doble boligrenter
Vi tilbyr gunstig forsikring.
Vurderer du utleie?
Få et tilbud fra Utleie KrogsveenHva koster lånet?
Sjekk estimert lånekostnadBeskrivelse
Kort om eiendommen
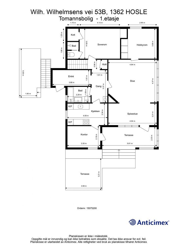
Eiendomsmegler Mats Lund ved Krogsveen Bekkestua har gleden av å ønske velkommen til Wilh. Wilhelmsens vei 53B, og en hyggelig del av en horisontaldelt tomannsbolig på Hosle. Boligen har et oppussingsbehov, men har et stort potensial til å bli en flott familiebolig. Boligen har en attraktiv beliggenhet i et rolig og barnevennlig boligområde med korte avstander til barnehager, skoler, butikker, buss og T-bane, samt flotte turområder sommer som vinter.
Boligen går over 1 etasje og deler av underetasje. En flott planløsning bestående av entré, stor og lys stue, kjøkken, 3 soverom og to bad i 1. etasje, og vaskekjeller, hobbyrom og entré i underetasjen. Utvendig byr boligen på to nydelige terrasser, hage, én parkeringsplass i dobbelgarasje og ellers parkering i felles innkjørsel.
Område
Legg til steder som er viktige for deg
På flyttefot? Tenk kjøp og salg samtidig.
Få din egen rådgiver gjennom hele kjøps- og salgsprosessen. Det starter med en verdivurdering.
Unngå doble boligrenter
Vi tilbyr gunstig forsikring.
Vurderer du utleie?
Få et tilbud fra Utleie KrogsveenHva koster lånet?
Sjekk estimert lånekostnadVil du varsles om lignende boliger?
Ved å lagre ditt boligsøk hos oss får du beskjed når vi har en bolig som ligner denne, før den legges ut på markedet!

