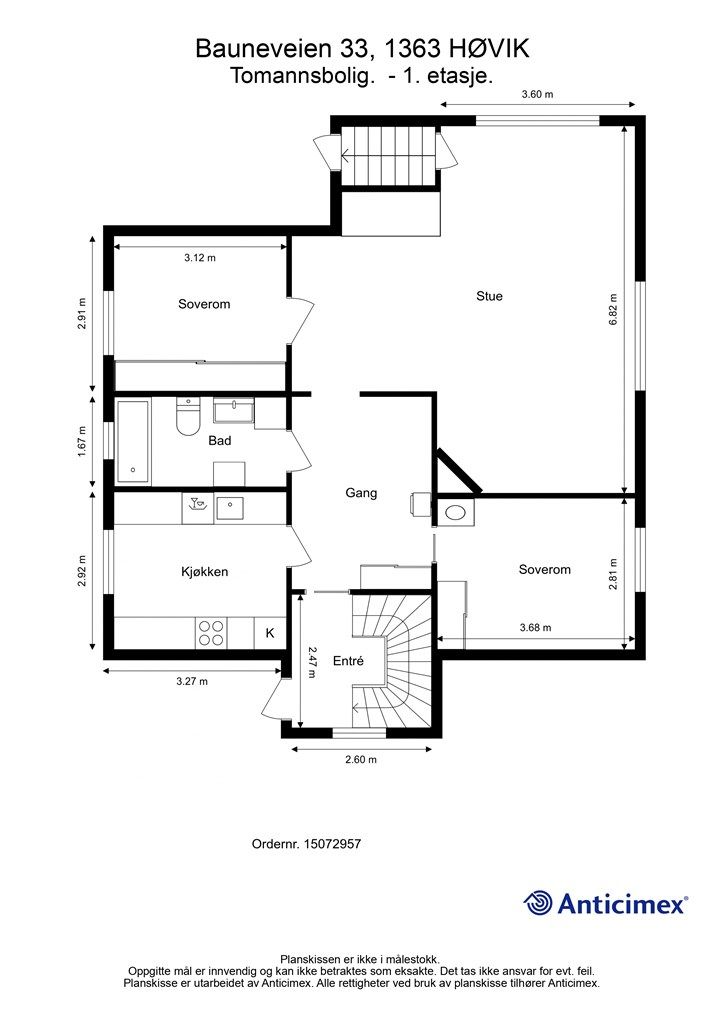
Bauneveien 33
10 800 000 kr
258 m²
4 soverom
Solgt

Høvik
Hel tomannsbolig med oppussingsbehov på 1,1 måls tomt i rolige, solrike og barnevennlige omgivelser
Prisantydning
10 800 000 krOmkostninger
290 990 krTotalpris
11 090 990 kr
Pris
Bruksareal
298 m²BRA-I (internt bruksareal)
258 m²BRA-E (eksternt bruksareal)
40 m²
Areal
Byggeår
1953Soverom
4 soveromBad
4 badTomteareal
1 103 m² (eiet)Type
Hel 2-mannsboligEierform
EietFasiliteter
Garasje/P-plassEnergimerke
Oransje G
Nøkkelinfo
Unngå doble boligrenter
Vi tilbyr gunstig forsikring.
Vurderer du utleie?
Få et tilbud fra Utleie KrogsveenHva koster lånet?
Sjekk estimert lånekostnadBeskrivelse
Kort om eiendommen
Hel tomannsbolig på 1,1 mål med oppussingsbehov, beliggende i et rolig, solrikt og barnevennlig område. Boligen går over 3 etasjer og har fleksible planløsninger med stuer, kjøkken, bad og flere soverom, og gir en unik mulighet til å skape et moderne hjem etter egne ønsker. Uteområdene er romslige med mulighet for hage, lek og sosiale aktiviteter.
Eiendommen ligger i et hyggelig nabolag med kort gangavstand til skoler, barnehager og lekeplasser. Offentlig kommunikasjon er godt tilgjengelig med buss, tog og T-bane, og dagligvarebutikker, kafeer og servicetilbud finnes både i nærområdet og på Bekkestua og Sandvika. Videre byr nærområdet på flotte turområder, golfbane, idrettshaller og kort vei til sjøen med badestrender og båtplasser.
Velkommen til visning
Område
Legg til steder som er viktige for deg
På flyttefot? Tenk kjøp og salg samtidig.
Få din egen rådgiver gjennom hele kjøps- og salgsprosessen. Det starter med en verdivurdering.
Unngå doble boligrenter
Vi tilbyr gunstig forsikring.
Vurderer du utleie?
Få et tilbud fra Utleie KrogsveenHva koster lånet?
Sjekk estimert lånekostnadVil du varsles om lignende boliger?
Ved å lagre ditt boligsøk hos oss får du beskjed når vi har en bolig som ligner denne, før den legges ut på markedet!

