Kantarellveien 34
5 200 000 kr
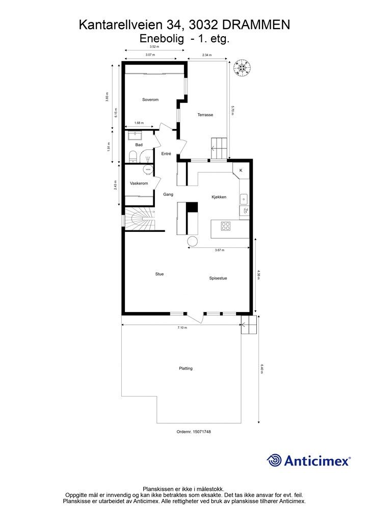
132 m²
4 soverom
Solgt

Presenteres av
Simen Ruud Konnerud
Pen og innbydende enebolig med 2 etasjer. 4 sov og 2 bad. Solrik og skjermet terrasse. Garasje. Barnevennlig boligområde
Prisantydning
5 200 000 krOmkostninger
150 990 krTotalpris
5 350 990 kr
Pris
Bruksareal
149 m²BRA-I (internt bruksareal)
132 m²BRA-E (eksternt bruksareal)
17 m²TBA (terrasse-balkongareal)
62 m²
Areal
Etasje
2Byggeår
1984Soverom
4 soveromBad
2 badTomteareal
386 m² (eiet)Type
Enebolig - FrittliggendeEierform
EietFasiliteter
Garasje/P-plass og Balkong/TerrasseÅrlig velavgift
2 000 krEnergimerke
Oransje F
Nøkkelinfo
Unngå doble boligrenter
Vi tilbyr gunstig forsikring.
Vurderer du utleie?
Få et tilbud fra Utleie KrogsveenHva koster lånet?
Sjekk estimert lånekostnadBeskrivelse
Kort om eiendommen
Pen og innbydende enebolig med 2 etasjer.
Åpen kjøkken- og stueløsning med peisovn samt varmepumpe
Klassisk og profilert kjøkken fra 2011 med integrerte hvitevarer
Bad samt vaskerom i 1. etg fra 2011 og bad i 2. etg fra 2008
Vinduer fra 2011/2023 og utført takfornying i 2022
Lun og skjermet sydvestvendt platting på ca. 44 kvm med utepeis
Overbygget sydvestvendt balkong på ca. 6 kvm med utsikt
Eiendommen har gode solforhold
Garasje på ca. 17 kvm med el-billader
Attraktivt, solrikt og barnevennlig boligområde
Grensende til kommunalt friareal og i enden av feltet
Umiddelbar nærhet til gangvei bak boligen og barnehage
Ca. 5 min kjøring til Konnerud sentrum og Konnerudsenteret
Velkommen til visning!
Område
Legg til steder som er viktige for deg
På flyttefot? Tenk kjøp og salg samtidig.
Få din egen rådgiver gjennom hele kjøps- og salgsprosessen. Det starter med en verdivurdering.
Unngå doble boligrenter
Vi tilbyr gunstig forsikring.
Vurderer du utleie?
Få et tilbud fra Utleie KrogsveenHva koster lånet?
Sjekk estimert lånekostnadVil du varsles om lignende boliger?
Ved å lagre ditt boligsøk hos oss får du beskjed når vi har en bolig som ligner denne, før den legges ut på markedet!
På flyttefot? Slik gjør vi det enklere for deg
Skreddersydd flyttepakke
Vi fikser håndverkere, vask, pakking, lagring og transport, og legger ut for utgiftene underveis.
Hjelp med både kjøp og salg
Hos oss har du din egen rådgiver gjennom hele kjøps- og salgsprosessen.
Hjelp til finansiering
Vårt samarbeid med BN Bank sikrer deg rask og løsningsorientert hjelp, til konkurransedyktige betingelser.

