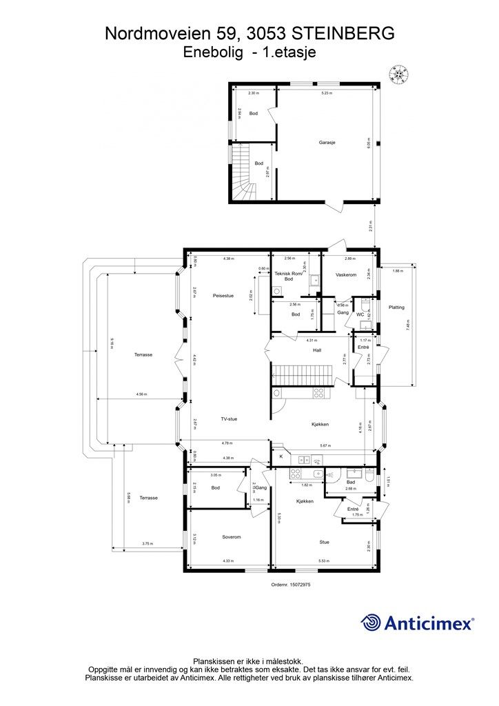
Nordmoveien 59
6 250 000 kr
281 m²
5 soverom
Solgt

Steinberg
Romslig og innholdsrik familiebolig m/hybel. Nordvestvendt terrasse og stor hage. Dobbelgarasje. Attraktivt like v/elva.
Prisantydning
6 250 000 krOmkostninger
177 240 krTotalpris
6 427 240 kr
Pris
Bruksareal
346 m²BRA-I (internt bruksareal)
281 m²BRA-E (eksternt bruksareal)
65 m²TBA (terrasse-balkongareal)
86 m²
Areal
Etasje
2Byggeår
1999Soverom
5 soveromBad
2 badTomteareal
1 488 m² (eiet)Type
Enebolig - FrittliggendeEierform
EietFasiliteter
Garasje/P-plass og Balkong/TerrasseEnergimerke
Rød C
Nøkkelinfo
Unngå doble boligrenter
Vi tilbyr gunstig forsikring.
Vurderer du utleie?
Få et tilbud fra Utleie KrogsveenHva koster lånet?
Sjekk estimert lånekostnadBeskrivelse
Kort om eiendommen
- Romslig og svært innholdsrik enebolig over to etasjer
- Store oppholdsrom med mange innredningsmuligheter
- Solrikt, stort og skjermet uteområde og hage med mye boltreplass
- Peis både i stue og på kjøkken. Mobalpa-innredning på kjøkken
- Godt vedlikeholdt: Stor overvekt av TG1 og ingen TG3
- Praktisk vaskerom med egen utgang. WC-rom i 1. etasje
- Svært gode garderobe- og oppbevaringsløsninger
- 1-roms hybel med hybelkjøkken og bad (god, skattefri leieinntekt)
- Gulvvarme i de fleste rom. Balansert ventilasjon. Varmepumpe fra 2021, ny motor i kjølehjørne og sentralstøvsuger i 2025
- Isolert dobbelgarasje med elbil-lader og stort lagringsloft
- Kort vei til skole, barnehage, kollektivtrafikk og fine friarealer langs elva
- Solrike, barnevennlige og rolige omgivelser med lite trafikk
Område
Legg til steder som er viktige for deg
På flyttefot? Tenk kjøp og salg samtidig.
Få din egen rådgiver gjennom hele kjøps- og salgsprosessen. Det starter med en verdivurdering.
Unngå doble boligrenter
Vi tilbyr gunstig forsikring.
Vurderer du utleie?
Få et tilbud fra Utleie KrogsveenHva koster lånet?
Sjekk estimert lånekostnadVil du varsles om lignende boliger?
Ved å lagre ditt boligsøk hos oss får du beskjed når vi har en bolig som ligner denne, før den legges ut på markedet!

