Puttetjennvegen 12B
3 190 000 kr
65 m²
1 soverom
Solgt

Eidsvoll Verk
Tiltalende halvpart av tomannsbolig med attraktiv beliggenhet | 500 m. til togstasjon | Carport og solrik veranda |
Prisantydning
3 190 000 krOmkostninger
100 740 krTotalpris
3 290 740 kr
Pris
Bruksareal
70 m²BRA-I (internt bruksareal)
65 m²BRA-E (eksternt bruksareal)
5 m²
Areal
Etasje
2Byggeår
2005Soverom
1 soveromBad
1 badType
Halvpart horisontaldelt boligEierform
EierseksjonEnergimerke
Rød D
Nøkkelinfo
Unngå doble boligrenter
Vi tilbyr gunstig forsikring.
Vurderer du utleie?
Få et tilbud fra Utleie KrogsveenHva koster lånet?
Sjekk estimert lånekostnadBeskrivelse
Kort om eiendommen
Boligen har en rolig og tilbaketrukket beliggenhet på Råholt. Her bor du i gangavstand til sentrum og kun 500 m. unna Eidsvoll Verk togstasjon med meget god offentlig kommunikasjon mot OSL og Oslo.
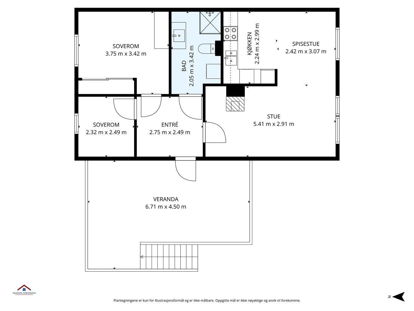
Stor og gjennomgående leilighet i 2. etasje av en horisontaldelt tomansbolig. Gjennomgående normalt god standard og arealeffektiv planløsning med fornuftig utnyttelse av bruksarealet som inneholder følgende: stue og kjøkken i åpen løsning, bad og to soverom. Soverom nr. 2 er byggemeldt som bod, og er ikke bruksendret eller godkjent til varig opphold, se mer info i prospekt. Videre har boligen godt med naturlig lys og god romfølelse, med utgang til stor og solrik veranda som er vestvendt. Perfekt for late sommerdager!
Parkering i felles carport og utebod på ca. 5 kvm.
Velkommen!
Område
Legg til steder som er viktige for deg
På flyttefot? Tenk kjøp og salg samtidig.
Få din egen rådgiver gjennom hele kjøps- og salgsprosessen. Det starter med en verdivurdering.
Unngå doble boligrenter
Vi tilbyr gunstig forsikring.
Vurderer du utleie?
Få et tilbud fra Utleie KrogsveenHva koster lånet?
Sjekk estimert lånekostnadVil du varsles om lignende boliger?
Ved å lagre ditt boligsøk hos oss får du beskjed når vi har en bolig som ligner denne, før den legges ut på markedet!

