Gamle Rognsvei 67
5 400 000 kr
272 m²
3 soverom
Komplett salgsoppgave
Bamble - Rogn
Stor boligeiendom med perfekt beliggenhet om du vil bo mellom sjøen og byen - nyte stillhet og utsikt
Prisantydning
5 400 000 krOmkostninger
155 990 krTotalpris
5 555 990 kr
Pris
Bruksareal
350 m²BRA-I (internt bruksareal)
272 m²BRA-E (eksternt bruksareal)
78 m²TBA (terrasse-balkongareal)
103 m²
Areal
Byggeår
1963Soverom
3 soveromBad
2 badTomteareal
1 370 m² (eiet)Type
Enebolig - FrittliggendeEierform
EietFasiliteter
Garasje/P-plass og Balkong/TerrasseEnergimerke
Rød G
Nøkkelinfo
Unngå doble boligrenter
Vi tilbyr gunstig forsikring.
Vurderer du utleie?
Få et tilbud fra Utleie KrogsveenHva koster lånet?
Sjekk estimert lånekostnadDette liker selger best ved boligen
Fantastisk beliggenhet - uforstyrret og landlig, fantastisk utsikt, deilige store rom, nært til både sjøen - den utrolig familievennlige Rognstranda,- og til tettstedene Stathelle og Langesund. Noen få minutter til E18 - og nærmest nøyaktig midt mellom Oslo og Kristiansand. Ca 1t 50 min begge veier.
Beskrivelse
Kort om eiendommen
Denne villaen ligger på Rogn, omkranset av naturen og åkerlandskap. Utsikten herfra er fantastisk og du kan se ut mot havet og horisonten med åker og enger i forgrunnen. Boligen er bygget med solide holdbare materialer og fremstår i dag som funksjonell og romslig med retropreg. Det er behov for oppgraderinger etter mange års bruk. Det beste med boligen er kanskje utsikten, men også uteplassen er verdt å fremheve.
Innhold og byggemåte
Innhold og byggemåte
Eiendommen
Gamle Rognsvei 67, 3961 STATHELLE
Kommunenummer 4012, gårdsnummer 37, bruksnummer 12, ideell andel 1/1
Innhold
Totalt bruksareal BRA: 350 kvm
BRA-i:
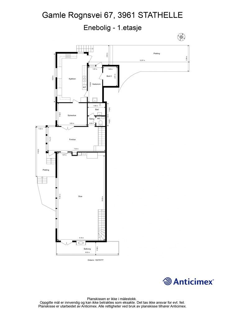
1. etasje 28 kvm: Entré, hall og toalettrom.
1. etasje 150 kvm: Gang, stue, kjøkken, forstue, spisestue, kjøkken, bad, toalettrom, vaskerom og en bod.
2. etasje 94 kvm: Gang, bad og tre soverom.
BRA-e: 1. etasje 19 kvm: Kjellerrom og en bod
Dobbelgarasje: 59 kvm
Terrasse og balkong areal:
Under etasje 14 kvm: Inngangsparti.
1. etasje 77 kvm: (Sydvendt platting 22 kvm., Vestvendt platting 42 kvm., overbygget veranda 13 kvm).
2.etasje 12 kvm: (Balkong 4 kvm, Veranda 8 kvm).
Bod og kjellerrom med utvendig adkomst er oppmålt til 19 kvm (BRA-e). Det gjøres oppmerksom på at arealene i bod og kjellerrom ikke er vurdert som BRA-i på bakgrunn av at arealene ikke har intern tilkomst til overliggende etasjer og oppfyller ikke alle hovedfunksjoner slik at arealet kan vurderes som en selvstendig boenhet. Vurdering av romfunksjoner baseres på skjønnsvurderinger gjort på befaringstidspunktet.
Bod og kjellerrom har et totalt gulvareal (GUA) på 20 kvm, men grunnet lav takhøyde er kun 19 kvm av arealet måleverdig som bruksareal. De delene av arealene som har lav himlingshøyde (ALH) utgjør 1 kvm.
Vedlagte plantegninger er ikke målbare. De oppgitte arealer er hentet fra rapport med befaringsdato 22.09.2025 utført av Anticimex AS Sandefjord. Arealene er beregnet og rom er definert etter dagens faktiske bruk, uavhengig av hva som er godkjent av bygningsmyndighetene.
Byggemåte
Selger har fått utarbeidet en tilstandsrapport, dvs. en teknisk gjennomgang av boligen hvor eventuelle avvik, risiko for kjøper og prisoverslag for hva som bør gjøres av oppgradering, er skissert. Se særskilt TGIU (tilstandsgrad ikke undersøkt), samt TG2 og TG3 som viser hva som er boligens normale slitasje, alder og type, hva som er avvik fra dette og hva som bør/må utbedres. Rapporten og selgers egenerklæring er en del av salgsoppgaven og må leses nøye før bud inngis. Kjøper overtar ansvaret for de opplysninger som fremkommer av salgsdokumentasjonen, og kan ikke gjøre gjeldende som mangel noe som burde vært kjent eller som ikke kan anses å ha betydning for avtalen.
Bygningen er iht. tilstandsrapporten oppført på støpt betong mot grunn. Grunnmur i betong- og lettklinkerkonstruksjon. Yttervegger, etasjeskiller og tak i trekonstruksjoner. Fasader med pusset mur og stående kledning. Saltak tekket med asfalt belegg, taktekking ble gjort i 2023. Vinduer, balkong- og terrassedører hovedsakelig med koblede vinduer, samt en del nyere vinduer med isolerglass. Markiser av eldre dato.
Det gjøres spesielt oppmerksom på forhold med tilstandsgrad 3 (TG3):
Badet i 1. etasje er vurdert samlet til TG3 grunnet alder og slitasje. Følgende avvik er registrert i tilstandsrapporten: Rommet har ikke tilstrekkelig tettesjikt og tilfredsstiller dermed ikke krav til fukt- og lekkasjesikkerhet. Det er registrert bomlyd under flere flis, sprekker i det støpte dekket samt fuktmerker i himlingen. Sluk og avløpsrør er over sin brukstid.
Vannrør for boligen er vurdert til TG3 da de har passert anbefalt brukstid.
Følgende forhold har fått tilstandsgrad 2 (TG2):
Bad 2. etasje: Helhetsvurdert til TG2. Avvik: Tettesjiktets alder tilsier usikker restlevetid. Det er registrert bomlyd i enkelte gulvfliser, sprekk i gulvfliser og manglende vedheft i elastiske flisfuger. Det er motfall mot sluk. Det er ikke foretatt fuktmåling.
Vaskerom: TG2 grunnet alder og slitasje. Avvik: Tettesjikt med usikker restlevetid. Gulvbelegg benyttet som fuktsikring har synlige skader. Våtromstapet viser slitasje og manglende vedheft. Vannrør, avløpsrør og sluk har passert anbefalt brukstid.
Kjøkken: TG2 på grunn av alder og slitasje. Gulvbelegg har sprekker og manglende vedheft. Innredningen har skjevheter og slitasje. Røropplegg og øvrige installasjoner er gamle.
Toalettrom: I underetasjen mangler luftespalte i dør eller terskel, noe som gir redusert ventilasjon når døren er lukket. Toalettrom i 1. etasje har liten eller ingen ventilasjon. Vann- og avløpsrør har passert anbefalt brukstid.
Øvrige rom: Slitte overflater og alderspreg. Avvik: tapet med manglende vedheft, fuktmerker på murvegger i bod, parkett med slitasje, hakk og merker, samt sprekker i himlinger.
Kjeller: Pussavskalling og kalk/saltutslag på vegger. Riss/sprekker på vegg i entré. I garderoberom i hall er det observert svertesopp. Etasjen har utlektede vegger under bakkenivå. Hulltaking og fuktmåling viser forhøyede verdier. Flere innerdører subber i terskel og henger ved åpning/lukking.
Krypkjeller og bod 1: TG2 da deler av krypkjelleren ikke kan inspiseres. Svertesopp og fuktmerker er observert på vegger. Forhøyede fuktverdier er registrert.
Skorstein: Riss/sprekker i skorstein ved inngangsparti. Selger opplyser at det er dårlig trekk i peis. Det er montert vifte på taket på pipa, men rommet er så stort at det tar lang tid å trekke ut luften. Feieluke er byttet. Flere tiltak bør vurderes før fyring.
Innvendige trapper har lavere rekkverkshøyde enn dagens krav, åpninger mellom trinn over 0,10 m og mangler håndløper. Selger opplyser at håndløper til trapp fra hall til stue ligger i garasjen.
VVS: Varmtvannsbereder og avløpsrør har en alder som tilsier usikker restlevetid.
Radon og elektrisk anlegg: Det er ikke foretatt radonmåling i boligen. Elektrisk anlegg er forenklet vurdert til TG2.
Yttervegger og vinduer: Slitasje på kledning og sprekker i endeved. Vinduer vurdert til TG2 på grunn av alder, enkelte punkterte glass i stue og kjøkken og vinduer som ikke kan åpnes.
Yttertak og terrasser: Yttertak er lukket konstruksjon og ikke mulig å inspisere, vurdert til TG2. Selger opplyser at taktekking med takrenner, nedløp og pipehatt ble gjort i 2023. Rekkverk på terrasse tilfredsstiller ikke dagens krav til åpning og høyde. Veranda over rom i 1. etasje hadde ikke inspeksjonsmulighet for tettesjikt, men selger opplyser at nytt tettesjikt ble etablert i 2023. Rekkverk er under 1 meter i høyde. Platting og utvendige trapper mangler rekkverk, med påviste riss/sprekker. Det er også riss/sprekker på grunnmur og forstøtningsmurer.
Drenering: Nedgravd og skjult, vurdert ut fra alder. Vann fra yttertak ledes ikke bort, og det er fall mot grunnmur enkelte steder. TG2 er satt på grunn av alder, da funksjonssvikt ikke kan utelukkes.
Garasje: Helhetsvurdert til TG2 grunnet riss/sprekker i grunnmur, kledning med alderspreg og taktekking med eternittplater som inneholder asbest.
Egenerklæringsskjema er fremlagt og signert 15.09.2025. Det foreligger samsvarserklæringer for el-anlegget fra 2025. Plan- og fasadetegninger ble fremlagt på befaringstidspunkt. Selger opplyser at det er dårlig trekk i vedovner og peis, med unntak av peisovn i hallen, som fungerer godt.
Se supplerende tekst i tilstandsrapporten om ovennevnte forhold. Kjøper overtar ansvar og risiko for dette.
Moderniseringer og påkostninger
2023 - Ny taktekking med takrenner og nedløp, samt takhatt.
2023 - Enkelte gulv, vegg -og himlingsflater i 2. etasje, samt tak i forstue, ble fornyet i forbindelse med takomlegging i 2023.
Standard
Boligen i tidlig funkis/retro stil har mange og kreative tilpasninger som gjør den unik. En stor hall som kombinerer peisestue ønsker velkommen og en solid tretrapp fører like opp i den store stuen. På rekke inn mot kjøkkenet ligger også dagligstue og spisestue. Kjøkkenet har stor innredning med god arbeidsbenk-, skap og skuffer, samt utgang til uteplassen bak huset. Fra dagligstuen fører en trapp opp til 2. etasje med soverom og bad. Mens toppetasjen er den mer private delen, råder det ingen tvil om at første er skapt for en sosial familie. Her dominerer den åpne planløsningen og det finnes flere steder man kan sitte alene, men likevel sammen. Midtpunktet og husets hjerte er hovedstua med den store peisen, vinduer med utsikt utover åkerlandskap og helt ut mot horisonten og utgang til overbygget veranda. Gulv har hovedsakelig parkett, vegger og himlinger med panel og malte plater. Flislagte bad, hvor hovedbadet ligger i tilknytning til hovedsoverommet og har wc, bidé, 2 servanter i seksjon og nyere dusjkabinett. Badet 1. etasje har servant og dusj, her med separat toalettrom ved siden. I tilknytning til hallen er det også wc med servant.
Løsøre og tilbehør
Vi viser til liste fra Norges Eiendomsmeglerforbund som gjelder fra 01.01.2020 angående løsøre og tilbehør.
Oppvarming
Peis og vedovn i stua, vedovn i dagligstua og peis i hallen. Ellers elektrisk oppvarming. vamekabler på bad, vaskerom og i vindfang og hall. Dersom beboelsesrom ikke har vegg- eller fastmonterte varmekilder ved visning, følger dette heller ikke med. Se merknad om dårlig trekk i peisen under punkt om takst og tilstand.
Ferdigattest/brukstillatelse
Eiendommen har vært brukt til boligformål siden 1963.
Det foreligger ikke ferdigattest på eiendommen, men midlertidig brukstillatelse for tilbygg med bad og kjøkken ble gitt 16.02.1982. Tillatelsen er gitt på diverse vilkår, hvor de fleste synlig er utført. Selger har arvet eiendommen og vet ikke fullstendig status på dette. Dokumentet ligger vedlagt i salgsoppgaven. Kjøper overtar ansvaret for dette.
Det foreligger også en approbert tegning på tilbygg (kjøkken og bad), datert 14.06.1979 samt for tilbygg med hall, utvidelse av stue, datert 10.09.1981.
Kommunen opplyser at det ikke var krav til ferdigattest eller midlertidig brukstillatelse på den tiden eiendommen ble oppført.
Det gjøres oppmerksom på at det ikke lenger utstedes ferdigattest på tiltak det er søkt om før 1998 jf. plan- og bygningsloven § 21-10. Kommunen vil ikke kreve ferdigattest for disse tiltakene og vil avvise eventuelle søknader. Bestemmelsen innebærer ikke at tiltak med manglende søknad blir lovlige, men at man ikke trenger å avslutte gamle byggesaker. Normalt sett kreves ferdigattest for alle søknadspliktige tiltak som gjøres etter plan- og bygningsloven.
Tinglyste heftelser og rettigheter
Eiendommen overdras fri for pengeheftelser.
Det er ingen tinglyste servitutter på eiendommen.
Eventuell adgang til utleie
Eiendommen har ikke separat utleieenhet. Det vil normalt være anledning til utleie av hele eiendommen eller enkeltrom, såfremt utleiearealet er bygningsmessig godkjent for varig opphold og har forsvarlige radonnivåer.
Diverse
Gnr. 37, bnr. 12. gis rett til å disponere og klippe område med gressplen som ligger på bnr. 5 (inntil bnr. 12) inntil bnr. 5 har bruk for området selv. Dersom området skal benyttes av bnr. 5, skal det varsles minimum 2 måneder i forkant.
Beliggenhet og tomteforhold
Beliggenhet og tomteforhold
Beliggenhet
Syd for Stathelle og Langesund ligger Rognstranda en kjent badeplass med stor deilig sandstrand. Innenfor bølger kulturlandskapet seg som et lappeteppe av enger og kornåkere. I umiddelbar nærhet kan du oppleve nærheten til naturen i mange varianter. Du kan velge en tur til sjøen med strand, svaberg og havet rett ut, eller så kan du sykle eller gå på omegnens mange turstier. Nåværende eier forteller om et område som er utrolig rikt på dyre- og fugleliv. Herfra er det også kort avstand til knutepunkt langs E-18 ved Lasses bensinstasjon hvor det er dagligvarebutikk, bussholdeplass for Sørlandsekspressen mellom Oslo og Kristiansand og videre kort avstand til Stathelle sentrum hvor du finner Brotorvet, et stort kjøpesenter med et rikholdig utvalg av butikker.
Adkomst
Fra Stathelle: Følg veien gjennom Høgenheitunellen og ta av mot Valle i rundkjøringen mellom Esso og Shell. Følg den gamle E-18 sydover og ta til i første avkjøring mot Rognstranda. Følg veien forbi avkjøringen til Rognstranda og ta Gamle Rognsvei til høyre ved Tangvall mølle. Følg landeveien ca. 600 meter og ta til høyre. Hold til høyre og følg veien til enden hvor boligen ligger rett frem på høyre side av veien. Det vil bli skiltet med Krogsveen visningsskilt ved fellesvisninger.
Barnehager, skoler og fritid
Det er ca. 4,6 km. til Rugtvedt barneskole og litt over 6 km. til ny felles ungdomsskole for hele kommunen som ligger på Grasmyr. Her er det også svømmehall og ved siden av denne ligger Bamble videregående skole. Det er flere barnehager i nærområdet fra 4 - 6 km. unna. Informasjon om tilhørende skolekretser er hentet fra Prognosesenteret som dataleverandør, og tilhørigheten kan årlig endres av kommunen. Dersom skole- og barnehagetilbud er av betydning for kjøpet, ber vi om at det rettes en særskilt henvendelse til kommunen for oppdatert informasjon.
Beskrivelse av tomt
Eiet tomt på 1 370 kvm. Huset er plassert på en kolle og består av en del naturtomt, tomten omkranses av gressplen som eies av nabogården, men denne er er flittig benyttet og holdt nede av nåværende eiere i en årrekke. På fremsiden av huset er det murte bed med stauder og annen beplantning. Adkomstparti og uteplass med skifer. Fra kjøkkenet er det utgang til den herlige skiferlagte uteplassen med peis. Garasje og adkomstvei ligger utenfor denne tomten.
Parkering
Stor dobbel garasje. I tillegg er det rikelig med plass på veien inn mot garasjen. Adkomstvei og garasjen er ikke på selve tomten, men det foreligger en erklæring fra grunneier at den kan stå på tomten hans ettersom den er bygget for mange år siden. Det tillates ikke utvidelser/ombygging på bnr. 5 (grunneier) sin side av grensen.
Vei, vann og avløp
Eiendommen har adkomst via privat vei med felles vedlikeholdsansvar. I erklæring fra grunneier står det: Gnr. 37, bnr. 12 har veirett over gnr. 37, bnr. 5 på eksisterende vei. Bnr. 12 er selv ansvarlig for vedlikehold og brøyting. Selger betaler en årlig avgift til veilaget i området som inkluderer brøyting.
Eiendommen er tilknyttet kommunalt ledningsnett via private stikkledninger. Eier er selv ansvarlig for private stikkledninger til boligen.
Regulerings-og arealplaner
Eiendommen ligger i et uregulert område, men er i kommuneplanen, datert 18.10.2024, avsatt til: LNRF område (landbruk, natur, reindrift og friområde).
Utsnitt av plan med tilhørende bestemmelser kan fås ved henvendelse til megler.
Økonomi
Økonomi
Kommunale utgifter
Kommunale avgifter er kr 17 345,- for inneværende år. I dette inngår gebyr for vann, avløp, renovasjon, eiendomsskatt og feiing/tilsyn.
Eiendommen har privat veiavgift på kr. 4.000,- pr år som inkluderer brøyting.
Nåværende eier har et strømforbruk som tilsvarer ca. 24.000 kwh. pr. år.
Boligen har en årlig forsikringspremie på kr. 16.500,-.
Boligen er tilknyttet NextGenTel som leverandør av Fiber.
Utgiftene er basert på nåværende eiers forbruk og avtaler.
Formuesverdi
Formuesverdi for 2023 var kr 1 031 360,- ifølge skatteetaten. Beløpet forutsetter at eier bor fast i boligen (primærbolig).
Ved eventuell øvrig bruk av eiendommen (f.eks. fritidsbolig, pendlerbolig, utleieobjekt) var formuesverdien for 2023 kr 4 125 439,-.
Formuesverdien justeres normalt årlig. Se skatteetaten.no for mer informasjon om fastsettelse av formuesverdien.
Omkostninger
5 400 000,00 Prisantydning
Omkostninger
135 000,00 Dokumentavgift til staten (2,5% av kjøpesum)
19 900,00 Gjensidige Boligkjøperpakke (valgfri)* (valgfritt)
545,00 Tinglysing panterettsdokument
545,00 Tinglysing skjøte
--------------------------------------------------------
136 090,00 Omkostninger totalt (uten Gjensidige Boligkjøperpakke (valgfri))
155 990,00 Omkostninger totalt (med Gjensidige Boligkjøperpakke (valgfri))
--------------------------------------------------------
5 536 090,00 Totalpris inkl. omkostninger
5 555 990,00 Totalpris inkl. omkostninger (med Gjensidige Boligkjøperpakke (valgfri))
--------------------------------------------------------
Tilbud om lånefinansiering
Megler formidler gjerne kontakt med rådgiver hos vår samarbeidspartner BN Bank. De har konkurransedyktige betingelser samt rask og løsningsorientert behandling av din lånesøknad. Krogsveen mottar et honorar for denne formidlingen.
Betalingsbetingelser
Kjøpesum inkludert omkostninger, samt pantedokument tilknyttet eventuelt lån, skal være disponibelt hos megler 2 virkedager før overtagelsen.
Annen viktig informasjon
Annen viktig informasjon
Eier
Anne Kathrine Vaagen Rogn
Konsesjon
Eiendommen er ikke konsesjonspliktig, men det er boplikt i Bamble kommune. For at eiendommen skal kunne overskjøtes må kjøper derfor signere på egenerklæring om konsesjonsfrihet.
Overtakelse
Etter nærmere avtale.
Boligselgerforsikring
Selger har i forbindelse med salget tegnet boligselgerforsikring levert av Gjensidige.
Boligselgerforsikringen dekker selgers ansvar etter avhendingsloven begrenset oppad til kr 14 millioner. Dersom kjøper oppdager forhold ved eiendommen som hen mener utgjør en mangel ved eiendommen, vil Gjensidige behandle reklamasjonen på vegne av selger. Forsikringsvilkår kan fås ved henvendelse til megler.
Vedlagt salgsoppgaven følger selgers egenerklæringsskjema og tilstandsrapport. Interessenter må sette seg inn i dokumentene før bud inngis.
Boligkjøperforsikring
Innen kontraktsmøtet må kjøper ta stilling til om det ønskes å bestille Boligkjøperpakken gjennom Gjensidige. I denne gunstige pakken er boligen ferdig forsikret og inkluderer rettshjelpsforsikring, også kalt Boligkjøperforsikring. Rettshjelpsforsikring gir trygghet og tilgang på profesjonell juridisk hjelp dersom det oppdages uventede feil eller mangler det første året etter overtagelse. Forsikringsselskapet behandler i så fall ethvert mangelskrav kjøper måtte ha overfor selger.
Boligkjøperpakken inkluderer bygningsforsikring for hus og hytte, innboforsikring, flytteforsikring og dobbel rentedekning - i situasjoner hvor kjøper ikke får solgt nåværende primærbolig.
Kjøper mottar ingen særskilt faktura for Boligkjøperpakken da kostnaden det første året legges til kjøpesummen for boligen. Det gjøres oppmerksom på Krogsveen mottar et honorar for denne formidlingen.
Produktark for Boligkjøperpakken ligger vedlagt i salgsoppgaven.
Dersom ikke boligkjøperpakke ønskes kan kun rettshjelpsforsikring, også kalt boligkjøperforsikring, tegnes særskilt via megler. Rettshjelpsforsikringen varer i 5 år fra overtagelse og leveres gjennom Gjensidige. Ta kontakt med megler for ytterligere informasjon.
Selskap og privatpersoner som driver med kjøp/salg/utvikling som ledd i egen næringsvirksomhet kan ikke tegne boligkjøperpakke eller rettshjelpsforsikring.
Budgivning
Forbrukerinformasjon om budgivning er vedlagt denne salgsoppgaven og er også på vår hjemmeside Krogsveen.no. Alle bud og budforhøyelser må inngis skriftlig. I tillegg må legitimasjon være fremlagt sammen med signatur fra budgiver.
Vi oppfordrer til å gi bud elektronisk via GI BUD-knappen på eiendommens hjemmeside på Krogsveen.no. Da vil samtlige vilkår bli oppfylt.
Eventuelle forhøyelser eller endringer av budet kan bekreftes pr SMS eller på e-post. Vi oppfordrer alltid til å kontakte megler pr. telefon i tillegg da forsinkelser i SMS og e-post kan forekomme.
For at budene skal kunne bli behandlet og videreformidlet skriftlig til alle involverte parter, må alle bud ha en tilstrekkelig lang akseptfrist, jf. eiendomsmeglingsforskriften § 6-3.
Selger må også skriftlig akseptere budet før aksept kan formidles til budgiver. Akseptfrist bør derfor være på minimum 30 minutter, og budforhøyelser må derfor skje i god tid før fristens utløp.
Bud i forbrukerforhold kan uansett ikke settes med kortere frist enn kl. 12.00 første virkedag etter siste annonserte visning. I tillegg kan ikke budet ha forbehold om at det skal holdes hemmelig ovenfor øvrige interessenter. Megler har iht lov om eiendomsmegling ikke anledning til å videreformidle disse budene, og de vil dermed heller ikke bli journalført.
Etter at eiendommen er solgt vil kjøper og selger få tilsendt budjournal. Øvrige budgivere kan få utlevert kopi av budjournalen i anonymisert form.
Hvitvaskingsreglene
I henhold til lov om hvitvasking og terrorfinansiering har megler plikt til å gjennomføre kontrolltiltak overfor kunder, herunder fullmektiger. Dette innebærer bl.a. å bekrefte kunders og reelle rettighetshaveres identitet på bakgrunn av fremvist gyldig legitimasjon eller på annen godkjent måte, samt å innhente opplysninger om kundeforholdets formål og tilsiktede art.
Dersom slike kundetiltak ikke kan gjennomføres, kan megler ikke etablere kundeforholdet eller utføre transaksjonen.
Hvis kjøper ikke bidrar til gjennomføring av kundekontrollen og dette fører til at transaksjonen blir forsinket eller ikke kan gjennomføres, vil dette ansees som mislighold av avtalen og gi selger rettigheter etter avhendingslova kapittel 5. I tilfeller der selger ikke bidrar til gjennomføring av løpende kundekontroll underveis i oppdraget, er det selger som misligholder sine forpliktelser etter avtalen og gi kjøper rettigheter etter avhendingslovens kapittel 4. Partene er selv ansvarlige for eventuelle kostnader og ansvar dette kan medføre. Eiendomsmegleren eller eiendomsmeglingsforetaket kan ikke holdes ansvarlig for de konsekvenser dette vil kunne få for partene eller andre som har interesser i eiendomshandelen.
Kjøper oppfordres til å innbetale kjøpesummen som ikke kommer fra låneinstitusjon i én samlet innbetaling fra egen konto i norsk bank. Megler har plikt til å melde fra til Økokrim om eiendomshandler som fremstår som mistenkelige. Melding sendes Økokrim uten at partene varsles.
Personopplysningsloven
I henhold til personopplysningsloven gjør vi oppmerksom på at interessenter kan bli registrert for videre oppfølging.
Lovanvendelse
Generelle bestemmelser
Salgsoppgaven er basert på de opplysningene selger har gitt til megler, den bygningssakyndiges tilstandsrapport, samt opplysninger innhentet fra kommunen, Kartverket og andre tilgjengelige kilder. Det er viktig at kjøper setter seg grundig inn i alle salgsdokumentene, herunder salgsoppgave, tilstandsrapport og selgers egenerklæring. Kjøper anses kjent med forhold som er tydelig beskrevet i salgsdokumentene, og slike forhold kan ikke påberopes som mangler. Dette gjelder uavhengig av om kjøper har lest dokumentene. Alle interessenter oppfordres til å undersøke eiendommen nøye, gjerne sammen med fagkyndig før bud inngis. Kjøper som velger å kjøpe usett kan ikke gjøre gjeldende som mangel noe han burde blitt kjent med ved undersøkelsen.
Dersom det er behov for avklaringer, anbefaler vi at interessenter rådfører seg med eiendomsmegler eller egne rådgivere før det legges inn bud.
En bolig som har blitt brukt i en viss tid, har vanligvis blitt utsatt for slitasje og skader kan ha oppstått. Slik bruksslitasje må kjøper regne med, og det kan avdekkes enkelte forhold etter overtakelse som nødvendiggjør utbedringer. Normal slitasje og skader som nødvendiggjør utbedring, er innenfor hva kjøper må forvente og vil ikke utgjøre en mangel.
Kjøper og selgers rettigheter og plikter reguleres av avtalen mellom partene, samt informasjonen som har vært tilgjengelig for kjøperen i forbindelse med handelen. Avtalen utfylles av avhendingsloven, og det gjelder ulike avtalevilkår avhengig av om kjøper er forbrukerkjøper eller ikke. Dette er nærmere beskrevet nedenfor.
På grunn av ulike avtalevilkår kan selger vurdere bud fra en som ikke er forbruker, ulikt fra en forbrukers bud. Dersom kjøper ikke er forbruker, er selger sitt mulige mangelsansvar begrenset fordi eiendommen selges "som den er". Selger kan ikke ta «som den er»- forbehold overfor en forbrukerkjøper. Selv et lavere bud fra en som ikke er forbruker kan foretrekkes fordi begrensningen i mulig mangelsansvar kan ha egenverdi for selger. Selger står fritt til å forkaste eller akseptere ethvert bud, og er for eksempel ikke forpliktet til å akseptere høyeste bud.
Budgiver skal i budskjema avgi egenerklæring om budgiver er forbruker eller næringsdrivende/ person som hovedsakelig handler som ledd i næringsvirksomhet. Budgivere får informasjon dersom andre bud er inngitt av en som ikke er forbruker.
Forbrukerkjøp - definisjon
Med forbrukerkjøp menes kjøp av eiendom når kjøperen er en fysisk person som ikke hovedsakelig handler som ledd i næringsvirksomhet.
Forbruker – avtalevilkår
Eiendommen har en mangel dersom den ikke er i samsvar med kravene som følger av avtalen, eller det foreligger brudd på bestemmelsene i avhendingsloven §§ 3-2 til 3-8. Hvis eiendommen ikke er i samsvar med det kjøperen må kunne forvente ut ifra alder, type og synlig tilstand, kan det være grunnlag for mangelskrav. Det samme gjelder hvis det er holdt tilbake eller gitt uriktige opplysninger om eiendommen. Dette gjelder likevel bare dersom man kan gå ut ifra at det virket inn på avtalen at opplysningen ikke ble gitt eller at mangelskravet ikke blir rettet i tide på en tydelig måte.
Boligen kan ha en mangel etter avhendingsloven § 3-3 andre ledd, dersom det er avvik mellom opplyst og faktisk innvendig areal, forutsatt at avviket er på 2% eller mer og minimum 1 kvm.
Ved beregning av et eventuelt prisavslag eller erstatning må kjøper selv dekke tap/kostnader opptil et beløp på kr 10 000 (egenandel).
Ikke-forbruker (næringsdrivende) – definisjon
Hvis kjøper er en juridisk person, eller en fysisk person som hovedsakelig handler som ledd i næringsvirksomhet, vil kjøpet ikke anses som et forbrukerkjøp.
Ikke-forbruker – avtalevilkår
Eiendommen har en mangel dersom den ikke er i samsvar med kravene som følger av avtalen.
Eiendommen selges «som den er», og selgers ansvar utover det konkret avtalte er da begrenset etter avhendingsloven § 3-9, første ledd andre setning.
Avhendingsloven § 3-3 andre ledd fravikes, og hvorvidt boligens arealsvikt utgjør en mangel vurderes etter avhendingsloven § 3-8.
Informasjon om kjøpers undersøkelsesplikt, herunder oppfordringen om å undersøke eiendommen nøye, gjelder også for kjøpere som ikke anses som forbrukere.
Det forutsettes at hjemmel overføres til kjøper. Hvis kjøper ikke ønsker hjemmelsoverføring av eiendommen, må det tas forbehold om dette i budet.
Opplysninger om oppdraget
Oppdragsnummer 28-0089/25
Eiendomsmegler Krogsveen AS, avd. Bamble og Porsgrunn
Strandgata 22, 3960, STATHELLE
950 007 613
Oppdragets KR-kode KR28.2589
Dato
Sist oppdatert: 21. mai 2026 kl. 13:09
Dokumenter
Dokumenter
PDF – 947 KB
PDF – 745 KB
PDF – 968 KB
PDF – 1 MB
PDF – 312 KB
PDF – 29 KB
PDF – 127 KB
PDF – 392 KB
Område
Legg til steder som er viktige for deg
Visning
For å delta på visning, ber vi om at du melder deg på. Da sikrer vi at du får nødvendig informasjon og at det er satt av tilstrekkelig med tid. Kontakt megler dersom annet tidspunkt ønskes. Husk å lese salgsoppgaven før visningen, så du stiller forberedt. NB. Visning utgår dersom det ikke er noen påmeldte. Ønsker du kun å bli holdt orientert, kan du fra eiendommens hjemmeside få varsel om solgtpris, eller kontakte megler.
Lurer du på noe?
Unngå doble boligrenter
Vi tilbyr gunstig forsikring.
Vurderer du utleie?
Få et tilbud fra Utleie KrogsveenHva koster lånet?
Sjekk estimert lånekostnadVil du varsles om lignende boliger?
Ved å lagre ditt boligsøk hos oss får du beskjed når vi har en bolig som ligner denne, før den legges ut på markedet!




























































