Busebakken 44
1 290 000 kr
35 m²
2 soverom
Solgt

Hyggen
Koselig sommerhytte med nydelig fjordutsikt og gode solforhold
Prisantydning
1 290 000 krOmkostninger
53 240 krTotalpris
1 343 240 kr
Pris
Bruksareal
47 m²BRA-I (internt bruksareal)
35 m²BRA-E (eksternt bruksareal)
12 m²TBA (terrasse-balkongareal)
48 m²
Areal
Byggeår
1955Soverom
2 soveromTomteareal
1 402 m² (eiet)Type
Fritidseiendom ved sjøenEierform
EietFasiliteter
Balkong/TerrasseÅrlig velavgift
2 000 krEnergimerke
Rød G
Nøkkelinfo
Vurderer du utleie?
Få et tilbud fra Utleie KrogsveenHva koster lånet?
Sjekk estimert lånekostnadBeskrivelse
Kort om eiendommen
Velkommen til Busebakken 44'
En koselig og enkel sommerhytte beliggende høyt og usjenert til i blindvei. Fantastisk fjordutsikt fra terrasse og stue. Ingen gjenboere på 2 sider av eiendommen. Fjord og skog som "nærmeste" nabo. Fra hytta er det kort vei ned til badestranda og Hernestangen med et yrende liv om sommeren.
- Stor usjenert skrående tomt
- Romslig terrasse med uthus på terrassen samt overbygget terrasse
- Sommervann til vegg
- Fantastisk fjordutsikt
- Badestrand få minutters gange unna
- 10 minutter til dagligvarehandel
- Kun 45 min fra Oslo og 20 min fra Drammen
- Ca 30 meter gangsti (motbakke) opp til hytta
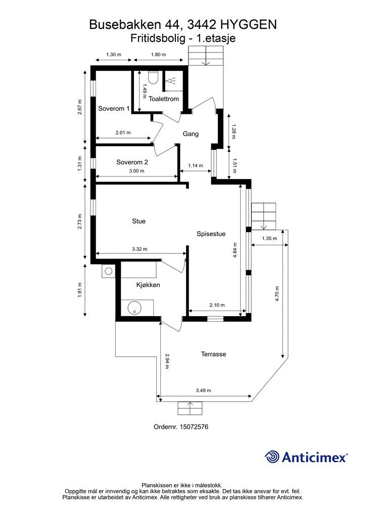
Inneh: Gang, toalettrom med forbrenningstoalett, kjøkken, spisestue/stue og 2 soverom
Område
Legg til steder som er viktige for deg
På flyttefot? Tenk kjøp og salg samtidig.
Få din egen rådgiver gjennom hele kjøps- og salgsprosessen. Det starter med en verdivurdering.
Vurderer du utleie?
Få et tilbud fra Utleie KrogsveenHva koster lånet?
Sjekk estimert lånekostnadVil du varsles om lignende boliger?
Ved å lagre ditt boligsøk hos oss får du beskjed når vi har en bolig som ligner denne, før den legges ut på markedet!

