Sætravegen 2
1 990 000 kr
206 m²
3 soverom
Solgt

Oppaker
Sjarmerende og innholdsrik enebolig over tre etasjer med stort potensial | Oppussingsobjekt | Solrik beliggenhet |
Prisantydning
1 990 000 krOmkostninger
70 740 krTotalpris
2 060 740 kr
Pris
Bruksareal
231 m²BRA-I (internt bruksareal)
206 m²BRA-E (eksternt bruksareal)
25 m²
Areal
Etasje
3Byggeår
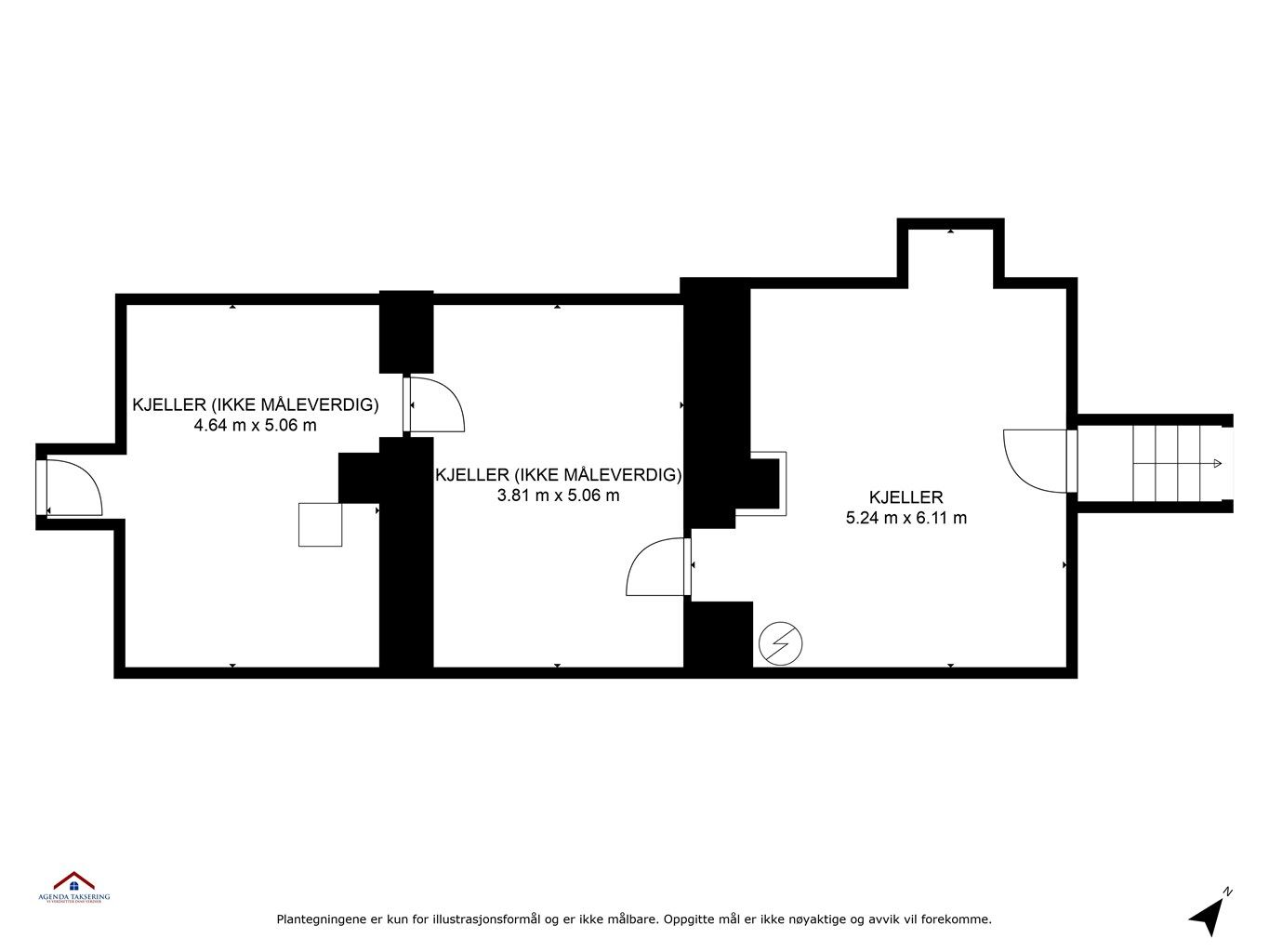
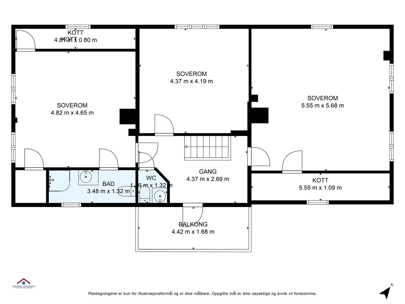
1867Soverom
3 soveromBad
1 badTomteareal
633 m² (eiet)Type
Enebolig - FrittliggendeEierform
EietFasiliteter
Balkong/TerrasseEnergimerke
Rød G
Nøkkelinfo
Unngå doble boligrenter
Vi tilbyr gunstig forsikring.
Vurderer du utleie?
Få et tilbud fra Utleie KrogsveenHva koster lånet?
Sjekk estimert lånekostnadBeskrivelse
Kort om eiendommen
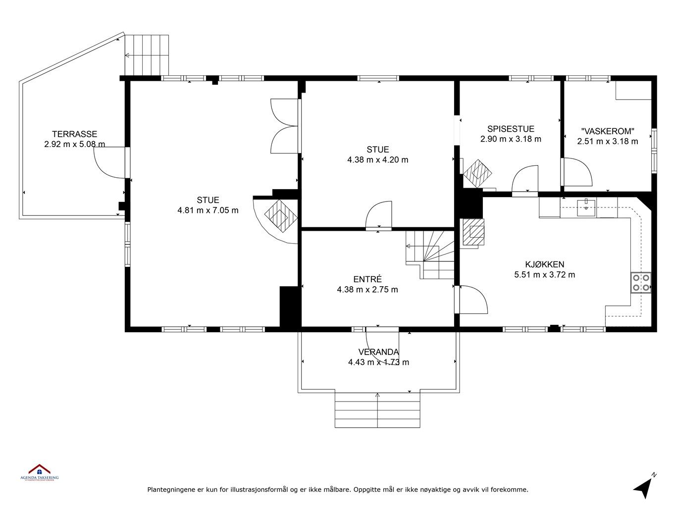
Boligen ligger i Oppaker i Nes kommune, sideveg fra Kongsvingervegen og inn Sætravegen. Eiendommen har nærhet til Glomma og alt det har å by på.
Enebolig over tre plan med gjennomgående enkel standard og behov for oppgradering for å tilfredsstille dagens krav til standard. Deler av boligen er oppført rundt ca. 1867 og gjort arbeid med tiden - boligen går over to plan og med kjeller, med fornuftig planløsning og perfekt familiebolig med god boltreplass inne og ute. Boligens 1.etasje består av hall, kjøkken, to stuer, vaskerom og soverom. Andre etasje inneholder gang, toalettrom, bad og tre soverom. Fra spisestuen er det direkte utgang til solrik terrasse med videre utgang til hagen med god plass til lek og moro for de minste. Eiendommen har et stort potensial!
Velkommen!
Område
Legg til steder som er viktige for deg
På flyttefot? Tenk kjøp og salg samtidig.
Få din egen rådgiver gjennom hele kjøps- og salgsprosessen. Det starter med en verdivurdering.
Unngå doble boligrenter
Vi tilbyr gunstig forsikring.
Vurderer du utleie?
Få et tilbud fra Utleie KrogsveenHva koster lånet?
Sjekk estimert lånekostnadVil du varsles om lignende boliger?
Ved å lagre ditt boligsøk hos oss får du beskjed når vi har en bolig som ligner denne, før den legges ut på markedet!

