Neslia 4E
5 500 000 kr
58 m²
2 soverom
Komplett salgsoppgave

HASLUM
Flytt rett inn - Lys og moderne 3-roms leilighet fra 2021 m/ god intern beliggenhet -Heis -Solrik uteplass -Nær T-bane
Prisantydning
5 500 000 krOmkostninger
148 540 krTotalpris
5 648 540 kr
Pris
Bruksareal
63 m²BRA-I (internt bruksareal)
58 m²BRA-E (eksternt bruksareal)
5 m²TBA (terrasse-balkongareal)
9 m²
Areal
Etasje
1Byggeår
2021Soverom
2 soveromBad
1 badType
EierleilighetEierform
EierseksjonFasiliteter
Heis og Balkong/TerrasseFellesutgifter
4 160 krEnergimerke
Grønn B
Nøkkelinfo
Unngå doble boligrenter
Vi tilbyr gunstig forsikring.
Vurderer du utleie?
Få et tilbud fra Utleie KrogsveenHva koster lånet?
Sjekk estimert lånekostnadBeskrivelse
Kort om eiendommen
- God planløsning med 2 soverom og bad fra gangen
- Hjørneleilighet med høy standard
- Store vinduer med naturlig lys
- Solrik uteområde på 9 kvm
- Bod på 5 kvm
- Gjesteleilighet for besøkende
- Felles garasjeanlegg m/bilkollektiv og gjesteparkering
- Ingen fellesgjeld
- Ideell beliggenhet nær nydelige turområder, T-bane, buss, treningssenter og dagligvarebutikk
- God isolasjon, balansert ventilasjon og vannbåren varme
- Nybygg-garanti
Innhold og byggemåte
Innhold og byggemåte
Eiendommen
Neslia 4E, 1344 HASLUM
Kommunenummer 3201, gårdsnummer 3, bruksnummer 12, seksjonsnummer 70, ideell andel 1/1
Innhold
Totalt bruksareal BRA: 63 kvm
BRA-i:
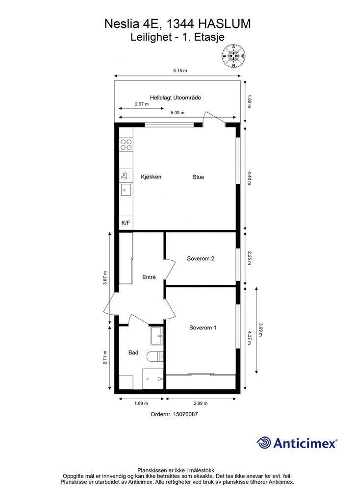
1. etasje 58 kvm: Entre, stue, kjøkken, 2 soverom og bad.
BRA-e:
U. etasje 5 kvm: Kjellerbod.
Åpent areal:
1. etasje 9 kvm: Hellebelagt uteområde
Vedlagte plantegninger er ikke målbare. De oppgitte arealer er hentet fra rapport med befaringsdato 26.09.2025 utført av Anticimex v/Hans-Kristian Brekkås. Arealene er beregnet og rom er definert etter dagens faktiske bruk, uavhengig av hva som er godkjent av bygningsmyndighetene.
Byggemåte
Selger har fått utarbeidet en tilstandsrapport, dvs. en teknisk gjennomgang av boligen hvor eventuelle avvik, risiko for kjøper og prisoverslag for hva som bør gjøres av oppgradering, er skissert. Se særskilt TGIU (tilstandsgrad ikke undersøkt), samt TG2 og TG3 som viser hva som er boligens normale slitasje, alder og type, hva som er avvik fra dette og hva som bør/må utbedres. Rapporten og selgers egenerklæring er en del av salgsoppgaven og må leses nøye før bud inngis. Kjøper overtar ansvaret for de opplysninger som fremkommer av salgsdokumentasjonen, og kan ikke gjøre gjeldende som mangel noe som burde vært kjent eller som ikke kan anses å ha betydning for avtalen.
Boligbygg over 4 etasjer. Grunnmur, skillende dekker og bærende dekker av betong. Yttervegger av teglstein. Flatt yttertak som er utvendig tekket med papp/membran (ikke besiktiget). Leiligheten har slett entredør med brannklasse EI30 og lydklasse 40 dB. Vinduer med rammer/karmer av tre,
og tre-lags glass fra byggeår. Balkongdør med rammer/karmer av tre, og tre-lags glass fra byggeår.
Oppvarming med vannbåren varme.
Leilighet beliggende i byggets 1. etasje. Adkomst via felles trappegang med callinganlegg og heis.
Leiligheten består av entre, stue, kjøkken, 2 soverom og bad. Utgang fra stue til hellebelagt uteområde på 9 kvm. Leiligheten disponerer en kjellerbod på 5 kvm.
Sammendrag av boligens tilstand:
88% TG1, 6% TG2 og 6% TGIU. Ingen TG3.
Det gjøres spesielt oppmerksom på følgende TG2:
Overflater vegger på bad:
Det er påvist misfarging/svertesopp på flisfuger. Fuger bær rengjøres/fornyes.
Overflater gulv:
Gulvoverflater bærer preg av slitasje. Tiltak kan iverksettes ved behov.
Se supplerende tekst i tilstandsrapporten. Kjøper overtar ansvar og risiko for dette.
Standard
Kjøkken:
Meget fin og åpen kjøkkenløsning med standard fra 2021. Innredningen består av slette fronter og benkeplate av laminat. Nedfelt oppvaskkum med ett-greps kjøkkenarmatur. Benkeskapsbelysning og stikkontakter over kjøkkenbenk. Utstyrt med integrert stekeovn, platetopp, oppvaskmaskin og kjøleskap med fryser samt vegghengt ventilator. Vannrør av typen rør-i-rør system.
Baderom:
Delikat og moderne bad fra 2021. Innredet med flislagt gulv med gulvvarme og flislagte vegger. Nedsenket himling med downlights. Vegghengt servantinnredning med skuffer. Ovenpåliggende servant med ett-greps armatur. Speil med sidelys. Dusjhjørne med dører og vegghengt dusjarmatur. Vegghengt toalett. Opplegg for vaskemaskin. Mekanisk avtrekk med ventil i himling. Vannrør av typen rør-i-rør system.
Overflater:
Gulvflater belagt med parkett. Vegg- og himlingsflater i malte flater. Glatte innerdører.
Teknisk installasjon:
Balansert ventilasjon og vannbåren varme.
Løsøre og tilbehør
Vi viser til liste fra Norges Eiendomsmeglerforbund som gjelder fra 01.01.2020 angående løsøre og tilbehør.
Oppvarming
Oppvarming med vannbåren varme tilkoblet varmesentral kombinert med elektrisk oppvarming.
Ferdigattest/brukstillatelse
Det foreligger ferdigattest på eiendommen datert 09.08.2021. Denne kan fås ved henvendelse til megler.
Kjøper overtar eiendommen slik den fremstår på visning.
Det gjøres oppmerksom på at det ikke lenger utstedes ferdigattest på tiltak det er søkt om før 1998 jf. plan- og bygningsloven § 21-10. Kommunen vil ikke kreve ferdigattest for disse tiltakene og vil avvise eventuelle søknader. Bestemmelsen innebærer ikke at tiltak med manglende søknad blir lovlige, men at man ikke trenger å avslutte gamle byggesaker. Normalt sett kreves ferdigattest for alle søknadspliktige tiltak som gjøres etter plan- og bygningsloven.
Tinglyste heftelser og rettigheter
Leiligheten overdras fri for pengeheftelser.
Sameiet har legalpant for krav mot sameieren som følger av sameieforholdet iht. eierseksjonsloven § 31. Pantet er begrenset oppad til 2G, (G = folketrygdens grunnbeløp).
Det er tinglyst 5 servitutter på sameiets eiendom. Disse omhandler blant annet bestemmelser om gjesteleilighet/smørebod, bildelingsordning, allmenn gangvei, bestemmelser om vann- og avløpsledninger, eldre bestemmelser om et lagerskur og parkeringsbestemmelser i seksjoneringen for et tidligere oppført bygg.
Servituttene vil følge eiendommen. Kjøpers bank vil få pant etter ovennevnte heftelser og servitutter.
Eventuell adgang til utleie
Leiligheten kan leies ut såfremt leiligheten har forsvarlige radonverdier. Leietaker må følge sameiets vedtekter og ordensregler på lik linje som eier.
Beliggenhet og tomteforhold
Beliggenhet og tomteforhold
Beliggenhet
Velkommen til Haslum Elvepark – et idyllisk og moderne boligområde med Øverlandselva som nærmeste nabo. Her bor du landlig og naturskjønt, samtidig som du har alt du trenger i hverdagen rett i nærheten. Området er rolig, barnevennlig og preget av flotte grøntområder, turstier og møteplasser.
Nærområdet:
Fra boligen er det kort vei til både dagligvarehandel, spisesteder og servicetilbud. Bare et par hundre meter unna finner du Extra Haslum med bussholdeplass rett ved. I tillegg har du hyggelige tilbud som frukt- og grønnsaksbutikk, blomsterhandel, indisk restaurant, sushi og pizzeria – alt i gåavstand. For større handel ligger Bekkestua sentrum en kort tur unna.
Bekkestua & Sandvika:
Bekkestua sentrum ligger bare noen få minutter unna med bil eller T-bane, og byr på et bredt utvalg av butikker, restauranter, kaféer, bibliotek, Vinmonopol, treningssenter og servicetilbud. Her er det enkelt å kombinere småhandel, kafébesøk og trening på samme sted. Sandvika er kun 6–8 minutter unna med bil, med et pulserende sentrum, hyggelige restauranter langs elven og Sandvika Storsenter med over 200 butikker.
Natur og fritid:
Haslum Elvepark er omgitt av flotte turområder. En nyrenovert turvei går rett nedenfor huset og leder deg enten opp mot marka eller helt ned til Sandvika sentrum. Bærumsmarka byr på et eldorado av tur- og sykkelstier, samt skiløyper vinterstid. Her kan du legge søndagsturen til Sæteren gård, bade i Østernvann eller nyte utsikten fra Kolsåstoppen. Om sommeren venter fantastiske badeplasser på Kadettangen, Høvikodden og Fornebu, alle kun en kort kjøretur unna.
Aktiviteter og idrett:
For den aktive er det rikelig med tilbud i nærområdet. Du finner idrettshaller, fotballbaner, golfbaner og treningssentre i nærheten, og om vinteren er det gode muligheter for ski, skøyter og aking. For alpint- og snowboardinteresserte er flere skisentre lett tilgjengelig.
Skoler og barnehager:
Boligen ligger i et etablert og familievennlig område med kort vei til barnehager som Tveterjordet, Myrsnipa, Åsterud og Haslum barnehage. Skoleveien er trygg og kort til Løkeberg barneskole og Gjettum ungdomsskole. I tillegg finnes både Bekkestua ungdomsskole, den Internasjonale skolen og flere videregående skoler som Nadderud, NTG, Valler, Sandvika og Dønski i nærområdet.
Offentlig kommunikasjon:
Med gangavstand til både Haslum og Avløs T-banestasjon kommer du deg til Majorstuen på ca. 20 minutter. Bussrute 220 tar deg enkelt mellom Sandvika og Bekkestua. Fra Sandvika tar både rutetog og Flytog deg til Oslo Lufthavn på rundt 40 minutter – perfekt for pendlere og reisende.
Haslum Elvepark:
Boligprosjektet ble ferdigstilt i 2021 og består av både rekkehus og leiligheter, med et sterkt fokus på trivsel, natur og møteplasser. Utbygger har lagt stor vekt på grønne fellesarealer, med beplantning, flere lekeplasser, benker og gode sosiale soner. Området er harmonisk integrert med omkringliggende natur, og gir beboerne en sjelden kombinasjon av moderne bokvalitet og nærhet til marka.
Adkomst
Det vil bli skiltet med Krogsveen visningsskilt ved fellesvisninger.
Barnehager, skoler og fritid
Det er trygg og kort gangavstand til flere barnehager og skoler i området. Eiendommen sogner til Løkeberg barneskole og Gjettum ungdomsskole.
Barnehager:
• Haslum barnehage Avd. Nedre Haslum
• Tveterjordet FUS barnehage
• Åsterud barnehage Avd. Åsterudveien
Barneskoler:
• Løkeberg skole
• Haslum skole
• Høvik skole
Ungdomsskoler:
• Gjettum skole
• Ramstad skole
Dersom skole- og barnehagetilbud er av betydning for kjøpet, ber vi om at det rettes en særskilt henvendelse til kommunen for oppdatert informasjon.
Beskrivelse av tomt
Eiertomt på 5 185 kvm som tilhører sameiet. Tomten er fellesareal. Fellesområder er opparbeidet med asfalterte internveier og plenareal.
Parkering
Felles garasjeanlegg m/bilkollektiv og gjesteparkering. Det medfølger ikke egen parkeringsplass. Gjesteparkeringsseksjonen i garasjekjeller består av 9 parkeringsplasser, og eies i fellesskap av Sameiet Haslum Elvepark Leiligheter og Sameiet Haslum Elvepark Rekkehus. Det finnes 2 bildelingsplasser.
Nåværende eier leier parkeringsplass av en naboseksjon.
Vei, vann og avløp
Eiendommen har adkomst via privat vei med felles vedlikeholdsansvar for Sameiet.
Eiendommen er tilknyttet kommunalt ledningsnett via private stikkledninger. Sameiet er ansvarlig for private stikkledninger til bygningen.
Regulerings-og arealplaner
Eiendommen er regulert til "boligbebyggelse-blokkbebyggelse" (4526 kvm), "veg" (119 kvm) og "uteoppholdsareal" (877 kvm) i henhold til reguleringsplan Neslia 1 med planID 2014021 datert 20.06.2018 med tilhørende områderegulering ("Nesveien 11-19 og Neslia 1" med planID 2014099) datert 12.05.2016.
Utsnitt av plan med tilhørende bestemmelser kan fås ved henvendelse til megler.
Planer i nærområdet:
Det foreligger bebyggelsesplaner i Neslia 48. Prosjektet er lagt ut for salg. For mer informasjon se følgende link: https://www.krogsveen.no/kjope/boliger-til-salgs/1D3DCD1A-24E5-478D-85E8-BF07BB2EBC95
Det er planlagt utvikling av sykkelvei i Nesvei og deler av Kirkeveien. For mer informasjon se følgende link: https://www.baerum.kommune.no/tjenester/vei-trafikk-og-parkering/sykkel/sykkelprosjekter/nesveien/
Økonomi
Økonomi
Boligens kostnader
Fellesutgiftene er kr 4 160,- pr. mnd. og inkluderer: Akonto varmtvann, tv/bredbånd, strøm og oppvarming i fellesarealer, kommunale avgifter, snøbrøyting, utvendig vedlikehold av fellesarealer, forretningsførerhonorar, revisjon, garasjekostnader, forsikring av bygninger, renholds- og vaktmestertjenester og andre driftskostnader.
Fellesutgiftene justeres normalt en til to ganger årlig i forhold til sameiets faktiske utgifter.
I selgers husstand har det bodd 3 mennesker og det opplyses om at strømforbruket har vært ca. kr 9 000,- pr år.
Boligen er tilknyttet Telenor som leverandør av kabel-tv og internett, og er inkludert i fellesutgiftene. Dekoder medfølger boligen.
Utgiftene er basert på nåværende eiers forbruk. Kjøper må selv tegne innboforsikring.
Formuesverdi
Formuesverdi for 2023 var kr 1 448 071,- ifølge skatteetaten. Beløpet forutsetter at eier bor fast i boligen (primærbolig).
Ved eventuell øvrig bruk av eiendommen (f.eks. fritidsbolig, pendlerbolig, utleieobjekt) var formuesverdien for 2023 kr 5 792 282,-/5 792 284,-.
Formuesverdien justeres normalt årlig. Se skatteetaten.no for mer informasjon om fastsettelse av formuesverdien.
Eiendomsskatt
Det er p.t ikke vedtatt eiendomsskatt for eiendommer i kommunen.
Opplysninger om fellesgjeld
Andel formue er kr 2 648,- pr. 30.09.2025
Ingen fellesgjeld.
Omkostninger
5 500 000,00 Prisantydning
Omkostninger
137 500,00 Dokumentavgift til staten (2,5% av kjøpesum)
9 950,00 Gjensidige Boligkjøperpakke (valgfri)
545,00 Tinglysing panterettsdokument
545,00 Tinglysing skjøte
--------------------------------------------------------
148 540,00 Omkostninger totalt
--------------------------------------------------------
5 648 540,00 Totalpris inkl. omkostninger
--------------------------------------------------------
Betalingsbetingelser
Kjøpesum inkludert omkostninger, samt pantedokument tilknyttet eventuelt lån, skal være disponibelt hos megler 2 virkedager før overtagelsen.
Annen viktig informasjon
Annen viktig informasjon
Eier
Mirjana Marinkovic og Dragan Rankic
Informasjon om forkjøpsrett
Eiendommen er seksjonert, og leiligheten er tilknyttet Sameiet Haslum Elvepark Leiligheter, med sameiebrøk 55/5139.
Sameiet består av 78 leiligheter og 3 næringsseksjoner.
Forretningsfører er tlf. 22 98 38 00.
Dugnad samt trappevask må påregnes.
Dyrehold er tillatt så lenge dette ikke er til ulempe for de øvrige brukerne av eiendommen.
Generell info:
Seksjonseiere i Sameiet Haslum Elvepark Rekkehus (nabo sameiet) har rett til å benytte følgende fellesarealer:
• Kjørebane i garasjekjeller og adkomst til denne
• Sykkelboder i garasjekjeller og adkomst til disse
• 7 boder i garasjekjeller markert på bilag 1 og adkomst til disse
• Bildelingsplasser (2 stk) i garasjekjeller og adkomst til disse
• Gjesteleilighet og smørebod (snr. 35) og adkomst til disse
Vi gjør videre oppmerksom på at det iht. eierseksjonsloven ikke er anledning å erverve mer enn 2 seksjoner i sameiet, her teller også eierskap via. firma, nærstående og familie. Kjøper har risikoen for at overskjøting på denne bakgrunn kan nektes av Statens Kartverk. I så fall vil kjøper uansett være forpliktet til å gjennomføre handelen, og oppgjør til selger vil finne sted tross manglende overskjøting. Konferer med megler for mer informasjon.
Dokumenter for sameiet og kopi av seksjonsbegjæringen kan fås ved henvendelse til megler.
Overtakelse
Etter nærmere avtale.
Boligselgerforsikring
Selger har i forbindelse med salget tegnet boligselgerforsikring levert av Gjensidige.
Boligselgerforsikringen dekker selgers ansvar etter avhendingsloven begrenset oppad til kr 14 millioner. Dersom kjøper oppdager forhold ved eiendommen som hen mener utgjør en mangel ved eiendommen, vil Gjensidige behandle reklamasjonen på vegne av selger. Forsikringsvilkår kan fås ved henvendelse til megler.
Vedlagt salgsoppgaven følger selgers egenerklæringsskjema og tilstandsrapport. Interessenter må sette seg inn i dokumentene før bud inngis.
Boligkjøperforsikring
Innen kontraktsmøtet må kjøper ta stilling til om det ønskes å bestille Boligkjøperpakken gjennom Gjensidige. I denne gunstige pakken er boligen ferdig forsikret og inkluderer rettshjelpsforsikring, også kalt Boligkjøperforsikring. Rettshjelpsforsikring gir trygghet og tilgang på profesjonell juridisk hjelp dersom det oppdages uventede feil eller mangler det første året etter overtagelse. Forsikringsselskapet behandler i så fall ethvert mangelskrav kjøper måtte ha overfor selger.
Boligkjøperpakken inkluderer bygningsforsikring for hus og hytte, innboforsikring, flytteforsikring og dobbel rentedekning - i situasjoner hvor kjøper ikke får solgt nåværende primærbolig.
Kjøper mottar ingen særskilt faktura for Boligkjøperpakken da kostnaden det første året legges til kjøpesummen for boligen. Det gjøres oppmerksom på Krogsveen mottar et honorar for denne formidlingen.
Produktark for Boligkjøperpakken ligger vedlagt i salgsoppgaven.
Dersom ikke boligkjøperpakke ønskes kan kun rettshjelpsforsikring, også kalt boligkjøperforsikring, tegnes særskilt via megler. Rettshjelpsforsikringen varer i 5 år fra overtagelse og leveres gjennom Gjensidige. Ta kontakt med megler for ytterligere informasjon.
Selskap og privatpersoner som driver med kjøp/salg/utvikling som ledd i egen næringsvirksomhet kan ikke tegne boligkjøperpakke eller rettshjelpsforsikring.
Budgivning
Forbrukerinformasjon om budgivning er vedlagt denne salgsoppgaven og er også på vår hjemmeside Krogsveen.no. Alle bud og budforhøyelser må inngis skriftlig. I tillegg må legitimasjon være fremlagt sammen med signatur fra budgiver.
Vi oppfordrer til å gi bud elektronisk via GI BUD-knappen på eiendommens hjemmeside på Krogsveen.no. Da vil samtlige vilkår bli oppfylt.
Eventuelle forhøyelser eller endringer av budet kan bekreftes pr SMS eller på e-post. Vi oppfordrer alltid til å kontakte megler pr. telefon i tillegg da forsinkelser i SMS og e-post kan forekomme.
For at budene skal kunne bli behandlet og videreformidlet skriftlig til alle involverte parter, må alle bud ha en tilstrekkelig lang akseptfrist, jf. eiendomsmeglingsforskriften § 6-3.
Selger må også skriftlig akseptere budet før aksept kan formidles til budgiver. Akseptfrist bør derfor være på minimum 30 minutter, og budforhøyelser må derfor skje i god tid før fristens utløp.
Bud i forbrukerforhold kan uansett ikke settes med kortere frist enn kl. 12.00 første virkedag etter siste annonserte visning. I tillegg kan ikke budet ha forbehold om at det skal holdes hemmelig ovenfor øvrige interessenter. Megler har iht lov om eiendomsmegling ikke anledning til å videreformidle disse budene, og de vil dermed heller ikke bli journalført.
Etter at eiendommen er solgt vil kjøper og selger få tilsendt budjournal. Øvrige budgivere kan få utlevert kopi av budjournalen i anonymisert form.
Hvitvaskingsreglene
I henhold til lov om hvitvasking og terrorfinansiering har megler plikt til å gjennomføre kontrolltiltak overfor kunder, herunder fullmektiger. Dette innebærer bl.a. å bekrefte kunders og reelle rettighetshaveres identitet på bakgrunn av fremvist gyldig legitimasjon eller på annen godkjent måte, samt å innhente opplysninger om kundeforholdets formål og tilsiktede art.
Dersom slike kundetiltak ikke kan gjennomføres, kan megler ikke etablere kundeforholdet eller utføre transaksjonen.
Hvis kjøper ikke bidrar til gjennomføring av kundekontrollen og dette fører til at transaksjonen blir forsinket eller ikke kan gjennomføres, vil dette ansees som mislighold av avtalen og gi selger rettigheter etter avhendingslova kapittel 5. I tilfeller der selger ikke bidrar til gjennomføring av løpende kundekontroll underveis i oppdraget, er det selger som misligholder sine forpliktelser etter avtalen og gi kjøper rettigheter etter avhendingslovens kapittel 4. Partene er selv ansvarlige for eventuelle kostnader og ansvar dette kan medføre. Eiendomsmegleren eller eiendomsmeglingsforetaket kan ikke holdes ansvarlig for de konsekvenser dette vil kunne få for partene eller andre som har interesser i eiendomshandelen.
Kjøper oppfordres til å innbetale kjøpesummen som ikke kommer fra låneinstitusjon i én samlet innbetaling fra egen konto i norsk bank. Megler har plikt til å melde fra til Økokrim om eiendomshandler som fremstår som mistenkelige. Melding sendes Økokrim uten at partene varsles.
Personopplysningsloven
I henhold til personopplysningsloven gjør vi oppmerksom på at interessenter kan bli registrert for videre oppfølging.
Lovanvendelse
Generelle bestemmelser
Salgsoppgaven er basert på de opplysningene selger har gitt til megler, den bygningssakyndiges tilstandsrapport, samt opplysninger innhentet fra kommunen, Kartverket og andre tilgjengelige kilder. Det er viktig at kjøper setter seg grundig inn i alle salgsdokumentene, herunder salgsoppgave, tilstandsrapport og selgers egenerklæring. Kjøper anses kjent med forhold som er tydelig beskrevet i salgsdokumentene, og slike forhold kan ikke påberopes som mangler. Dette gjelder uavhengig av om kjøper har lest dokumentene. Alle interessenter oppfordres til å undersøke eiendommen nøye, gjerne sammen med fagkyndig før bud inngis. Kjøper som velger å kjøpe usett kan ikke gjøre gjeldende som mangel noe han burde blitt kjent med ved undersøkelsen.
Dersom det er behov for avklaringer, anbefaler vi at interessenter rådfører seg med eiendomsmegler eller egne rådgivere før det legges inn bud.
En bolig som har blitt brukt i en viss tid, har vanligvis blitt utsatt for slitasje og skader kan ha oppstått. Slik bruksslitasje må kjøper regne med, og det kan avdekkes enkelte forhold etter overtakelse som nødvendiggjør utbedringer. Normal slitasje og skader som nødvendiggjør utbedring, er innenfor hva kjøper må forvente og vil ikke utgjøre en mangel.
Kjøper og selgers rettigheter og plikter reguleres av avtalen mellom partene, samt informasjonen som har vært tilgjengelig for kjøperen i forbindelse med handelen. Avtalen utfylles av avhendingsloven, og det gjelder ulike avtalevilkår avhengig av om kjøper er forbrukerkjøper eller ikke. Dette er nærmere beskrevet nedenfor.
På grunn av ulike avtalevilkår kan selger vurdere bud fra en som ikke er forbruker, ulikt fra en forbrukers bud. Dersom kjøper ikke er forbruker, er selger sitt mulige mangelsansvar begrenset fordi eiendommen selges "som den er". Selger kan ikke ta «som den er»- forbehold overfor en forbrukerkjøper. Selv et lavere bud fra en som ikke er forbruker kan foretrekkes fordi begrensningen i mulig mangelsansvar kan ha egenverdi for selger. Selger står fritt til å forkaste eller akseptere ethvert bud, og er for eksempel ikke forpliktet til å akseptere høyeste bud.
Budgiver skal i budskjema avgi egenerklæring om budgiver er forbruker eller næringsdrivende/ person som hovedsakelig handler som ledd i næringsvirksomhet. Budgivere får informasjon dersom andre bud er inngitt av en som ikke er forbruker.
Forbrukerkjøp - definisjon
Med forbrukerkjøp menes kjøp av eiendom når kjøperen er en fysisk person som ikke hovedsakelig handler som ledd i næringsvirksomhet.
Forbruker – avtalevilkår
Eiendommen har en mangel dersom den ikke er i samsvar med kravene som følger av avtalen, eller det foreligger brudd på bestemmelsene i avhendingsloven §§ 3-2 til 3-8. Hvis eiendommen ikke er i samsvar med det kjøperen må kunne forvente ut ifra alder, type og synlig tilstand, kan det være grunnlag for mangelskrav. Det samme gjelder hvis det er holdt tilbake eller gitt uriktige opplysninger om eiendommen. Dette gjelder likevel bare dersom man kan gå ut ifra at det virket inn på avtalen at opplysningen ikke ble gitt eller at mangelskravet ikke blir rettet i tide på en tydelig måte.
Boligen kan ha en mangel etter avhendingsloven § 3-3 andre ledd, dersom det er avvik mellom opplyst og faktisk innvendig areal, forutsatt at avviket er på 2% eller mer og minimum 1 kvm.
Ved beregning av et eventuelt prisavslag eller erstatning må kjøper selv dekke tap/kostnader opptil et beløp på kr 10 000 (egenandel).
Ikke-forbruker (næringsdrivende) – definisjon
Hvis kjøper er en juridisk person, eller en fysisk person som hovedsakelig handler som ledd i næringsvirksomhet, vil kjøpet ikke anses som et forbrukerkjøp.
Ikke-forbruker – avtalevilkår
Eiendommen har en mangel dersom den ikke er i samsvar med kravene som følger av avtalen.
Eiendommen selges «som den er», og selgers ansvar utover det konkret avtalte er da begrenset etter avhendingsloven § 3-9, første ledd andre setning.
Avhendingsloven § 3-3 andre ledd fravikes, og hvorvidt boligens arealsvikt utgjør en mangel vurderes etter avhendingsloven § 3-8.
Informasjon om kjøpers undersøkelsesplikt, herunder oppfordringen om å undersøke eiendommen nøye, gjelder også for kjøpere som ikke anses som forbrukere.
Det forutsettes at hjemmel overføres til kjøper. Hvis kjøper ikke ønsker hjemmelsoverføring av eiendommen, må det tas forbehold om dette i budet.
Meglers vederlag
Meglers vederlag betales av selger og er avtalt til:
Vederlag: 0,80 % av salgssummen.
Vederlag
Foto leilighet kr 5 000,-
Kontroll av hjemmel og heftelser kr 2 900,-
Markedsføringspakke kr 26 000,-
Oppgjør kr 7 500,-
Tilrettelegging kr 15 000,-
Visninger kr 2 900,- pr stk.
Utlegg
Eierskiftegebyr til forretningsfører kr 6 570,-
Tinglysing sikring kr 545,00
Andre utgifter
Tilstandsrapport kr 9 950,00
Opplysninger om oppdraget
Oppdragsnummer 10-0284/25
Eiendomsmegler Krogsveen AS, avd. Bærum
Gml. Ringeriksvei 40, 1357, BEKKESTUA
950 007 613
Oppdragets KR-kode KR10.25284
Dato
Sist oppdatert: 18. desember 2025 kl. 13:18
Dokumenter
Dokumenter
PDF – 1003 KB
PDF – 335 KB
PDF – 312 KB
PDF – 29 KB
PDF – 127 KB
PDF – 392 KB
Område
Legg til steder som er viktige for deg
Visning
Det er ingen planlagte visninger. Meld deg på for å avtale en tid som passer.
Lurer du på noe?
Unngå doble boligrenter
Vi tilbyr gunstig forsikring.
Vurderer du utleie?
Få et tilbud fra Utleie KrogsveenHva koster lånet?
Sjekk estimert lånekostnadVil du varsles om lignende boliger?
Ved å lagre ditt boligsøk hos oss får du beskjed når vi har en bolig som ligner denne, før den legges ut på markedet!

