Korsveggarden 49
3 300 000 kr
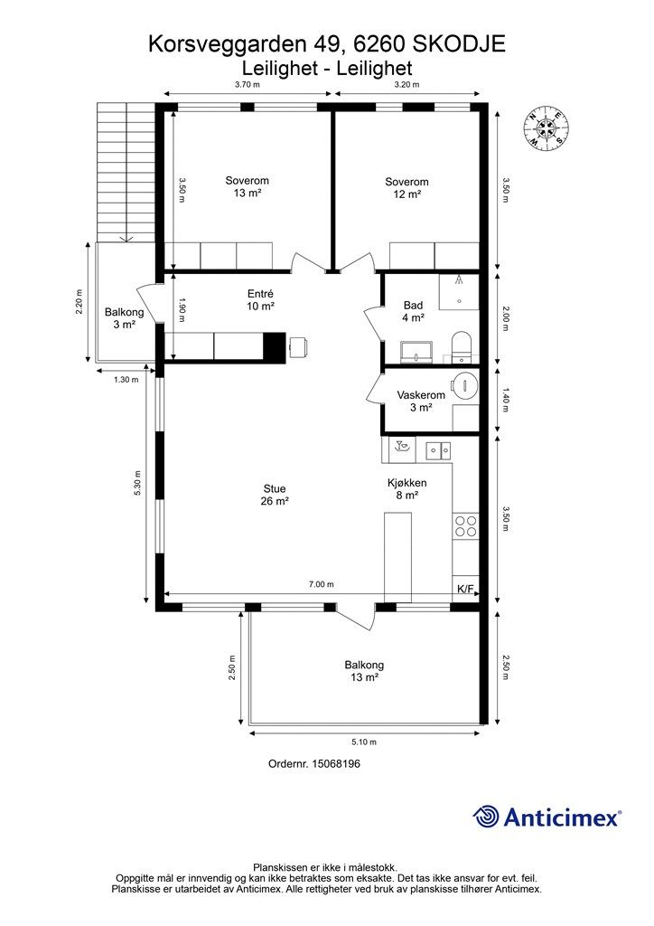
79 m²
2 soverom
Solgt

Skodje
Lys og pen eierleilighet med 2 soverom | Sydvestvendt balkong på 13 m2| Flott utsikt | Carport
Prisantydning
3 300 000 krOmkostninger
93 540 krTotalpris
3 393 540 kr
Pris
Bruksareal
84 m²BRA-I (internt bruksareal)
79 m²BRA-E (eksternt bruksareal)
5 m²TBA (terrasse-balkongareal)
16 m²
Areal
Etasje
2Byggeår
2010Soverom
2 soveromBad
1 badType
EierleilighetEierform
EierseksjonFasiliteter
Garasje/P-plass og Balkong/TerrasseFellesutgifter
800 krEnergimerke
Rød D
Nøkkelinfo
Unngå doble boligrenter
Vi tilbyr gunstig forsikring.
Vurderer du utleie?
Få et tilbud fra Utleie KrogsveenHva koster lånet?
Sjekk estimert lånekostnadBeskrivelse
Kort om eiendommen
Lys og pen eierleilighet med rolig og attraktiv beliggenhet med nærhet til sjøen.
* Åpen og luftig planløsning med gode lysforhold
* Peisovn i stue
* 2 soverom med mulighet for 3
* Flott flislagt bad og eget vaskerom
* HTH kjøkkeninnredning med integrerte hvitevarer fra MIELE
* Sørvestvendt balkong på 13 kvm
* Nordvestvendt balkong på 3 kvm
* Carport med bod i bakkant
* Gode solforhold og utsikt mot fjord og fjell
Velkommen til visning!
Område
Legg til steder som er viktige for deg
På flyttefot? Tenk kjøp og salg samtidig.
Få din egen rådgiver gjennom hele kjøps- og salgsprosessen. Det starter med en verdivurdering.
Unngå doble boligrenter
Vi tilbyr gunstig forsikring.
Vurderer du utleie?
Få et tilbud fra Utleie KrogsveenHva koster lånet?
Sjekk estimert lånekostnadVil du varsles om lignende boliger?
Ved å lagre ditt boligsøk hos oss får du beskjed når vi har en bolig som ligner denne, før den legges ut på markedet!

