Solveien 109D
12 500 000 kr
166 m²
6 soverom
Solgt
Nordstrand/Solveien
Innholdsrik arkitekttegnet enebolig | Fjordutsikt | Bergvarme | Garasje | Oppussingsbehov
Prisantydning
12 500 000 krOmkostninger
333 490 krTotalpris
12 833 490 kr
Pris
Bruksareal
213 m²BRA-I (internt bruksareal)
166 m²BRA-E (eksternt bruksareal)
47 m²TBA (terrasse-balkongareal)
6 m²
Areal
Byggeår
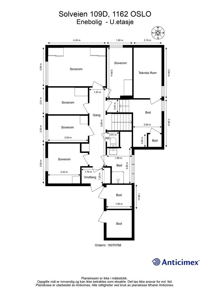
1955Soverom
6 soveromBad
1 badTomteareal
722 m² (eiet)Type
Enebolig - FrittliggendeEierform
EietFasiliteter
Garasje/P-plass og Balkong/TerrasseEnergimerke
Gul F
Nøkkelinfo
Unngå doble boligrenter
Vi tilbyr gunstig forsikring.
Vurderer du utleie?
Få et tilbud fra Utleie KrogsveenHva koster lånet?
Sjekk estimert lånekostnadBeskrivelse
Kort om eiendommen
Velkommen til Solveien 109D, en arkitekttegnet enebolig med fjordutsikt. Frittliggende enebolig med en innholdsrik planløsning med bl.a. 6 soverom, samt en romslig stue/spisestue med takhøyde på opptil 3,08 meter og store vindusflater med utsikt. Oppvarming via bergvarme. Boligen har en eldre standard og det må påregnes oppussing. Rikelig med lagringsplass og garasje. Skjermet hage med planarealer og beplantning. Sol på eiendommen fra morgen til tidlig kveld. Boligen ligger på vestsiden av Solveien, i strekket mellom Nordstrandveien og Krokkleiva. Herfra er det kort vei til bl.a. Nordstrand bad, skoler, kollektivtransport og servicetilbud på Sæter.
Område
Legg til steder som er viktige for deg
På flyttefot? Tenk kjøp og salg samtidig.
Få din egen rådgiver gjennom hele kjøps- og salgsprosessen. Det starter med en verdivurdering.
Unngå doble boligrenter
Vi tilbyr gunstig forsikring.
Vurderer du utleie?
Få et tilbud fra Utleie KrogsveenHva koster lånet?
Sjekk estimert lånekostnadVil du varsles om lignende boliger?
Ved å lagre ditt boligsøk hos oss får du beskjed når vi har en bolig som ligner denne, før den legges ut på markedet!




