Jarlsbergveien 121B
3 950 000 kr
154 m²
3 soverom
Solgt

Konnerud
Enebolig med en tilbaketrukket og rolig beliggenhet. Sydvendt terrasse og stor hage. Tomt over 2 mål. Oppussingsobjekt.
Prisantydning
3 950 000 krOmkostninger
119 740 krTotalpris
4 069 740 kr
Pris
Bruksareal
174 m²BRA-I (internt bruksareal)
154 m²BRA-E (eksternt bruksareal)
20 m²TBA (terrasse-balkongareal)
16 m²
Areal
Etasje
2Byggeår
1725Soverom
3 soveromBad
1 badTomteareal
2 176 m² (eiet)Type
Enebolig - FrittliggendeEierform
EietFasiliteter
Balkong/TerrasseEnergimerke
Oransje G
Nøkkelinfo
Unngå doble boligrenter
Vi tilbyr gunstig forsikring.
Vurderer du utleie?
Få et tilbud fra Utleie KrogsveenHva koster lånet?
Sjekk estimert lånekostnadBeskrivelse
Kort om eiendommen
Velkommen til Jarlsbergveien 121B! En enebolig med en tilbaketrukket og naturskjønn beliggenhet i en privat blindvei på Konnerud. Her bor du i rolige omgivelser med umiddelbar nærhet til marka, som byr på flotte turmuligheter. Området er ideelt for familier, med gangavstand til skoler, barnehager og idrettsanlegg, samt kort vei til Konnerud sentrum med butikker og servicetilbud.
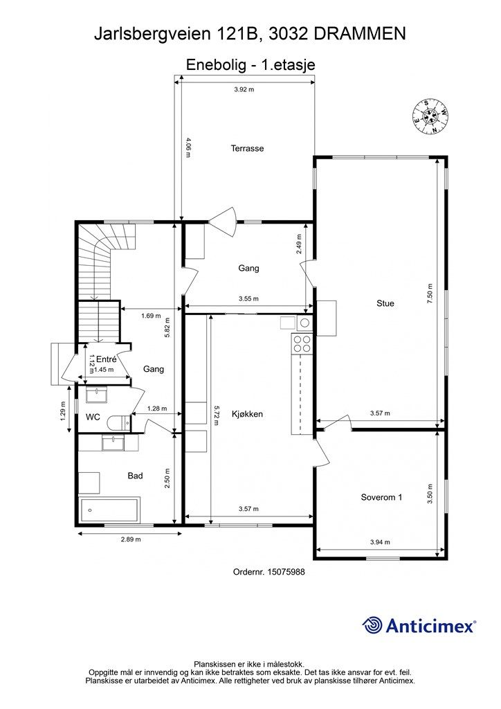
Dette er et oppussingsobjekt. Boligen går over to plan og inneholder blant annet en romslig stue, kjøkken, tre soverom, bad og wc-rom. Fra stuen er det utgang til en sydvendt terrasse på 16 kvm. Eiendommen har i tillegg en stor hage (tomt på over 2 mål), et drivhus på 12 kvm og en praktisk utebod på 8 kvm.
Velkommen til visning!
Område
Legg til steder som er viktige for deg
På flyttefot? Tenk kjøp og salg samtidig.
Få din egen rådgiver gjennom hele kjøps- og salgsprosessen. Det starter med en verdivurdering.
Unngå doble boligrenter
Vi tilbyr gunstig forsikring.
Vurderer du utleie?
Få et tilbud fra Utleie KrogsveenHva koster lånet?
Sjekk estimert lånekostnadVil du varsles om lignende boliger?
Ved å lagre ditt boligsøk hos oss får du beskjed når vi har en bolig som ligner denne, før den legges ut på markedet!

