Vesletjønnvegen 26
1 690 000 kr
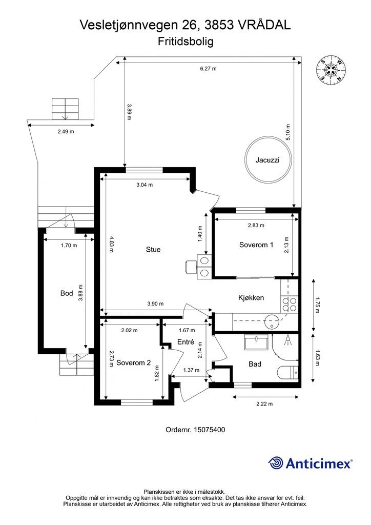
46 m²
2 soverom
Komplett salgsoppgave

Vrådal Panorama
Delikat og koselig innredet hytteleilighet - Stor veranda (38 kvm) med boblebad, svært gode solforhold og utsikt
Prisantydning
1 690 000 krOmkostninger
53 290 krTotalpris
1 743 290 kr
Pris
Bruksareal
56 m²BRA-I (internt bruksareal)
46 m²BRA-E (eksternt bruksareal)
10 m²TBA (terrasse-balkongareal)
38 m²
Areal
Etasje
1Byggeår
2005Soverom
2 soveromBad
1 badType
Fritidseiendom på fjelletEierform
EierseksjonFellesutgifter
500 krEnergimerke
Oransje D
Nøkkelinfo
Vurderer du utleie?
Få et tilbud fra Utleie KrogsveenHva koster lånet?
Sjekk estimert lånekostnadBeskrivelse
Kort om eiendommen
Krogsveen v/Vindum presenterer Vesletjønnvegen 26 i vrådal.
- Koselig og lettholdt fritidsleilighet beliggende i 1. etasje
- Her er en god romløsning med to soverom, bad og stue/kjøkken i åpen løsning
- Smakfullt innredet med tidløse, varme fargevalg og en praktisk romløsning
- 2 boder slik at man har god lagringsplass
- Gode muligheter for utleie
- Stor veranda på ca 38 kvm med gode sol- og utsiktsforhold. Boblebad medfølger!
- Ski in/Ski out
- Sentralt beliggende på området med nærhet til ski, tur, bading, lekeområde og golf
Innhold og byggemåte
Innhold og byggemåte
Eiendommen
Vesletjønnvegen 26, 3853 VRÅDAL
Kommunenummer 4028, gårdsnummer 1, bruksnummer 58, seksjonsnummer 1, ideell andel 1/1
Innhold
Totalt bruksareal BRA: 56 kvm
BRA-i:
1. etasje 46 kvm: Entre, stue, kjøkken, bad og to soverom.
BRA-e:
1. etasje 10 kvm: To boder med utvendig adkomst.
Åpent areal:
1. etasje 38 kvm: Terrasse
Overbygd inngangsparti er del av fellesareal og derfor ikke målverdig som bruksareal. Det gjøres oppmerksom på at terrassen grenser til fjell og derfor skjønnsmessig oppmålt.
Bod i felles bodbygning er oppmålt til 2 kvm.
Bod med utvendig adkomst er oppmålt til 8 kvm.
Det gjøres oppmerksom på at vegg mellom bod og hoveddel er skjønnsmessig oppmålt. Avvik kan forekomme.
Vedlagte plantegninger er ikke målbare. De oppgitte arealer er hentet fra rapport med befaringsdato 08.09.2025 utført av Anticimex Sandefjord AS. Arealene er beregnet og rom er definert etter dagens faktiske bruk, uavhengig av hva som er godkjent av bygningsmyndighetene.
Byggemåte
Selger har fått utarbeidet en tilstandsrapport, dvs. en teknisk gjennomgang av boligen hvor eventuelle avvik, risiko for kjøper og prisoverslag for hva som bør gjøres av oppgradering, er skissert. Se særskilt TGIU (tilstandsgrad ikke undersøkt), samt TG2 og TG3 som viser hva som er avvik fra boligens normale slitasje, alder og type, eller som bør/må utbedres. Rapporten og selgers egenerklæring er en del av salgsoppgaven og må leses nøye før bud inngis. Kjøper overtar ansvaret for de opplysninger som fremkommer av salgsdokumentasjonen, og kan ikke gjøre gjeldende som mangel noe som burde vært kjent eller som ikke kan anses å ha betydning for avtalen.
Hytta er oppført i 2005. Den er oppført på støpt betong mot grunn. Plate på mark. Yttervegger og tak i trekonstruksjoner. Saltak tekket med bordtakskledning av typen "Larvikstak". Vinduer og terrassedør med to-lags isolerglass. Ytterdør i sandwichkonstruksjon med isolerglassfelt.
Sammendrag av boligens tilstandsgrad:
TG1 : 53 % | TG2 : 38 % | TG3 : 0 % | TGIU : 9 %
I rapportens sammendrag fremkommer det som takstmannen mener kjøper må være særskilt oppmerksom på, utover normal elde og slitasje, herunder TG 2:
* Bad: Valgt på hele våtrommet på grunn av alder og slitasjegrad. Det er blant annet registrert følgende avvik: Tettesjiktet har påløpt alder, underkant veggplater bærer preg av alder, bomlyd under enkelte gulvfliser, elastiske flisfuger har stedvis manglende vedheft, sluket er isolert inne i dusjsonen.
* Generelt: Bomlyd under enkelte fliser, noen sprukne fliser og innerdører har kontakt med dørterskel/dørkarm.
* Varmtvannsbereder er plassert i rom uten sluk/overløp. Berederen har påløpt alder.
* El-anlegg: Opprinnelig installasjon uten dokumentasjon.
* Terrasse: Rekkverkshøyden er under 1,0 meter. Det er enkelte sprukne fliser på plattingen.
Selger opplyser at han har liggende ekstra flis, som ny eier kan overta om ønskelig.
Tilstandsrapporten følger vedlagt i salgsoppgaven for utfyllende informasjon. Interessenter må sette seg inn i denne før bud inngis.
Standard
Velkommen til Vesletjønnvegen 26!
Perfekt hytte for de som ønsker en lettholdt hytte med lave driftsutgifter. Her er også utleiemulighet, om det er ønskelig.
Hytten ligger rolig, sentralt og solrikt til.
Hytteleiligheten ligger i 1 etasje og har en gjennomtenkt og god romløsning.
Man entrer i entreen hvor det er plass til å henge av yttertøy. Tilliggende har man badet, som er innredet med flislagt gulv og våtromsplater på vegg. Varmekabler i gulv. Av innredning på badet er det toalett, servant og dusjhjørne. Mulighet for vaskemaskin. Det er ført vann til yttervegg med utekran.
Hovedsoverommet er svalt og romslig. Innredet med dobbelseng. Gjesterommet er også svalt beliggende og innredet med to køyesenger.
Stue/kjøkken i delvis åpen løsning. Det er innredet med en godt arbeidskjøkken med hvitprofilerte fronter. Hvitevarer medfølger og de er fra byggeår, slik at bruksslitasje må påregnes. Det er god plass til både spisestue og salong i stuen. Stuen har vedovn for både hygge og varme i kjøligere sesonger samt varmekabler i gulv. Stuen har utgang til deilig, solrik veranda på ca 38 kvm. Her er det god plass til utemøblement og boblekar medfølger. Boblekaret er fra ca 2018 og bruksslitasje må påregnes. Man nyter en fin utsikt fra terrassen, og kan følge med på de minste i alpinanlegget!
Det er to utvendige boder til hytten. Den ene er gjennomgående og oppført omkring 2020/21.
Hytten er pent innredet med beisede overflater i varme og tidløse fargevalg. Flytt rett inn og nyt rolige dager i vakre Vrådal!
Løsøre og tilbehør
Vi viser til liste fra Norges Eiendomsmeglerforbund som gjelder fra 01.01.2020 angående løsøre og tilbehør.
Hytten kan selges møblert etter avtale med selger.
Oppvarming
Vedovn i stue. Tilsyn 04.01.2019. Utført 22.01.2024. Ingen avvik eller anmerkninger
Varmekabler på bad, entrè og i stue/kjøkken.
Ellers elektrisk med panelovner. Dersom beboelsesrom ikke har vegg- eller fastmonterte varmekilder ved visning, følger dette heller ikke med.
Ferdigattest/brukstillatelse
Det foreligger ferdigattest på "Fritidsbustad med 4 brukseiningar", datert 23.3.2006. Denne kan fås ved henvendelse til megler.
Tinglyste heftelser og rettigheter
Leiligheten overdras fri for pengeheftelser.
Sameiet har legalpant for krav mot sameieren som følger av sameieforholdet iht. eierseksjonsloven § 31. Pantet er begrenset oppad til 2G, (G = folketrygdens grunnbeløp).
Det er ingen tinglyste servitutter på eiendommen.
Eventuell adgang til utleie
Leiligheten kan leies ut såfremt leiligheten har forsvarlige radonverdier. Leietaker må følge sameiets vedtekter og ordensregler på lik linje som eier.
Diverse
Tilbud av produkter og tjenester fra våre samarbeidspartnere
Vi er opptatt av verdiskapning, og har knyttet til oss samarbeidspartnere som skal sikre våre kunder de beste produkter og tjenester;
• Gjensidige leverer boligselgerforsikring og tilbyr bygningsforsikring
• Boligkjøperforsikring leveres av Hiscox og med Sedgwick som skadebehandler, og er formidlet gjennom Gjensidige.
• BN bank tilbyr finansieringsløsninger
• Vår avdeling Krogsveen Pluss tilbyr flyttetjenester som utvask, visningsvask, lager, tømming og transport av flyttelass, i tillegg til å formidle kontakt med Flip for overflateoppussing.
• I forbindelse med overtagelse av eiendommen tilbyr Overo avtale om strøm, alarm og bredbånd.
• Krogsveen er, sammen med øvrige bransjeaktører, medeier i den digitale annonseringsplattformen Hjem.
Beliggenhet og tomteforhold
Beliggenhet og tomteforhold
Beliggenhet
Vrådal Panorama Skisenter er et flott og attraktivt helårs feriested, som har blitt veldig populært de siste årene.
Hytten ligger i umiddelbar nærhet til skianlegg. Den ligger sydvestvendt og har gode solforhold.
I Vrådal har man masse aktivitetstilbud sommer som vinter!
Om sommeren bys det på vakker natur, flotte turområder i fjellet med merkede turer (korte og lange), 9 hulls golfbane, nydelig opparbeidet badestrand- og brygge med båtplasser og vannleker for ungdommen (trampoline og klatreborg), lekeplass med både klatrestativ, hoppepute, skateramp, huskestativ m.m., fotballøkke og dammer med turstier.
Vinterstid bys det på oppkjørte langrennsløyper på fjellet, korte og lange turer, alt etter ønske og form! Det er 18 nedfarter i slalomanlegget med 8 heiser inkl. 8-seters stolheis. Her er det sjelden kø.
Kafeteria og bar på området, med tidvise aktivitetstilbud for store og små.
Vrådal har et veldig hyggelig og inkluderende miljø hvor man kan slappe av og bare nyte roen, naturen og de aktiviteter man ønsker. Velkommen!
Adkomst
Når man kommer til Vrådal sentrum følger man veien og skilting til Vrådal Panorama/alpinanlegg. Når man kommer inn på feltet holder man til venstre i "rundkjøringen" mot parkeringsplassen til alpinanlegget. Kjør inn på parkering, mot heisanlegget. Eiendommen er beliggende umiddelbart på venstre side. Området er bebygget med flere enheter og man har adkomst til fellesareal via bom.
Leiligheten ligger i den innerste enheten og optimalt beliggende i første rekke mot alpinanlegget.
Hytten er skiltet med Krogsveen til salgs skilt.
Beskrivelse av tomt
Eiertomt på 996 kvm som tilhører sameiet. Tomten er fellesareal.
Flat/kupert tomt, opparbeidet som naturtomt og med gruset biloppstillingsplass.
Leiligheten har en deilig og solrik terrasse med utgang fra stuen. Her er etablert jaccuzzi, som følger handelen.
Leiligheten disponerer parkeringsplass ved hyttevegg. Det er etablert felles ladepunkt for elbil. Det er etablert bom inn til fellesområdet.
Parkering
Parkering ved hyttevegg. Mulighet for lading på felles ladepunkt.
Vei, vann og avløp
Eiendommen har adkomst via privat vei med felles vedlikeholdsansvar.
Eiendommen er tilknyttet kommunalt ledningsnett via private stikkledninger. Eier er selv ansvarlig for private stikkledninger til boligen.
Regulerings-og arealplaner
Eiendommen er regulert til hytter for fritidsbebyggelse, frittliggende og konsentrert, i henhold til reguleringsplan for alpinanlegg med tilhørende anlegg ved Vrådal skisenter datert 29/06-2000 med tilhørende reguleringsbestemmelser.
Ved siden av dette bygget vil Vrådal Panorama sette opp nybygg i form av leilighetsbygg.
Utsnitt av plan med tilhørende bestemmelser kan fås ved henvendelse til megler.
Økonomi
Økonomi
Kommunale utgifter
Kommunale avgifter er kr 13.211,- for inneværende år. I dette inngår gebyr for vann, avløp og renovasjon.
Fellesutgiftene er kr 6.000,- for 2025 og inkluderer: Snørydding på p-plass, utvendig bygningsforsikring, noe vedlikehold, vei/vann til skisenteret, regnskap, plenklipp og andre diverse småkostnader.
Fellesutgiftene justeres normalt en gang årlig i forhold til sameiets faktiske utgifter. Det er forventet en økning tidlig i 2026.
Nåværende eier har et strømforbruk som tilsvarer ca. kr 5.000,- pr. år. Dette vil variere ihht bruk av hytten.
Hytten er tilknyttet parabol som leverandør av kabel-tv. Tv-tuner/dekoder medfølger. Ny eier må påse abonnement.
Elbil lader kan benyttes og betales i app. Laderen er plassert ved bom.
Bommen styres med app og/eller fjernkontroll av beboerne.
Utgiftene er basert på nåværende eiers forbruk. Kjøper må selv tegne innboforsikring.
Formuesverdi
Formuesverdi for 2023 var kr 484 410,- ifølge skatteetaten.
Omkostninger
1 690 000,00 Prisantydning
Omkostninger
42 250,00 Dokumentavgift til staten (2,5% av kjøpesum)
9 950,00 Gjensidige Boligkjøperpakke (valgfri)
545,00 Tinglysing panterettsdokument
545,00 Tinglysing skjøte
--------------------------------------------------------
53 290,00 Omkostninger totalt
--------------------------------------------------------
1 743 290,00 Totalpris inkl. omkostninger
--------------------------------------------------------
Dersom sameiet har fellesgjeld, vil leilighetens andel av fellesgjelden komme i tillegg til kjøpesummen. Denne gjelden skal ikke innbetales i oppgjøret, men følger leiligheten.
Totalpris inkl. omkostninger forutsetter kjøp til prisantydning.
Det tas forbehold om endringer i avgifter og gebyrer.
Tilbud om lånefinansiering
Megler formidler gjerne kontakt med rådgiver hos vår samarbeidspartner BN Bank. De har konkurransedyktige betingelser samt rask og løsningsorientert behandling av din lånesøknad. Krogsveen mottar et honorar for denne formidlingen.
Betalingsbetingelser
Kjøpesum inkludert omkostninger, samt pantedokument tilknyttet eventuelt lån, skal være disponibelt hos megler 2 virkedager før overtagelsen.
Annen viktig informasjon
Annen viktig informasjon
Eier
Ingar Birkedal
Konsesjon
Eiendommen er ikke konsesjonspliktig, men det er boplikt i Kviteseid kommune. For at eiendommen skal kunne overskjøtes må kjøper signere på egenerklæring om konsesjonsfrihet om at boplikten ikke gjelder for denne eiendommen.
Overtakelse
Etter nærmere avtale.
Boligselgerforsikring
Selger har i forbindelse med salget tegnet boligselgerforsikring levert av Gjensidige.
Boligselgerforsikringen dekker selgers ansvar etter avhendingsloven begrenset oppad til kr 14 millioner. Dersom kjøper oppdager forhold ved eiendommen som hen mener utgjør en mangel ved eiendommen, vil Gjensidige behandle reklamasjonen på vegne av selger. Forsikringsvilkår kan fås ved henvendelse til megler.
Vedlagt salgsoppgaven følger selgers egenerklæringsskjema og tilstandsrapport. Interessenter må sette seg inn i dokumentene før bud inngis.
Boligkjøperforsikring
Innen kontraktsmøtet må kjøper ta stilling til om det ønskes å bestille Boligkjøperpakken gjennom Gjensidige. I denne gunstige pakken er boligen ferdig forsikret og inkluderer rettshjelpsforsikring, også kalt Boligkjøperforsikring. Rettshjelpsforsikring gir trygghet og tilgang på profesjonell juridisk hjelp dersom det oppdages uventede feil eller mangler det første året etter overtagelse. Forsikringsselskapet behandler i så fall ethvert mangelskrav kjøper måtte ha overfor selger.
Boligkjøperpakken inkluderer bygningsforsikring for hus og hytte, innboforsikring, flytteforsikring og dobbel rentedekning - i situasjoner hvor kjøper ikke får solgt nåværende primærbolig.
Kjøper mottar ingen særskilt faktura for Boligkjøperpakken da kostnaden det første året legges til kjøpesummen for boligen. Det gjøres oppmerksom på Krogsveen mottar et honorar for denne formidlingen.
Produktark for Boligkjøperpakken ligger vedlagt i salgsoppgaven.
Dersom ikke boligkjøperpakke ønskes kan kun rettshjelpsforsikring, også kalt boligkjøperforsikring, tegnes særskilt via megler. Rettshjelpsforsikringen varer i 5 år fra overtagelse og leveres gjennom Gjensidige. Ta kontakt med megler for ytterligere informasjon.
Selskap og privatpersoner som driver med kjøp/salg/utvikling som ledd i egen næringsvirksomhet kan ikke tegne boligkjøperpakke eller rettshjelpsforsikring.
Budgivning
Forbrukerinformasjon om budgivning er vedlagt denne salgsoppgaven og er også på vår hjemmeside Krogsveen.no. Alle bud og budforhøyelser må inngis skriftlig. I tillegg må legitimasjon være fremlagt sammen med signatur fra budgiver.
Vi oppfordrer til å gi bud elektronisk via GI BUD-knappen på eiendommens hjemmeside på Krogsveen.no. Da vil samtlige vilkår bli oppfylt.
Eventuelle forhøyelser eller endringer av budet kan bekreftes pr SMS eller på e-post. Vi oppfordrer alltid til å kontakte megler pr. telefon i tillegg da forsinkelser i SMS og e-post kan forekomme.
For at budene skal kunne bli behandlet og videreformidlet skriftlig til alle involverte parter, må alle bud ha en tilstrekkelig lang akseptfrist, jf. eiendomsmeglingsforskriften § 6-3.
Selger må også skriftlig akseptere budet før aksept kan formidles til budgiver. Akseptfrist bør derfor være på minimum 30 minutter, og budforhøyelser må derfor skje i god tid før fristens utløp.
Bud i forbrukerforhold kan uansett ikke settes med kortere frist enn kl. 12.00 første virkedag etter siste annonserte visning. I tillegg kan ikke budet ha forbehold om at det skal holdes hemmelig ovenfor øvrige interessenter. Megler har iht lov om eiendomsmegling ikke anledning til å videreformidle disse budene, og de vil dermed heller ikke bli journalført.
Etter at eiendommen er solgt vil kjøper og selger få tilsendt budjournal. Øvrige budgivere kan få utlevert kopi av budjournalen i anonymisert form.
Hvitvaskingsreglene
I henhold til lov om hvitvasking og terrorfinansiering har megler plikt til å gjennomføre kontrolltiltak overfor kunder, herunder fullmektiger. Dette innebærer bl.a. å bekrefte kunders og reelle rettighetshaveres identitet på bakgrunn av fremvist gyldig legitimasjon eller på annen godkjent måte, samt å innhente opplysninger om kundeforholdets formål og tilsiktede art.
Dersom slike kundetiltak ikke kan gjennomføres, kan megler ikke etablere kundeforholdet eller utføre transaksjonen.
Hvis kjøper ikke bidrar til gjennomføring av kundekontrollen og dette fører til at transaksjonen blir forsinket eller ikke kan gjennomføres, vil dette ansees som mislighold av avtalen og gi selger rettigheter etter avhendingslova kapittel 5. I tilfeller der selger ikke bidrar til gjennomføring av løpende kundekontroll underveis i oppdraget, er det selger som misligholder sine forpliktelser etter avtalen og gi kjøper rettigheter etter avhendingslovens kapittel 4. Partene er selv ansvarlige for eventuelle kostnader og ansvar dette kan medføre. Eiendomsmegleren eller eiendomsmeglingsforetaket kan ikke holdes ansvarlig for de konsekvenser dette vil kunne få for partene eller andre som har interesser i eiendomshandelen.
Kjøper oppfordres til å innbetale kjøpesummen som ikke kommer fra låneinstitusjon i én samlet innbetaling fra egen konto i norsk bank. Megler har plikt til å melde fra til Økokrim om eiendomshandler som fremstår som mistenkelige. Melding sendes Økokrim uten at partene varsles.
Personopplysningsloven
I henhold til personopplysningsloven gjør vi oppmerksom på at interessenter kan bli registrert for videre oppfølging.
Lovanvendelse
Generelle bestemmelser
Salgsoppgaven er basert på de opplysningene selger har gitt til megler, den bygningssakyndiges tilstandsrapport, samt opplysninger innhentet fra kommunen, Kartverket og andre tilgjengelige kilder. Det er viktig at kjøper setter seg grundig inn i alle salgsdokumentene, herunder salgsoppgave, tilstandsrapport og selgers egenerklæring. Kjøper anses kjent med forhold som er tydelig beskrevet i salgsdokumentene, og slike forhold kan ikke påberopes som mangler. Dette gjelder uavhengig av om kjøper har lest dokumentene. Alle interessenter oppfordres til å undersøke eiendommen nøye, gjerne sammen med fagkyndig før bud inngis. Kjøper som velger å kjøpe usett kan ikke gjøre gjeldende som mangel noe han burde blitt kjent med ved undersøkelsen.
Dersom det er behov for avklaringer, anbefaler vi at interessenter rådfører seg med eiendomsmegler eller egne rådgivere før det legges inn bud.
En bolig som har blitt brukt i en viss tid, har vanligvis blitt utsatt for slitasje og skader kan ha oppstått. Slik bruksslitasje må kjøper regne med, og det kan avdekkes enkelte forhold etter overtakelse som nødvendiggjør utbedringer. Normal slitasje og skader som nødvendiggjør utbedring, er innenfor hva kjøper må forvente og vil ikke utgjøre en mangel.
Kjøper og selgers rettigheter og plikter reguleres av avtalen mellom partene, samt informasjonen som har vært tilgjengelig for kjøperen i forbindelse med handelen. Avtalen utfylles av avhendingsloven, og det gjelder ulike avtalevilkår avhengig av om kjøper er forbrukerkjøper eller ikke. Dette er nærmere beskrevet nedenfor.
På grunn av ulike avtalevilkår kan selger vurdere bud fra en som ikke er forbruker, ulikt fra en forbrukers bud. Dersom kjøper ikke er forbruker, er selger sitt mulige mangelsansvar begrenset fordi eiendommen selges "som den er". Selger kan ikke ta «som den er»- forbehold overfor en forbrukerkjøper. Selv et lavere bud fra en som ikke er forbruker kan foretrekkes fordi begrensningen i mulig mangelsansvar kan ha egenverdi for selger. Selger står fritt til å forkaste eller akseptere ethvert bud, og er for eksempel ikke forpliktet til å akseptere høyeste bud.
Budgiver skal i budskjema avgi egenerklæring om budgiver er forbruker eller næringsdrivende/ person som hovedsakelig handler som ledd i næringsvirksomhet. Budgivere får informasjon dersom andre bud er inngitt av en som ikke er forbruker.
Forbrukerkjøp - definisjon
Med forbrukerkjøp menes kjøp av eiendom når kjøperen er en fysisk person som ikke hovedsakelig handler som ledd i næringsvirksomhet.
Forbruker – avtalevilkår
Eiendommen har en mangel dersom den ikke er i samsvar med kravene som følger av avtalen, eller det foreligger brudd på bestemmelsene i avhendingsloven §§ 3-2 til 3-8. Hvis eiendommen ikke er i samsvar med det kjøperen må kunne forvente ut ifra alder, type og synlig tilstand, kan det være grunnlag for mangelskrav. Det samme gjelder hvis det er holdt tilbake eller gitt uriktige opplysninger om eiendommen. Dette gjelder likevel bare dersom man kan gå ut ifra at det virket inn på avtalen at opplysningen ikke ble gitt eller at mangelskravet ikke blir rettet i tide på en tydelig måte.
Boligen kan ha en mangel etter avhendingsloven § 3-3 andre ledd, dersom det er avvik mellom opplyst og faktisk innvendig areal, forutsatt at avviket er på 2% eller mer og minimum 1 kvm.
Ved beregning av et eventuelt prisavslag eller erstatning må kjøper selv dekke tap/kostnader opptil et beløp på kr 10 000 (egenandel).
Ikke-forbruker (næringsdrivende) – definisjon
Hvis kjøper er en juridisk person, eller en fysisk person som hovedsakelig handler som ledd i næringsvirksomhet, vil kjøpet ikke anses som et forbrukerkjøp.
Ikke-forbruker – avtalevilkår
Eiendommen har en mangel dersom den ikke er i samsvar med kravene som følger av avtalen.
Eiendommen selges «som den er», og selgers ansvar utover det konkret avtalte er da begrenset etter avhendingsloven § 3-9, første ledd andre setning.
Avhendingsloven § 3-3 andre ledd fravikes, og hvorvidt boligens arealsvikt utgjør en mangel vurderes etter avhendingsloven § 3-8.
Informasjon om kjøpers undersøkelsesplikt, herunder oppfordringen om å undersøke eiendommen nøye, gjelder også for kjøpere som ikke anses som forbrukere.
Det forutsettes at hjemmel overføres til kjøper. Hvis kjøper ikke ønsker hjemmelsoverføring av eiendommen, må det tas forbehold om dette i budet.
Meglers vederlag
Meglers vederlag betales av selger og er avtalt til:
Fastpris: 48 000,-
Vederlag
Fotopakke inkl drone kr 5 200,00
Kontroll av hjemmel og heftelser kr 2 900,00
Markedsføringspakke Fritid kr 27 400,00
Oppgjør kr 7 500,00
Tilrettelegging kr 17 000,00
Visninger pr stk / Overtagelse kr 2 500,00
Utlegg
Innhenting av offentlig opplysninger Kviteseid kr 2 096,00
Tinglysing sikring kr 545,00
Andre utgifter
AX tilstandsrapport Fritidsleilighet kr 10 750,00
Boligselgerforsikring Gjensidige Tomt/Fritid regnes av prisant. 6,31 promille (min. 9600,-) kr 11 358,00
Opplysninger om oppdraget
Oppdragsnummer 22-0340/25
Eiendomsmegler Krogsveen AS, avd. Sandefjord
Jernbanealléen 13, 3210, SANDEFJORD
950 007 613
Oppdragets KR-kode KR22.25340
Dato
Sist oppdatert: 20. januar 2026 kl. 09:23
Dokumenter
Dokumenter
PDF – 940 KB
PDF – 442 KB
PDF – 744 KB
PDF – 3 MB
PDF – 312 KB
PDF – 29 KB
PDF – 127 KB
PDF – 392 KB
Område
Legg til steder som er viktige for deg
Visning
For å delta på visning, ber vi om at du melder deg på. Da sikrer vi at du får nødvendig informasjon og at det er satt av tilstrekkelig med tid. Kontakt megler dersom annet tidspunkt ønskes. Husk å lese salgsoppgaven før visningen, så du stiller forberedt. NB. Visning utgår dersom det ikke er noen påmeldte.
Ta kontakt med megler for avtale om privatvisning.
Ønsker du kun å bli holdt orientert, kan du fra eiendommens hjemmeside få varsel om solgtpris, eller kontakte megler.
Lurer du på noe?
Vurderer du utleie?
Få et tilbud fra Utleie KrogsveenHva koster lånet?
Sjekk estimert lånekostnadVil du varsles om lignende boliger?
Ved å lagre ditt boligsøk hos oss får du beskjed når vi har en bolig som ligner denne, før den legges ut på markedet!

