Ekebergveien 152F
7 700 000 kr
144 m²
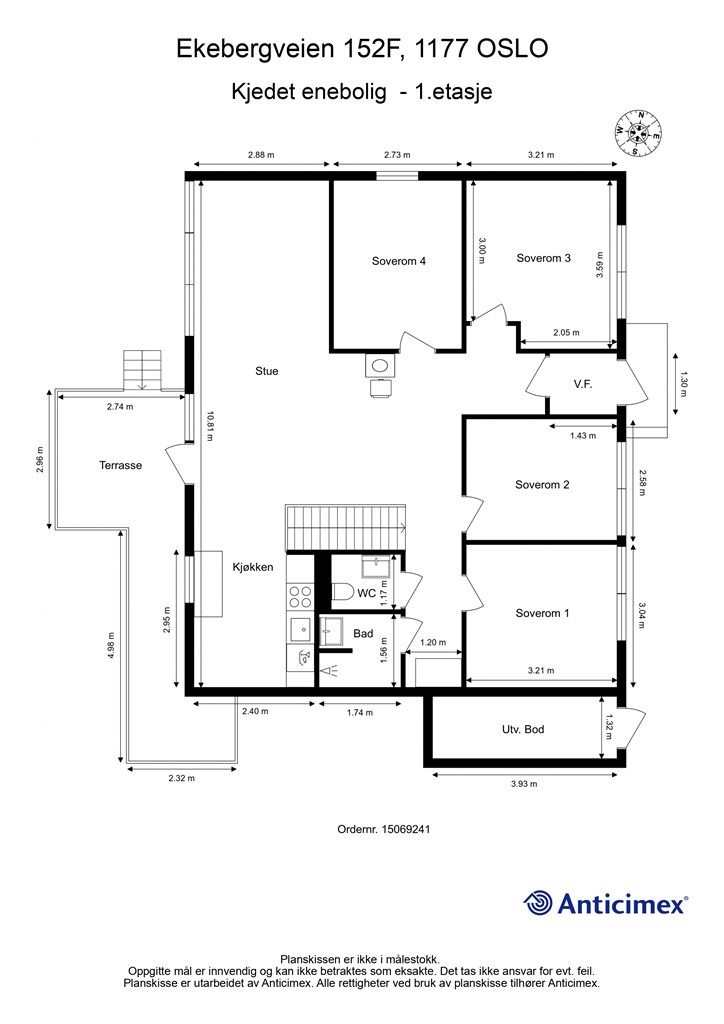
4 soverom
Solgt
Bekkelaget/Holtet
Solrik enebolig med utsyn, hage og garasje - Oppussingsobjekt
Prisantydning
7 700 000 krOmkostninger
213 490 krTotalpris
7 913 490 kr
Pris
Bruksareal
166 m²BRA-I (internt bruksareal)
144 m²BRA-E (eksternt bruksareal)
22 m²TBA (terrasse-balkongareal)
16 m²
Areal
Byggeår
1977Soverom
4 soveromBad
2 badTomteareal
815 m² (eiet)Type
Enebolig i kjedeEierform
EietFasiliteter
Garasje/P-plass og Balkong/TerrasseEnergimerke
Rød G
Nøkkelinfo
Unngå doble boligrenter
Vi tilbyr gunstig forsikring.
Vurderer du utleie?
Få et tilbud fra Utleie KrogsveenHva koster lånet?
Sjekk estimert lånekostnadBeskrivelse
Kort om eiendommen
Velkommen til Ekebergveien 152F, en solrik enebolig beliggende høyt og fritt med utsyn mot vest. En innholdsrik bolig over 2 plan med bl.a. 4 soverom og 2 ekstra rom benyttet som soverom, 2 bad, 2 toaletter, kjøkken og stue/spisestue med noe utsyn. Inngangsparti i begge etasjer. Vestvendt og solrik terrasse og hage. Garasje. Boligen har en eldre standard og det må påregnes full oppussing. Eiendommen ligger kun noe få minutters gange fra bl.a. Bekkelaget skole, kollektivtransport og servicetilbud på Holtet.
Område
Legg til steder som er viktige for deg
På flyttefot? Tenk kjøp og salg samtidig.
Få din egen rådgiver gjennom hele kjøps- og salgsprosessen. Det starter med en verdivurdering.
Unngå doble boligrenter
Vi tilbyr gunstig forsikring.
Vurderer du utleie?
Få et tilbud fra Utleie KrogsveenHva koster lånet?
Sjekk estimert lånekostnadVil du varsles om lignende boliger?
Ved å lagre ditt boligsøk hos oss får du beskjed når vi har en bolig som ligner denne, før den legges ut på markedet!




