Rinda 30
4 690 000 kr
96 m²
2 soverom
Solgt

Sandved
BUD FOREELIGGER - Velholdt og pent rekkehus, med carport, mulighet for 3 sov, takterrasse, lekkert kjøkken, vaskerom m.m.
Prisantydning
4 690 000 krOmkostninger
138 240 krTotalpris
4 828 240 kr
Pris
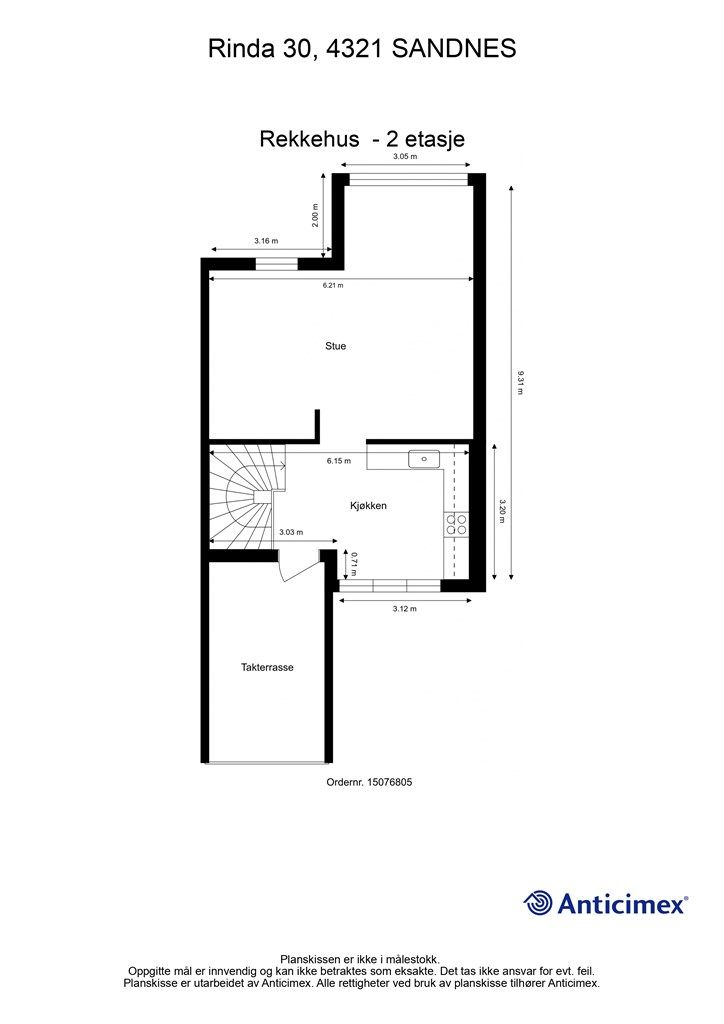
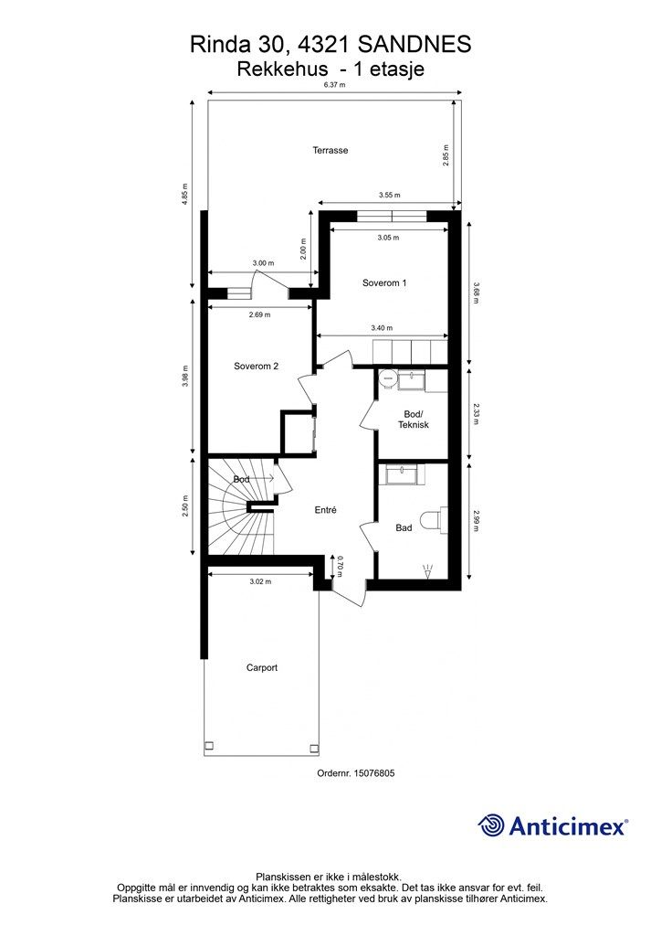
Bruksareal
101 m²BRA-I (internt bruksareal)
96 m²BRA-E (eksternt bruksareal)
5 m²TBA (terrasse-balkongareal)
45 m²
Areal
Byggeår
2016Soverom
2 soveromBad
1 badTomteareal
149 m² (eiet)Type
RekkehusEierform
EietFasiliteter
Garasje/P-plass og Balkong/TerrasseÅrlig velavgift
1 900 kr
Nøkkelinfo
Unngå doble boligrenter
Vi tilbyr gunstig forsikring.
Vurderer du utleie?
Få et tilbud fra Utleie KrogsveenHva koster lånet?
Sjekk estimert lånekostnadBeskrivelse
Kort om eiendommen
Vi har gleden av å presentere et pent, moderne og familievennlig rekkehus over to plan på Ganddal / Sandved. Boligen er lys og innbydende med gjennomgående vindusflater som gir en meget god romfølelse.
God standard på innredning, overflater og utstyr med bl.a. smakfulle materialvalg.
Kort om boligens kvaliteter:
* Rekkehus med meget attraktiv beliggenhet
* Flotte turområder i nærmiljøet
* Kort vei til skoler, butikker, tog og buss.
* Parkering i carport og i gårdsrom
* Gode solforhold dagen på 3 uteplasser
* Utvendig sportsbod
* Llistløste overganger mellom tak og vegg
* HTH kjøkken i grå utførelse med hvitevarer
* Hvit trapp med eiketrinn
* Varmepumpe
* Nymalt bolig og utebod.
Velkommen til en hyggelig visning
Område
Legg til steder som er viktige for deg
På flyttefot? Tenk kjøp og salg samtidig.
Få din egen rådgiver gjennom hele kjøps- og salgsprosessen. Det starter med en verdivurdering.
Unngå doble boligrenter
Vi tilbyr gunstig forsikring.
Vurderer du utleie?
Få et tilbud fra Utleie KrogsveenHva koster lånet?
Sjekk estimert lånekostnadVil du varsles om lignende boliger?
Ved å lagre ditt boligsøk hos oss får du beskjed når vi har en bolig som ligner denne, før den legges ut på markedet!

