Langøyveien 17
4 850 000 kr
165 m²
3 soverom
Solgt
Nordre Kråkerøy
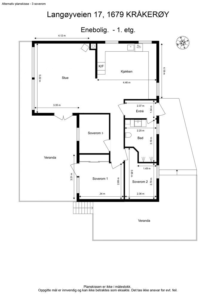
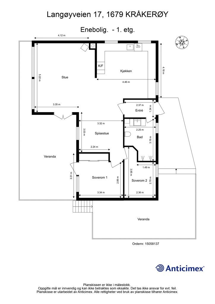
Oppusset bolig innredet som to separate enheter. Mulighet for 3 soverom i hoveddel. Kort vei til byen, marka og sjøen
Prisantydning
4 850 000 krOmkostninger
142 240 krTotalpris
4 992 240 kr
Pris
Bruksareal
165 m²BRA-I (internt bruksareal)
165 m²TBA (terrasse-balkongareal)
82 m²
Areal
Etasje
2Byggeår
1976Soverom
3 soveromBad
2 badTomteareal
414 m² (eiet)Type
Enebolig - FrittliggendeEierform
EietEnergimerke
Gul F
Nøkkelinfo
Unngå doble boligrenter
Vi tilbyr gunstig forsikring.
Vurderer du utleie?
Få et tilbud fra Utleie KrogsveenHva koster lånet?
Sjekk estimert lånekostnadBeskrivelse
Kort om eiendommen
Lekker oppusset enebolig innredet som to separate enheter i familievennlige og ettertraktede omgivelser på Langøya
- Betydelig oppusset i 2017 med blant annet nye overflater i alle rom
- Påkostet og velutstyrt kjøkken med marmor fra 2017 i første etasje
- Moderne bad etablert i begge etasjer i 2017 med helt nytt rør-i-rør system og adskilt fordelerskap til begge etasjer
- Elektrisk anlegg fornyet samtidig med oppussing - egne sikringsskap til begge etasjer
- Terrasser på til sammen nær 70 kvm. rundt første etasje
- Rom i u.etg moderne innredet og benyttes i dag som utleiedel
- Umiddelbar tilgang til sjøen og turområder
- Kort avstand til barnehager og skoler
- Busstopp og Kiwi rett utenfor utgangsdøra
- Kun 15 min. med sykkel til byen
Område
Legg til steder som er viktige for deg
Meglere
På flyttefot? Tenk kjøp og salg samtidig.
Få din egen rådgiver gjennom hele kjøps- og salgsprosessen. Det starter med en verdivurdering.
Unngå doble boligrenter
Vi tilbyr gunstig forsikring.
Vurderer du utleie?
Få et tilbud fra Utleie KrogsveenHva koster lånet?
Sjekk estimert lånekostnadVil du varsles om lignende boliger?
Ved å lagre ditt boligsøk hos oss får du beskjed når vi har en bolig som ligner denne, før den legges ut på markedet!
På flyttefot? Slik gjør vi det enklere for deg
Skreddersydd flyttepakke
Vi fikser håndverkere, vask, pakking, lagring og transport, og legger ut for utgiftene underveis.
Hjelp med både kjøp og salg
Hos oss har du din egen rådgiver gjennom hele kjøps- og salgsprosessen.
Hjelp til finansiering
Vårt samarbeid med BN Bank sikrer deg rask og løsningsorientert hjelp, til konkurransedyktige betingelser.




