Lundestadtoppen 26
6 790 000 kr
167 m²
4 soverom
Komplett salgsoppgave

Lundestadtoppen / Fjeldberg
Høytliggende sentrumsnær enebolig med fantastisk utsikt på meget attraktiv og solrik tomt. 4 sov. Innerst i blindgate.
Prisantydning
6 790 000 krOmkostninger
190 740 krTotalpris
6 980 740 kr
Pris
Bruksareal
167 m²BRA-I (internt bruksareal)
167 m²TBA (terrasse-balkongareal)
33 m²
Areal
Etasje
2Byggeår
1978Soverom
4 soveromBad
1 badTomteareal
679 m² (eiet)Type
Enebolig - FrittliggendeEierform
EietFasiliteter
Balkong/TerrasseEnergimerke
Oransje E
Nøkkelinfo
Unngå doble boligrenter
Vi tilbyr gunstig forsikring.
Vurderer du utleie?
Få et tilbud fra Utleie KrogsveenHva koster lånet?
Sjekk estimert lånekostnadBeskrivelse
Kort om eiendommen
- Flott utsikt til Vesterelven med sydvest-vendt terrasse på ca 33 m². - sol dagen gjennom
- Pusset opp og modernisert siden 2010-tallet
- IKEA kjøkkeninnredning fra 2015 med integrerte hvitevarer
- Bad modernisert rundt 2012
- Alle yttervegger i 1etasje, i kjelleren på soverommene og i tv stue er etterisolerte innvendig med 5cm mineralull
- Vinduer av tre og to-/tre-lags glass fra 2010, 2012 og 2021
- Garasje påbegynt med potensial, oppføring må søkes om
- Tilbaketrukket beliggenhet, innerst i gaten
- Fredelig nabolag uten gjennomgangstrafikk
- Sentrale, men rolige omgivelser
- Enkel tilgang til et bredt kollektivtilbud
Innhold og byggemåte
Innhold og byggemåte
Eiendommen
Lundestadtoppen 26, 1613 FREDRIKSTAD
Kommunenummer 3107, gårdsnummer 210, bruksnummer 529, ideell andel 1/1
Innhold
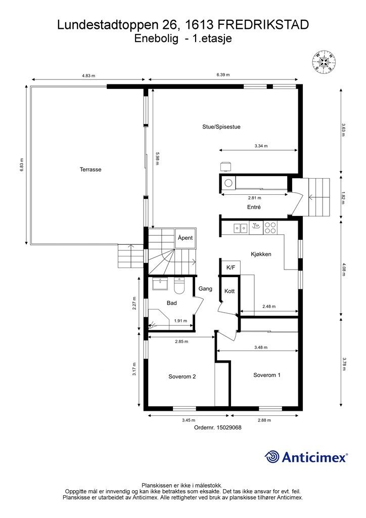
Totalt bruksareal BRA: 167 kvm
BRA-i:
Kjeller 81 kvm: Gang, to soverom, to boder, vaskekjeller og kjellerstue
1. etasje 86 kvm: Entré, gang, bad, kott, to soverom, stue/spisestue og kjøkken
Åpent areal:
1. etasje 33 kvm: Terrasse
Vedlagte plantegninger er ikke målbare. De oppgitte arealer er hentet fra rapport datert 23.08.2024 utført av Anticmex . Arealene er beregnet og rom er definert etter dagens faktiske bruk, uavhengig av hva som er godkjent av bygningsmyndighetene.
Se punkt ferdigattest
Byggemåte
Selger har fått utarbeidet en tilstandsrapport, dvs. en teknisk gjennomgang av boligen hvor eventuelle avvik, risiko for kjøper og prisoverslag for hva som bør gjøres av oppgradering, er skissert. Se særskilt TGIU (tilstandsgrad ikke undersøkt), samt TG2 og TG3 som viser hva som er avvik fra boligens normale slitasje, alder og type, eller som bør/må utbedres. Rapporten og selgers egenerklæring er en del av salgsoppgaven og må leses nøye før bud inngis. Kjøper overtar ansvaret for de opplysninger som fremkommer av salgsdokumentasjonen, og kan ikke gjøre gjeldende som mangel noe som burde vært kjent eller som ikke kan anses å ha betydning for avtalen.
Bygningen er iht. tilstandsrapporten oppført i tre. Enebolig fra 1978. Støpt plate. Grunnmur av lettklinkerblokker. Yttervegger og etasjeskillere av trekonstruksjoner. Fasader utført i stående kledning.
Takkonstruksjon utført i saltaksform utvendig tekket med betongtakstein. Glatt entrédør av tre med glassfelt. Hev-skyvedør med karmer av tre og trelags glass fra ca 2012. Vinduer med karmer av tre og to-/tre-lags glass fra 2010, 2012 og 2021. Les forøvrig mer om byggemåte og den tekniske tilstanden i rapporten.
Det er gitt 60% TG 1, 33% TG 2, 2% TG 3 og 5% TGIU.
Det er gitt tilstandsgrad 3 på følgende bygningselementer:
- Bad - Fallforhold (gulv):Sluket er høyeste punkt i rommet. Det er målt ca 3 mm motfall til døråpning. Risiko/konsekvens: Risiko for skader ved eventuell vannsøl/lekkasje, da vann på gulvet ikke har mulighet til å nå sluket. Sjablongmessig prisanslag: kr 100 000 - 300 000
- Forstøtningsmurer: TG 3 gjelder forstøtningsmur i gårdsplass i mot øst: Det mangler rekkverk. Tiltak må påregnes. Sjablongmessig prisanslag: kr 10 000 - 50 000.
Det er gitt tilstandsgrad 2 (TG 2) på bygningselementer i: Bad (membran/tettesjikt og overgang til sluk), kjøkken (vannrør og innredning), øvrige rom 1 etg (overflater himling), rom under terreng (kjeller, underetasje, sokkeletasje-overflater vegger, konstruksjoner tilfarergulv, himling og vegger), loft - uinnredet/råloft (overflater vegger/undertak, kontroll av diffusjonssperre og konstruksjonsoppbygging) innvendige trapper, tekniske anlegg/VVS anlegg, el-anlegg (vannrør, avløpsrør og annet), yttervegger inkl. fasader og konstruksjon (konstruksjon og fasader), yttertak (tekking, takgjennomføringer og konstruksjon), utvendige trapper, grunnmur/fundamenter, drenering (utvendig terreng inkl. fukstsikring av grunnmur, fuktmåling i lukkede konstruksjoner og alder), og stikkledninger
Se supplerende tekst i tilstandsrapporten om rommet/badet/bygningsdelen/skjevheten/sluket/fuktigheten/taket/det elektriske etc. Kjøper overtar ansvar og risiko for dette.
Utdrag fra selgers egenerklæring:
- Kjenner du til om det har vært utført arbeider på terrasse/garasje/tak/fasade?
Ja, kun av ufaglært / egeninnsats. Satt inn 2 vinduer.
Kjenner du til om det er utført kontroll av el-anlegget og/eller andre installasjoner (f.eks. oljetank,
sentralfyr, ventilasjon)?
Ja det har vært kontroll av el.sikkerhet
-Kjenner du til om det er innredet/bruksendret/bygget ut kjeller eller loft eller andre deler av boligen?
Ja Kjeller er ombygd med tv stue og 2 soverom som er godkjent av Fredrikstad kommune
Standard
Boligen har siden 2010-tallet blitt betydelig modernisert med blant annet nye overflater i de fleste rom. Ytterligere oppgraderinger og utbedringer er det naturlig å påregne.
Selve romløsningen er i stor grad videreført og samler alle oppholdsrom på én flate i første etasje. Stuen inngår i etasjens syd-vestre hjørne, der både lys- og utsiktsforhold er som best. Flere store vinduer fra 2012 sikrer flott utsikt fra stuen, blant annet Vesterelvens utløp, og har samtidig stor positiv innvirkning på romfølelsen. Stuen har for øvrig et rikt antall innfelte spotter i himlingen og peisovn av nyere årgang.
Kjøkkenet ble rundt 2015 oppgradert med ny innredning fra IKEA som i dag har begrenset bruksslitasje. Innredningen utnytter rommets areal effektivt til en rekke oppbevaringsmuligheter. Installering av automatisk lekkasjestopper anbefales. Alle kjøkkenets hvitevarer er integrert, stekeovnen i praktisk arbeidshøyde. Det er også avsatt areal til et spisebord foran ett av kjøkkenets to vinduer hvor det er utsikt i østlig retning.
Soverommene er distansert fra stuen og samlet omkring en felles mellomgang innenfor kjøkkenet, i praktisk nærhet av badet. Begge har ca. 9 kvm. gulvflate, ett er innredet med skyvedørsgarderobe á ca. 2,5 meter bredde.
Badet ble modernisert i 2012, blant annet med nye møbler og dusjkabinett som begrenser vannpåkjenning på overflatene. Både gulv og vegger er utført med fliser, det er også varme i gulvet. TG 2 og 3 er gitt for enkelte forhold ved badet, spesifisert under "Byggemåte".
I kjelleren finnes et vaskerom som er av god størrelse til formålet, men ikke tilfredsstiller dagens krav til vann-/lekkasjesikkerhet. Rommet inneholder blant annet utslagsvask og boligens varmtvannsbereder på ca. 200 liter som er fra 2012. Gulv og vegger er av malt betong.
I kjelleren inngår også kjellerstue, to soverom samt en romslig bod.
Overflater og innredninger:
Gulv: Laminat, fliser og betong.
Innervegger: Panelplater, malt tapet, glatte malte flater og malt murpuss.
Himlinger: Malt panel, plater og glatte malte flater.
Kjøkken: Skapinnredning med glatte grå fronter. Overskap med frostet glass. Laminerte lyse benkeplater med stålkant. Nedfelt dobbel stålvask med avrenningsbrett og ett-greps blandebatteri. Integrert platetopp, stekeovn, oppvaskmaskin og kombiskap. Veggmontert ventilator i stål.
Bad: Servantskap med glatte hvite fronter og heldekkende servant med ett-greps blandebatteri. Veggspeil med integrert belysning. Overskap med glatt hvit front. Dusjkabinett. Gulvmontert klosett.
Løsøre og tilbehør
Vi viser til liste fra Norges Eiendomsmeglerforbund som gjelder fra 01.01.2020 angående løsøre og tilbehør.
Oppvarming
Boligen er elektrisk oppvarmet kombinert med vedfyring.
Dersom beboelsesrom ikke har vegg- eller fastmonterte varmekilder ved visning, følger dette heller ikke med.
Ferdigattest/brukstillatelse
Det foreligger ikke ferdigattest på eiendommen, men midlertidig brukstillatelse ble gitt 08.10.1979.
Tillatelsen er gitt på følgende vilkår:
- Stige på tak for feier.
- Rekkverk på utvendig hovedtrapp.
- Pipeløpet må støpes igjen under sotluke.
- Diverse småarbeider i kjeller.
Det er uklart om dette er utført. Kjøper overtar ansvaret for dette.
Det foreligger det ferdigattest på utvidelse av veranda, samt innsetting av to vinduer datert 21.11.2012.
Det foreligger ferdigattest for bruksendring fra tilleggsdel til hoveddel som gjelder deler av kjelleretasjen med et areal på 51.6 kvm. datert 09.11.2023.
Det gjøres oppmerksom at påbegynt garasje (støpt såle) er oppført etter at midlertidig brukstillatelse er gitt. Tiltaket er ikke søkt om, ei heller fullført. Ihht reguleringsbestemmelsen fremkommer det at man kan oppføre en garasje inntil 20 kvm.
Det gjøres oppmerksom at det ikke lenger utstedes ferdigattest på tiltak det er søkt om før 1998 jf. plan- og bygningsloven § 21-10. Kommunen vil ikke kreve ferdigattest for disse tiltakene og vil avvise eventuelle søknader. Bestemmelsen innebærer ikke at tiltak med manglende søknad blir lovlige, men at man ikke trenger å avslutte gamle byggesaker. Normalt sett kreves ferdigattest for alle søknadspliktige tiltak som gjøres etter plan- og bygningsloven. Kjøper overtar eiendommen slik den framstår på visning.
Tinglyste heftelser og rettigheter
Eiendommen overdras fri for pengeheftelser.
Det er ingen tinglyste servitutter på eiendommen.
Eventuell adgang til utleie
Leiligheten kan leies ut såfremt leiligheten har forsvarlige radonverdier. Leietaker må følge sameiets vedtekter og ordensregler på lik linje som eier.
Diverse
Tilbud av produkter og tjenester fra våre samarbeidspartnere
Vi er opptatt av verdiskapning, og har knyttet til oss samarbeidspartnere som skal sikre våre kunder de beste produkter og tjenester;
• IF forsikring tilbyr leietakergaranti.
• SMS Electro tilbyr elektrikertjenester.
• Vår avdeling Krogsveen Pluss tilbyr flyttetjenester som utvask, visningsvask, tømming og transport av flyttelass, i tillegg til å formidle kontakt med Flyttefoten for lagertjenester og Flip for overflateoppussing.
• I forbindelse med overtagelse av eiendommen tilbyr Overo avtale om strøm, alarm og bredbånd.
Beliggenhet og tomteforhold
Beliggenhet og tomteforhold
Beliggenhet
Nabolaget på høyden av Lundestadtoppen er både tilbaketrukket og fredelig. Her hører du lite fra gatene omkring og kan i stedet glede deg over både flott utsikt og et barnevennlig miljø. For en barnefamilie vil det ikke minst også oppleves som et stort pluss at både barnehage, barneskole og videregående skole er lett tilgjengelig i nærområdet.
På Lundestadtoppen bor du svært sentralt, innenfor sentrumsgrensene og bomringen. Bykjernen er innenfor reell gangavstand og har gjennom de seneste årene opplevd stor utvikling, blant annet med nye sosiale møteplasser i parker og på torv. Med byutviklingen har også tilbudet av kultur og samlingssteder blitt større og tilbyr i dag noe for de fleste. Et bredt shoppingtilbud finnes både i byens store kjøpesenter og langs byens revitaliserte gågate. Daglige innkjøp kan enkelt utføres ved nærbutikken som ligger langs oppkjøringen til Lundestadtoppen.
Sentral beliggenhet er også ensbetydende med enkel tilgang til et bredt kollektivtilbud. En hel rekke busslinjer passerer i Mosseveien like nedenfor Lundestadtoppen, både lokale og regionale samt ekspressbusser til Oslo og Gardermoen. Til togstasjonen tar det knappe 10 minutter å sykle og reisetiden med toget videre til Oslo S er i dag fra rett under én time.
Fra Lundestadtoppen er det kort vei også til friområder rundt byen, deriblant Fredrikstadmarka som har lysløype og kilometervis av preparerte skispor når forholdene tillater. Tar du turen over elven til Kråkerøy opplever du straks både skjærgårdsliv og mer landlige omgivelser.
Adkomst
Veibeskrivelse
Se Google maps - det er enkelt å finne frem i kartet.
Det vil bli skiltet med Krogsveen visningsskilt ved fellesvisninger.
Barnehager, skoler og fritid
Barnehager:
Trosvik barnehage (0-5 år) 0.8 km
Trosvikhaven familiebarnehage (0-3 år) 0.8 km
Do Re Mi barnehage 0.8 km
Skoler:
Trosvik skole (1-7 kl.) 1 km
Trara skole (1-7 kl.) 1.6 km
Kvernhuset ungdomsskole (8-10 kl.) 2.7 km
Gressvik ungdomsskole (8-10 kl.) 3.4 km
Frederik II videregående skole 0.7 km
WANG Toppidrett Fredrikstad 1.7 km
Informasjon om tilhørende skolekretser er hentet fra Prognosesenteret som dataleverandør, og tilhørigheten kan årlig endres av kommunen. Dersom skole- og barnehagetilbud er av betydning for kjøpet, ber vi om at det rettes en særskilt henvendelse til kommunen/bydelsadministrasjonen for oppdatert informasjon.
Beskrivelse av tomt
Eiertomt på 679 kvm. Eiet tomt opparbeidet med singlet gårdsplass, gressplen, diverse beplantning og naturtomt.
Parkering
Parkering i gårdsplassen. Oppføring av garasje er påbegynt med støpt såle. Garasje på opptil 20 kvm. kan oppføres iht. reguleringsbestemmelser og må søkes om.
Vei, vann og avløp
Eiendommen har adkomst via kommunal vei.
Eiendommen er tilknyttet kommunalt ledningsnett via private stikkledninger. Eier er selv ansvarlig for private stikkledninger til boligen.
Regulerings-og arealplaner
Eiendommen er regulert til boliger i henhold til reguleringsplan 110 Innfartsåren rv. 110, strekn. Onsøyveien - Simo (Mosseveien) datert 27.07.1978 med tilhørende reguleringsbestemmelser.
Eiendommen omfattes også av Kommuneplan fredrikstad med formål bebyggelse og anlegg.
Det foreligger et generelt pålegg i området om utkobling av taknedløp.
Eiendommen ligger innenfor planforslag: 908 (utbygging av samferdsel linje). Det må påregnes at eiendommen vil bli berørt av dette. Se kommunen for mer informasjon eller ta kontakt med megler.
Eiendommen ligger innenfor planforslag: Kommunedelplan for dobbeltspor Seut - Rolvsøy og rv.110 Simo - St.Croix. Man må påregne at eiendommen helt eller delvis vil bli berørt av den fremtidige utbyggingen av rolvsøyveien.
Utsnitt av plan med tilhørende bestemmelser kan fås ved henvendelse til megler.
Økonomi
Økonomi
Kommunale utgifter
Kommunale avgifter er kr 15 414,- for inneværende år. I dette inngår gebyr for vann, avløp, renovasjon og feiing/tilsyn.
Det tas forbehold om økning av kommunale avgifter i 2027.
I tillegg kommer Eiendomsskatt som utgjør årlig kr 10 226,- for inneværende år. Blir fakturert med kommunale avgifter
Årlig forsikringspremie er på kr. 7000,-.
Nåværende eier har et strømforbruk som tilsvarer ca. 6000 kwh. pr. år.
Selger har ikke oppgitt ytterligere kostnader.
Utgiftene er basert på nåværende eiers forbruk og avtaler.
Formuesverdi
Formuesverdi for 2021 var kr 764 675,- ifølge skatteetaten. Beløpet forutsetter at eier bor fast i boligen (primærbolig).
Ved eventuell øvrig bruk av eiendommen (f.eks. fritidsbolig, pendlerbolig, utleieobjekt) vil formuesverdien for 2021 bli kr 2 752 831,-.
Formuesverdien justeres normalt årlig. Se skatteetaten.no for mer informasjon om fastsettelse av formuesverdien.
Eiendomsskatt
Eiendomsskatten er kr 10 226,- for inneværende år. Denne er inkludert i de overnevnte kommunale avgiftene.
Omkostninger
6 790 000,00 Prisantydning
Omkostninger
169 750,00 Dokumentavgift til staten (2,5% av kjøpesum)
545,00 Tinglysing panterettsdokument
545,00 Tinglysing skjøte
19 900,00 Tryg Boligkjøperpakke - Enebolig (valgfri)
--------------------------------------------------------
190 740,00 Omkostninger totalt
--------------------------------------------------------
6 980 740,00 Totalpris inkl. omkostninger
--------------------------------------------------------
Totalpris inkl. omkostninger forutsetter kjøp til prisantydning.
Det tas forbehold om endringer i avgifter og gebyrer.
Tilbud om lånefinansiering
Megler formidler gjerne kontakt med rådgiver hos vår samarbeidspartner BN bank. De har konkurransedyktige betingelser samt rask og løsningsorientert behandling av din lånesøknad. Krogsveen mottar et honorar av BN Bank for denne formidlingen.
Betalingsbetingelser
Kjøpesum inkludert omkostninger, samt pantedokument tilknyttet eventuelt lån, skal være disponibelt hos megler 2 virkedager før overtagelsen.
Annen viktig informasjon
Annen viktig informasjon
Eier
Cristina Quioco Nilssen og Tore Nilssen
Overtakelse
Etter nærmere avtale.
Boligselgerforsikring
Selger har i forbindelse med salget tegnet boligselgerforsikring hos Anticimex. Vedlagt salgsoppgaven følger selgers egenerklæringsskjema og tilstandsrapport. Interessenter må sette seg inn i dokumentene før bud inngis.
Boligselgerforsikringen dekker selgers ansvar etter avhendingsloven. Dersom kjøper oppdager forhold ved eiendommen som man mener utgjør en mangel ved eiendommen, vil Claims Handling AS behandle reklamasjonen på vegne av selger. Forsikringsvilkår kan fås ved henvendelse til megler.
Boligkjøperforsikring
Innen kontraktsmøtet må kjøper ta stilling til om det ønskes å bestille Boligkjøperpakken gjennom If. I denne gunstige pakken er boligen ferdig forsikret og inkluderer fri rettshjelpsdekning i 1 år, dvs at de behandler ethvert mangelskrav kjøper måtte ha overfor selger.
For alle boligtyper, unntatt tomter, inneholder Boligkjøperpakken innboforsikring, dobbel renteforsikring - i situasjoner hvor kjøper ikke får solgt nåværende bolig – og flytteforsikring. I tillegg inneholder den husforsikring for alle hus og hytter forutsatt at eiendommen ikke har seksjonsnummer/andel (tilhører et sameie/borettslag).
Der boligen har fått utstedt verdibevis på våtrom, yttertak eller drenering, gis kjøper en kaskoforsikring og superdekning i 4 år, samt at det på eneboliger gis gratis oppdatering av verdibeviset hvert 4. år. Med verdibevis vil selve skaden bli utbedret - i tillegg til skader i tilstøtende rom, uten ekstra kostnader for kjøper. Kjøper mottar ingen særskilt faktura for Boligkjøperpakken da kostnaden det første året legges til kjøpesummen for boligen. Les mer om forsikringen i informasjonsarket fra If. Krogsveen mottar et honorar for denne formidlingen.
Budgivning
Forbrukerinformasjon om budgivning er vedlagt denne salgsoppgaven og er også på vår hjemmeside Krogsveen.no. Alle bud og budforhøyelser må inngis skriftlig. I tillegg må legitimasjon være fremlagt sammen med signatur fra budgiver.
Vi oppfordrer til å gi bud elektronisk via GI BUD-knappen på eiendommens hjemmeside på Krogsveen.no. Da vil samtlige vilkår bli oppfylt.
Eventuelle forhøyelser eller endringer av budet kan bekreftes pr SMS eller på e-post. Vi oppfordrer alltid til å kontakte megler pr. telefon i tillegg da forsinkelser i SMS og e-post kan forekomme.
For at budene skal kunne bli behandlet og videreformidlet skriftlig til alle involverte parter, må alle bud ha en tilstrekkelig lang akseptfrist, jf. eiendomsmeglingsforskriften § 6-3.
Selger må også skriftlig akseptere budet før aksept kan formidles til budgiver. Akseptfrist bør derfor være på minimum 30 minutter, og budforhøyelser må derfor skje i god tid før fristens utløp.
Bud i forbrukerforhold kan uansett ikke settes med kortere frist enn kl. 12.00 første virkedag etter siste annonserte visning. I tillegg kan ikke budet ha forbehold om at det skal holdes hemmelig ovenfor øvrige interessenter. Megler har iht lov om eiendomsmegling ikke anledning til å videreformidle disse budene, og de vil dermed heller ikke bli journalført.
Etter at eiendommen er solgt vil kjøper og selger få tilsendt budjournal. Øvrige budgivere kan få utlevert kopi av budjournalen i anonymisert form.
Hvitvaskingsreglene
I henhold til lov om hvitvasking og terrorfinansiering har megler plikt til å gjennomføre kontrolltiltak overfor kunder, herunder fullmektiger. Dette innebærer bl.a. å bekrefte kunders og reelle rettighetshaveres identitet på bakgrunn av fremvist gyldig legitimasjon eller på annen godkjent måte, samt å innhente opplysninger om kundeforholdets formål og tilsiktede art.
Dersom slike kundetiltak ikke kan gjennomføres, kan megler ikke etablere kundeforholdet eller utføre transaksjonen.
Hvis kjøper ikke bidrar til gjennomføring av kundekontrollen og dette fører til at transaksjonen blir forsinket eller ikke kan gjennomføres, vil dette ansees som mislighold av avtalen og gi selger rettigheter etter avhendingslova kapittel 5. I tilfeller der selger ikke bidrar til gjennomføring av løpende kundekontroll underveis i oppdraget, er det selger som misligholder sine forpliktelser etter avtalen og gi kjøper rettigheter etter avhendingslovens kapittel 4. Partene er selv ansvarlige for eventuelle kostnader og ansvar dette kan medføre. Eiendomsmegleren eller eiendomsmeglingsforetaket kan ikke holdes ansvarlig for de konsekvenser dette vil kunne få for partene eller andre som har interesser i eiendomshandelen.
Kjøper oppfordres til å innbetale kjøpesummen som ikke kommer fra låneinstitusjon i én samlet innbetaling fra egen konto i norsk bank. Megler har plikt til å melde fra til Økokrim om eiendomshandler som fremstår som mistenkelige. Melding sendes Økokrim uten at partene varsles.
Personopplysningsloven
I henhold til personopplysningsloven gjør vi oppmerksom på at interessenter kan bli registrert for videre oppfølging.
Lovanvendelse
Generelle bestemmelser
Salgsoppgaven er basert på de opplysningene selger har gitt til megler, den bygningssakyndiges tilstandsrapport, samt opplysninger innhentet fra kommunen, Kartverket og andre tilgjengelige kilder. Det er viktig at kjøper setter seg grundig inn i alle salgsdokumentene, herunder salgsoppgave, tilstandsrapport og selgers egenerklæring. Kjøper anses kjent med forhold som er tydelig beskrevet i salgsdokumentene, og slike forhold kan ikke påberopes som mangler. Dette gjelder uavhengig av om kjøper har lest dokumentene. Alle interessenter oppfordres til å undersøke eiendommen nøye, gjerne sammen med fagkyndig før bud inngis. Kjøper som velger å kjøpe usett kan ikke gjøre gjeldende som mangel noe han burde blitt kjent med ved undersøkelsen.
Dersom det er behov for avklaringer, anbefaler vi at interessenter rådfører seg med eiendomsmegler eller egne rådgivere før det legges inn bud.
En bolig som har blitt brukt i en viss tid, har vanligvis blitt utsatt for slitasje og skader kan ha oppstått. Slik bruksslitasje må kjøper regne med, og det kan avdekkes enkelte forhold etter overtakelse som nødvendiggjør utbedringer. Normal slitasje og skader som nødvendiggjør utbedring, er innenfor hva kjøper må forvente og vil ikke utgjøre en mangel.
Kjøper og selgers rettigheter og plikter reguleres av avtalen mellom partene, samt informasjonen som har vært tilgjengelig for kjøperen i forbindelse med handelen. Avtalen utfylles av avhendingsloven, og det gjelder ulike avtalevilkår avhengig av om kjøper er forbrukerkjøper eller ikke. Dette er nærmere beskrevet nedenfor.
På grunn av ulike avtalevilkår kan selger vurdere bud fra en som ikke er forbruker, ulikt fra en forbrukers bud. Dersom kjøper ikke er forbruker, er selger sitt mulige mangelsansvar begrenset fordi eiendommen selges "som den er". Selger kan ikke ta «som den er»- forbehold overfor en forbrukerkjøper. Selv et lavere bud fra en som ikke er forbruker kan foretrekkes fordi begrensningen i mulig mangelsansvar kan ha egenverdi for selger. Selger står fritt til å forkaste eller akseptere ethvert bud, og er for eksempel ikke forpliktet til å akseptere høyeste bud.
Budgiver skal i budskjema avgi egenerklæring om budgiver er forbruker eller næringsdrivende/ person som hovedsakelig handler som ledd i næringsvirksomhet. Budgivere får informasjon dersom andre bud er inngitt av en som ikke er forbruker.
Forbrukerkjøp - definisjon
Med forbrukerkjøp menes kjøp av eiendom når kjøperen er en fysisk person som ikke hovedsakelig handler som ledd i næringsvirksomhet.
Forbruker – avtalevilkår
Eiendommen har en mangel dersom den ikke er i samsvar med kravene som følger av avtalen, eller det foreligger brudd på bestemmelsene i avhendingsloven §§ 3-2 til 3-8. Hvis eiendommen ikke er i samsvar med det kjøperen må kunne forvente ut ifra alder, type og synlig tilstand, kan det være grunnlag for mangelskrav. Det samme gjelder hvis det er holdt tilbake eller gitt uriktige opplysninger om eiendommen. Dette gjelder likevel bare dersom man kan gå ut ifra at det virket inn på avtalen at opplysningen ikke ble gitt eller at mangelskravet ikke blir rettet i tide på en tydelig måte.
Boligen kan ha en mangel etter avhendingsloven § 3-3 dersom det er avvik mellom opplyst og faktisk innvendig areal, forutsatt at avviket er på 2% eller mer og minimum 1 kvm.
Ved beregning av et eventuelt prisavslag eller erstatning må kjøper selv dekke tap/kostnader opptil et beløp på kr 10 000 (egenandel).
Ikke-forbruker (næringsdrivende) – definisjon
Hvis kjøper er en juridisk person, eller en fysisk person som hovedsakelig handler som ledd i næringsvirksomhet, vil kjøpet ikke anses som et forbrukerkjøp.
Ikke-forbruker – avtalevilkår
Eiendommen har en mangel dersom den ikke er i samsvar med kravene som følger av avtalen.
Eiendommen selges «som den er», og selgers ansvar utover det konkret avtalte er da begrenset etter avhendingsloven § 3-9, første ledd andre setning.
Avhendingsloven § 3-3 andre ledd fravikes, og hvorvidt boligens arealsvikt utgjør en mangel vurderes etter avhendingsloven § 3-8.
Informasjon om kjøpers undersøkelsesplikt, herunder oppfordringen om å undersøke eiendommen nøye, gjelder også for kjøpere som ikke anses som forbrukere.
Det forutsettes at hjemmel overføres til kjøper. Hvis kjøper ikke ønsker hjemmelsoverføring av eiendommen, må det tas forbehold om dette i budet.
Rett til fritt å velge megler
Valg av eiendomsmeglingsforetak skal være frivillig. Eiendomsmeglingsforetak kan ikke inngå oppdrag om eiendomsmegling dersom inngåelsen av oppdraget er satt som vilkår i avtale om annet enn eiendomsmegling, f.eks. tilbud om lån eller andre banktjenester, jf. Lov om eiendomsmegling § 6-3 (3)
Meglers vederlag
Meglers vederlag betales av selger og er avtalt til:
Vederlag: 1% av salgssummen.
Tilrettelegging kr 15.000,-
Oppgjør: kr 6.000,-
Markedspakke: kr 21.000,-
Visninger: kr 5.000,-
Oppslag eiendomsregister: kr 2.500,-
Megler har i tillegg krav på dekning av utlegg.
Krogsveen kan kreve dekning for følgende utlegg:
Foto - Profesjonell fotograf fra Oh Shots - Enebolig: kr. 4 800,-
Innhenting av offentlig opplysninger Fredrikstad - inkl tegning: kr. 4 172,-
Veiledning med stylist for klargjøring av boligen før foto (tips & råd): kr. 1 895,-
Tinglysing e-sikring - selveier: kr. 540,-
Opplysninger om oppdraget
Oppdragsnummer 67-0011/23
Eiendomsmegler Krogsveen AS, avd. Fredrikstad og Sarpsborg
Dikeveien 14, 1661, ROLVSØY
950 007 613
Oppdragets KR-kode KR67.2311
Dato
Sist oppdatert: 24. februar 2026 kl. 17:44
Dokumenter
Dokumenter
PDF – 1002 KB
PDF – 312 KB
PDF – 29 KB
PDF – 127 KB
PDF – 392 KB
Område
Legg til steder som er viktige for deg
Visning
Ta kontakt med megler for avtale om privatvisning.
Ønsker du kun å bli holdt orientert, kan du fra eiendommens hjemmeside få varsel om solgtpris, eller kontakte megler.
Lurer du på noe?
Unngå doble boligrenter
Vi tilbyr gunstig forsikring.
Vurderer du utleie?
Få et tilbud fra Utleie KrogsveenHva koster lånet?
Sjekk estimert lånekostnadVil du varsles om lignende boliger?
Ved å lagre ditt boligsøk hos oss får du beskjed når vi har en bolig som ligner denne, før den legges ut på markedet!

