Idretten 10A
4 590 000 kr
75 m²
2 soverom
Solgt

Presenteres av
Emilio de Paoli DunneJessheim
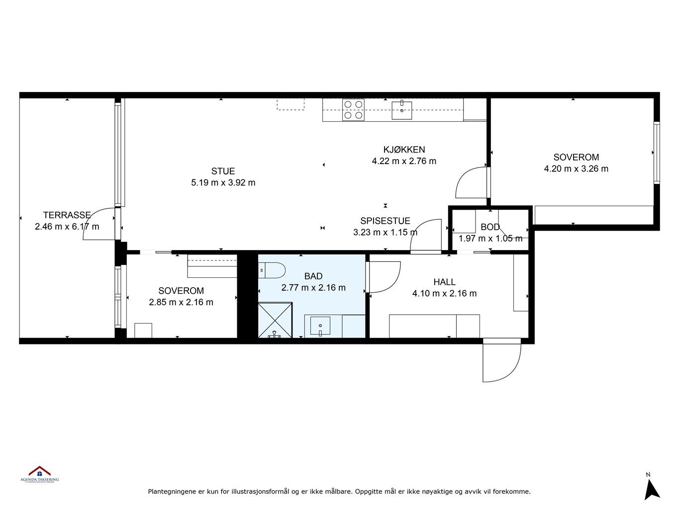
Stor, moderne og tiltalende 3-R eierleilighet i 1. etasje | Kun TG1/TG0 | Garasjeplass | Vannbåren gulvvarme | Sentralt
Prisantydning
4 590 000 krOmkostninger
125 790 krTotalpris
4 715 790 kr
Pris
Bruksareal
80 m²BRA-I (internt bruksareal)
75 m²BRA-E (eksternt bruksareal)
5 m²TBA (terrasse-balkongareal)
14 m²
Areal
Etasje
1Byggeår
2023Soverom
2 soveromBad
1 badType
EierleilighetEierform
EierseksjonFellesutgifter
2 625 krEnergimerke
Grønn C
Nøkkelinfo
Unngå doble boligrenter
Vi tilbyr gunstig forsikring.
Vurderer du utleie?
Få et tilbud fra Utleie KrogsveenHva koster lånet?
Sjekk estimert lånekostnadBeskrivelse
Kort om eiendommen
Velkommen til Idretten 10A!
Attraktiv og tiltalende 3-roms leilighet i 1. etasje med gjennomgående høy standard, romslig planløsning og mange gode løsninger. Leiligheten sto ferdigstilt i 2023 - her kan du flytte rett inn.
Bygget er gjennomtenkt, har høy standard og pent opparbeidet uteområdet. Heisadkomst til etasjeplan fra garasjen, etasjeskiller av betong, balansert ventilasjon og godt med naturlig lys, noe som gir en god romfølelse. Fra stuen er det direkte utgang til terrasse på ca. 14 kvm. - et ypperlig sted å tilbringe late sommerdager og i akkurat passe avstand fra sentrum.
Vannbåren gulvvarme.
Sentralt - Rolig.
Takhøyde på ca. 260 cm. i stuen/soverom.
Oppvarmet garasjeplass med lader og kjellerbod (5 kvm).
Kun TG0/TGO
Område
Legg til steder som er viktige for deg
På flyttefot? Tenk kjøp og salg samtidig.
Få din egen rådgiver gjennom hele kjøps- og salgsprosessen. Det starter med en verdivurdering.
Unngå doble boligrenter
Vi tilbyr gunstig forsikring.
Vurderer du utleie?
Få et tilbud fra Utleie KrogsveenHva koster lånet?
Sjekk estimert lånekostnadVil du varsles om lignende boliger?
Ved å lagre ditt boligsøk hos oss får du beskjed når vi har en bolig som ligner denne, før den legges ut på markedet!
På flyttefot? Slik gjør vi det enklere for deg
Skreddersydd flyttepakke
Vi fikser håndverkere, vask, pakking, lagring og transport, og legger ut for utgiftene underveis.
Hjelp med både kjøp og salg
Hos oss har du din egen rådgiver gjennom hele kjøps- og salgsprosessen.
Hjelp til finansiering
Vårt samarbeid med BN Bank sikrer deg rask og løsningsorientert hjelp, til konkurransedyktige betingelser.

